Property
Account |
| Property ID: | 803393 | Abbreviated Legal Description: | VILLAGE AT MAPLE RIDGE - CONDO PHASE 3 UNIT 25 1/41 INT |
| Geographic ID: | S8371-03-00025-0 | Agent Code: | |
| Type: | Real | | |
| Tax Area: | 820 - APPRAISER-S Whid Schl Dist, Special District, improved & less than 1 acre | Land Use Code | 14 |
| Open Space: | N | DFL | N |
| Historic Property: | N | Remodel Property: | N |
| Multi-Family Redevelopment: | N | | |
| Township: | | Section: | |
| Range: | |
Location |
| Address: | 1760 ALLIANCE AVE UNIT 25 FREELAND, WA 98249 | Mapsco: | |
| Neighborhood: | 34*FR-maple ridge | Map ID: | 313 |
| Neighborhood CD: | 34*FRmplrg |
Owner |
| Name: | SARGENT, PATRICIA FAITH | Owner ID: | 288328 |
| Mailing Address: | 2125 MYRES LANE LANGLEY, WA 98260 | % Ownership: | 100.0000000000% |
| | | Exemptions: | |
Taxes and Assessment Details
Values
| (+) Improvement Homesite Value: | + | $0 | |
| (+) Improvement Non-Homesite Value: | + | $259,222 | |
| (+) Land Homesite Value: | + | $0 | |
| (+) Land Non-Homesite Value: | + | $180,000 | |
| (+) Curr Use (HS): | + | $0 | $0 |
| (+) Curr Use (NHS): | + | $0 | $0 |
| | | -------------------------- | |
| (=) Market Value: | = | $439,222 | |
| (–) Productivity Loss: | – | $0 | |
| | | -------------------------- | |
| (=) Subtotal: | = | $439,222 | |
| (+) Senior Appraised Value: | + | $0 | |
| (+) Non-Senior Appraised Value: | + | $439,222 | |
| | | -------------------------- | |
| (=) Total Appraised Value: | = | $439,222 | |
| (–) Senior Exemption Loss: | – | $0 | |
| (–) Exemption Loss: | – | $0 | |
| | | -------------------------- | |
| (=) Taxable Value: | = | $439,222 | |
Taxing Jurisdiction
| Owner: | SARGENT, PATRICIA FAITH | | |
| % Ownership: | 100.0000000000% | | |
| Total Value: | $439,222 | | |
| Tax Area: | 820 - APPRAISER-S Whid Schl Dist, Special District, improved & less than 1 acre |
| CF | Conservation Futures | 0.0316035091 | $439,222 | $439,222 | $13.88 | | |
| FIRE3 | Fire & Rescue Dist #3 S Whidbey GEN | 1.2004855531 | $439,222 | $439,222 | $527.28 | | |
| HOBOND | Hospital BOND | 0.1910887512 | $439,222 | $439,222 | $83.93 | | |
| HOGEN | Hospital GEN | 0.3902502903 | $439,222 | $439,222 | $171.41 | | |
| CE | County Current Expense | 0.3708482477 | $439,222 | $439,222 | $162.88 | | |
| CR | County Roads | 0.4584763726 | $439,222 | $439,222 | $201.37 | | |
| ISLANDEMS | Hospital GEN (EMS) | 0.5000000000 | $439,222 | $439,222 | $219.61 | | |
| LIB | Library Sno-Isle GEN | 0.3153421757 | $439,222 | $439,222 | $138.51 | | |
| PORTWHID | Port of S Whidbey GEN | 0.1094540357 | $439,222 | $439,222 | $48.07 | | |
| SCH206BOND | School 206 BOND | 0.3161759235 | $439,222 | $439,222 | $138.87 | | |
| SCH206MO | School 206 Enrichment | 0.4547169547 | $439,222 | $439,222 | $199.72 | | |
| ST | State School | 1.3035497053 | $439,222 | $439,222 | $572.55 | | |
| ST2 | State School Part 2 | 0.8169543533 | $439,222 | $439,222 | $358.82 | | |
| SWHIDPRBD | P & R S Whidbey BOND | 0.0152817568 | $439,222 | $439,222 | $6.71 | | |
| SWHIDPRBD2 | P & R S Whidbey BOND2 | 0.0138911264 | $439,222 | $439,222 | $6.10 | | |
| SWHIDPRMT | P & R S Whidbey GEN | 0.2053334452 | $439,222 | $439,222 | $90.19 | | |
| | Total Tax Rate: | 6.6934522006 | | | | | |
| | | | | Taxes w/Current Exemptions: | $2,939.90 | | |
| | | | | Taxes w/o Exemptions: | $2,939.90 | | |
Improvement / Building
| Improvement #1: | RESIDENTIAL | State Code: | A1 | 1058.6 sqft | Value: | $259,222 |
| Bathrooms: | 1.75 | Bedrooms: | 0 | | Ceiling: | DRYWALL PAINTED | Exterior Wall/Cover: | CEMENT FIBER | | Floor Covering: | CARPET/VINYL 80-20 | Floor Structure: | WOOD W/SUBFLOOR | | Foundation: | CONCRETE | Heating: | FHA GAS | | Interior Finish: | DRYWALL PAINT | Plumbing Fixture Cnt: | 9 | | Roof Slope: | 8" IN 12" | Roof Structure/Cover: | CJ ASPHALT |
|
| | Type | Description | Class CD | Sub Class CD | Year Built | Area |
| | BAS | BASE/MAIN FLOOR | 4 | 0 | 2001 | 1058.6 |
| | OP1 | OPEN PORCH SLAB | 4 | 0 | 2001 | 73.0 |
| | OP4 | OPEN PORCH W/CEILING-ROOF | 4 | 0 | 2001 | 42.0 |
| | OP4 | OPEN PORCH W/CEILING-ROOF | 4 | 0 | 2001 | 40.0 |
| | AGR | ATTACHED GARAGE | 4 | 0 | 2001 | 345.8 |
| | COMA | Common Area Improvement | 4 | 0 | 2001 | 0.0 |
Sketch
Property Image
Land
| 1 | 61 | MULTIPLE RESIDENCES | 0.0000 | 7915.00 | 0.00 | 0.00 | 1.00 | $180,000 | $0 |
Roll Value History
| 2026 | N/A | N/A | N/A | N/A | N/A |
| 2025 | $259,222 | $180,000 | $0 | $439,222 | $439,222 |
| 2024 | $262,362 | $155,000 | $0 | $417,362 | $417,362 |
| 2023 | $265,500 | $155,000 | $0 | $420,500 | $420,500 |
| 2022 | $243,652 | $155,000 | $0 | $398,652 | $398,652 |
| 2021 | $214,896 | $110,000 | $0 | $324,896 | $324,896 |
| 2020 | $208,686 | $100,000 | $0 | $308,686 | $308,686 |
| 2019 | $186,771 | $85,000 | $0 | $271,771 | $271,771 |
| 2018 | $187,338 | $85,000 | $0 | $272,338 | $272,338 |
| 2017 | $188,474 | $25,000 | $0 | $213,474 | $213,474 |
| 2016 | $190,744 | $25,000 | $0 | $215,744 | $215,744 |
| 2015 | $155,659 | $25,000 | $0 | $180,659 | $180,659 |
| 2014 | $157,489 | $25,000 | $0 | $182,489 | $182,489 |
| 2013 | $146,513 | $25,000 | $0 | $171,513 | $171,513 |
| 2012 | $149,882 | $25,000 | $0 | $174,882 | $174,882 |
| 2011 | $149,882 | $88,727 | $0 | $238,609 | $238,609 |
| 2010 | $152,129 | $88,727 | $0 | $240,856 | $240,856 |
| 2009 | $158,502 | $110,810 | $0 | $269,312 | $269,312 |
| 2008 | $158,542 | $46,699 | $0 | $205,241 | $205,241 |
| 2007 | $158,982 | $46,699 | $0 | $205,681 | $205,681 |
Deed and Sales History
| 1 | 12/10/2018 | WD | Warranty Deed | PURVIS JTWRO, JEFFREY D | SARGENT, PATRICIA FAITH | | | $150,000.00 | 37083 | 4457033 |
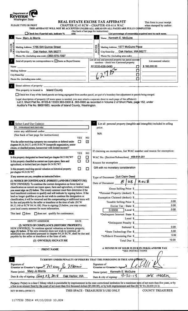
| 2 | 08/22/2018 | QCD | Quit Claim Deed | PURVIS, JEFFREY D | PURVIS JTWRO, JEFFREY D | | | $0.00 | 35613 | 4450562 |
| 3 | 11/21/2011 | QCD | Quit Claim Deed | PURVIS, R SPENCER | PURVIS, JEFFREY D | | | $0.00 | 6219 | 4305262 |
| 4 | 10/28/2011 | WD | Warranty Deed | SIMMONS UNDIV 1/2 INT, LORA LYN LEE & MICHAEL LEE | PURVIS, R SPENCER | | | $180,000.00 | 5984 | 4303668 |
| 5 | 02/08/2010 | QCD | Quit Claim Deed | SIMMONS, LORA LYN LEE | SIMMONS UNDIV 1/2 INT, LORA LY | | | $0.00 | 279 | 4268359 |
| 6 | 11/13/2002 | QCD | Quit Claim Deed | ALDRICH, ROBERT/BEVERLY | SIMMONS, LORA LYN LEE | | | $0.00 | 24561 | 4037466 |
| 7 | 03/14/2002 | WD | Warranty Deed | COMPASS INVESTMENTS INC, | ALDRICH, ROBERT/BEVERLY | | | $162,844.00 | 21158 | 4015389 |
| 8 | 01/01/1900 | OTHER | Other - Misc. Documents | Unknown | COMPASS INVESTMENTS INC, | | | $0.00 | 0 | 0 |
Payout Agreement
| No payout information available.. |