Property
Account |
| Property ID: | 803435 | Abbreviated Legal Description: | N193.34' OF S290' OF GL1 EX W225' TGW EZS |
| Geographic ID: | R32912-420-0480 | Agent Code: | |
| Type: | Real | | |
| Tax Area: | 712 - APPRAISER-S Whid Schl Dist, outside Langley, improved, greater than 1 acre | Land Use Code | 11 |
| Open Space: | N | DFL | N |
| Historic Property: | N | Remodel Property: | N |
| Multi-Family Redevelopment: | N | | |
| Township: | 29 | Section: | 12 |
| Range: | R3 |
Location |
| Address: | 5299 WHITEHORSE LN LANGLEY, WA 98260 | Mapsco: | |
| Neighborhood: | Cycle 4 | Map ID: | 763 |
| Neighborhood CD: | 4 |
Owner |
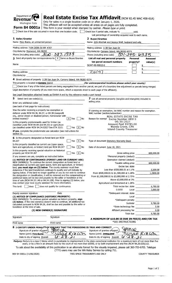
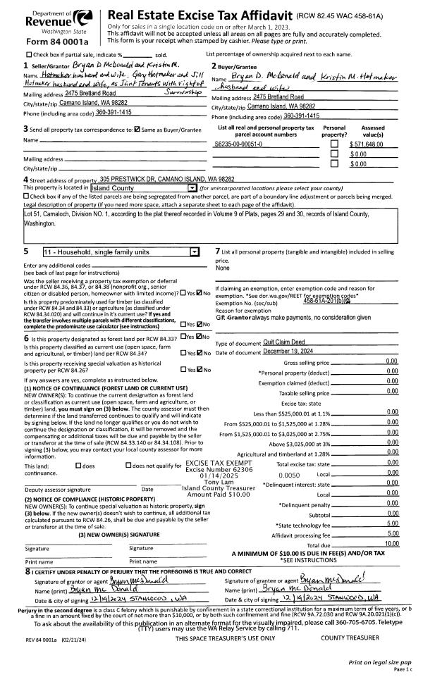
| Name: | FERGUS, CORWIN | Owner ID: | 312862 |
| Mailing Address: | HEIDI GUSTAFSON 38 LEWISIA RD WINTHROP, WA 98862 | % Ownership: | 100.0000000000% |
| | | Exemptions: | |
Taxes and Assessment Details
Values
| (+) Improvement Homesite Value: | + | $0 | |
| (+) Improvement Non-Homesite Value: | + | $505,333 | |
| (+) Land Homesite Value: | + | $0 | |
| (+) Land Non-Homesite Value: | + | $775,000 | |
| (+) Curr Use (HS): | + | $0 | $0 |
| (+) Curr Use (NHS): | + | $0 | $0 |
| | | -------------------------- | |
| (=) Market Value: | = | $1,280,333 | |
| (–) Productivity Loss: | – | $0 | |
| | | -------------------------- | |
| (=) Subtotal: | = | $1,280,333 | |
| (+) Senior Appraised Value: | + | $0 | |
| (+) Non-Senior Appraised Value: | + | $1,280,333 | |
| | | -------------------------- | |
| (=) Total Appraised Value: | = | $1,280,333 | |
| (–) Senior Exemption Loss: | – | $0 | |
| (–) Exemption Loss: | – | $0 | |
| | | -------------------------- | |
| (=) Taxable Value: | = | $1,280,333 | |
Taxing Jurisdiction
| Owner: | FERGUS, CORWIN | | |
| % Ownership: | 100.0000000000% | | |
| Total Value: | $1,280,333 | | |
| Tax Area: | 712 - APPRAISER-S Whid Schl Dist, outside Langley, improved, greater than 1 acre |
| CF | Conservation Futures | 0.0316035091 | $1,280,333 | $1,280,333 | $40.46 | | |
| FIRE3 | Fire & Rescue Dist #3 S Whidbey GEN | 1.2004855531 | $1,280,333 | $1,280,333 | $1,537.02 | | |
| HOBOND | Hospital BOND | 0.1910887512 | $1,280,333 | $1,280,333 | $244.66 | | |
| HOGEN | Hospital GEN | 0.3902502903 | $1,280,333 | $1,280,333 | $499.65 | | |
| CE | County Current Expense | 0.3708482477 | $1,280,333 | $1,280,333 | $474.81 | | |
| CR | County Roads | 0.4584763726 | $1,280,333 | $1,280,333 | $587.00 | | |
| ISLANDEMS | Hospital GEN (EMS) | 0.5000000000 | $1,280,333 | $1,280,333 | $640.17 | | |
| LIB | Library Sno-Isle GEN | 0.3153421757 | $1,280,333 | $1,280,333 | $403.74 | | |
| PORTWHID | Port of S Whidbey GEN | 0.1094540357 | $1,280,333 | $1,280,333 | $140.14 | | |
| SCH206BOND | School 206 BOND | 0.3161759235 | $1,280,333 | $1,280,333 | $404.81 | | |
| SCH206MO | School 206 Enrichment | 0.4547169547 | $1,280,333 | $1,280,333 | $582.19 | | |
| ST | State School | 1.3035497053 | $1,280,333 | $1,280,333 | $1,668.98 | | |
| ST2 | State School Part 2 | 0.8169543533 | $1,280,333 | $1,280,333 | $1,045.97 | | |
| SWHIDPRBD | P & R S Whidbey BOND | 0.0152817568 | $1,280,333 | $1,280,333 | $19.57 | | |
| SWHIDPRBD2 | P & R S Whidbey BOND2 | 0.0138911264 | $1,280,333 | $1,280,333 | $17.79 | | |
| SWHIDPRMT | P & R S Whidbey GEN | 0.2053334452 | $1,280,333 | $1,280,333 | $262.90 | | |
| | Total Tax Rate: | 6.6934522006 | | | | | |
| | | | | Taxes w/Current Exemptions: | $8,569.86 | | |
| | | | | Taxes w/o Exemptions: | $8,569.86 | | |
Improvement / Building
| Improvement #1: | RESIDENTIAL | State Code: | Y | 2421.0 sqft | Value: | $505,333 |
| Bathrooms: | 2 | Bedrooms: | 2 | | Ceiling: | TONGUE & GROOVE | Exterior Wall/Cover: | WOOD SIDING | | Floor Covering: | CERAMIC TILE/CPT 40-60 | Floor Structure: | WOOD W/SUBFLOOR | | Foundation: | CONCRETE | Heating: | RADIANT FLOOR | | Interior Finish: | DRYWALL PAINT | Plumbing Fixture Cnt: | 12 | | Roof Slope: | 6" IN 12" | Roof Structure/Cover: | BEAM CONCRETE TILE |
|
| | Type | Description | Class CD | Sub Class CD | Year Built | Area |
| | BAS | BASE/MAIN FLOOR | 5 | 0 | 1995 | 1520.0 |
| | DWN | DOWNSTAIRS LIVING AREA | 5 | 0 | 1995 | 901.0 |
| | OP1 | OPEN PORCH SLAB | 5 | 0 | 1995 | 532.0 |
| | OP1 | OPEN PORCH SLAB | 5 | 0 | 1995 | 150.0 |
| | OWC | OPEN WOOD PORCH W/STEPS/ROOF/C | 5 | 0 | 1995 | 65.0 |
| | ENP | ENCLOSED PORCH | 5 | 0 | 1995 | 120.0 |
Sketch
Property Image
Land
| 1 | HB | HIGH BLUFF | 2.1600 | 94089.60 | 193.00 | 0.00 | 1.00 | $775,000 | $0 |
Roll Value History
| 2026 | N/A | N/A | N/A | N/A | N/A |
| 2025 | $505,333 | $775,000 | $0 | $1,280,333 | $1,280,333 |
| 2024 | $511,707 | $775,000 | $0 | $1,286,707 | $1,286,707 |
| 2023 | $518,085 | $775,000 | $0 | $1,293,085 | $1,293,085 |
| 2022 | $474,927 | $725,000 | $0 | $1,199,927 | $192,002 |
| 2021 | $437,632 | $350,000 | $0 | $787,632 | $192,002 |
| 2020 | $405,287 | $300,000 | $0 | $705,287 | $192,002 |
| 2019 | $305,031 | $350,000 | $0 | $655,031 | $192,002 |
| 2018 | $305,970 | $300,000 | $0 | $605,970 | $192,002 |
| 2017 | $307,846 | $300,000 | $0 | $607,846 | $192,002 |
| 2016 | $311,601 | $300,000 | $0 | $611,601 | $192,002 |
| 2015 | $315,356 | $300,000 | $0 | $615,356 | $192,002 |
| 2014 | $288,836 | $300,000 | $0 | $588,836 | $410,006 |
| 2013 | $292,427 | $331,548 | $0 | $623,975 | $410,006 |
| 2012 | $296,017 | $331,548 | $0 | $627,565 | $192,002 |
| 2011 | $299,607 | $368,387 | $0 | $667,994 | $192,002 |
| 2010 | $305,271 | $368,387 | $0 | $673,658 | $192,002 |
| 2009 | $318,485 | $368,626 | $0 | $687,111 | $192,002 |
| 2008 | $287,581 | $366,012 | $0 | $653,593 | $192,002 |
| 2007 | $286,453 | $448,042 | $0 | $734,495 | $192,002 |
Deed and Sales History
| 1 | 05/15/2024 | WD | Warranty Deed | MCFARLAND, PAT | FERGUS, CORWIN | | | $1,005,000.00 | 59977 | 4572414 |
|   | |
| 2 | 04/18/2002 | BLA | DNU - Boundary Line Adjustment | Unknown | MCFARLAND, PAT | | | $0.00 | 65948 | 94012120 |
Payout Agreement
| No payout information available.. |