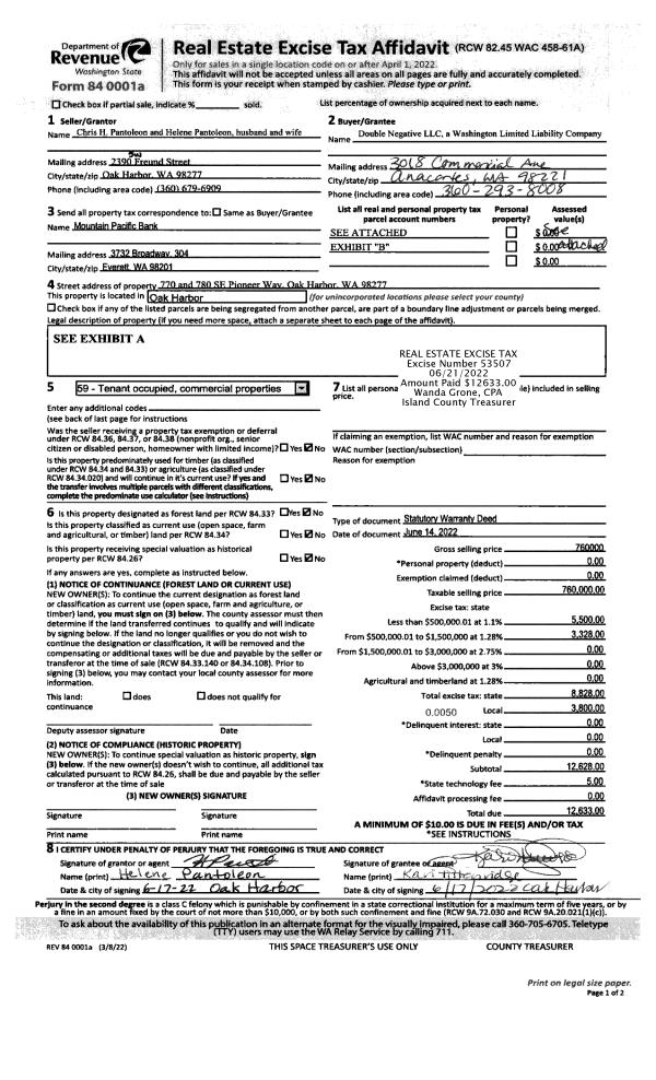
Property
Account |
| Property ID: | 803439 | Abbreviated Legal Description: | LOT 2 SP 302-00.33130.363-1530 V3 SP P374-6 AF#20035312 |
| Geographic ID: | R33130-348-1520 | Agent Code: | |
| Type: | Real | | |
| Tax Area: | 512 - APPRAISER-Stan/Cam Schl Dist, improved, greater than 1 acre | Land Use Code | 11 |
| Open Space: | N | DFL | N |
| Historic Property: | N | Remodel Property: | N |
| Multi-Family Redevelopment: | N | | |
| Township: | 31 | Section: | 30 |
| Range: | R3 |
Location |
| Address: | 93 E DRY LAKE RD CAMANO ISLAND, WA 98282 | Mapsco: | |
| Neighborhood: | Cycle 5 | Map ID: | 938 |
| Neighborhood CD: | 5 |
Owner |
| Name: | WHITE, LAWRENCE A | Owner ID: | 60491 |
| Mailing Address: | CHARLENE WHITE 93 E DRY LAKE RD CAMANO ISLAND, WA 98282-7641 | % Ownership: | 100.0000000000% |
| | | Exemptions: | |
Taxes and Assessment Details
Values
| (+) Improvement Homesite Value: | + | $0 | |
| (+) Improvement Non-Homesite Value: | + | $482,819 | |
| (+) Land Homesite Value: | + | $0 | |
| (+) Land Non-Homesite Value: | + | $300,000 | |
| (+) Curr Use (HS): | + | $0 | $0 |
| (+) Curr Use (NHS): | + | $0 | $0 |
| | | -------------------------- | |
| (=) Market Value: | = | $782,819 | |
| (–) Productivity Loss: | – | $0 | |
| | | -------------------------- | |
| (=) Subtotal: | = | $782,819 | |
| (+) Senior Appraised Value: | + | $0 | |
| (+) Non-Senior Appraised Value: | + | $782,819 | |
| | | -------------------------- | |
| (=) Total Appraised Value: | = | $782,819 | |
| (–) Senior Exemption Loss: | – | $0 | |
| (–) Exemption Loss: | – | $0 | |
| | | -------------------------- | |
| (=) Taxable Value: | = | $782,819 | |
Taxing Jurisdiction
| Owner: | WHITE, LAWRENCE A | | |
| % Ownership: | 100.0000000000% | | |
| Total Value: | $782,819 | | |
| Tax Area: | 512 - APPRAISER-Stan/Cam Schl Dist, improved, greater than 1 acre |
| CF | Conservation Futures | 0.0316035091 | $782,819 | $782,819 | $24.74 | | |
| EMS1 | Fire & Rescue Dist #1 Camano GEN (EMS) | 0.3677864386 | $782,819 | $782,819 | $287.91 | | |
| FIRE1 | Fire & Rescue Dist #1 Camano GEN | 1.2502910536 | $782,819 | $782,819 | $978.75 | | |
| FIRE1BOND | Fire & Rescue Dist #1 Camano BOND | 0.1570001679 | $782,819 | $782,819 | $122.90 | | |
| CE | County Current Expense | 0.3708482477 | $782,819 | $782,819 | $290.31 | | |
| CR | County Roads | 0.4584763726 | $782,819 | $782,819 | $358.90 | | |
| LCIB | Library Sno-Isle BOND (Camano Island) | 0.0396325772 | $782,819 | $782,819 | $31.03 | | |
| LIB | Library Sno-Isle GEN | 0.3153421757 | $782,819 | $782,819 | $246.86 | | |
| SCH205_401 | School 205-401 Enrichment | 1.2698420524 | $782,819 | $782,819 | $994.06 | | |
| SCH205BOND | School 205-401 BOND | 0.9396497583 | $782,819 | $782,819 | $735.58 | | |
| ST | State School | 1.3035497053 | $782,819 | $782,819 | $1,020.44 | | |
| ST2 | State School Part 2 | 0.8169543533 | $782,819 | $782,819 | $639.53 | | |
| | Total Tax Rate: | 7.3209764117 | | | | | |
| | | | | Taxes w/Current Exemptions: | $5,731.01 | | |
| | | | | Taxes w/o Exemptions: | $5,731.01 | | |
Improvement / Building
| Improvement #1: | RESIDENTIAL | State Code: | Y | 1870.5 sqft | Value: | $482,819 |
| Bathrooms: | 2 | Bedrooms: | 3 | | Ceiling: | DRYWALL PAINTED | Exterior Wall/Cover: | CEMENT FIBER | | Floor Covering: | HARDWOOD/CARP 20-80 | Floor Structure: | WOOD W/SUBFLOOR | | Foundation: | CONCRETE | Heating: | FHA GAS | | Interior Finish: | DRYWALL PAINT | Plumbing Fixture Cnt: | 12 | | Roof Slope: | 6" IN 12" | Roof Structure/Cover: | CJ ASPHALT |
|
| | Type | Description | Class CD | Sub Class CD | Year Built | Area |
| | BAS | BASE/MAIN FLOOR | 3 | 0 | 2002 | 1870.5 |
| | OP1 | OPEN PORCH SLAB | 3 | 0 | 2002 | 778.0 |
| | AGR | ATTACHED GARAGE | 3 | 0 | 2002 | 517.0 |
| | OWC | OPEN WOOD PORCH W/STEPS/ROOF/C | 3 | 0 | 2002 | 98.4 |
| | UTY | STORAGE/UTILITY | 3 | 0 | 2002 | 2880.0 |
| | UTY | STORAGE/UTILITY | 3 | 0 | 2002 | 864.0 |
Sketch
Property Image
Land
| 1 | 18 | AC (02.01-03.00) | 0.0000 | 0.00 | 0.00 | 0.00 | 1.00 | $300,000 | $0 |
Roll Value History
| 2026 | N/A | N/A | N/A | N/A | N/A |
| 2025 | $482,819 | $300,000 | $0 | $782,819 | $782,819 |
| 2024 | $488,484 | $280,000 | $0 | $768,484 | $768,484 |
| 2023 | $494,148 | $270,000 | $0 | $764,148 | $764,148 |
| 2022 | $452,581 | $260,000 | $0 | $712,581 | $712,581 |
| 2021 | $375,714 | $180,000 | $0 | $555,714 | $555,714 |
| 2020 | $365,854 | $150,000 | $0 | $515,854 | $515,854 |
| 2019 | $272,271 | $200,000 | $0 | $472,271 | $472,271 |
| 2018 | $273,060 | $150,000 | $0 | $423,060 | $423,060 |
| 2017 | $274,583 | $135,000 | $0 | $409,583 | $409,583 |
| 2016 | $277,738 | $100,000 | $0 | $377,738 | $377,738 |
| 2015 | $278,512 | $83,200 | $0 | $361,712 | $361,712 |
| 2014 | $280,653 | $83,200 | $0 | $363,853 | $363,853 |
| 2013 | $282,795 | $83,200 | $0 | $365,995 | $365,995 |
| 2012 | $284,936 | $83,200 | $0 | $368,136 | $368,136 |
| 2011 | $287,078 | $104,000 | $0 | $391,078 | $391,078 |
| 2010 | $297,458 | $104,000 | $0 | $401,458 | $401,458 |
| 2009 | $307,540 | $119,600 | $0 | $427,140 | $427,140 |
| 2008 | $312,248 | $130,000 | $0 | $442,248 | $442,248 |
| 2007 | $245,680 | $130,000 | $0 | $375,680 | $375,680 |
Deed and Sales History
| 1 | 08/22/2007 | WD | Warranty Deed | NEAL, JAMES M & MARY E | WHITE, LAWRENCE A | | | $435,000.00 | 72907 | 4210486 |
| 2 | 01/01/1900 | OTHER | Other - Misc. Documents | Unknown | NEAL, JAMES M & MARY E | | | $0.00 | 0 | 0 |
Payout Agreement
| No payout information available.. |