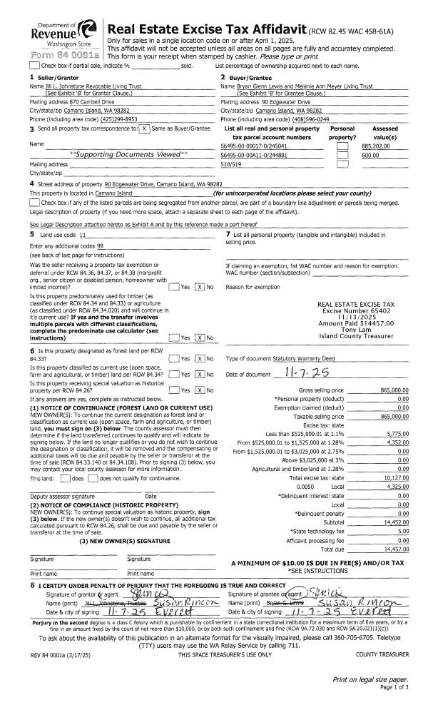
Property
Account |
| Property ID: | 803467 | Abbreviated Legal Description: | SPRING HOLLOW #1 LOT 3 |
| Geographic ID: | S8201-00-00003-0 | Agent Code: | |
| Type: | Real | | |
| Tax Area: | 100 - APPRAISER-OH Schl Dist, in OH | Land Use Code | 11 |
| Open Space: | N | DFL | N |
| Historic Property: | N | Remodel Property: | N |
| Multi-Family Redevelopment: | N | | |
| Township: | | Section: | |
| Range: | |
Location |
| Address: | 1129 NE CORDERO PLACE OAK HARBOR, WA 98277 | Mapsco: | |
| Neighborhood: | Cycle 1 | Map ID: | 258 |
| Neighborhood CD: | 1 |
Owner |
| Name: | ROMERO, KATHY JANELLE | Owner ID: | 317016 |
| Mailing Address: | CHRISTIAN PARDO 1129 NE CORDERO PL OAK HARBOR, WA 98277 | % Ownership: | 100.0000000000% |
| | | Exemptions: | |
Taxes and Assessment Details
Values
| (+) Improvement Homesite Value: | + | $0 | |
| (+) Improvement Non-Homesite Value: | + | $305,209 | |
| (+) Land Homesite Value: | + | $0 | |
| (+) Land Non-Homesite Value: | + | $170,000 | |
| (+) Curr Use (HS): | + | $0 | $0 |
| (+) Curr Use (NHS): | + | $0 | $0 |
| | | -------------------------- | |
| (=) Market Value: | = | $475,209 | |
| (–) Productivity Loss: | – | $0 | |
| | | -------------------------- | |
| (=) Subtotal: | = | $475,209 | |
| (+) Senior Appraised Value: | + | $0 | |
| (+) Non-Senior Appraised Value: | + | $475,209 | |
| | | -------------------------- | |
| (=) Total Appraised Value: | = | $475,209 | |
| (–) Senior Exemption Loss: | – | $0 | |
| (–) Exemption Loss: | – | $0 | |
| | | -------------------------- | |
| (=) Taxable Value: | = | $475,209 | |
Taxing Jurisdiction
| Owner: | ROMERO, KATHY JANELLE | | |
| % Ownership: | 100.0000000000% | | |
| Total Value: | $475,209 | | |
| Tax Area: | 100 - APPRAISER-OH Schl Dist, in OH |
| CF | Conservation Futures | 0.0316035091 | $475,209 | $475,209 | $15.02 | | |
| CEM1 | Cemetery #1 | 0.0040320932 | $475,209 | $475,209 | $1.92 | | |
| COH | City of Oak Harbor | 2.3001546061 | $475,209 | $475,209 | $1,093.05 | | |
| OAKBOND | City of Oak Harbor BOND | 0.1926904192 | $475,209 | $475,209 | $91.57 | | |
| HOBOND | Hospital BOND | 0.1910887512 | $475,209 | $475,209 | $90.81 | | |
| HOGEN | Hospital GEN | 0.3902502903 | $475,209 | $475,209 | $185.45 | | |
| CE | County Current Expense | 0.3708482477 | $475,209 | $475,209 | $176.23 | | |
| ISLANDEMS | Hospital GEN (EMS) | 0.5000000000 | $475,209 | $475,209 | $237.60 | | |
| LIB | Library Sno-Isle GEN | 0.3153421757 | $475,209 | $475,209 | $149.85 | | |
| NWHIDPRMT | P & R N Whidbey GEN | 0.2004466701 | $475,209 | $475,209 | $95.25 | | |
| SCH201MO | School 201 Enrichment | 1.8559231640 | $475,209 | $475,209 | $881.95 | | |
| ST | State School | 1.3035497053 | $475,209 | $475,209 | $619.46 | | |
| ST2 | State School Part 2 | 0.8169543533 | $475,209 | $475,209 | $388.22 | | |
| | Total Tax Rate: | 8.4728839852 | | | | | |
| | | | | Taxes w/Current Exemptions: | $4,026.38 | | |
| | | | | Taxes w/o Exemptions: | $4,026.38 | | |
Improvement / Building
| Improvement #1: | RESIDENTIAL | State Code: | Y | 1689.0 sqft | Value: | $305,209 |
| Bathrooms: | 2.5 | Bedrooms: | 4 | | Ceiling: | DRYWALL PAINTED | Exterior Wall/Cover: | PLY/HARDBOARD T-111 | | Floor Covering: | CARPET/VINYL 80-20 | Floor Structure: | WOOD W/SUBFLOOR | | Foundation: | CONCRETE | Heating: | FHA GAS | | Interior Finish: | DRYWALL PAINT | Plumbing Fixture Cnt: | 11 | | Roof Slope: | 5" IN 12" | Roof Structure/Cover: | CJ ASPHALT |
|
| | Type | Description | Class CD | Sub Class CD | Year Built | Area |
| | BAS | BASE/MAIN FLOOR | 3 | 0 | 2002 | 836.8 |
| | AGR | ATTACHED GARAGE | 3 | 0 | 2002 | 469.8 |
| | UPS | UPPER STORY | 3 | 0 | 2002 | 852.2 |
| | OWC | OPEN WOOD PORCH W/STEPS/ROOF/C | 3 | 0 | 2002 | 12.0 |
Sketch
Property Image
Land
| 1 | 12 | SQ (00000-06000) | 0.0000 | 0.00 | 0.00 | 0.00 | 1.00 | $170,000 | $0 |
Roll Value History
| 2026 | N/A | N/A | N/A | N/A | N/A |
| 2025 | $305,209 | $170,000 | $0 | $475,209 | $475,209 |
| 2024 | $308,789 | $160,000 | $0 | $468,789 | $468,789 |
| 2023 | $288,501 | $160,000 | $0 | $448,501 | $448,501 |
| 2022 | $264,298 | $150,000 | $0 | $414,298 | $414,298 |
| 2021 | $232,493 | $115,000 | $0 | $347,493 | $347,493 |
| 2020 | $226,214 | $100,000 | $0 | $326,214 | $326,214 |
| 2019 | $164,625 | $150,000 | $0 | $314,625 | $314,625 |
| 2018 | $165,086 | $125,000 | $0 | $290,086 | $290,086 |
| 2017 | $164,335 | $110,000 | $0 | $274,335 | $274,335 |
| 2016 | $166,161 | $90,000 | $0 | $256,161 | $256,161 |
| 2015 | $159,688 | $35,000 | $0 | $194,688 | $194,688 |
| 2014 | $161,463 | $35,000 | $0 | $196,463 | $196,463 |
| 2013 | $163,236 | $35,000 | $0 | $198,236 | $198,236 |
| 2012 | $165,011 | $35,000 | $0 | $200,011 | $200,011 |
| 2011 | $162,993 | $35,000 | $0 | $197,993 | $197,993 |
| 2010 | $169,258 | $35,000 | $0 | $204,258 | $204,258 |
| 2009 | $174,499 | $56,440 | $0 | $230,939 | $230,939 |
| 2008 | $176,383 | $68,000 | $0 | $244,383 | $244,383 |
| 2007 | $180,112 | $68,000 | $0 | $248,112 | $248,112 |
Deed and Sales History
| 1 | 05/08/2025 | WD | Warranty Deed | DIRIG, DANIEL JOSEPH | ROMERO, KATHY JANELLE | | | $457,500.00 | 63874 | 4587228 |
| 2 | 03/15/2017 | QCD | Quit Claim Deed | DIRIG, DANIEL J | DIRIG, DANIEL JOSEPH | | | $0.00 | 28523 | 4419251 |
| 3 | 05/26/2015 | WD | Warranty Deed | EBANKS, WYBERT E | DIRIG, DANIEL J | | | $234,500.00 | 19838 | 4379502 |
| 4 | 05/24/2002 | WD | Warranty Deed | DANIFF LLC, | EBANK, WYBERT E | | | $157,060.00 | 22047 | 4021489 |
| 5 | 01/01/1900 | OTHER | Other - Misc. Documents | Unknown | DANIFF LLC, | | | $0.00 | 0 | 0 |
Payout Agreement
| No payout information available.. |