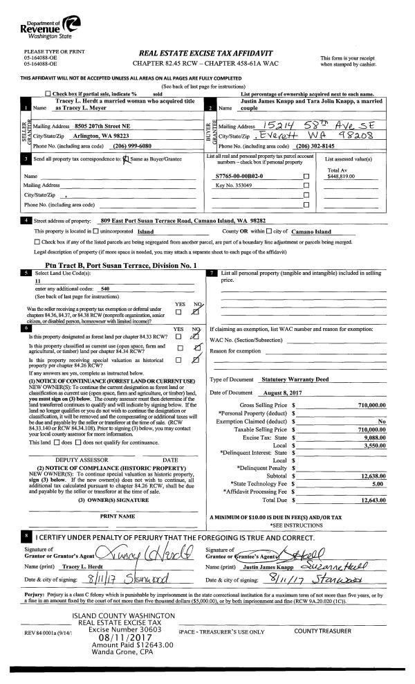
Property
Account |
| Property ID: | 803477 | Abbreviated Legal Description: | SPRING HOLLOW #1 LOT 15 |
| Geographic ID: | S8201-00-00015-0 | Agent Code: | |
| Type: | Real | | |
| Tax Area: | 100 - APPRAISER-OH Schl Dist, in OH | Land Use Code | 11 |
| Open Space: | N | DFL | N |
| Historic Property: | N | Remodel Property: | N |
| Multi-Family Redevelopment: | N | | |
| Township: | | Section: | |
| Range: | |
Location |
| Address: | 1153 NE CORDERO PLACE OAK HARBOR, WA 98277 | Mapsco: | |
| Neighborhood: | Cycle 1 | Map ID: | 258 |
| Neighborhood CD: | 1 |
Owner |
| Name: | O'NEAL, DENZAL OZAKI | Owner ID: | 291062 |
| Mailing Address: | 1153 NE CORDERO PL OAK HARBOR, WA 98277 | % Ownership: | 100.0000000000% |
| | | Exemptions: | |
Taxes and Assessment Details
Values
| (+) Improvement Homesite Value: | + | $0 | |
| (+) Improvement Non-Homesite Value: | + | $232,856 | |
| (+) Land Homesite Value: | + | $0 | |
| (+) Land Non-Homesite Value: | + | $170,000 | |
| (+) Curr Use (HS): | + | $0 | $0 |
| (+) Curr Use (NHS): | + | $0 | $0 |
| | | -------------------------- | |
| (=) Market Value: | = | $402,856 | |
| (–) Productivity Loss: | – | $0 | |
| | | -------------------------- | |
| (=) Subtotal: | = | $402,856 | |
| (+) Senior Appraised Value: | + | $0 | |
| (+) Non-Senior Appraised Value: | + | $402,856 | |
| | | -------------------------- | |
| (=) Total Appraised Value: | = | $402,856 | |
| (–) Senior Exemption Loss: | – | $0 | |
| (–) Exemption Loss: | – | $0 | |
| | | -------------------------- | |
| (=) Taxable Value: | = | $402,856 | |
Taxing Jurisdiction
| Owner: | O'NEAL, DENZAL OZAKI | | |
| % Ownership: | 100.0000000000% | | |
| Total Value: | $402,856 | | |
| Tax Area: | 100 - APPRAISER-OH Schl Dist, in OH |
| CF | Conservation Futures | 0.0316035091 | $402,856 | $402,856 | $12.73 | | |
| CEM1 | Cemetery #1 | 0.0040320932 | $402,856 | $402,856 | $1.62 | | |
| COH | City of Oak Harbor | 2.3001546061 | $402,856 | $402,856 | $926.63 | | |
| OAKBOND | City of Oak Harbor BOND | 0.1926904192 | $402,856 | $402,856 | $77.63 | | |
| HOBOND | Hospital BOND | 0.1910887512 | $402,856 | $402,856 | $76.98 | | |
| HOGEN | Hospital GEN | 0.3902502903 | $402,856 | $402,856 | $157.21 | | |
| CE | County Current Expense | 0.3708482477 | $402,856 | $402,856 | $149.40 | | |
| ISLANDEMS | Hospital GEN (EMS) | 0.5000000000 | $402,856 | $402,856 | $201.43 | | |
| LIB | Library Sno-Isle GEN | 0.3153421757 | $402,856 | $402,856 | $127.04 | | |
| NWHIDPRMT | P & R N Whidbey GEN | 0.2004466701 | $402,856 | $402,856 | $80.75 | | |
| SCH201MO | School 201 Enrichment | 1.8559231640 | $402,856 | $402,856 | $747.67 | | |
| ST | State School | 1.3035497053 | $402,856 | $402,856 | $525.14 | | |
| ST2 | State School Part 2 | 0.8169543533 | $402,856 | $402,856 | $329.11 | | |
| | Total Tax Rate: | 8.4728839852 | | | | | |
| | | | | Taxes w/Current Exemptions: | $3,413.34 | | |
| | | | | Taxes w/o Exemptions: | $3,413.34 | | |
Improvement / Building
| Improvement #1: | RESIDENTIAL | State Code: | Y | 1072.2 sqft | Value: | $232,856 |
| Bathrooms: | 2 | Bedrooms: | 3 | | Ceiling: | DRYWALL PAINTED | Exterior Wall/Cover: | PLY/HARDBOARD T-111 | | Floor Covering: | CARPET/VINYL 80-20 | Floor Structure: | WOOD W/SUBFLOOR | | Foundation: | CONCRETE | Heating: | FHA GAS | | Interior Finish: | DRYWALL PAINT | Plumbing Fixture Cnt: | 9 | | Roof Slope: | 6" IN 12" | Roof Structure/Cover: | CJ ASPHALT |
|
| | Type | Description | Class CD | Sub Class CD | Year Built | Area |
| | BAS | BASE/MAIN FLOOR | 3 | 0 | 2002 | 1072.2 |
| | OP1 | OPEN PORCH SLAB | 3 | 0 | 2002 | 300.3 |
| | AGR | ATTACHED GARAGE | 3 | 0 | 2002 | 413.9 |
| | OWC | OPEN WOOD PORCH W/STEPS/ROOF/C | 3 | 0 | 2002 | 11.4 |
| | OP4 | OPEN PORCH W/CEILING-ROOF | 3 | 0 | 2002 | 78.9 |
Sketch
Property Image
Land
| 1 | 12 | SQ (00000-06000) | 0.0000 | 0.00 | 0.00 | 0.00 | 1.00 | $170,000 | $0 |
Roll Value History
| 2026 | N/A | N/A | N/A | N/A | N/A |
| 2025 | $232,856 | $170,000 | $0 | $402,856 | $402,856 |
| 2024 | $235,557 | $160,000 | $0 | $395,557 | $395,557 |
| 2023 | $227,045 | $160,000 | $0 | $387,045 | $387,045 |
| 2022 | $208,006 | $150,000 | $0 | $358,006 | $358,006 |
| 2021 | $182,967 | $115,000 | $0 | $297,967 | $297,967 |
| 2020 | $177,676 | $100,000 | $0 | $277,676 | $277,676 |
| 2019 | $125,222 | $150,000 | $0 | $275,222 | $275,222 |
| 2018 | $125,573 | $125,000 | $0 | $250,573 | $250,573 |
| 2017 | $127,779 | $110,000 | $0 | $237,779 | $237,779 |
| 2016 | $129,200 | $90,000 | $0 | $219,200 | $219,200 |
| 2015 | $124,154 | $35,000 | $0 | $159,154 | $159,154 |
| 2014 | $125,533 | $35,000 | $0 | $160,533 | $160,533 |
| 2013 | $126,912 | $35,000 | $0 | $161,912 | $161,912 |
| 2012 | $128,291 | $35,000 | $0 | $163,291 | $163,291 |
| 2011 | $126,247 | $35,000 | $0 | $161,247 | $161,247 |
| 2010 | $128,551 | $35,000 | $0 | $163,551 | $163,551 |
| 2009 | $132,596 | $56,440 | $0 | $189,036 | $189,036 |
| 2008 | $134,104 | $68,000 | $0 | $202,104 | $202,104 |
| 2007 | $136,991 | $68,000 | $0 | $204,991 | $204,991 |
Deed and Sales History
| 1 | 07/25/2019 | WD | Warranty Deed | CALILUNG, GLENN ANG | O'NEAL, DENZAL OZAKI | | | $277,000.00 | 39566 | 4468037 |
| 2 | 07/15/2017 | QCD | Quit Claim Deed | CALILUNG, GLENN ANG | CALILUNG, GLENN ANG | | | $0.00 | 30205 | 4426349 |
| 3 | 09/15/2015 | WD | Warranty Deed | CALILUNG, GLENN ANG | CALILUNG, GLENN ANG | | | $0.00 | 22441 | 4390854 |
| 4 | 09/15/2015 | WD | Warranty Deed | WINTER, CHARLES T | CALILUNG, GLENN ANG | | | $195,000.00 | 21744 | 4387776 |
| 5 | 11/21/2012 | WD | Warranty Deed | HALANES, ALEX H | WINTER, CHARLES T | | | $145,000.00 | 9730 | 4329067 |
| 6 | 10/10/2005 | ESTSEPPROP | Establish Separate Property | HALANES, ALEX H | HALANES, ALEX H | | | $0.00 | 55508 | 4152788 |
| 7 | 10/11/2005 | WD | Warranty Deed | HEMMY, DAVIDA SARA | HALANES, ALEX H | | | $210,000.00 | 55507 | 4152787 |
| 8 | 01/30/2002 | WD | Warranty Deed | DANIFF LLC, | HEMMY, DAVIDA SARA | | | $136,900.00 | 20406 | 4010149 |
| 9 | 01/01/1900 | OTHER | Other - Misc. Documents | Unknown | DANIFF LLC, | | | $0.00 | 0 | 0 |
Payout Agreement
| No payout information available.. |