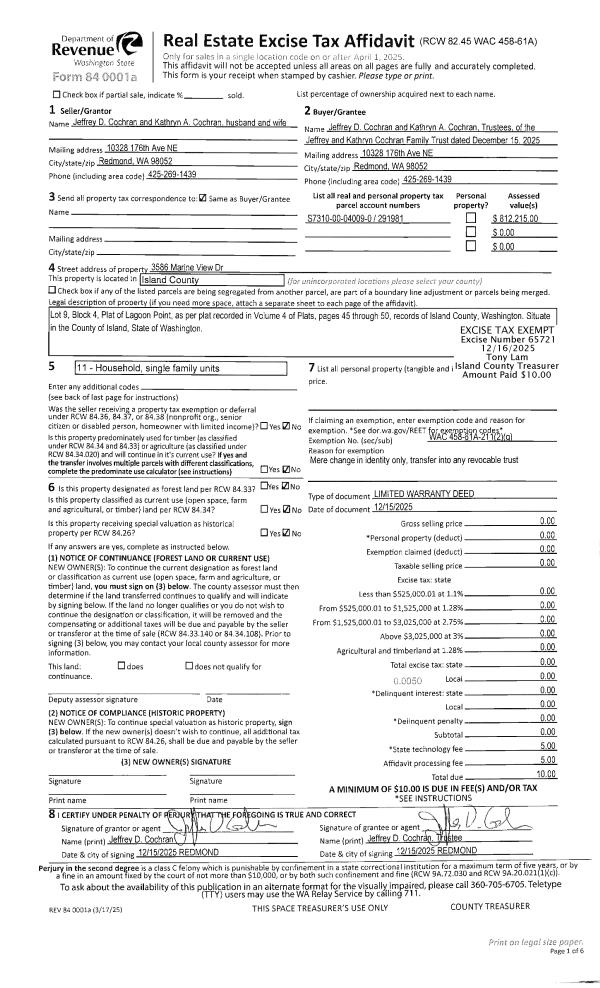
Property
Account |
| Property ID: | 803494 | Abbreviated Legal Description: | LOVEJOY RIDGE LOT 5 |
| Geographic ID: | S7413-00-00005-0 | Agent Code: | |
| Type: | Real | | |
| Tax Area: | 300 - APPRAISER-Cpvl Schl Dist, in Cpvl | Land Use Code | 11 |
| Open Space: | N | DFL | N |
| Historic Property: | N | Remodel Property: | N |
| Multi-Family Redevelopment: | N | | |
| Township: | | Section: | |
| Range: | |
Location |
| Address: | 1005 NE LEACH ST COUPEVILLE, WA 98239 | Mapsco: | |
| Neighborhood: | Cycle 2 | Map ID: | 179 |
| Neighborhood CD: | 2 |
Owner |
| Name: | NEAL III, THOMAS E | Owner ID: | 274566 |
| Mailing Address: | JEAN M NEAL PO BOX 695 COUPEVILLE, WA 98239-0695 | % Ownership: | 100.0000000000% |
| | | Exemptions: | |
Taxes and Assessment Details
Values
| (+) Improvement Homesite Value: | + | $0 | |
| (+) Improvement Non-Homesite Value: | + | $570,945 | |
| (+) Land Homesite Value: | + | $0 | |
| (+) Land Non-Homesite Value: | + | $420,000 | |
| (+) Curr Use (HS): | + | $0 | $0 |
| (+) Curr Use (NHS): | + | $0 | $0 |
| | | -------------------------- | |
| (=) Market Value: | = | $990,945 | |
| (–) Productivity Loss: | – | $0 | |
| | | -------------------------- | |
| (=) Subtotal: | = | $990,945 | |
| (+) Senior Appraised Value: | + | $0 | |
| (+) Non-Senior Appraised Value: | + | $990,945 | |
| | | -------------------------- | |
| (=) Total Appraised Value: | = | $990,945 | |
| (–) Senior Exemption Loss: | – | $0 | |
| (–) Exemption Loss: | – | $0 | |
| | | -------------------------- | |
| (=) Taxable Value: | = | $990,945 | |
Taxing Jurisdiction
| Owner: | NEAL III, THOMAS E | | |
| % Ownership: | 100.0000000000% | | |
| Total Value: | $990,945 | | |
| Tax Area: | 300 - APPRAISER-Cpvl Schl Dist, in Cpvl |
| CF | Conservation Futures | 0.0316035091 | $990,945 | $990,945 | $31.32 | | |
| CEM2 | Cemetery #2 | 0.0095056933 | $990,945 | $990,945 | $9.42 | | |
| COUP | City: Town of Coupeville | 0.8426414490 | $990,945 | $990,945 | $835.01 | | |
| FIRE5 | Fire & Rescue Dist #5 C Whidbey GEN | 1.2008080668 | $990,945 | $990,945 | $1,189.93 | | |
| FIRE5BOND | Fire & Rescue Dist #5 C Whidbey BOND | 0.1400090713 | $990,945 | $990,945 | $138.74 | | |
| HOBOND | Hospital BOND | 0.1910887512 | $990,945 | $990,945 | $189.36 | | |
| HOGEN | Hospital GEN | 0.3902502903 | $990,945 | $990,945 | $386.72 | | |
| CE | County Current Expense | 0.3708482477 | $990,945 | $990,945 | $367.49 | | |
| ISLANDEMS | Hospital GEN (EMS) | 0.5000000000 | $990,945 | $990,945 | $495.47 | | |
| LIB | Library Sno-Isle GEN | 0.3153421757 | $990,945 | $990,945 | $312.49 | | |
| LIBCAP | Library Sno-Isle BOND (Cap Fac Imp Area) | 0.0543427938 | $990,945 | $990,945 | $53.85 | | |
| POCOUP | Port of Coupeville GEN | 0.1093371703 | $990,945 | $990,945 | $108.35 | | |
| POCOUPIDD | Port of Coupeville IDD | 0.3409740022 | $990,945 | $990,945 | $337.89 | | |
| COUPSDTECH | School 204 CP (TECH) | 0.7545480007 | $990,945 | $990,945 | $747.72 | | |
| SCH204MO | School 204 Enrichment | 0.6716186034 | $990,945 | $990,945 | $665.54 | | |
| ST | State School | 1.3035497053 | $990,945 | $990,945 | $1,291.75 | | |
| ST2 | State School Part 2 | 0.8169543533 | $990,945 | $990,945 | $809.56 | | |
| | Total Tax Rate: | 8.0434218834 | | | | | |
| | | | | Taxes w/Current Exemptions: | $7,970.61 | | |
| | | | | Taxes w/o Exemptions: | $7,970.61 | | |
Improvement / Building
| Improvement #1: | RESIDENTIAL | State Code: | Y | 2213.0 sqft | Value: | $570,945 |
| Bathrooms: | 2.5 | Bedrooms: | 3 | | Ceiling: | DRYWALL PAINTED | Cooling: | HEAT PUMP/CONV/V | | Exterior Wall/Cover: | CEMENT FIBER | Floor Covering: | HARDWOOD 100% | | Floor Structure: | WOOD W/SUBFLOOR | Foundation: | CONCRETE | | Interior Finish: | DRYWALL PAINT | Plumbing Fixture Cnt: | 14 | | Roof Slope: | 5" IN 12" | Roof Structure/Cover: | CJ ASPHALT |
|
| | Type | Description | Class CD | Sub Class CD | Year Built | Area |
| | BAS | BASE/MAIN FLOOR | 4 | 0 | 2017 | 2213.0 |
| | AGR | ATTACHED GARAGE | 4 | 0 | 2017 | 624.0 |
| | OWC | OPEN WOOD PORCH W/STEPS/ROOF/C | 4 | 0 | 2017 | 340.0 |
| | OP4 | OPEN PORCH W/CEILING-ROOF | 4 | 0 | 2017 | 100.0 |
| | OWC | OPEN WOOD PORCH W/STEPS/ROOF/C | 4 | 0 | 2017 | 128.0 |
Sketch
Property Image
Land
| 1 | 16 | AC (00.51-01.00) | 0.5300 | 23086.80 | 0.00 | 0.00 | 1.00 | $420,000 | $0 |
Roll Value History
| 2026 | N/A | N/A | N/A | N/A | N/A |
| 2025 | $570,945 | $420,000 | $0 | $990,945 | $990,945 |
| 2024 | $570,945 | $400,000 | $0 | $970,945 | $970,945 |
| 2023 | $575,587 | $400,000 | $0 | $975,587 | $975,587 |
| 2022 | $525,402 | $400,000 | $0 | $925,402 | $925,402 |
| 2021 | $460,543 | $340,000 | $0 | $800,543 | $800,543 |
| 2020 | $446,776 | $300,000 | $0 | $746,776 | $746,776 |
| 2019 | $340,324 | $300,000 | $0 | $640,324 | $640,324 |
| 2018 | $316,806 | $230,000 | $0 | $546,806 | $546,806 |
| 2017 | $193,162 | $230,000 | $0 | $423,162 | $423,162 |
| 2016 | $0 | $200,000 | $0 | $200,000 | $200,000 |
| 2015 | $0 | $75,000 | $0 | $75,000 | $75,000 |
| 2014 | $0 | $75,000 | $0 | $75,000 | $75,000 |
| 2013 | $0 | $75,000 | $0 | $75,000 | $75,000 |
| 2012 | $0 | $70,000 | $0 | $70,000 | $70,000 |
| 2011 | $0 | $107,000 | $0 | $107,000 | $107,000 |
| 2010 | $0 | $107,000 | $0 | $107,000 | $107,000 |
| 2009 | $0 | $125,000 | $0 | $125,000 | $125,000 |
| 2008 | $0 | $145,000 | $0 | $145,000 | $145,000 |
| 2007 | $0 | $145,000 | $0 | $145,000 | $145,000 |
Deed and Sales History
| 1 | 04/19/2016 | WD | Warranty Deed | WINKLER, GARY R | NEAL III, THOMAS E | | | $235,000.00 | 24044 | 4398325 |
| 2 | 06/07/2002 | WD | Warranty Deed | MCFADYEN, ROBERT G/CARMEN | WINKLER, GARY R | | | $107,500.00 | 22265 | 4022961 |
| 3 | 01/01/1900 | OTHER | Other - Misc. Documents | Unknown | MCFADYEN, ROBERT G/CARMEN | | | $0.00 | 0 | 0 |
Payout Agreement
| No payout information available.. |