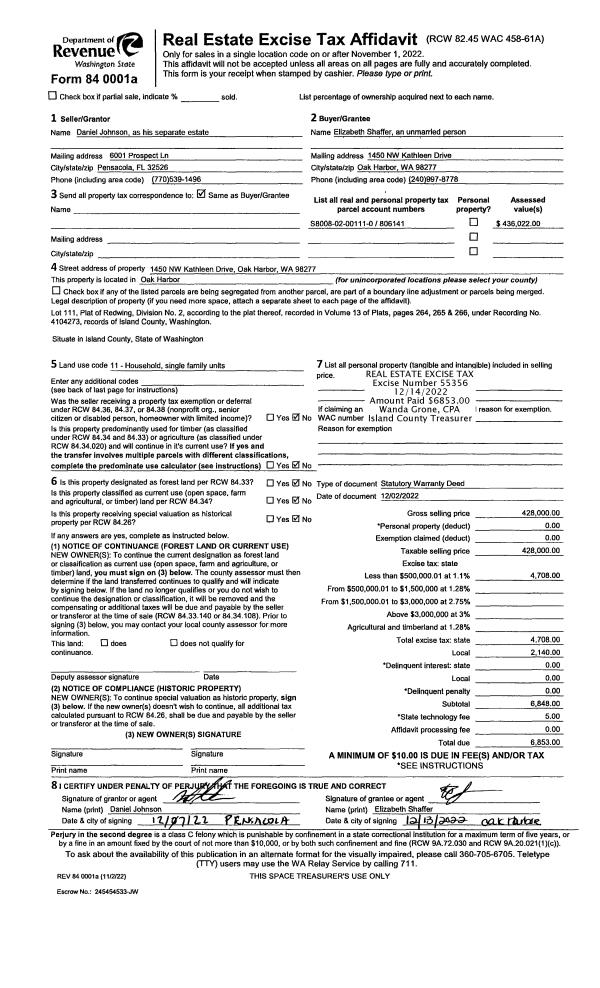
Property
Account |
| Property ID: | 803547 | Abbreviated Legal Description: | LANGLEY'S WOODSIDE LOT 11 |
| Geographic ID: | S7349-00-00011-0 | Agent Code: | |
| Type: | Real | | |
| Tax Area: | 700 - APPRAISER-S Whid Schl Dist, in town of Langley | Land Use Code | 11 |
| Open Space: | N | DFL | N |
| Historic Property: | N | Remodel Property: | N |
| Multi-Family Redevelopment: | N | | |
| Township: | | Section: | |
| Range: | |
Location |
| Address: | 1089 WOODSIDE LN LANGLEY, WA 98260 | Mapsco: | |
| Neighborhood: | City of Langley | Map ID: | 720 |
| Neighborhood CD: | 04-L |
Owner |
| Name: | JOHNSON, MICHAEL E | Owner ID: | 191691 |
| Mailing Address: | CHRISTINE JOHNSON 1089 WOODSIDE LN LANGLEY, WA 98260-8613 | % Ownership: | 100.0000000000% |
| | | Exemptions: | |
Taxes and Assessment Details
Values
| (+) Improvement Homesite Value: | + | $0 | |
| (+) Improvement Non-Homesite Value: | + | $617,119 | |
| (+) Land Homesite Value: | + | $0 | |
| (+) Land Non-Homesite Value: | + | $280,000 | |
| (+) Curr Use (HS): | + | $0 | $0 |
| (+) Curr Use (NHS): | + | $0 | $0 |
| | | -------------------------- | |
| (=) Market Value: | = | $897,119 | |
| (–) Productivity Loss: | – | $0 | |
| | | -------------------------- | |
| (=) Subtotal: | = | $897,119 | |
| (+) Senior Appraised Value: | + | $0 | |
| (+) Non-Senior Appraised Value: | + | $897,119 | |
| | | -------------------------- | |
| (=) Total Appraised Value: | = | $897,119 | |
| (–) Senior Exemption Loss: | – | $0 | |
| (–) Exemption Loss: | – | $0 | |
| | | -------------------------- | |
| (=) Taxable Value: | = | $897,119 | |
Taxing Jurisdiction
| Owner: | JOHNSON, MICHAEL E | | |
| % Ownership: | 100.0000000000% | | |
| Total Value: | $897,119 | | |
| Tax Area: | 700 - APPRAISER-S Whid Schl Dist, in town of Langley |
| CF | Conservation Futures | 0.0316035091 | $897,119 | $897,119 | $28.35 | | |
| LANG | City of Langley | 1.0093520762 | $897,119 | $897,119 | $905.51 | | |
| LANGBOND | City of Langley BOND | 1.0326110892 | $897,119 | $897,119 | $926.38 | | |
| FIRE3 | Fire & Rescue Dist #3 S Whidbey GEN | 1.2004855531 | $897,119 | $897,119 | $1,076.98 | | |
| HOBOND | Hospital BOND | 0.1910887512 | $897,119 | $897,119 | $171.43 | | |
| HOGEN | Hospital GEN | 0.3902502903 | $897,119 | $897,119 | $350.10 | | |
| CE | County Current Expense | 0.3708482477 | $897,119 | $897,119 | $332.70 | | |
| ISLANDEMS | Hospital GEN (EMS) | 0.5000000000 | $897,119 | $897,119 | $448.56 | | |
| LIB | Library Sno-Isle GEN | 0.3153421757 | $897,119 | $897,119 | $282.90 | | |
| PORTWHID | Port of S Whidbey GEN | 0.1094540357 | $897,119 | $897,119 | $98.19 | | |
| SCH206BOND | School 206 BOND | 0.3161759235 | $897,119 | $897,119 | $283.65 | | |
| SCH206MO | School 206 Enrichment | 0.4547169547 | $897,119 | $897,119 | $407.94 | | |
| ST | State School | 1.3035497053 | $897,119 | $897,119 | $1,169.44 | | |
| ST2 | State School Part 2 | 0.8169543533 | $897,119 | $897,119 | $732.91 | | |
| SWHIDPRBD | P & R S Whidbey BOND | 0.0152817568 | $897,119 | $897,119 | $13.71 | | |
| SWHIDPRBD2 | P & R S Whidbey BOND2 | 0.0138911264 | $897,119 | $897,119 | $12.46 | | |
| SWHIDPRMT | P & R S Whidbey GEN | 0.2053334452 | $897,119 | $897,119 | $184.21 | | |
| | Total Tax Rate: | 8.2769389934 | | | | | |
| | | | | Taxes w/Current Exemptions: | $7,425.42 | | |
| | | | | Taxes w/o Exemptions: | $7,425.42 | | |
Improvement / Building
| Improvement #1: | RESIDENTIAL | State Code: | Y | 2616.0 sqft | Value: | $617,119 |
| Bathrooms: | 2.5 | Bedrooms: | 3 | | Ceiling: | DRYWALL PAINTED | Exterior Wall/Cover: | WOOD SIDING | | Floor Covering: | HARDWOOD/CARP 20-80 | Floor Structure: | WOOD W/SUBFLOOR | | Foundation: | CONCRETE | Heating: | FHA GAS | | Interior Finish: | DRYWALL PAINT | Plumbing Fixture Cnt: | 15 | | Roof Slope: | 6" IN 12" | Roof Structure/Cover: | CJ ASPHALT |
|
| | Type | Description | Class CD | Sub Class CD | Year Built | Area |
| | BAS | BASE/MAIN FLOOR | 4 | 0 | 2004 | 1551.0 |
| | OP1 | OPEN PORCH SLAB | 4 | 0 | 2004 | 261.0 |
| | OP1 | OPEN PORCH SLAB | 4 | 0 | 2004 | 258.0 |
| | OP3 | OPEN PORCH W/ROOF | 4 | 0 | 2004 | 52.0 |
| | AGR | ATTACHED GARAGE | 4 | 0 | 2004 | 706.0 |
| | BIG | BUILT IN GARAGE | 4 | 0 | 2004 | 576.0 |
| | UPS | UPPER STORY | 4 | 0 | 2004 | 1065.0 |
| | OWC | OPEN WOOD PORCH W/STEPS/ROOF/C | 4 | 0 | 2004 | 283.0 |
Sketch
Property Image
Land
| 1 | 15 | SQ (12001-21780) | 0.0000 | 0.00 | 0.00 | 0.00 | 1.00 | $280,000 | $0 |
Roll Value History
| 2026 | N/A | N/A | N/A | N/A | N/A |
| 2025 | $617,119 | $280,000 | $0 | $897,119 | $897,119 |
| 2024 | $624,191 | $280,000 | $0 | $904,191 | $904,191 |
| 2023 | $631,264 | $280,000 | $0 | $911,264 | $911,264 |
| 2022 | $576,417 | $210,000 | $0 | $786,417 | $786,417 |
| 2021 | $505,681 | $180,000 | $0 | $685,681 | $685,681 |
| 2020 | $473,554 | $180,000 | $0 | $653,554 | $653,554 |
| 2019 | $357,564 | $230,000 | $0 | $587,564 | $587,564 |
| 2018 | $358,566 | $210,000 | $0 | $568,566 | $568,566 |
| 2017 | $359,075 | $200,000 | $0 | $559,075 | $559,075 |
| 2016 | $363,066 | $130,000 | $0 | $493,066 | $493,066 |
| 2015 | $367,054 | $130,000 | $0 | $497,054 | $497,054 |
| 2014 | $369,053 | $135,000 | $0 | $504,053 | $504,053 |
| 2013 | $373,082 | $135,000 | $0 | $508,082 | $508,082 |
| 2012 | $377,110 | $148,500 | $0 | $525,610 | $525,610 |
| 2011 | $381,138 | $165,000 | $0 | $546,138 | $546,138 |
| 2010 | $391,106 | $165,000 | $0 | $556,106 | $556,106 |
| 2009 | $411,520 | $165,000 | $0 | $576,520 | $576,520 |
| 2008 | $361,007 | $145,000 | $0 | $506,007 | $506,007 |
| 2007 | $364,857 | $145,000 | $0 | $509,857 | $509,857 |
Deed and Sales History
| 1 | 07/27/2005 | WD | Warranty Deed | BOLDING, DANIELLE | JOHNSON, MICHAEL E | | | $469,000.00 | 53641 | 4142400 |
| 2 | 12/09/2003 | WD | Warranty Deed | WEIMER, WAYNE C & JENNIFER | BOLDING, DANIELLE | | | $89,700.00 | 35581 | 4085858 |
| 3 | 01/01/1900 | OTHER | Other - Misc. Documents | Unknown | WEIMER, WAYNE C & JENNIFER | | | $0.00 | 0 | 0 |
Payout Agreement
| No payout information available.. |