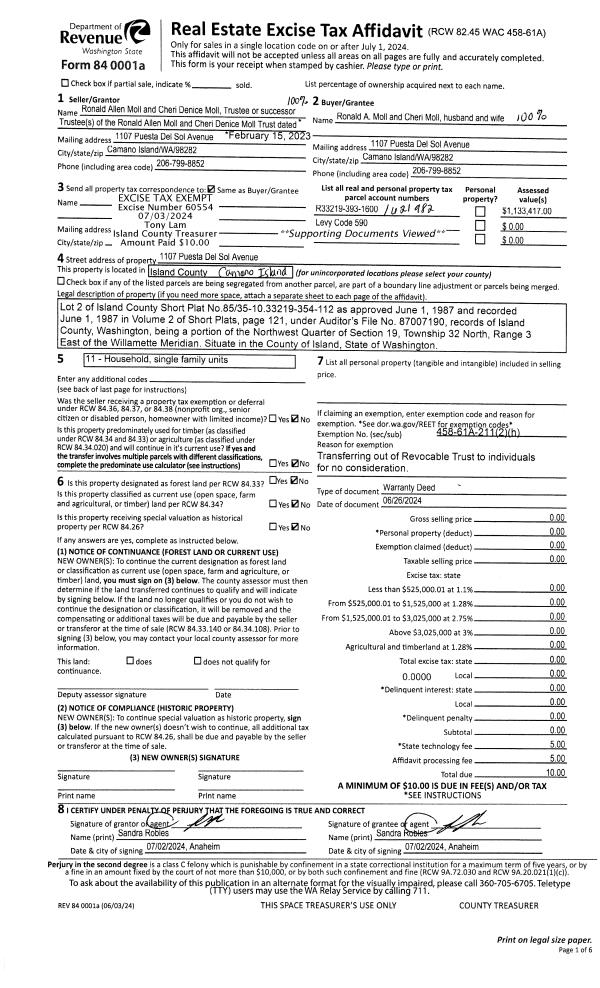
Property
Account |
| Property ID: | 803560 | Abbreviated Legal Description: | CHERRY HILL #2 LOT 19 |
| Geographic ID: | S6368-02-00019-0 | Agent Code: | |
| Type: | Real | | |
| Tax Area: | 100 - APPRAISER-OH Schl Dist, in OH | Land Use Code | 11 |
| Open Space: | N | DFL | N |
| Historic Property: | N | Remodel Property: | N |
| Multi-Family Redevelopment: | N | | |
| Township: | | Section: | |
| Range: | |
Location |
| Address: | 149 NW CHERRY HILL LOOP OAK HARBOR, WA 98277 | Mapsco: | |
| Neighborhood: | Cycle 1 | Map ID: | 255 |
| Neighborhood CD: | 1 |
Owner |
| Name: | JACKSON III, JOHN B | Owner ID: | 301180 |
| Mailing Address: | KATHRYN MCKEEVER 149 CHERRY HILL LP OAK HARBOR, WA 98277 | % Ownership: | 100.0000000000% |
| | | Exemptions: | |
Taxes and Assessment Details
Values
| (+) Improvement Homesite Value: | + | $0 | |
| (+) Improvement Non-Homesite Value: | + | $289,847 | |
| (+) Land Homesite Value: | + | $0 | |
| (+) Land Non-Homesite Value: | + | $195,000 | |
| (+) Curr Use (HS): | + | $0 | $0 |
| (+) Curr Use (NHS): | + | $0 | $0 |
| | | -------------------------- | |
| (=) Market Value: | = | $484,847 | |
| (–) Productivity Loss: | – | $0 | |
| | | -------------------------- | |
| (=) Subtotal: | = | $484,847 | |
| (+) Senior Appraised Value: | + | $0 | |
| (+) Non-Senior Appraised Value: | + | $484,847 | |
| | | -------------------------- | |
| (=) Total Appraised Value: | = | $484,847 | |
| (–) Senior Exemption Loss: | – | $0 | |
| (–) Exemption Loss: | – | $0 | |
| | | -------------------------- | |
| (=) Taxable Value: | = | $484,847 | |
Taxing Jurisdiction
| Owner: | JACKSON III, JOHN B | | |
| % Ownership: | 100.0000000000% | | |
| Total Value: | $484,847 | | |
| Tax Area: | 100 - APPRAISER-OH Schl Dist, in OH |
| CF | Conservation Futures | 0.0316035091 | $484,847 | $484,847 | $15.32 | | |
| CEM1 | Cemetery #1 | 0.0040320932 | $484,847 | $484,847 | $1.95 | | |
| COH | City of Oak Harbor | 2.3001546061 | $484,847 | $484,847 | $1,115.22 | | |
| OAKBOND | City of Oak Harbor BOND | 0.1926904192 | $484,847 | $484,847 | $93.43 | | |
| HOBOND | Hospital BOND | 0.1910887512 | $484,847 | $484,847 | $92.65 | | |
| HOGEN | Hospital GEN | 0.3902502903 | $484,847 | $484,847 | $189.21 | | |
| CE | County Current Expense | 0.3708482477 | $484,847 | $484,847 | $179.80 | | |
| ISLANDEMS | Hospital GEN (EMS) | 0.5000000000 | $484,847 | $484,847 | $242.42 | | |
| LIB | Library Sno-Isle GEN | 0.3153421757 | $484,847 | $484,847 | $152.89 | | |
| NWHIDPRMT | P & R N Whidbey GEN | 0.2004466701 | $484,847 | $484,847 | $97.19 | | |
| SCH201MO | School 201 Enrichment | 1.8559231640 | $484,847 | $484,847 | $899.84 | | |
| ST | State School | 1.3035497053 | $484,847 | $484,847 | $632.02 | | |
| ST2 | State School Part 2 | 0.8169543533 | $484,847 | $484,847 | $396.10 | | |
| | Total Tax Rate: | 8.4728839852 | | | | | |
| | | | | Taxes w/Current Exemptions: | $4,108.04 | | |
| | | | | Taxes w/o Exemptions: | $4,108.04 | | |
Improvement / Building
| Improvement #1: | RESIDENTIAL | State Code: | Y | 1636.9 sqft | Value: | $289,847 |
| Bathrooms: | 2 | Bedrooms: | 3 | | Ceiling: | DRYWALL PAINTED | Exterior Wall/Cover: | CEMENT FIBER | | Floor Covering: | CARPET/VINYL 80-20 | Floor Structure: | WOOD W/SUBFLOOR | | Foundation: | CONCRETE | Heating: | FHA GAS | | Interior Finish: | DRYWALL PAINT | Plumbing Fixture Cnt: | 9 | | Roof Slope: | 6" IN 12" | Roof Structure/Cover: | CJ ASPHALT |
|
| | Type | Description | Class CD | Sub Class CD | Year Built | Area |
| | BAS | BASE/MAIN FLOOR | 3 | 0 | 2003 | 1636.9 |
| | AGR | ATTACHED GARAGE | 3 | 0 | 2003 | 464.1 |
| | OWC | OPEN WOOD PORCH W/STEPS/ROOF/C | 3 | 0 | 2003 | 71.3 |
| | OWC | OPEN WOOD PORCH W/STEPS/ROOF/C | 3 | 0 | 2003 | 120.0 |
Sketch
Property Image
Land
| 1 | 13 | SQ (06001-08000) | 0.0000 | 0.00 | 0.00 | 0.00 | 1.00 | $195,000 | $0 |
Roll Value History
| 2026 | N/A | N/A | N/A | N/A | N/A |
| 2025 | $289,847 | $195,000 | $0 | $484,847 | $484,847 |
| 2024 | $293,330 | $190,000 | $0 | $483,330 | $483,330 |
| 2023 | $289,847 | $175,000 | $0 | $464,847 | $464,847 |
| 2022 | $265,608 | $170,000 | $0 | $435,608 | $435,608 |
| 2021 | $233,711 | $120,000 | $0 | $353,711 | $353,711 |
| 2020 | $227,763 | $100,000 | $0 | $327,763 | $327,763 |
| 2019 | $166,914 | $150,000 | $0 | $316,914 | $316,914 |
| 2018 | $167,392 | $130,000 | $0 | $297,392 | $297,392 |
| 2017 | $163,946 | $110,000 | $0 | $273,946 | $273,946 |
| 2016 | $165,832 | $90,000 | $0 | $255,832 | $255,832 |
| 2015 | $167,716 | $55,000 | $0 | $222,716 | $222,716 |
| 2014 | $169,601 | $55,000 | $0 | $224,601 | $224,601 |
| 2013 | $171,485 | $55,000 | $0 | $226,485 | $226,485 |
| 2012 | $173,370 | $65,000 | $0 | $238,370 | $238,370 |
| 2011 | $175,430 | $50,000 | $0 | $225,430 | $225,430 |
| 2010 | $183,587 | $50,000 | $0 | $233,587 | $233,587 |
| 2009 | $191,555 | $60,000 | $0 | $251,555 | $251,555 |
| 2008 | $195,950 | $96,000 | $0 | $291,950 | $291,950 |
| 2007 | $196,411 | $96,000 | $0 | $292,411 | $292,411 |
Deed and Sales History
| 1 | 09/01/2021 | WD | Warranty Deed | CALER, JOEL WILLIAM | JACKSON III, JOHN B | | | $450,000.00 | 50052 | 4529238 |
| 2 | 02/17/2015 | WD | Warranty Deed | HENDERSON, MARC R | CALER, JOEL WILLIAM | | | $220,000.00 | 18653 | 4374266 |
| 3 | 01/23/2003 | ESTSEPPROP | Establish Separate Property | HENDERSON, MARC R | HENDERSON, MARC R | | | $0.00 | 30316 | 4045659 |
| 4 | 01/23/2003 | WD | Warranty Deed | ENCINAS CONSTRUCTION INC, | HENDERSON, MARC R | | | $186,900.00 | 30317 | 4045660 |
| 5 | 08/01/2002 | WD | Warranty Deed | FAKKEMA HOMES INC, | ENCINAS CONSTRUCTION INC, | | | $43,000.00 | 23108 | 4027861 |
| 6 | 01/01/1900 | OTHER | Other - Misc. Documents | Unknown | FAKKEMA HOMES INC, | | | $0.00 | 0 | 0 |
Payout Agreement
| No payout information available.. |