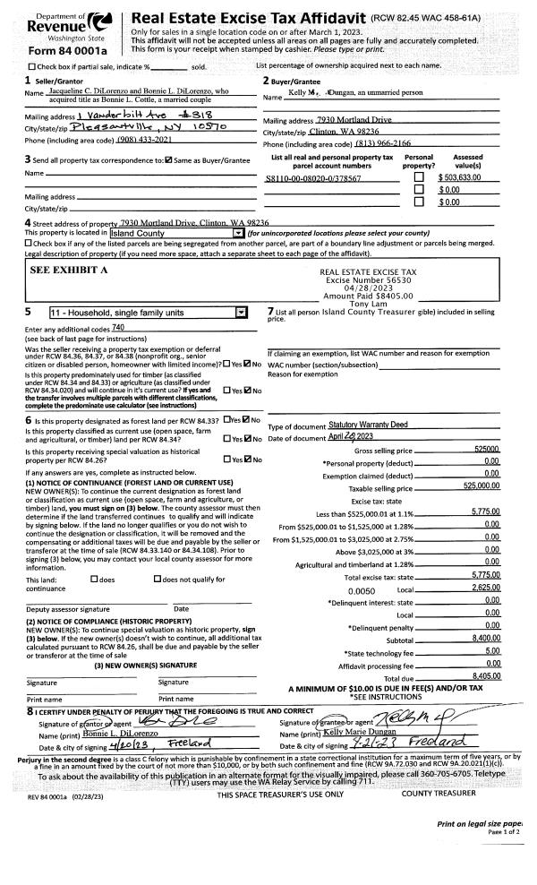
Property
Account |
| Property ID: | 803585 | Abbreviated Legal Description: | BRENTWOOD #3 - PRD LOT 63 |
| Geographic ID: | S6164-03-00063-0 | Agent Code: | |
| Type: | Real | | |
| Tax Area: | 510 - APPRAISER-Stan/Cam Schl Dist, improved & 1 acre or less | Land Use Code | 11 |
| Open Space: | N | DFL | N |
| Historic Property: | N | Remodel Property: | N |
| Multi-Family Redevelopment: | N | | |
| Township: | | Section: | |
| Range: | |
Location |
| Address: | 1103 MORGAN WAY CAMANO ISLAND, WA 98282 | Mapsco: | |
| Neighborhood: | North Camano | Map ID: | 557 |
| Neighborhood CD: | 06-C |
Owner |
| Name: | GILLESPIE, WILLIAM THOMAS | Owner ID: | 272447 |
| Mailing Address: | DEBORAH KRAMER GILLESPIE 1103 MORGAN WAY CAMANO ISLAND, WA 98282-6694 | % Ownership: | 100.0000000000% |
| | | Exemptions: | |
Taxes and Assessment Details
Values
| (+) Improvement Homesite Value: | + | $0 | |
| (+) Improvement Non-Homesite Value: | + | $774,459 | |
| (+) Land Homesite Value: | + | $0 | |
| (+) Land Non-Homesite Value: | + | $670,000 | |
| (+) Curr Use (HS): | + | $0 | $0 |
| (+) Curr Use (NHS): | + | $0 | $0 |
| | | -------------------------- | |
| (=) Market Value: | = | $1,444,459 | |
| (–) Productivity Loss: | – | $0 | |
| | | -------------------------- | |
| (=) Subtotal: | = | $1,444,459 | |
| (+) Senior Appraised Value: | + | $0 | |
| (+) Non-Senior Appraised Value: | + | $1,444,459 | |
| | | -------------------------- | |
| (=) Total Appraised Value: | = | $1,444,459 | |
| (–) Senior Exemption Loss: | – | $0 | |
| (–) Exemption Loss: | – | $0 | |
| | | -------------------------- | |
| (=) Taxable Value: | = | $1,444,459 | |
Taxing Jurisdiction
| Owner: | GILLESPIE, WILLIAM THOMAS | | |
| % Ownership: | 100.0000000000% | | |
| Total Value: | $1,444,459 | | |
| Tax Area: | 510 - APPRAISER-Stan/Cam Schl Dist, improved & 1 acre or less |
| CF | Conservation Futures | 0.0316035091 | $1,444,459 | $1,444,459 | $45.65 | | |
| EMS1 | Fire & Rescue Dist #1 Camano GEN (EMS) | 0.3677864386 | $1,444,459 | $1,444,459 | $531.25 | | |
| FIRE1 | Fire & Rescue Dist #1 Camano GEN | 1.2502910536 | $1,444,459 | $1,444,459 | $1,805.99 | | |
| FIRE1BOND | Fire & Rescue Dist #1 Camano BOND | 0.1570001679 | $1,444,459 | $1,444,459 | $226.78 | | |
| CE | County Current Expense | 0.3708482477 | $1,444,459 | $1,444,459 | $535.68 | | |
| CR | County Roads | 0.4584763726 | $1,444,459 | $1,444,459 | $662.25 | | |
| LCIB | Library Sno-Isle BOND (Camano Island) | 0.0396325772 | $1,444,459 | $1,444,459 | $57.25 | | |
| LIB | Library Sno-Isle GEN | 0.3153421757 | $1,444,459 | $1,444,459 | $455.50 | | |
| SCH205_401 | School 205-401 Enrichment | 1.2698420524 | $1,444,459 | $1,444,459 | $1,834.23 | | |
| SCH205BOND | School 205-401 BOND | 0.9396497583 | $1,444,459 | $1,444,459 | $1,357.29 | | |
| ST | State School | 1.3035497053 | $1,444,459 | $1,444,459 | $1,882.92 | | |
| ST2 | State School Part 2 | 0.8169543533 | $1,444,459 | $1,444,459 | $1,180.06 | | |
| | Total Tax Rate: | 7.3209764117 | | | | | |
| | | | | Taxes w/Current Exemptions: | $10,574.85 | | |
| | | | | Taxes w/o Exemptions: | $10,574.85 | | |
Improvement / Building
| Improvement #1: | RESIDENTIAL | State Code: | Y | 2891.0 sqft | Value: | $774,459 |
| Bathrooms: | 3.5 | Bedrooms: | 3 | | Ceiling: | TONGUE & GROOVE | Exterior Wall/Cover: | CEMENT FIBER | | Floor Covering: | CERAMIC TILE/HWD 40/60 | Floor Structure: | WOOD W/SUBFLOOR | | Foundation: | CONCRETE | Heating: | RADIANT FLOOR | | Interior Finish: | DRYWALL PAINT | Plumbing Fixture Cnt: | 17 | | Roof Slope: | 6" IN 12" | Roof Structure/Cover: | BEAM ASPHALT |
|
| | Type | Description | Class CD | Sub Class CD | Year Built | Area |
| | BAS | BASE/MAIN FLOOR | 5 | 0 | 2004 | 2891.0 |
| | AGR | ATTACHED GARAGE | 5 | 0 | 2004 | 836.0 |
| | OWP | OPEN WOOD PORCH W/STEPS | 5 | 0 | 2004 | 968.0 |
| | OP4 | OPEN PORCH W/CEILING-ROOF | 5 | 0 | 2004 | 31.5 |
Sketch
Property Image
Land
| 1 | 16 | AC (00.51-01.00) | 0.0000 | 0.00 | 0.00 | 0.00 | 1.00 | $670,000 | $0 |
Roll Value History
| 2026 | N/A | N/A | N/A | N/A | N/A |
| 2025 | $774,459 | $670,000 | $0 | $1,444,459 | $1,444,459 |
| 2024 | $780,968 | $675,000 | $0 | $1,455,968 | $1,455,968 |
| 2023 | $787,911 | $675,000 | $0 | $1,462,911 | $1,462,911 |
| 2022 | $693,412 | $450,000 | $0 | $1,143,412 | $1,143,412 |
| 2021 | $609,788 | $220,000 | $0 | $829,788 | $829,788 |
| 2020 | $591,739 | $220,000 | $0 | $811,739 | $811,739 |
| 2019 | $484,798 | $290,000 | $0 | $774,798 | $774,798 |
| 2018 | $486,126 | $250,000 | $0 | $736,126 | $736,126 |
| 2017 | $488,782 | $180,000 | $0 | $668,782 | $668,782 |
| 2016 | $503,630 | $175,000 | $0 | $678,630 | $678,630 |
| 2015 | $436,714 | $150,000 | $0 | $586,714 | $586,714 |
| 2014 | $441,678 | $150,000 | $0 | $591,678 | $591,678 |
| 2013 | $446,642 | $150,000 | $0 | $596,642 | $596,642 |
| 2012 | $451,605 | $160,000 | $0 | $611,605 | $611,605 |
| 2011 | $456,566 | $200,000 | $0 | $656,566 | $656,566 |
| 2010 | $472,880 | $200,000 | $0 | $672,880 | $672,880 |
| 2009 | $497,717 | $250,000 | $0 | $747,717 | $747,717 |
| 2008 | $497,867 | $250,000 | $0 | $747,867 | $747,867 |
| 2007 | $503,094 | $300,000 | $0 | $803,094 | $803,094 |
Deed and Sales History
| 1 | 09/16/2015 | WD | Warranty Deed | STRICKLAND TRUSTEE, WILLIAM P | GILLESPIE, WILLIAM THOMAS | | | $675,000.00 | 21743 | 4387741 |
| 2 | 09/25/2002 | QCD | Quit Claim Deed | STRICKLAND, WILLIAM P | STRICKLAND TRUSTEE, WILLIAM P | | | $0.00 | 24076 | 4036456 |
| 3 | 07/05/2002 | WD | Warranty Deed | CREC 401(K) PROFIT SHARING, | STRICKLAND, WILLIAM P | | | $216,950.00 | 22795 | 4025997 |
| 4 | 01/01/1900 | OTHER | Other - Misc. Documents | Unknown | CREC 401(K) PROFIT SHARING, | | | $0.00 | 0 | 0 |
Payout Agreement
| No payout information available.. |