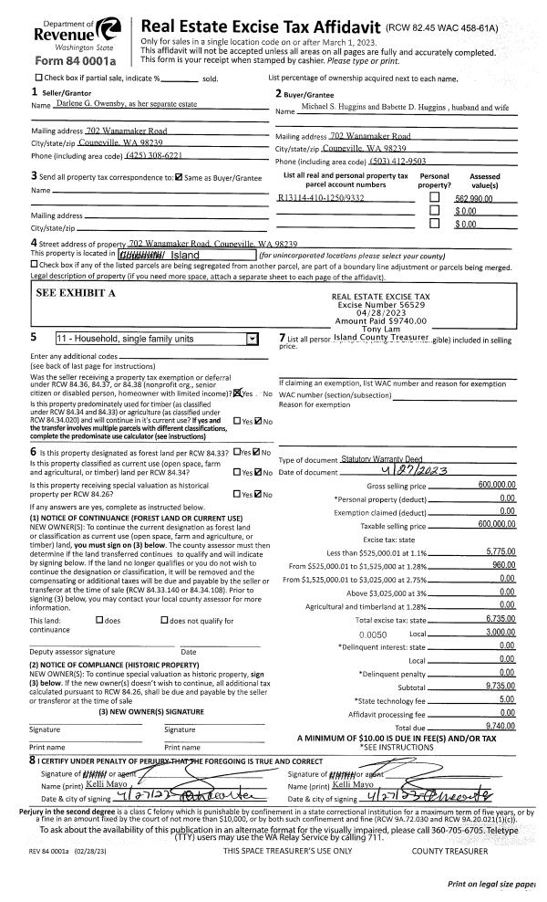
Property
Account |
| Property ID: | 803586 | Abbreviated Legal Description: | BRENTWOOD #3 - PRD LOT 64 |
| Geographic ID: | S6164-03-00064-0 | Agent Code: | |
| Type: | Real | | |
| Tax Area: | 510 - APPRAISER-Stan/Cam Schl Dist, improved & 1 acre or less | Land Use Code | 11 |
| Open Space: | N | DFL | N |
| Historic Property: | N | Remodel Property: | N |
| Multi-Family Redevelopment: | N | | |
| Township: | | Section: | |
| Range: | |
Location |
| Address: | 1105 MORGAN WAY CAMANO ISLAND, WA 98282 | Mapsco: | |
| Neighborhood: | North Camano | Map ID: | 557 |
| Neighborhood CD: | 06-C |
Owner |
| Name: | SWANSON TRUSTEE, EDWARD V | Owner ID: | 287629 |
| Mailing Address: | CAROLYN L SWANSON 1105 MORGAN WAY CAMANO ISLAND, WA 98282 | % Ownership: | 100.0000000000% |
| | | Exemptions: | |
Taxes and Assessment Details
Values
| (+) Improvement Homesite Value: | + | $0 | |
| (+) Improvement Non-Homesite Value: | + | $774,720 | |
| (+) Land Homesite Value: | + | $0 | |
| (+) Land Non-Homesite Value: | + | $670,000 | |
| (+) Curr Use (HS): | + | $0 | $0 |
| (+) Curr Use (NHS): | + | $0 | $0 |
| | | -------------------------- | |
| (=) Market Value: | = | $1,444,720 | |
| (–) Productivity Loss: | – | $0 | |
| | | -------------------------- | |
| (=) Subtotal: | = | $1,444,720 | |
| (+) Senior Appraised Value: | + | $0 | |
| (+) Non-Senior Appraised Value: | + | $1,444,720 | |
| | | -------------------------- | |
| (=) Total Appraised Value: | = | $1,444,720 | |
| (–) Senior Exemption Loss: | – | $0 | |
| (–) Exemption Loss: | – | $0 | |
| | | -------------------------- | |
| (=) Taxable Value: | = | $1,444,720 | |
Taxing Jurisdiction
| Owner: | SWANSON TRUSTEE, EDWARD V | | |
| % Ownership: | 100.0000000000% | | |
| Total Value: | $1,444,720 | | |
| Tax Area: | 510 - APPRAISER-Stan/Cam Schl Dist, improved & 1 acre or less |
| CF | Conservation Futures | 0.0316035091 | $1,444,720 | $1,444,720 | $45.66 | | |
| EMS1 | Fire & Rescue Dist #1 Camano GEN (EMS) | 0.3677864386 | $1,444,720 | $1,444,720 | $531.35 | | |
| FIRE1 | Fire & Rescue Dist #1 Camano GEN | 1.2502910536 | $1,444,720 | $1,444,720 | $1,806.32 | | |
| FIRE1BOND | Fire & Rescue Dist #1 Camano BOND | 0.1570001679 | $1,444,720 | $1,444,720 | $226.82 | | |
| CE | County Current Expense | 0.3708482477 | $1,444,720 | $1,444,720 | $535.77 | | |
| CR | County Roads | 0.4584763726 | $1,444,720 | $1,444,720 | $662.37 | | |
| LCIB | Library Sno-Isle BOND (Camano Island) | 0.0396325772 | $1,444,720 | $1,444,720 | $57.26 | | |
| LIB | Library Sno-Isle GEN | 0.3153421757 | $1,444,720 | $1,444,720 | $455.58 | | |
| SCH205_401 | School 205-401 Enrichment | 1.2698420524 | $1,444,720 | $1,444,720 | $1,834.57 | | |
| SCH205BOND | School 205-401 BOND | 0.9396497583 | $1,444,720 | $1,444,720 | $1,357.53 | | |
| ST | State School | 1.3035497053 | $1,444,720 | $1,444,720 | $1,883.26 | | |
| ST2 | State School Part 2 | 0.8169543533 | $1,444,720 | $1,444,720 | $1,180.27 | | |
| | Total Tax Rate: | 7.3209764117 | | | | | |
| | | | | Taxes w/Current Exemptions: | $10,576.76 | | |
| | | | | Taxes w/o Exemptions: | $10,576.76 | | |
Improvement / Building
| Improvement #1: | RESIDENTIAL | State Code: | Y | 3667.4 sqft | Value: | $774,720 |
| Bathrooms: | 3 | Bedrooms: | 3 | | Ceiling: | DRYWALL PAINTED | Cooling: | HEAT PUMP/CONV/V | | Exterior Wall/Cover: | WOOD SIDING | Floor Covering: | CERAMIC TILE/HWD 40/60 | | Floor Structure: | WOOD W/SUBFLOOR | Foundation: | CONCRETE | | Interior Finish: | DRYWALL PAINT | Plumbing Fixture Cnt: | 16 | | Roof Slope: | 6" IN 12" | Roof Structure/Cover: | CJ ASPHALT |
|
| | Type | Description | Class CD | Sub Class CD | Year Built | Area |
| | BAS | BASE/MAIN FLOOR | 5 | 0 | 2004 | 2728.4 |
| | OP1 | OPEN PORCH SLAB | 5 | 0 | 2004 | 345.0 |
| | AGR | ATTACHED GARAGE | 5 | 0 | 2004 | 1018.0 |
| | OWP | OPEN WOOD PORCH W/STEPS | 5 | 0 | 2004 | 1085.0 |
| | DWN | DOWNSTAIRS LIVING AREA | 5 | 0 | 2004 | 939.0 |
| | OP4 | OPEN PORCH W/CEILING-ROOF | 5 | 0 | 2004 | 202.0 |
Sketch
Property Image
Land
| 1 | 16 | AC (00.51-01.00) | 0.0000 | 0.00 | 0.00 | 0.00 | 1.00 | $670,000 | $0 |
Roll Value History
| 2026 | N/A | N/A | N/A | N/A | N/A |
| 2025 | $774,720 | $670,000 | $0 | $1,444,720 | $1,444,720 |
| 2024 | $783,702 | $675,000 | $0 | $1,458,702 | $1,458,702 |
| 2023 | $792,685 | $675,000 | $0 | $1,467,685 | $1,467,685 |
| 2022 | $685,924 | $450,000 | $0 | $1,135,924 | $1,135,924 |
| 2021 | $603,545 | $220,000 | $0 | $823,545 | $823,545 |
| 2020 | $588,670 | $220,000 | $0 | $808,670 | $808,670 |
| 2019 | $505,836 | $290,000 | $0 | $795,836 | $795,836 |
| 2018 | $507,288 | $250,000 | $0 | $757,288 | $757,288 |
| 2017 | $510,184 | $180,000 | $0 | $690,184 | $690,184 |
| 2016 | $467,675 | $175,000 | $0 | $642,675 | $642,675 |
| 2015 | $473,052 | $150,000 | $0 | $623,052 | $623,052 |
| 2014 | $478,425 | $150,000 | $0 | $628,425 | $628,425 |
| 2013 | $483,804 | $150,000 | $0 | $633,804 | $633,804 |
| 2012 | $489,179 | $160,000 | $0 | $649,179 | $649,179 |
| 2011 | $494,553 | $200,000 | $0 | $694,553 | $694,553 |
| 2010 | $538,153 | $200,000 | $0 | $738,153 | $738,153 |
| 2009 | $566,498 | $250,000 | $0 | $816,498 | $816,498 |
| 2008 | $588,372 | $250,000 | $0 | $838,372 | $838,372 |
| 2007 | $594,707 | $300,000 | $0 | $894,707 | $894,707 |
Deed and Sales History
| 1 | 10/22/2018 | QCD | Quit Claim Deed | SWANSON, EDWARD V | SWANSON TRUSTEE, EDWARD V | | | $0.00 | 36393 | 4453859 |
| 2 | 07/08/2003 | WD | Warranty Deed | CREC 401(K) PROFIT SHARING, | SWANSON, EDWARD V | | | $199,950.00 | 32997 | 4066460 |
| 3 | 01/01/1900 | OTHER | Other - Misc. Documents | Unknown | CREC 401(K) PROFIT SHARING, | | | $0.00 | 0 | 0 |
Payout Agreement
| No payout information available.. |