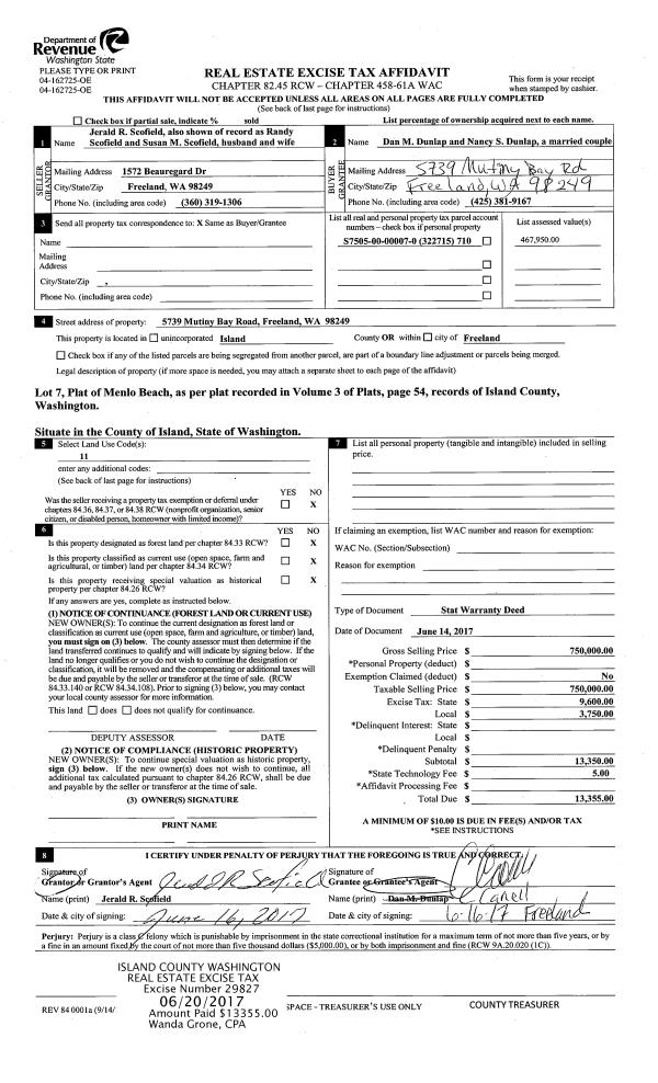
Property
Account |
| Property ID: | 803587 | Abbreviated Legal Description: | BRENTWOOD #3 - PRD LOT 65 |
| Geographic ID: | S6164-03-00065-0 | Agent Code: | |
| Type: | Real | | |
| Tax Area: | 510 - APPRAISER-Stan/Cam Schl Dist, improved & 1 acre or less | Land Use Code | 11 |
| Open Space: | N | DFL | N |
| Historic Property: | N | Remodel Property: | N |
| Multi-Family Redevelopment: | N | | |
| Township: | | Section: | |
| Range: | |
Location |
| Address: | 1112 SHERINGTON DR CAMANO ISLAND, WA 98282 | Mapsco: | |
| Neighborhood: | North Camano | Map ID: | 557 |
| Neighborhood CD: | 06-C |
Owner |
| Name: | KING, ROBERT W | Owner ID: | 280556 |
| Mailing Address: | JACKI L KING 1112 SHERINGTON DR CAMANO ISLAND, WA 98282 | % Ownership: | 100.0000000000% |
| | | Exemptions: | |
Taxes and Assessment Details
Values
| (+) Improvement Homesite Value: | + | $0 | |
| (+) Improvement Non-Homesite Value: | + | $749,253 | |
| (+) Land Homesite Value: | + | $0 | |
| (+) Land Non-Homesite Value: | + | $670,000 | |
| (+) Curr Use (HS): | + | $0 | $0 |
| (+) Curr Use (NHS): | + | $0 | $0 |
| | | -------------------------- | |
| (=) Market Value: | = | $1,419,253 | |
| (–) Productivity Loss: | – | $0 | |
| | | -------------------------- | |
| (=) Subtotal: | = | $1,419,253 | |
| (+) Senior Appraised Value: | + | $0 | |
| (+) Non-Senior Appraised Value: | + | $1,419,253 | |
| | | -------------------------- | |
| (=) Total Appraised Value: | = | $1,419,253 | |
| (–) Senior Exemption Loss: | – | $0 | |
| (–) Exemption Loss: | – | $0 | |
| | | -------------------------- | |
| (=) Taxable Value: | = | $1,419,253 | |
Taxing Jurisdiction
| Owner: | KING, ROBERT W | | |
| % Ownership: | 100.0000000000% | | |
| Total Value: | $1,419,253 | | |
| Tax Area: | 510 - APPRAISER-Stan/Cam Schl Dist, improved & 1 acre or less |
| CF | Conservation Futures | 0.0316035091 | $1,419,253 | $1,419,253 | $44.85 | | |
| EMS1 | Fire & Rescue Dist #1 Camano GEN (EMS) | 0.3677864386 | $1,419,253 | $1,419,253 | $521.98 | | |
| FIRE1 | Fire & Rescue Dist #1 Camano GEN | 1.2502910536 | $1,419,253 | $1,419,253 | $1,774.48 | | |
| FIRE1BOND | Fire & Rescue Dist #1 Camano BOND | 0.1570001679 | $1,419,253 | $1,419,253 | $222.82 | | |
| CE | County Current Expense | 0.3708482477 | $1,419,253 | $1,419,253 | $526.33 | | |
| CR | County Roads | 0.4584763726 | $1,419,253 | $1,419,253 | $650.69 | | |
| LCIB | Library Sno-Isle BOND (Camano Island) | 0.0396325772 | $1,419,253 | $1,419,253 | $56.25 | | |
| LIB | Library Sno-Isle GEN | 0.3153421757 | $1,419,253 | $1,419,253 | $447.55 | | |
| SCH205_401 | School 205-401 Enrichment | 1.2698420524 | $1,419,253 | $1,419,253 | $1,802.23 | | |
| SCH205BOND | School 205-401 BOND | 0.9396497583 | $1,419,253 | $1,419,253 | $1,333.60 | | |
| ST | State School | 1.3035497053 | $1,419,253 | $1,419,253 | $1,850.07 | | |
| ST2 | State School Part 2 | 0.8169543533 | $1,419,253 | $1,419,253 | $1,159.46 | | |
| | Total Tax Rate: | 7.3209764117 | | | | | |
| | | | | Taxes w/Current Exemptions: | $10,390.31 | | |
| | | | | Taxes w/o Exemptions: | $10,390.31 | | |
Improvement / Building
| Improvement #1: | RESIDENTIAL | State Code: | Y | 2721.9 sqft | Value: | $749,253 |
| Bathrooms: | 3 | Bedrooms: | 3 | | Ceiling: | DRYWALL PAINTED | Exterior Wall/Cover: | WOOD SIDING | | Floor Covering: | CERAMIC TILE/CPT 40-60 | Floor Structure: | WOOD W/SUBFLOOR | | Foundation: | CONCRETE | Heating: | RADIANT FLOOR | | Interior Finish: | DRYWALL PAINT | Plumbing Fixture Cnt: | 16 | | Roof Slope: | 6" IN 12" | Roof Structure/Cover: | CJ ASPHALT |
|
| | Type | Description | Class CD | Sub Class CD | Year Built | Area |
| | BAS | BASE/MAIN FLOOR | 5 | 0 | 2005 | 2273.9 |
| | BIG | BUILT IN GARAGE | 5 | 0 | 2005 | 896.0 |
| | UPS | UPPER STORY | 5 | 0 | 2005 | 448.0 |
| | OP4 | OPEN PORCH W/CEILING-ROOF | 5 | 0 | 2005 | 126.9 |
| | OWP | OPEN WOOD PORCH W/STEPS | 5 | 0 | 2005 | 765.0 |
Sketch
Property Image
Land
| 1 | 16 | AC (00.51-01.00) | 0.0000 | 0.00 | 0.00 | 0.00 | 1.00 | $670,000 | $0 |
Roll Value History
| 2026 | N/A | N/A | N/A | N/A | N/A |
| 2025 | $749,253 | $670,000 | $0 | $1,419,253 | $1,419,253 |
| 2024 | $757,841 | $675,000 | $0 | $1,432,841 | $1,432,841 |
| 2023 | $766,427 | $675,000 | $0 | $1,441,427 | $1,441,427 |
| 2022 | $686,223 | $450,000 | $0 | $1,136,223 | $1,136,223 |
| 2021 | $603,491 | $220,000 | $0 | $823,491 | $823,491 |
| 2020 | $585,222 | $220,000 | $0 | $805,222 | $805,222 |
| 2019 | $473,752 | $290,000 | $0 | $763,752 | $763,752 |
| 2018 | $475,048 | $250,000 | $0 | $725,048 | $725,048 |
| 2017 | $420,305 | $180,000 | $0 | $600,305 | $600,305 |
| 2016 | $389,825 | $175,000 | $0 | $564,825 | $564,825 |
| 2015 | $394,253 | $150,000 | $0 | $544,253 | $544,253 |
| 2014 | $398,685 | $150,000 | $0 | $548,685 | $548,685 |
| 2013 | $403,115 | $150,000 | $0 | $553,115 | $553,115 |
| 2012 | $407,544 | $160,000 | $0 | $567,544 | $567,544 |
| 2011 | $411,974 | $200,000 | $0 | $611,974 | $611,974 |
| 2010 | $426,569 | $200,000 | $0 | $626,569 | $626,569 |
| 2009 | $439,862 | $250,000 | $0 | $689,862 | $689,862 |
| 2008 | $444,662 | $250,000 | $0 | $694,662 | $694,662 |
| 2007 | $449,494 | $300,000 | $0 | $749,494 | $749,494 |
Deed and Sales History
| 1 | 06/23/2017 | WD | Warranty Deed | SHOUP, PAUL F | KING, ROBERT W | | | $825,000.00 | 29907 | 4424923 |
| 2 | 03/08/2004 | WD | Warranty Deed | RUTLEDGE, RALPH D | SHOUP, PAUL F | | | $197,500.00 | 40940 | 4094019 |
| 3 | 07/14/2003 | WD | Warranty Deed | CREC 401(K) PROFIT SHARING, | RUTLEDGE, RALPH D | | | $189,950.00 | 33071 | 4067151 |
| 4 | 01/01/1900 | OTHER | Other - Misc. Documents | Unknown | CREC 401(K) PROFIT SHARING, | | | $0.00 | 0 | 0 |
Payout Agreement
| No payout information available.. |