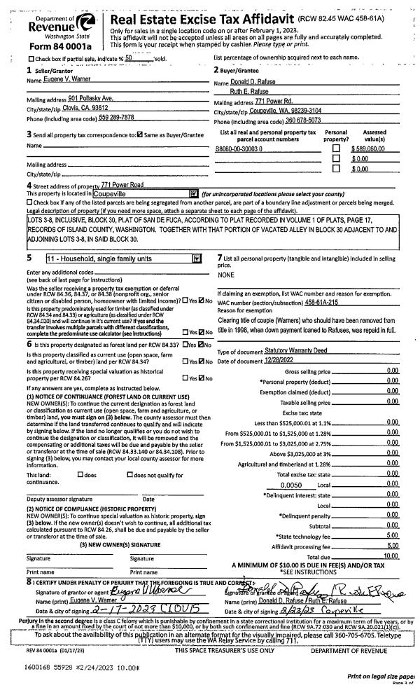
Property
Account |
| Property ID: | 803597 | Abbreviated Legal Description: | BRENTWOOD #3 - PRD LOT 75 |
| Geographic ID: | S6164-03-00075-0 | Agent Code: | |
| Type: | Real | | |
| Tax Area: | 510 - APPRAISER-Stan/Cam Schl Dist, improved & 1 acre or less | Land Use Code | 11 |
| Open Space: | N | DFL | N |
| Historic Property: | N | Remodel Property: | N |
| Multi-Family Redevelopment: | N | | |
| Township: | | Section: | |
| Range: | |
Location |
| Address: | 407 VANDERLIN DR CAMANO ISLAND, WA 98282 | Mapsco: | |
| Neighborhood: | North Camano | Map ID: | 557 |
| Neighborhood CD: | 06-C |
Owner |
| Name: | CORRALL. CARMEN JAMES | Owner ID: | 299819 |
| Mailing Address: | SANDRA KRISTINA MCKENZIE 407 VANDERLIN DR CAMANO ISLAND, WA 98282 | % Ownership: | 100.0000000000% |
| | | Exemptions: | |
Taxes and Assessment Details
Values
| (+) Improvement Homesite Value: | + | $0 | |
| (+) Improvement Non-Homesite Value: | + | $703,786 | |
| (+) Land Homesite Value: | + | $0 | |
| (+) Land Non-Homesite Value: | + | $670,000 | |
| (+) Curr Use (HS): | + | $0 | $0 |
| (+) Curr Use (NHS): | + | $0 | $0 |
| | | -------------------------- | |
| (=) Market Value: | = | $1,373,786 | |
| (–) Productivity Loss: | – | $0 | |
| | | -------------------------- | |
| (=) Subtotal: | = | $1,373,786 | |
| (+) Senior Appraised Value: | + | $0 | |
| (+) Non-Senior Appraised Value: | + | $1,373,786 | |
| | | -------------------------- | |
| (=) Total Appraised Value: | = | $1,373,786 | |
| (–) Senior Exemption Loss: | – | $0 | |
| (–) Exemption Loss: | – | $0 | |
| | | -------------------------- | |
| (=) Taxable Value: | = | $1,373,786 | |
Taxing Jurisdiction
| Owner: | CORRALL. CARMEN JAMES | | |
| % Ownership: | 100.0000000000% | | |
| Total Value: | $1,373,786 | | |
| Tax Area: | 510 - APPRAISER-Stan/Cam Schl Dist, improved & 1 acre or less |
| CF | Conservation Futures | 0.0316035091 | $1,373,786 | $1,373,786 | $43.42 | | |
| EMS1 | Fire & Rescue Dist #1 Camano GEN (EMS) | 0.3677864386 | $1,373,786 | $1,373,786 | $505.26 | | |
| FIRE1 | Fire & Rescue Dist #1 Camano GEN | 1.2502910536 | $1,373,786 | $1,373,786 | $1,717.63 | | |
| FIRE1BOND | Fire & Rescue Dist #1 Camano BOND | 0.1570001679 | $1,373,786 | $1,373,786 | $215.68 | | |
| CE | County Current Expense | 0.3708482477 | $1,373,786 | $1,373,786 | $509.47 | | |
| CR | County Roads | 0.4584763726 | $1,373,786 | $1,373,786 | $629.85 | | |
| LCIB | Library Sno-Isle BOND (Camano Island) | 0.0396325772 | $1,373,786 | $1,373,786 | $54.45 | | |
| LIB | Library Sno-Isle GEN | 0.3153421757 | $1,373,786 | $1,373,786 | $433.21 | | |
| SCH205_401 | School 205-401 Enrichment | 1.2698420524 | $1,373,786 | $1,373,786 | $1,744.49 | | |
| SCH205BOND | School 205-401 BOND | 0.9396497583 | $1,373,786 | $1,373,786 | $1,290.88 | | |
| ST | State School | 1.3035497053 | $1,373,786 | $1,373,786 | $1,790.80 | | |
| ST2 | State School Part 2 | 0.8169543533 | $1,373,786 | $1,373,786 | $1,122.32 | | |
| | Total Tax Rate: | 7.3209764117 | | | | | |
| | | | | Taxes w/Current Exemptions: | $10,057.46 | | |
| | | | | Taxes w/o Exemptions: | $10,057.46 | | |
Improvement / Building
| Improvement #1: | RESIDENTIAL | State Code: | Y | 3168.5 sqft | Value: | $703,786 |
| Bathrooms: | 3.75 | Bedrooms: | 4 | | Ceiling: | DRYWALL PAINTED | Exterior Wall/Cover: | CEMENT FIBER | | Floor Covering: | HARDWOOD/CARP 80-20 | Floor Structure: | WOOD W/SUBFLOOR | | Foundation: | CONCRETE | Heating: | FHA GAS | | Interior Finish: | DRYWALL PAINT | Plumbing Fixture Cnt: | 17 | | Roof Slope: | 4" IN 12" | Roof Structure/Cover: | CJ ASPHALT |
|
| | Type | Description | Class CD | Sub Class CD | Year Built | Area |
| | BAS | BASE/MAIN FLOOR | 5 | 0 | 2006 | 1974.5 |
| | OP4 | OPEN PORCH W/CEILING-ROOF | 5 | 0 | 2006 | 192.0 |
| | AGR | ATTACHED GARAGE | 5 | 0 | 2006 | 1028.5 |
| | OWP | OPEN WOOD PORCH W/STEPS | 5 | 0 | 2006 | 504.0 |
| | OWP | OPEN WOOD PORCH W/STEPS | 5 | 0 | 2006 | 170.0 |
| | OWP | OPEN WOOD PORCH W/STEPS | 5 | 0 | 2006 | 126.0 |
| | DWN | DOWNSTAIRS LIVING AREA | 5 | 0 | 2006 | 1194.0 |
Sketch
Property Image
Land
| 1 | 15 | SQ (12001-21780) | 0.3191 | 13900.00 | 0.00 | 0.00 | 1.00 | $670,000 | $0 |
Roll Value History
| 2026 | N/A | N/A | N/A | N/A | N/A |
| 2025 | $703,786 | $670,000 | $0 | $1,373,786 | $1,373,786 |
| 2024 | $711,850 | $675,000 | $0 | $1,386,850 | $1,386,850 |
| 2023 | $719,916 | $675,000 | $0 | $1,394,916 | $1,394,916 |
| 2022 | $657,370 | $450,000 | $0 | $1,107,370 | $1,107,370 |
| 2021 | $518,780 | $220,000 | $0 | $738,780 | $738,780 |
| 2020 | $505,384 | $220,000 | $0 | $725,384 | $725,384 |
| 2019 | $423,269 | $290,000 | $0 | $713,269 | $713,269 |
| 2018 | $424,454 | $250,000 | $0 | $674,454 | $674,454 |
| 2017 | $426,670 | $180,000 | $0 | $606,670 | $606,670 |
| 2016 | $455,789 | $150,000 | $0 | $605,789 | $605,789 |
| 2015 | $460,910 | $150,000 | $0 | $610,910 | $610,910 |
| 2014 | $466,032 | $150,000 | $0 | $616,032 | $616,032 |
| 2013 | $471,153 | $150,000 | $0 | $621,153 | $621,153 |
| 2012 | $476,275 | $152,000 | $0 | $628,275 | $628,275 |
| 2011 | $481,397 | $190,000 | $0 | $671,397 | $671,397 |
| 2010 | $459,357 | $190,000 | $0 | $649,357 | $649,357 |
| 2009 | $478,428 | $200,000 | $0 | $678,428 | $678,428 |
| 2008 | $483,643 | $250,000 | $0 | $733,643 | $733,643 |
| 2007 | $484,041 | $300,000 | $0 | $784,041 | $784,041 |
Deed and Sales History
| 1 | 06/07/2021 | WD | Warranty Deed | HARTMAN, MARK J | CORRALL. CARMEN JAMES | | | $1,100,000.00 | 48719 | 4522040 |
| 2 | 06/02/2013 | BARGSLD | Bargain And Sale Deed | CITIBANK NA | HARTMAN, MARK J | | | $385,000.00 | 11854 | 4342940 |
| 3 | 01/22/2013 | TRUSTEED | Trustee's Deed | WELCH, LARRY L | CITIBANK NA | | | $857,431.00 | 10238 | 4332194 |
| 4 | 02/03/2005 | WD | Warranty Deed | CREC 401(K) PROFIT SHARING, | WELCH, LARRY L | | | $189,900.00 | 51177 | 4129254 |
| 5 | 01/01/1900 | OTHER | Other - Misc. Documents | Unknown | CREC 401(K) PROFIT SHARING, | | | $0.00 | 0 | 0 |
Payout Agreement
| No payout information available.. |