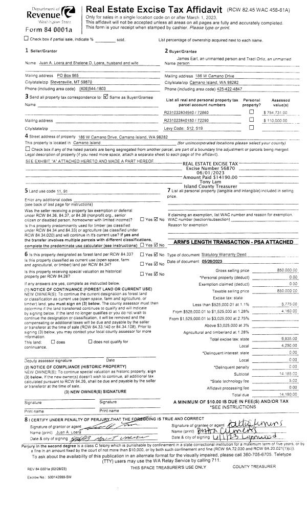
Property
Account |
| Property ID: | 803602 | Abbreviated Legal Description: | BRENTWOOD #3 - PRD LOT 80 |
| Geographic ID: | S6164-03-00080-0 | Agent Code: | |
| Type: | Real | | |
| Tax Area: | 510 - APPRAISER-Stan/Cam Schl Dist, improved & 1 acre or less | Land Use Code | 11 |
| Open Space: | N | DFL | N |
| Historic Property: | N | Remodel Property: | N |
| Multi-Family Redevelopment: | N | | |
| Township: | | Section: | |
| Range: | |
Location |
| Address: | 406 VANDERLIN DR CAMANO ISLAND, WA 98282 | Mapsco: | |
| Neighborhood: | North Camano | Map ID: | 557 |
| Neighborhood CD: | 06-C |
Owner |
| Name: | SEBELSKY, SCOTT | Owner ID: | 192940 |
| Mailing Address: | PATRICIA SEBELSKY 406 VANDERLIN DR CAMANO ISLAND, WA 98282-6692 | % Ownership: | 100.0000000000% |
| | | Exemptions: | |
Taxes and Assessment Details
Values
| (+) Improvement Homesite Value: | + | $0 | |
| (+) Improvement Non-Homesite Value: | + | $586,485 | |
| (+) Land Homesite Value: | + | $0 | |
| (+) Land Non-Homesite Value: | + | $670,000 | |
| (+) Curr Use (HS): | + | $0 | $0 |
| (+) Curr Use (NHS): | + | $0 | $0 |
| | | -------------------------- | |
| (=) Market Value: | = | $1,256,485 | |
| (–) Productivity Loss: | – | $0 | |
| | | -------------------------- | |
| (=) Subtotal: | = | $1,256,485 | |
| (+) Senior Appraised Value: | + | $0 | |
| (+) Non-Senior Appraised Value: | + | $1,256,485 | |
| | | -------------------------- | |
| (=) Total Appraised Value: | = | $1,256,485 | |
| (–) Senior Exemption Loss: | – | $0 | |
| (–) Exemption Loss: | – | $0 | |
| | | -------------------------- | |
| (=) Taxable Value: | = | $1,256,485 | |
Taxing Jurisdiction
| Owner: | SEBELSKY, SCOTT | | |
| % Ownership: | 100.0000000000% | | |
| Total Value: | $1,256,485 | | |
| Tax Area: | 510 - APPRAISER-Stan/Cam Schl Dist, improved & 1 acre or less |
| CF | Conservation Futures | 0.0316035091 | $1,256,485 | $1,256,485 | $39.71 | | |
| EMS1 | Fire & Rescue Dist #1 Camano GEN (EMS) | 0.3677864386 | $1,256,485 | $1,256,485 | $462.12 | | |
| FIRE1 | Fire & Rescue Dist #1 Camano GEN | 1.2502910536 | $1,256,485 | $1,256,485 | $1,570.97 | | |
| FIRE1BOND | Fire & Rescue Dist #1 Camano BOND | 0.1570001679 | $1,256,485 | $1,256,485 | $197.27 | | |
| CE | County Current Expense | 0.3708482477 | $1,256,485 | $1,256,485 | $465.97 | | |
| CR | County Roads | 0.4584763726 | $1,256,485 | $1,256,485 | $576.07 | | |
| LCIB | Library Sno-Isle BOND (Camano Island) | 0.0396325772 | $1,256,485 | $1,256,485 | $49.80 | | |
| LIB | Library Sno-Isle GEN | 0.3153421757 | $1,256,485 | $1,256,485 | $396.22 | | |
| SCH205_401 | School 205-401 Enrichment | 1.2698420524 | $1,256,485 | $1,256,485 | $1,595.54 | | |
| SCH205BOND | School 205-401 BOND | 0.9396497583 | $1,256,485 | $1,256,485 | $1,180.66 | | |
| ST | State School | 1.3035497053 | $1,256,485 | $1,256,485 | $1,637.89 | | |
| ST2 | State School Part 2 | 0.8169543533 | $1,256,485 | $1,256,485 | $1,026.49 | | |
| | Total Tax Rate: | 7.3209764117 | | | | | |
| | | | | Taxes w/Current Exemptions: | $9,198.71 | | |
| | | | | Taxes w/o Exemptions: | $9,198.71 | | |
Improvement / Building
| Improvement #1: | RESIDENTIAL | State Code: | Y | 3110.0 sqft | Value: | $586,485 |
| Bathrooms: | 2.5 | Bedrooms: | 3 | | Ceiling: | DRYWALL PAINTED | Cooling: | HEAT PUMP/CONV/V | | Exterior Wall/Cover: | CEMENT FIBER | Floor Covering: | HARDWOOD/CARP 60-40 | | Floor Structure: | WOOD W/SUBFLOOR | Foundation: | CONCRETE | | Interior Finish: | DRYWALL PAINT | Plumbing Fixture Cnt: | 14 | | Roof Slope: | 5" IN 12" | Roof Structure/Cover: | CJ ASPHALT |
|
| | Type | Description | Class CD | Sub Class CD | Year Built | Area |
| | BAS | BASE/MAIN FLOOR | 4 | 0 | 2004 | 1820.0 |
| | OP4 | OPEN PORCH W/CEILING-ROOF | 4 | 0 | 2004 | 64.0 |
| | AGR | ATTACHED GARAGE | 4 | 0 | 2004 | 836.0 |
| | OWP | OPEN WOOD PORCH W/STEPS | 4 | 0 | 2004 | 90.0 |
| | OWP | OPEN WOOD PORCH W/STEPS | 4 | 0 | 2004 | 216.0 |
| | OWP | OPEN WOOD PORCH W/STEPS | 4 | 0 | 2004 | 144.0 |
| | DWN | DOWNSTAIRS LIVING AREA | 4 | 0 | 2004 | 1290.0 |
Sketch
Property Image
Land
| 1 | 14 | SQ (08001-12000) | 0.0000 | 0.00 | 0.00 | 0.00 | 1.00 | $670,000 | $0 |
Roll Value History
| 2026 | N/A | N/A | N/A | N/A | N/A |
| 2025 | $586,485 | $670,000 | $0 | $1,256,485 | $1,256,485 |
| 2024 | $591,415 | $675,000 | $0 | $1,266,415 | $1,266,415 |
| 2023 | $596,671 | $675,000 | $0 | $1,271,671 | $1,271,671 |
| 2022 | $514,270 | $450,000 | $0 | $964,270 | $964,270 |
| 2021 | $452,367 | $220,000 | $0 | $672,367 | $672,367 |
| 2020 | $441,299 | $220,000 | $0 | $661,299 | $661,299 |
| 2019 | $349,255 | $290,000 | $0 | $639,255 | $639,255 |
| 2018 | $350,233 | $250,000 | $0 | $600,233 | $600,233 |
| 2017 | $351,478 | $180,000 | $0 | $531,478 | $531,478 |
| 2016 | $335,786 | $150,000 | $0 | $485,786 | $485,786 |
| 2015 | $339,644 | $150,000 | $0 | $489,644 | $489,644 |
| 2014 | $343,504 | $150,000 | $0 | $493,504 | $493,504 |
| 2013 | $347,364 | $150,000 | $0 | $497,364 | $497,364 |
| 2012 | $351,223 | $152,000 | $0 | $503,223 | $503,223 |
| 2011 | $355,084 | $190,000 | $0 | $545,084 | $545,084 |
| 2010 | $392,687 | $190,000 | $0 | $582,687 | $582,687 |
| 2009 | $413,293 | $200,000 | $0 | $613,293 | $613,293 |
| 2008 | $413,449 | $250,000 | $0 | $663,449 | $663,449 |
| 2007 | $445,054 | $272,775 | $0 | $717,829 | $717,829 |
Deed and Sales History
| 1 | 06/09/2004 | WD | Warranty Deed | G A POWELL CONSTRUCTION INC, | SEBELSKY, SCOTT | | | $524,900.00 | 42856 | 4105157 |
| 2 | 11/04/2003 | WD | Warranty Deed | CREC 401(K) PROFIT SHARING, | G A POWELL CONSTRUCTION INC, | | | $140,000.00 | 35445 | 4084962 |
| 3 | 01/01/1900 | OTHER | Other - Misc. Documents | Unknown | CREC 401(K) PROFIT SHARING, | | | $0.00 | 0 | 0 |
Payout Agreement
| No payout information available.. |