Property
Account |
| Property ID: | 803605 | Abbreviated Legal Description: | BRENTWOOD #3 - PRD LOT 83 |
| Geographic ID: | S6164-03-00083-0 | Agent Code: | |
| Type: | Real | | |
| Tax Area: | 510 - APPRAISER-Stan/Cam Schl Dist, improved & 1 acre or less | Land Use Code | 11 |
| Open Space: | N | DFL | N |
| Historic Property: | N | Remodel Property: | N |
| Multi-Family Redevelopment: | N | | |
| Township: | | Section: | |
| Range: | |
Location |
| Address: | 428 VANDERLIN DR CAMANO ISLAND, WA 98282 | Mapsco: | |
| Neighborhood: | North Camano | Map ID: | 557 |
| Neighborhood CD: | 06-C |
Owner |
| Name: | LEAVITT, GREGORY GEORGE | Owner ID: | 298089 |
| Mailing Address: | BODIL DOROTHEE ROSENHAGEN 428 VANDERLIN DR CAMANO ISLAND, WA 98282 | % Ownership: | 100.0000000000% |
| | | Exemptions: | |
Taxes and Assessment Details
Values
| (+) Improvement Homesite Value: | + | $0 | |
| (+) Improvement Non-Homesite Value: | + | $550,192 | |
| (+) Land Homesite Value: | + | $0 | |
| (+) Land Non-Homesite Value: | + | $360,000 | |
| (+) Curr Use (HS): | + | $0 | $0 |
| (+) Curr Use (NHS): | + | $0 | $0 |
| | | -------------------------- | |
| (=) Market Value: | = | $910,192 | |
| (–) Productivity Loss: | – | $0 | |
| | | -------------------------- | |
| (=) Subtotal: | = | $910,192 | |
| (+) Senior Appraised Value: | + | $0 | |
| (+) Non-Senior Appraised Value: | + | $910,192 | |
| | | -------------------------- | |
| (=) Total Appraised Value: | = | $910,192 | |
| (–) Senior Exemption Loss: | – | $0 | |
| (–) Exemption Loss: | – | $0 | |
| | | -------------------------- | |
| (=) Taxable Value: | = | $910,192 | |
Taxing Jurisdiction
| Owner: | LEAVITT, GREGORY GEORGE | | |
| % Ownership: | 100.0000000000% | | |
| Total Value: | $910,192 | | |
| Tax Area: | 510 - APPRAISER-Stan/Cam Schl Dist, improved & 1 acre or less |
| CF | Conservation Futures | 0.0316035091 | $910,192 | $910,192 | $28.77 | | |
| EMS1 | Fire & Rescue Dist #1 Camano GEN (EMS) | 0.3677864386 | $910,192 | $910,192 | $334.76 | | |
| FIRE1 | Fire & Rescue Dist #1 Camano GEN | 1.2502910536 | $910,192 | $910,192 | $1,138.00 | | |
| FIRE1BOND | Fire & Rescue Dist #1 Camano BOND | 0.1570001679 | $910,192 | $910,192 | $142.90 | | |
| CE | County Current Expense | 0.3708482477 | $910,192 | $910,192 | $337.54 | | |
| CR | County Roads | 0.4584763726 | $910,192 | $910,192 | $417.30 | | |
| LCIB | Library Sno-Isle BOND (Camano Island) | 0.0396325772 | $910,192 | $910,192 | $36.07 | | |
| LIB | Library Sno-Isle GEN | 0.3153421757 | $910,192 | $910,192 | $287.02 | | |
| SCH205_401 | School 205-401 Enrichment | 1.2698420524 | $910,192 | $910,192 | $1,155.80 | | |
| SCH205BOND | School 205-401 BOND | 0.9396497583 | $910,192 | $910,192 | $855.26 | | |
| ST | State School | 1.3035497053 | $910,192 | $910,192 | $1,186.48 | | |
| ST2 | State School Part 2 | 0.8169543533 | $910,192 | $910,192 | $743.59 | | |
| | Total Tax Rate: | 7.3209764117 | | | | | |
| | | | | Taxes w/Current Exemptions: | $6,663.49 | | |
| | | | | Taxes w/o Exemptions: | $6,663.49 | | |
Improvement / Building
| Improvement #1: | RESIDENTIAL | State Code: | Y | 2984.0 sqft | Value: | $550,192 |
| Bathrooms: | 2 | Bedrooms: | 3 | | Ceiling: | DRYWALL PAINTED | Cooling: | HEAT PUMP/CONV/V | | Exterior Wall/Cover: | CEMENT FIBER | Floor Covering: | CARPET/VINYL 60-40 | | Floor Structure: | WOOD W/SUBFLOOR | Foundation: | CONCRETE | | Interior Finish: | DRYWALL PAINT | Plumbing Fixture Cnt: | 10 | | Roof Slope: | 4" IN 12" | Roof Structure/Cover: | CJ ASPHALT |
|
| | Type | Description | Class CD | Sub Class CD | Year Built | Area |
| | BAS | BASE/MAIN FLOOR | 4 | 0 | 2022 | 1760.0 |
| | AGR | ATTACHED GARAGE | 4 | 0 | 2022 | 690.0 |
| | DWN | DOWNSTAIRS LIVING AREA | 4 | 0 | 2022 | 1224.0 |
| | OP4 | OPEN PORCH W/CEILING-ROOF | 4 | 0 | 2022 | 329.0 |
Sketch
Property Image
Land
| 1 | 15 | SQ (12001-21780) | 0.0000 | 0.00 | 0.00 | 0.00 | 1.00 | $360,000 | $0 |
Roll Value History
| 2026 | N/A | N/A | N/A | N/A | N/A |
| 2025 | $550,192 | $360,000 | $0 | $910,192 | $910,192 |
| 2024 | $555,969 | $360,000 | $0 | $915,969 | $915,969 |
| 2023 | $566,078 | $360,000 | $0 | $926,078 | $926,078 |
| 2022 | $523,035 | $300,000 | $0 | $823,035 | $823,035 |
| 2021 | $0 | $150,000 | $0 | $150,000 | $150,000 |
| 2020 | $0 | $150,000 | $0 | $150,000 | $150,000 |
| 2019 | $0 | $165,000 | $0 | $165,000 | $165,000 |
| 2018 | $0 | $150,000 | $0 | $150,000 | $150,000 |
| 2017 | $0 | $120,000 | $0 | $120,000 | $120,000 |
| 2016 | $0 | $100,000 | $0 | $100,000 | $100,000 |
| 2015 | $0 | $95,000 | $0 | $95,000 | $95,000 |
| 2014 | $0 | $95,000 | $0 | $95,000 | $95,000 |
| 2013 | $0 | $95,000 | $0 | $95,000 | $95,000 |
| 2012 | $0 | $95,000 | $0 | $95,000 | $95,000 |
| 2011 | $0 | $95,000 | $0 | $95,000 | $95,000 |
| 2010 | $0 | $95,000 | $0 | $95,000 | $95,000 |
| 2009 | $0 | $100,000 | $0 | $100,000 | $100,000 |
| 2008 | $0 | $130,000 | $0 | $130,000 | $130,000 |
| 2007 | $0 | $130,000 | $0 | $130,000 | $130,000 |
Deed and Sales History
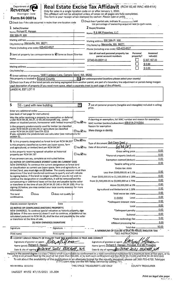
| 1 | 02/08/2021 | WD | Warranty Deed | AYALA, MARY A | LEAVITT, GREGORY GEORGE | | | $312,000.00 | 46919 | 4510697 |
| 2 | 09/15/2003 | WD | Warranty Deed | CREC 401(K) PROFIT SHARING, | AYALA, MARY A | | | $120,000.00 | 34235 | 4076001 |
| 3 | 01/01/1900 | OTHER | Other - Misc. Documents | Unknown | CREC 401(K) PROFIT SHARING, | | | $0.00 | 0 | 0 |
Payout Agreement
| No payout information available.. |