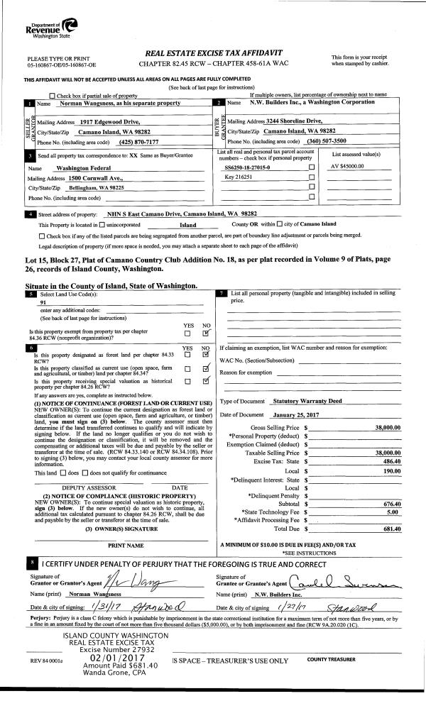
Property
Account |
| Property ID: | 803647 | Abbreviated Legal Description: | S350' OF W570' OF NE NE EX CO RD EX PT TO IS CO AF#4085419 |
| Geographic ID: | R03225-413-4300 | Agent Code: | |
| Type: | Real | | |
| Tax Area: | 332 - APPRAISER-Cpvl Schl Dist, Special Dist, improved, greater than 1 acre | Land Use Code | 11 |
| Open Space: | N | DFL | N |
| Historic Property: | N | Remodel Property: | N |
| Multi-Family Redevelopment: | N | | |
| Township: | 32 | Section: | 25 |
| Range: | R0 |
Location |
| Address: | 714 WEST BEACH RD COUPEVILLE, WA 98239 | Mapsco: | |
| Neighborhood: | Cycle 2 | Map ID: | 10 |
| Neighborhood CD: | 2 |
Owner |
| Name: | BAZA, BRANDON MICHAEL | Owner ID: | 278666 |
| Mailing Address: | KARA MARIE BAZA PO BOX 1462 COUPEVILLE, WA 98239-1462 | % Ownership: | 100.0000000000% |
| | | Exemptions: | |
Taxes and Assessment Details
Values
| (+) Improvement Homesite Value: | + | $0 | |
| (+) Improvement Non-Homesite Value: | + | $380,658 | |
| (+) Land Homesite Value: | + | $0 | |
| (+) Land Non-Homesite Value: | + | $328,511 | |
| (+) Curr Use (HS): | + | $0 | $0 |
| (+) Curr Use (NHS): | + | $0 | $0 |
| | | -------------------------- | |
| (=) Market Value: | = | $709,169 | |
| (–) Productivity Loss: | – | $0 | |
| | | -------------------------- | |
| (=) Subtotal: | = | $709,169 | |
| (+) Senior Appraised Value: | + | $0 | |
| (+) Non-Senior Appraised Value: | + | $709,169 | |
| | | -------------------------- | |
| (=) Total Appraised Value: | = | $709,169 | |
| (–) Senior Exemption Loss: | – | $0 | |
| (–) Exemption Loss: | – | $0 | |
| | | -------------------------- | |
| (=) Taxable Value: | = | $709,169 | |
Taxing Jurisdiction
| Owner: | BAZA, BRANDON MICHAEL | | |
| % Ownership: | 100.0000000000% | | |
| Total Value: | $709,169 | | |
| Tax Area: | 332 - APPRAISER-Cpvl Schl Dist, Special Dist, improved, greater than 1 acre |
| CF | Conservation Futures | 0.0316035091 | $709,169 | $709,169 | $22.41 | | |
| CEM2 | Cemetery #2 | 0.0095056933 | $709,169 | $709,169 | $6.74 | | |
| FIRE2 | Fire & Rescue Dist #2 N Whidbey GEN | 0.5475949600 | $709,169 | $709,169 | $388.34 | | |
| HOBOND | Hospital BOND | 0.1910887512 | $709,169 | $709,169 | $135.51 | | |
| HOGEN | Hospital GEN | 0.3902502903 | $709,169 | $709,169 | $276.75 | | |
| CE | County Current Expense | 0.3708482477 | $709,169 | $709,169 | $262.99 | | |
| CR | County Roads | 0.4584763726 | $709,169 | $709,169 | $325.14 | | |
| ISLANDEMS | Hospital GEN (EMS) | 0.5000000000 | $709,169 | $709,169 | $354.58 | | |
| LIB | Library Sno-Isle GEN | 0.3153421757 | $709,169 | $709,169 | $223.63 | | |
| LIBCAP | Library Sno-Isle BOND (Cap Fac Imp Area) | 0.0543427938 | $709,169 | $709,169 | $38.54 | | |
| POCOUP | Port of Coupeville GEN | 0.1093371703 | $709,169 | $709,169 | $77.54 | | |
| POCOUPIDD | Port of Coupeville IDD | 0.3409740022 | $709,169 | $709,169 | $241.81 | | |
| COUPSDTECH | School 204 CP (TECH) | 0.7545480007 | $709,169 | $709,169 | $535.10 | | |
| SCH204MO | School 204 Enrichment | 0.6716186034 | $709,169 | $709,169 | $476.29 | | |
| ST | State School | 1.3035497053 | $709,169 | $709,169 | $924.44 | | |
| ST2 | State School Part 2 | 0.8169543533 | $709,169 | $709,169 | $579.36 | | |
| | Total Tax Rate: | 6.8660346289 | | | | | |
| | | | | Taxes w/Current Exemptions: | $4,869.17 | | |
| | | | | Taxes w/o Exemptions: | $4,869.17 | | |
Improvement / Building
| Improvement #1: | RESIDENTIAL | State Code: | Y | 2409.0 sqft | Value: | $380,658 |
| Bathrooms: | 1.5 | Bedrooms: | 4 | | Ceiling: | TONGUE & GROOVE | Cooling: | HEAT PUMP/CONV/V | | Exterior Wall/Cover: | COMMON BRICK VENEER | Floor Covering: | CARPET/VINYL 60-40 | | Floor Structure: | WOOD W/SUBFLOOR | Foundation: | CONCRETE | | Interior Finish: | DRYWALL PAINT | Plumbing Fixture Cnt: | 10 | | Roof Slope: | 8" IN 12" | Roof Structure/Cover: | BEAM ALUMINUM HEAVY |
|
| | Type | Description | Class CD | Sub Class CD | Year Built | Area |
| | BAS | BASE/MAIN FLOOR | 3 | 0 | 1963 | 1577.0 |
| | OCP | OPEN CARPORT | 3 | 0 | 1963 | 696.5 |
| | UTY | STORAGE/UTILITY | 3 | 0 | 1963 | 48.0 |
| | OWP | OPEN WOOD PORCH W/STEPS | 3 | 0 | 1963 | 433.5 |
| | OWR | OPEN WOOD PORCH W/STEPS/ROOF | 3 | 0 | 1963 | 80.0 |
| | DWN | DOWNSTAIRS LIVING AREA | 3 | 0 | 1963 | 832.0 |
| | oPOL | POLE BARN | 3 | 0 | 2004 | 1152.0 |
Sketch
Property Image
Land
| 1 | HS | HOMESITE | 1.0000 | 43560.00 | 0.00 | 0.00 | 1.00 | $270,000 | $0 |
| 2 | 91 | UNDEVELOPED LAND-METES AND BOUNDS | 3.3600 | 146361.60 | 0.00 | 0.00 | 1.00 | $58,511 | $0 |
Roll Value History
| 2026 | N/A | N/A | N/A | N/A | N/A |
| 2025 | $380,658 | $328,511 | $0 | $709,169 | $709,169 |
| 2024 | $377,630 | $320,000 | $0 | $697,630 | $697,630 |
| 2023 | $382,856 | $310,000 | $0 | $692,856 | $692,856 |
| 2022 | $351,425 | $290,000 | $0 | $641,425 | $641,425 |
| 2021 | $309,702 | $220,000 | $0 | $529,702 | $529,702 |
| 2020 | $302,946 | $200,000 | $0 | $502,946 | $502,946 |
| 2019 | $236,311 | $250,000 | $0 | $486,311 | $486,311 |
| 2018 | $214,413 | $180,000 | $0 | $394,413 | $394,413 |
| 2017 | $215,912 | $160,000 | $0 | $375,912 | $375,912 |
| 2016 | $184,217 | $160,000 | $0 | $344,217 | $344,217 |
| 2015 | $186,882 | $105,000 | $0 | $291,882 | $291,882 |
| 2014 | $189,548 | $105,948 | $0 | $295,496 | $295,496 |
| 2013 | $192,212 | $105,948 | $0 | $298,160 | $298,160 |
| 2012 | $195,321 | $105,948 | $0 | $301,269 | $301,269 |
| 2011 | $198,034 | $117,720 | $0 | $315,754 | $315,754 |
| 2010 | $214,011 | $117,720 | $0 | $331,731 | $331,731 |
| 2009 | $222,980 | $130,800 | $0 | $353,780 | $353,780 |
| 2008 | $221,233 | $127,000 | $0 | $348,233 | $348,233 |
| 2007 | $224,654 | $116,000 | $0 | $340,654 | $340,654 |
Deed and Sales History
| 1 | 01/26/2017 | SPLTDWARDE | Special Limited Warranty Deed | WILMINGTON SAVINGS FUND SOCIETY | BAZA, BRANDON MICHAEL | | | $372,000.00 | 28233 | 4417886 |
| 2 | 03/15/2016 | TRUSTEED | Trustee's Deed | RANGEL JR, JOHN | WILMINGTON SAVINGS FUND SOCIETY | | | $0.00 | 23563 | 4396007 |
| 3 | 12/21/2007 | DECREE | Divorce Decree/Legal Separation | RANGEL, JOHN | RANGEL JR, JOHN | | | $0.00 | 74143 | 4218907 |
| 4 | 07/13/2004 | QCD | Quit Claim Deed | RANGEL, JOHN | RANGEL, JOHN | | | $2,100.00 | 70316 | 4085419 |
| 5 | 06/10/2002 | BLA | DNU - Boundary Line Adjustment | Unknown | RANGEL, JOHN JR & DEBRA | | | $0.00 | 69457 | 4017383 |
| 6 | 04/29/2002 | WD | Warranty Deed | RANGEL, JOHN JR & DEBRA | RANGEL, JOHN | | | $0.00 | 41243 | 4095749 |
| 7 | 04/29/2002 | ESTSEPPROP | Establish Separate Property | RANGEL, JOHN JR & DEBRA | RANGEL, JOHN JR & DEBRA | | | $0.00 | 21593 | 4018406 |
Payout Agreement
| No payout information available.. |