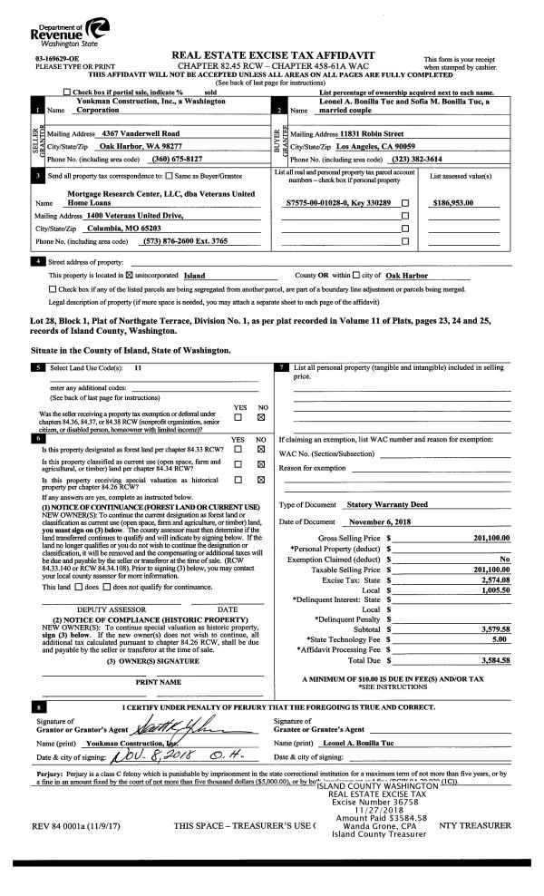
Property
Account |
| Property ID: | 803651 | Abbreviated Legal Description: | E404.13' OF NE NE LY N OF S350' TGW PT OF S350' OF SD NE NE LY E OF W570' |
| Geographic ID: | R03225-460-5130 | Agent Code: | |
| Type: | Real | | |
| Tax Area: | 332 - APPRAISER-Cpvl Schl Dist, Special Dist, improved, greater than 1 acre | Land Use Code | 88 |
| Open Space: | N | DFL | Y |
| Historic Property: | N | Remodel Property: | N |
| Multi-Family Redevelopment: | N | | |
| Township: | 32 | Section: | 25 |
| Range: | R0 |
Location |
| Address: | 700 WEST BEACH RD COUPEVILLE, WA 98239 | Mapsco: | |
| Neighborhood: | Cycle 2 | Map ID: | 10 |
| Neighborhood CD: | 2 |
Owner |
| Name: | POTTER, LLOYD B | Owner ID: | 188251 |
| Mailing Address: | CARRIE R KENNEDY PO BOX 1643 COUPEVILLE, WA 98239-1643 | % Ownership: | 100.0000000000% |
| | | Exemptions: | |
Taxes and Assessment Details
Values
| (+) Improvement Homesite Value: | + | $0 | |
| (+) Improvement Non-Homesite Value: | + | $589,608 | |
| (+) Land Homesite Value: | + | $0 | |
| (+) Land Non-Homesite Value: | + | $220,000 | |
| (+) Curr Use (HS): | + | $0 | $0 |
| (+) Curr Use (NHS): | + | $140,047 | $1,716 |
| | | -------------------------- | |
| (=) Market Value: | = | $949,655 | |
| (–) Productivity Loss: | – | $138,331 | |
| | | -------------------------- | |
| (=) Subtotal: | = | $811,324 | |
| (+) Senior Appraised Value: | + | $0 | |
| (+) Non-Senior Appraised Value: | + | $811,324 | |
| | | -------------------------- | |
| (=) Total Appraised Value: | = | $811,324 | |
| (–) Senior Exemption Loss: | – | $0 | |
| (–) Exemption Loss: | – | $0 | |
| | | -------------------------- | |
| (=) Taxable Value: | = | $811,324 | |
Taxing Jurisdiction
| Owner: | POTTER, LLOYD B | | |
| % Ownership: | 100.0000000000% | | |
| Total Value: | $949,655 | | |
| Tax Area: | 332 - APPRAISER-Cpvl Schl Dist, Special Dist, improved, greater than 1 acre |
| CF | Conservation Futures | 0.0316035091 | $811,324 | $811,324 | $25.64 | | |
| CEM2 | Cemetery #2 | 0.0095056933 | $811,324 | $811,324 | $7.71 | | |
| FIRE2 | Fire & Rescue Dist #2 N Whidbey GEN | 0.5475949600 | $811,324 | $811,324 | $444.28 | | |
| HOBOND | Hospital BOND | 0.1910887512 | $811,324 | $811,324 | $155.03 | | |
| HOGEN | Hospital GEN | 0.3902502903 | $811,324 | $811,324 | $316.62 | | |
| CE | County Current Expense | 0.3708482477 | $811,324 | $811,324 | $300.88 | | |
| CR | County Roads | 0.4584763726 | $811,324 | $811,324 | $371.97 | | |
| ISLANDEMS | Hospital GEN (EMS) | 0.5000000000 | $811,324 | $811,324 | $405.66 | | |
| LIB | Library Sno-Isle GEN | 0.3153421757 | $811,324 | $811,324 | $255.84 | | |
| LIBCAP | Library Sno-Isle BOND (Cap Fac Imp Area) | 0.0543427938 | $811,324 | $811,324 | $44.09 | | |
| POCOUP | Port of Coupeville GEN | 0.1093371703 | $811,324 | $811,324 | $88.71 | | |
| POCOUPIDD | Port of Coupeville IDD | 0.3409740022 | $811,324 | $811,324 | $276.64 | | |
| COUPSDTECH | School 204 CP (TECH) | 0.7545480007 | $811,324 | $811,324 | $612.18 | | |
| SCH204MO | School 204 Enrichment | 0.6716186034 | $811,324 | $811,324 | $544.90 | | |
| ST | State School | 1.3035497053 | $811,324 | $811,324 | $1,057.60 | | |
| ST2 | State School Part 2 | 0.8169543533 | $811,324 | $811,324 | $662.81 | | |
| | Total Tax Rate: | 6.8660346289 | | | | | |
| | | | | Taxes w/Current Exemptions: | $5,570.56 | | |
| | | | | Taxes w/o Exemptions: | $5,570.56 | | |
Improvement / Building
| Improvement #1: | RESIDENTIAL | State Code: | Y | 2663.0 sqft | Value: | $589,608 |
| Bathrooms: | 2.75 | Bedrooms: | 3 | | Ceiling: | DRYWALL PAINTED | Exterior Wall/Cover: | CEMENT FIBER | | Floor Covering: | CARPET/VINYL 80-20 | Floor Structure: | WOOD W/SUBFLOOR | | Foundation: | CONCRETE | Heating: | FHA GAS | | Interior Finish: | DRYWALL PAINT | Plumbing Fixture Cnt: | 12 | | Roof Slope: | 8" IN 12" | Roof Structure/Cover: | CJ ASPHALT |
|
| | Type | Description | Class CD | Sub Class CD | Year Built | Area |
| | BAS | BASE/MAIN FLOOR | 4 | 0 | 2004 | 1381.0 |
| | DGR | DETACHED GARAGE | 4 | 0 | 2004 | 168.0 |
| | OP1 | OPEN PORCH SLAB | 4 | 0 | 2004 | 610.0 |
| | AGR | ATTACHED GARAGE | 4 | 0 | 2004 | 1114.0 |
| | UPS | UPPER STORY | 4 | 0 | 2004 | 1282.0 |
| | ATF | ATTIC FINISHED | 4 | 0 | 2004 | 729.0 |
| | UTY | STORAGE/UTILITY | 4 | 0 | 2004 | 128.0 |
| | OWC | OPEN WOOD PORCH W/STEPS/ROOF/C | 4 | 0 | 2004 | 696.0 |
| | oEQU | EQUIP SHED | 3 | 0 | 2004 | 120.0 |
Sketch
| No sketches available for this property. |
Property Image
Land
| 1 | 88 | DESIGNATED FOREST | 2.6400 | 114998.40 | 0.00 | 0.00 | 1.00 | $26,352 | $222 |
| 2 | HS | HOMESITE | 1.0000 | 43560.00 | 0.00 | 0.00 | 1.00 | $220,000 | $0 |
| 3 | 88 | DESIGNATED FOREST | 9.1900 | 400316.40 | 0.00 | 0.00 | 1.00 | $91,735 | $1,333 |
| 4 | 88 | DESIGNATED FOREST | 2.2000 | 95832.00 | 0.00 | 0.00 | 1.00 | $21,960 | $161 |
Roll Value History
| 2026 | N/A | N/A | N/A | N/A | N/A |
| 2025 | $589,608 | $360,047 | $1,716 | $811,324 | $811,324 |
| 2024 | $594,405 | $310,000 | $1,725 | $806,130 | $806,130 |
| 2023 | $601,298 | $290,000 | $1,657 | $622,250 | $622,250 |
| 2022 | $550,716 | $260,000 | $1,657 | $569,672 | $569,672 |
| 2021 | $484,310 | $225,000 | $1,657 | $500,937 | $500,937 |
| 2020 | $470,843 | $215,000 | $1,657 | $486,805 | $486,805 |
| 2019 | $360,948 | $250,000 | $1,599 | $379,180 | $379,180 |
| 2018 | $264,853 | $230,000 | $1,575 | $281,731 | $281,731 |
| 2017 | $266,289 | $230,000 | $1,575 | $283,167 | $283,167 |
| 2016 | $269,385 | $230,000 | $1,417 | $286,105 | $286,105 |
| 2015 | $272,482 | $200,000 | $1,417 | $287,206 | $287,206 |
| 2014 | $275,579 | $166,090 | $1,417 | $288,046 | $288,046 |
| 2013 | $278,675 | $166,090 | $1,417 | $291,142 | $291,142 |
| 2012 | $282,031 | $191,633 | $1,417 | $320,041 | $320,041 |
| 2011 | $285,130 | $225,450 | $1,417 | $329,597 | $329,597 |
| 2010 | $0 | $182,400 | $1,417 | $1,417 | $1,417 |
| 2009 | $0 | $259,505 | $1,417 | $1,417 | $1,417 |
| 2008 | $0 | $259,505 | $1,417 | $1,417 | $1,417 |
| 2007 | $935 | $117,899 | $117,417 | $1,417 | $1,417 |
Deed and Sales History
| 1 | 07/02/2002 | WD | Warranty Deed | CARR, JOHN C | POTTER, LLOYD B | | | $131,500.00 | 22745 | 4025721 |
| 2 | 06/11/2002 | SEG | DNU - Segregation | Unknown | CARR, JOHN C | | | $0.00 | 69458 | 0 |
Payout Agreement
| No payout information available.. |