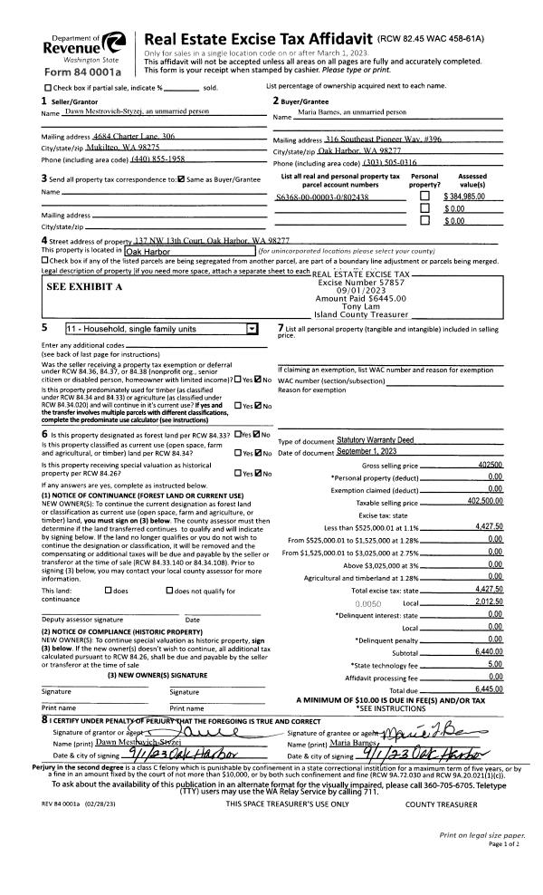
Property
Account |
| Property ID: | 803727 | Abbreviated Legal Description: | 11.1000 Acres ins Section 26s Township 33s Range R1s LOT 1 OH-BLA BND 18-01 IN NW SE;s |
| Geographic ID: | R13326-182-3010 | Agent Code: | |
| Type: | Real | | |
| Tax Area: | 100 - APPRAISER-OH Schl Dist, in OH | Land Use Code | 39 |
| Open Space: | N | DFL | N |
| Historic Property: | N | Remodel Property: | N |
| Multi-Family Redevelopment: | N | | |
| Township: | 33 | Section: | 26 |
| Range: | R1 |
Location |
| Address: | 970 NE 21ST CT OAK HARBOR, WA 98277 | Mapsco: | |
| Neighborhood: | 6AcOH-goldie rd | Map ID: | 231 |
| Neighborhood CD: | 6AcOHgolde |
Owner |
| Name: | DNB FACILITIES DEVELOPMENT LLC | Owner ID: | 257939 |
| Mailing Address: | PO BOX 1003 COUPEVILLE, WA 98239 | % Ownership: | 100.0000000000% |
| | | Exemptions: | |
Taxes and Assessment Details
Values
| (+) Improvement Homesite Value: | + | $0 | |
| (+) Improvement Non-Homesite Value: | + | $823,216 | |
| (+) Land Homesite Value: | + | $0 | |
| (+) Land Non-Homesite Value: | + | $967,032 | |
| (+) Curr Use (HS): | + | $0 | $0 |
| (+) Curr Use (NHS): | + | $0 | $0 |
| | | -------------------------- | |
| (=) Market Value: | = | $1,790,248 | |
| (–) Productivity Loss: | – | $0 | |
| | | -------------------------- | |
| (=) Subtotal: | = | $1,790,248 | |
| (+) Senior Appraised Value: | + | $0 | |
| (+) Non-Senior Appraised Value: | + | $1,790,248 | |
| | | -------------------------- | |
| (=) Total Appraised Value: | = | $1,790,248 | |
| (–) Senior Exemption Loss: | – | $0 | |
| (–) Exemption Loss: | – | $0 | |
| | | -------------------------- | |
| (=) Taxable Value: | = | $1,790,248 | |
Taxing Jurisdiction
| Owner: | DNB FACILITIES DEVELOPMENT LLC | | |
| % Ownership: | 100.0000000000% | | |
| Total Value: | $1,790,248 | | |
| Tax Area: | 100 - APPRAISER-OH Schl Dist, in OH |
| CF | Conservation Futures | 0.0316035091 | $1,790,248 | $1,790,248 | $56.58 | | |
| CEM1 | Cemetery #1 | 0.0040320932 | $1,790,248 | $1,790,248 | $7.22 | | |
| COH | City of Oak Harbor | 2.3001546061 | $1,790,248 | $1,790,248 | $4,117.85 | | |
| OAKBOND | City of Oak Harbor BOND | 0.1926904192 | $1,790,248 | $1,790,248 | $344.96 | | |
| HOBOND | Hospital BOND | 0.1910887512 | $1,790,248 | $1,790,248 | $342.10 | | |
| HOGEN | Hospital GEN | 0.3902502903 | $1,790,248 | $1,790,248 | $698.64 | | |
| CE | County Current Expense | 0.3708482477 | $1,790,248 | $1,790,248 | $663.91 | | |
| ISLANDEMS | Hospital GEN (EMS) | 0.5000000000 | $1,790,248 | $1,790,248 | $895.12 | | |
| LIB | Library Sno-Isle GEN | 0.3153421757 | $1,790,248 | $1,790,248 | $564.54 | | |
| NWHIDPRMT | P & R N Whidbey GEN | 0.2004466701 | $1,790,248 | $1,790,248 | $358.85 | | |
| SCH201MO | School 201 Enrichment | 1.8559231640 | $1,790,248 | $1,790,248 | $3,322.56 | | |
| ST | State School | 1.3035497053 | $1,790,248 | $1,790,248 | $2,333.68 | | |
| ST2 | State School Part 2 | 0.8169543533 | $1,790,248 | $1,790,248 | $1,462.55 | | |
| | Total Tax Rate: | 8.4728839852 | | | | | |
| | | | | Taxes w/Current Exemptions: | $15,168.56 | | |
| | | | | Taxes w/o Exemptions: | $15,168.56 | | |
Improvement / Building
| Improvement #1: | COMMERCIAL | State Code: | F1 | 12000.0 sqft | Value: | $374,890 |
| Bathrooms: | 0 | Bedrooms: | 0 | | Ceiling: | PAINT OPEN FLOOR BAS | Exterior Wall/Cover: | STL/ALUM/SINGWL ST F | | Floor Covering: | CONCRETE SEALER | Floor Structure: | CONCRETE ON GROUND | | Foundation: | SLAB | Heating: | SPACE HEATERS | | Interior Finish: | WAREHOUSE DISTRIBUTE | Plumbing Fixture Cnt: | 1 | | Roof Structure/Cover: | METAL/OPEN STEEL |   |   |
|
| Improvement #2: | COMMERCIAL | State Code: | F1 | 25048.0 sqft | Value: | $448,326 |
| Bathrooms: | 0 | Bedrooms: | 0 | | Ceiling: | PAINT OPEN FLOOR BAS | Exterior Wall/Cover: | STL/ALUM/SINGWL ST F | | Floor Covering: | CONCRETE SEALER | Floor Structure: | CONCRETE ON GROUND | | Foundation: | SLAB | Heating: | SPACE HEATERS | | Interior Finish: | MANUFACTURING (LIGHT) | Plumbing Fixture Cnt: | 1 | | Roof Structure/Cover: | METAL/OPEN STEEL |   |   |
|
| | Type | Description | Class CD | Sub Class CD | Year Built | Area |
| | BAS | BASE/MAIN FLOOR | 1 | 0 | 1973 | 25048.0 |
| | oPV1 | PV/ASPH 2" | 1 | 0 | 1973 | 57348.0 |
Sketch
Property Image
Land
| 1 | 71 | INDUSTRIAL MANUFACTURING | 11.1000 | 483516.00 | 0.00 | 0.00 | 1.00 | $967,032 | $0 |
Roll Value History
| 2026 | N/A | N/A | N/A | N/A | N/A |
| 2025 | $823,216 | $967,032 | $0 | $1,790,248 | $1,790,248 |
| 2024 | $867,514 | $967,032 | $0 | $1,834,546 | $1,834,546 |
| 2023 | $904,042 | $967,032 | $0 | $1,871,074 | $1,871,074 |
| 2022 | $790,084 | $970,299 | $0 | $1,760,383 | $1,760,383 |
| 2021 | $790,084 | $970,299 | $0 | $1,760,383 | $1,760,383 |
| 2020 | $790,084 | $970,299 | $0 | $1,760,383 | $1,760,383 |
| 2019 | $869,684 | $810,216 | $0 | $1,679,900 | $1,679,900 |
| 2018 | $869,684 | $604,395 | $0 | $1,474,079 | $1,474,079 |
| 2017 | $869,684 | $299,591 | $0 | $1,169,275 | $1,169,275 |
| 2016 | $853,740 | $299,591 | $0 | $1,153,331 | $1,153,331 |
| 2015 | $853,740 | $299,591 | $0 | $1,153,331 | $1,153,331 |
| 2014 | $853,740 | $299,591 | $0 | $1,153,331 | $1,153,331 |
| 2013 | $853,740 | $299,591 | $0 | $1,153,331 | $1,153,331 |
| 2012 | $853,740 | $299,591 | $0 | $1,153,331 | $1,153,331 |
| 2011 | $853,740 | $299,591 | $0 | $1,153,331 | $1,153,331 |
| 2010 | $907,702 | $299,591 | $0 | $1,207,293 | $1,207,293 |
| 2009 | $931,475 | $327,422 | $0 | $1,258,897 | $1,258,897 |
| 2008 | $952,031 | $344,655 | $0 | $1,296,686 | $1,296,686 |
| 2007 | $975,803 | $344,655 | $0 | $1,320,458 | $1,320,458 |
Deed and Sales History
| 1 | 06/01/2012 | QCD | Quit Claim Deed | TECHNICAL SERVICES INC | DNB FACILITIES DEVELOPMENT LLC | | | $0.00 | 7988 | 4317527 |
| 2 | 07/09/2002 | BLA | DNU - Boundary Line Adjustment | Unknown | TECHNICAL SERVICES INC, | | | $0.00 | 69491 | 20027764 |
Payout Agreement
| No payout information available.. |