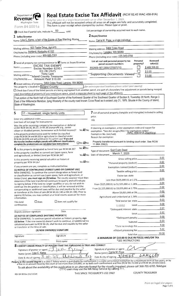
Property
Account |
| Property ID: | 803744 | Abbreviated Legal Description: | LOT 2 SP 307-99.03224.201-3050 V3 SP P400 AF#4003336 |
| Geographic ID: | R03224-201-2800 | Agent Code: | |
| Type: | Real | | |
| Tax Area: | 332 - APPRAISER-Cpvl Schl Dist, Special Dist, improved, greater than 1 acre | Land Use Code | 11 |
| Open Space: | N | DFL | N |
| Historic Property: | N | Remodel Property: | N |
| Multi-Family Redevelopment: | N | | |
| Township: | 32 | Section: | 24 |
| Range: | R0 |
Location |
| Address: | 2570 DARST RD COUPEVILLE, WA 98239 | Mapsco: | |
| Neighborhood: | Area 2 Waterfront Westside Res | Map ID: | 3 |
| Neighborhood CD: | 2WFTW01R |
Owner |
| Name: | BOLLES, FRANK P | Owner ID: | 190307 |
| Mailing Address: | RUTH H BOLLES 2570 DARST RD COUPEVILLE, WA 98239-9773 | % Ownership: | 100.0000000000% |
| | | Exemptions: | |
Taxes and Assessment Details
Values
| (+) Improvement Homesite Value: | + | $0 | |
| (+) Improvement Non-Homesite Value: | + | $949,309 | |
| (+) Land Homesite Value: | + | $0 | |
| (+) Land Non-Homesite Value: | + | $328,102 | |
| (+) Curr Use (HS): | + | $0 | $0 |
| (+) Curr Use (NHS): | + | $0 | $0 |
| | | -------------------------- | |
| (=) Market Value: | = | $1,277,411 | |
| (–) Productivity Loss: | – | $0 | |
| | | -------------------------- | |
| (=) Subtotal: | = | $1,277,411 | |
| (+) Senior Appraised Value: | + | $0 | |
| (+) Non-Senior Appraised Value: | + | $1,277,411 | |
| | | -------------------------- | |
| (=) Total Appraised Value: | = | $1,277,411 | |
| (–) Senior Exemption Loss: | – | $0 | |
| (–) Exemption Loss: | – | $0 | |
| | | -------------------------- | |
| (=) Taxable Value: | = | $1,277,411 | |
Taxing Jurisdiction
| Owner: | BOLLES, FRANK P | | |
| % Ownership: | 100.0000000000% | | |
| Total Value: | $1,277,411 | | |
| Tax Area: | 332 - APPRAISER-Cpvl Schl Dist, Special Dist, improved, greater than 1 acre |
| CF | Conservation Futures | 0.0316035091 | $1,277,411 | $1,277,411 | $40.37 | | |
| CEM2 | Cemetery #2 | 0.0095056933 | $1,277,411 | $1,277,411 | $12.14 | | |
| FIRE2 | Fire & Rescue Dist #2 N Whidbey GEN | 0.5475949600 | $1,277,411 | $1,277,411 | $699.50 | | |
| HOBOND | Hospital BOND | 0.1910887512 | $1,277,411 | $1,277,411 | $244.10 | | |
| HOGEN | Hospital GEN | 0.3902502903 | $1,277,411 | $1,277,411 | $498.51 | | |
| CE | County Current Expense | 0.3708482477 | $1,277,411 | $1,277,411 | $473.73 | | |
| CR | County Roads | 0.4584763726 | $1,277,411 | $1,277,411 | $585.66 | | |
| ISLANDEMS | Hospital GEN (EMS) | 0.5000000000 | $1,277,411 | $1,277,411 | $638.71 | | |
| LIB | Library Sno-Isle GEN | 0.3153421757 | $1,277,411 | $1,277,411 | $402.82 | | |
| LIBCAP | Library Sno-Isle BOND (Cap Fac Imp Area) | 0.0543427938 | $1,277,411 | $1,277,411 | $69.42 | | |
| POCOUP | Port of Coupeville GEN | 0.1093371703 | $1,277,411 | $1,277,411 | $139.67 | | |
| POCOUPIDD | Port of Coupeville IDD | 0.3409740022 | $1,277,411 | $1,277,411 | $435.56 | | |
| COUPSDTECH | School 204 CP (TECH) | 0.7545480007 | $1,277,411 | $1,277,411 | $963.87 | | |
| SCH204MO | School 204 Enrichment | 0.6716186034 | $1,277,411 | $1,277,411 | $857.93 | | |
| ST | State School | 1.3035497053 | $1,277,411 | $1,277,411 | $1,665.17 | | |
| ST2 | State School Part 2 | 0.8169543533 | $1,277,411 | $1,277,411 | $1,043.59 | | |
| | Total Tax Rate: | 6.8660346289 | | | | | |
| | | | | Taxes w/Current Exemptions: | $8,770.75 | | |
| | | | | Taxes w/o Exemptions: | $8,770.75 | | |
Improvement / Building
| Improvement #1: | RESIDENTIAL | State Code: | Y | 4612.6 sqft | Value: | $949,309 |
| Bathrooms: | 4 | Bedrooms: | 4 | | Ceiling: | BEAM PAINTED | Exterior Wall/Cover: | LOG RUSTIC HAND HEWN/OVERSIZED | | Floor Covering: | COLORED CONCRETE | Floor Structure: | WOOD W/SUBFLOOR | | Foundation: | CONCRETE | Heating: | RADIANT FLOOR | | Interior Finish: | DRYWALL PAINT | Plumbing Fixture Cnt: | 16 | | Roof Slope: | 12" IN 12" | Roof Structure/Cover: | BEAM ASPHALT |
|
| | Type | Description | Class CD | Sub Class CD | Year Built | Area |
| | BAS | BASE/MAIN FLOOR | 5 | 0 | 2005 | 2316.0 |
| | AGR | ATTACHED GARAGE | 5 | 0 | 2005 | 252.2 |
| | BIG | BUILT IN GARAGE | 5 | 0 | 2005 | 672.0 |
| | UTY | STORAGE/UTILITY | 5 | 0 | 2005 | 576.0 |
| | UPS | UPPER STORY | 5 | 0 | 2005 | 2016.0 |
| | OWP | OPEN WOOD PORCH W/STEPS | 5 | 0 | 2005 | 327.3 |
| | OWR | OPEN WOOD PORCH W/STEPS/ROOF | 5 | 0 | 2005 | 256.0 |
| | ENP | ENCLOSED PORCH | 5 | 0 | 2005 | 83.9 |
| | LOF | LOFT | 5 | 0 | 2005 | 280.6 |
| | CPD | OPEN CARPORT DIRT FLOOR | 5 | 0 | 2005 | 240.0 |
| | CPD | OPEN CARPORT DIRT FLOOR | 5 | 0 | 2005 | 235.0 |
| | CPD | OPEN CARPORT DIRT FLOOR | 5 | 0 | 2005 | 240.0 |
Sketch
| No sketches available for this property. |
Property Image
Land
| 1 | HS | HOMESITE | 1.0000 | 43560.00 | 0.00 | 0.00 | 1.00 | $270,000 | $0 |
| 2 | 91 | UNDEVELOPED LAND-METES AND BOUNDS | 3.3000 | 143748.00 | 0.00 | 0.00 | 1.00 | $58,102 | $0 |
Roll Value History
| 2026 | N/A | N/A | N/A | N/A | N/A |
| 2025 | $949,309 | $328,102 | $0 | $1,277,411 | $1,277,411 |
| 2024 | $1,017,226 | $320,000 | $0 | $1,337,226 | $1,337,226 |
| 2023 | $1,029,445 | $310,000 | $0 | $1,339,445 | $1,339,445 |
| 2022 | $943,264 | $290,000 | $0 | $1,233,264 | $1,233,264 |
| 2021 | $829,823 | $220,000 | $0 | $1,049,823 | $1,049,823 |
| 2020 | $810,728 | $200,000 | $0 | $1,010,728 | $1,010,728 |
| 2019 | $737,876 | $250,000 | $0 | $987,876 | $987,876 |
| 2018 | $689,495 | $240,000 | $0 | $929,495 | $929,495 |
| 2017 | $693,422 | $200,000 | $0 | $893,422 | $893,422 |
| 2016 | $701,391 | $200,000 | $0 | $901,391 | $901,391 |
| 2015 | $709,364 | $165,000 | $0 | $874,364 | $874,364 |
| 2014 | $717,334 | $143,190 | $0 | $860,524 | $860,524 |
| 2013 | $725,302 | $143,190 | $0 | $868,492 | $868,492 |
| 2012 | $739,308 | $143,190 | $0 | $882,498 | $882,498 |
| 2011 | $747,346 | $159,100 | $0 | $906,446 | $906,446 |
| 2010 | $784,905 | $155,000 | $0 | $939,905 | $939,905 |
| 2009 | $809,200 | $160,000 | $0 | $969,200 | $969,200 |
| 2008 | $817,648 | $190,000 | $0 | $1,007,648 | $1,007,648 |
| 2007 | $826,083 | $190,000 | $0 | $1,016,083 | $1,016,083 |
Deed and Sales History
| 1 | 05/21/2003 | WD | Warranty Deed | BONACCI, RICHARD J | BOLLES, FRANK P | | | $156,500.00 | 32176 | 4060050 |
| 2 | 01/01/1900 | OTHER | Other - Misc. Documents | Unknown | BONACCI, RICHARD J | | | $0.00 | 0 | 0 |
Payout Agreement
| No payout information available.. |