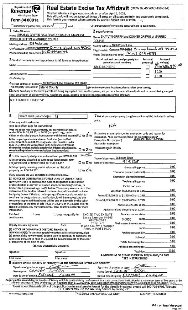
Property
Account |
| Property ID: | 803754 | Abbreviated Legal Description: | IN J C DAVIS DC - E868.36' OF W1726.86' OF N507.60' OF S1043.52' OF SD DLC EX ANY PT LY IN BLA 235/99 AF#20001790 |
| Geographic ID: | R13105-458-3740 | Agent Code: | |
| Type: | Real | | |
| Tax Area: | 319 - APPRAISER-Cpvl Schl Dist, outside Cpvl, vacant & 50 acres or less | Land Use Code | 83 |
| Open Space: | Y | DFL | N |
| Historic Property: | N | Remodel Property: | N |
| Multi-Family Redevelopment: | N | | |
| Township: | 31 | Section: | 05 |
| Range: | R1 |
Location |
| Address: | COUPEVILLE, WA 98239 | Mapsco: | |
| Neighborhood: | Cycle 2 | Map ID: | 36 |
| Neighborhood CD: | 2 |
Owner |
| Name: | SHERMAN FARMS INC | Owner ID: | 198803 |
| Mailing Address: | 48 S SHERMAN RD COUPEVILLE, WA 98239-3301 | % Ownership: | 100.0000000000% |
| | | Exemptions: | |
Taxes and Assessment Details
Values
| (+) Improvement Homesite Value: | + | $0 | |
| (+) Improvement Non-Homesite Value: | + | $0 | |
| (+) Land Homesite Value: | + | $0 | |
| (+) Land Non-Homesite Value: | + | $0 | |
| (+) Curr Use (HS): | + | $0 | $0 |
| (+) Curr Use (NHS): | + | $325,082 | $2,453 |
| | | -------------------------- | |
| (=) Market Value: | = | $325,082 | |
| (–) Productivity Loss: | – | $322,629 | |
| | | -------------------------- | |
| (=) Subtotal: | = | $2,453 | |
| (+) Senior Appraised Value: | + | $0 | |
| (+) Non-Senior Appraised Value: | + | $2,453 | |
| | | -------------------------- | |
| (=) Total Appraised Value: | = | $2,453 | |
| (–) Senior Exemption Loss: | – | $0 | |
| (–) Exemption Loss: | – | $0 | |
| | | -------------------------- | |
| (=) Taxable Value: | = | $2,453 | |
Taxing Jurisdiction
| Owner: | SHERMAN FARMS INC | | |
| % Ownership: | 100.0000000000% | | |
| Total Value: | $325,082 | | |
| Tax Area: | 319 - APPRAISER-Cpvl Schl Dist, outside Cpvl, vacant & 50 acres or less |
| CF | Conservation Futures | 0.0316035091 | $2,453 | $2,453 | $0.08 | | |
| CEM2 | Cemetery #2 | 0.0095056933 | $2,453 | $2,453 | $0.02 | | |
| HOBOND | Hospital BOND | 0.1910887512 | $2,453 | $2,453 | $0.47 | | |
| HOGEN | Hospital GEN | 0.3902502903 | $2,453 | $2,453 | $0.96 | | |
| CE | County Current Expense | 0.3708482477 | $2,453 | $2,453 | $0.91 | | |
| CR | County Roads | 0.4584763726 | $2,453 | $2,453 | $1.12 | | |
| ISLANDEMS | Hospital GEN (EMS) | 0.5000000000 | $2,453 | $2,453 | $1.23 | | |
| LIB | Library Sno-Isle GEN | 0.3153421757 | $2,453 | $2,453 | $0.77 | | |
| LIBCAP | Library Sno-Isle BOND (Cap Fac Imp Area) | 0.0543427938 | $2,453 | $2,453 | $0.13 | | |
| POCOUP | Port of Coupeville GEN | 0.1093371703 | $2,453 | $2,453 | $0.27 | | |
| POCOUPIDD | Port of Coupeville IDD | 0.3409740022 | $2,453 | $2,453 | $0.84 | | |
| COUPSDTECH | School 204 CP (TECH) | 0.7545480007 | $2,453 | $2,453 | $1.85 | | |
| SCH204MO | School 204 Enrichment | 0.6716186034 | $2,453 | $2,453 | $1.65 | | |
| ST | State School | 1.3035497053 | $2,453 | $2,453 | $3.20 | | |
| ST2 | State School Part 2 | 0.8169543533 | $2,453 | $2,453 | $2.00 | | |
| | Total Tax Rate: | 6.3184396689 | | | | | |
| | | | | Taxes w/Current Exemptions: | $15.50 | | |
| | | | | Taxes w/o Exemptions: | $15.50 | | |
Improvement / Building
Sketch
| No sketches available for this property. |
Property Image
Land
| 1 | 83 | OPEN AGRICULTURE | 10.1000 | 439956.00 | 0.00 | 0.00 | 1.00 | $325,082 | $2,453 |
Roll Value History
| 2026 | N/A | N/A | N/A | N/A | N/A |
| 2025 | $0 | $325,082 | $2,453 | $2,453 | $2,453 |
| 2024 | $844 | $320,000 | $2,453 | $3,297 | $3,297 |
| 2023 | $844 | $300,000 | $2,453 | $3,297 | $3,297 |
| 2022 | $844 | $300,000 | $2,453 | $3,297 | $3,297 |
| 2021 | $844 | $250,000 | $2,453 | $3,297 | $3,297 |
| 2020 | $844 | $245,000 | $2,453 | $3,297 | $3,297 |
| 2019 | $844 | $200,000 | $2,453 | $3,297 | $3,297 |
| 2018 | $844 | $180,000 | $2,453 | $3,297 | $3,297 |
| 2017 | $844 | $220,000 | $2,453 | $3,297 | $3,297 |
| 2016 | $844 | $180,000 | $2,453 | $3,297 | $3,297 |
| 2015 | $844 | $180,000 | $2,453 | $3,297 | $3,297 |
| 2014 | $844 | $214,625 | $2,453 | $3,297 | $3,297 |
| 2013 | $844 | $214,625 | $2,453 | $3,297 | $3,297 |
| 2012 | $844 | $214,625 | $2,453 | $3,297 | $3,297 |
| 2011 | $844 | $252,500 | $2,453 | $3,297 | $3,297 |
| 2010 | $844 | $252,500 | $2,453 | $3,297 | $3,297 |
| 2009 | $844 | $252,500 | $2,453 | $3,297 | $3,297 |
| 2008 | $844 | $171,700 | $2,453 | $3,297 | $3,297 |
| 2007 | $844 | $136,296 | $2,453 | $3,297 | $3,297 |
Deed and Sales History
| 1 | 07/25/2007 | QCD | Quit Claim Deed | SHERMAN-BISHOP FARMS INC, | SHERMAN FARMS INC., | | | $0.00 | 72989 | 4210930 |
| 2 | 07/24/2002 | SEG | DNU - Segregation | Unknown | SHERMAN-BISHOP FARMS INC, | | | $0.00 | 69517 | 0 |
Payout Agreement
| No payout information available.. |