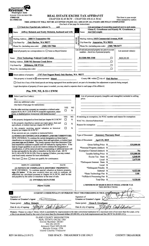
Property
Account |
| Property ID: | 803927 | Abbreviated Legal Description: | LOT 2 SP 133-01.23112.309-0350 V3 SP P401-3 AF#4003866 |
| Geographic ID: | R23112-292-0340 | Agent Code: | |
| Type: | Real | | |
| Tax Area: | 512 - APPRAISER-Stan/Cam Schl Dist, improved, greater than 1 acre | Land Use Code | 11 |
| Open Space: | N | DFL | N |
| Historic Property: | N | Remodel Property: | N |
| Multi-Family Redevelopment: | N | | |
| Township: | 31 | Section: | 12 |
| Range: | R2 |
Location |
| Address: | 585 S CAMANO RIDGE RD CAMANO ISLAND, WA 98282 | Mapsco: | |
| Neighborhood: | Cycle 5 | Map ID: | 475 |
| Neighborhood CD: | 5 |
Owner |
| Name: | CLISE, RICHARD H | Owner ID: | 261647 |
| Mailing Address: | 1410 COUNTRY CLUB DR CAMANO ISLAND, WA 98282 | % Ownership: | 100.0000000000% |
| | | Exemptions: | |
Taxes and Assessment Details
Values
| (+) Improvement Homesite Value: | + | $0 | |
| (+) Improvement Non-Homesite Value: | + | $556,175 | |
| (+) Land Homesite Value: | + | $0 | |
| (+) Land Non-Homesite Value: | + | $330,000 | |
| (+) Curr Use (HS): | + | $0 | $0 |
| (+) Curr Use (NHS): | + | $0 | $0 |
| | | -------------------------- | |
| (=) Market Value: | = | $886,175 | |
| (–) Productivity Loss: | – | $0 | |
| | | -------------------------- | |
| (=) Subtotal: | = | $886,175 | |
| (+) Senior Appraised Value: | + | $0 | |
| (+) Non-Senior Appraised Value: | + | $886,175 | |
| | | -------------------------- | |
| (=) Total Appraised Value: | = | $886,175 | |
| (–) Senior Exemption Loss: | – | $0 | |
| (–) Exemption Loss: | – | $0 | |
| | | -------------------------- | |
| (=) Taxable Value: | = | $886,175 | |
Taxing Jurisdiction
| Owner: | CLISE, RICHARD H | | |
| % Ownership: | 100.0000000000% | | |
| Total Value: | $886,175 | | |
| Tax Area: | 512 - APPRAISER-Stan/Cam Schl Dist, improved, greater than 1 acre |
| CF | Conservation Futures | 0.0316035091 | $886,175 | $886,175 | $28.01 | | |
| EMS1 | Fire & Rescue Dist #1 Camano GEN (EMS) | 0.3677864386 | $886,175 | $886,175 | $325.92 | | |
| FIRE1 | Fire & Rescue Dist #1 Camano GEN | 1.2502910536 | $886,175 | $886,175 | $1,107.98 | | |
| FIRE1BOND | Fire & Rescue Dist #1 Camano BOND | 0.1570001679 | $886,175 | $886,175 | $139.13 | | |
| CE | County Current Expense | 0.3708482477 | $886,175 | $886,175 | $328.64 | | |
| CR | County Roads | 0.4584763726 | $886,175 | $886,175 | $406.29 | | |
| LCIB | Library Sno-Isle BOND (Camano Island) | 0.0396325772 | $886,175 | $886,175 | $35.12 | | |
| LIB | Library Sno-Isle GEN | 0.3153421757 | $886,175 | $886,175 | $279.45 | | |
| SCH205_401 | School 205-401 Enrichment | 1.2698420524 | $886,175 | $886,175 | $1,125.30 | | |
| SCH205BOND | School 205-401 BOND | 0.9396497583 | $886,175 | $886,175 | $832.69 | | |
| ST | State School | 1.3035497053 | $886,175 | $886,175 | $1,155.17 | | |
| ST2 | State School Part 2 | 0.8169543533 | $886,175 | $886,175 | $723.96 | | |
| | Total Tax Rate: | 7.3209764117 | | | | | |
| | | | | Taxes w/Current Exemptions: | $6,487.66 | | |
| | | | | Taxes w/o Exemptions: | $6,487.66 | | |
Improvement / Building
| Improvement #1: | RESIDENTIAL | State Code: | Y | 2710.7 sqft | Value: | $556,175 |
| Bathrooms: | 2 | Bedrooms: | 4 | | Ceiling: | DRYWALL PAINTED | Exterior Wall/Cover: | WOOD SIDING | | Floor Covering: | HARDWOOD/CARP 20-80 | Floor Structure: | WOOD W/SUBFLOOR | | Foundation: | CONCRETE | Heating: | FHA GAS | | Interior Finish: | DRYWALL PAINT | Plumbing Fixture Cnt: | 14 | | Roof Slope: | 8" IN 12" | Roof Structure/Cover: | CJ ASPHALT |
|
| | Type | Description | Class CD | Sub Class CD | Year Built | Area |
| | BAS | BASE/MAIN FLOOR | 4 | 0 | 2003 | 2206.7 |
| | OP1 | OPEN PORCH SLAB | 4 | 0 | 2003 | 532.0 |
| | OP4 | OPEN PORCH W/CEILING-ROOF | 4 | 0 | 2003 | 45.0 |
| | OP4 | OPEN PORCH W/CEILING-ROOF | 4 | 0 | 2003 | 89.1 |
| | AGR | ATTACHED GARAGE | 4 | 0 | 2003 | 864.0 |
| | UPS | UPPER STORY | 4 | 0 | 2003 | 504.0 |
| | DGR | DETACHED GARAGE | 4 | 0 | 2003 | 120.0 |
| | CPD | OPEN CARPORT DIRT FLOOR | 4 | 0 | 2003 | 120.0 |
| | CPD | OPEN CARPORT DIRT FLOOR | 4 | 0 | 2003 | 120.0 |
Sketch
Property Image
Land
| 1 | 32 | AC (03.01-09.99) | 4.5700 | 0.00 | 0.00 | 0.00 | 1.00 | $330,000 | $0 |
Roll Value History
| 2026 | N/A | N/A | N/A | N/A | N/A |
| 2025 | $556,175 | $330,000 | $0 | $886,175 | $886,175 |
| 2024 | $562,854 | $300,000 | $0 | $862,854 | $862,854 |
| 2023 | $569,538 | $290,000 | $0 | $859,538 | $859,538 |
| 2022 | $521,765 | $290,000 | $0 | $811,765 | $811,765 |
| 2021 | $443,191 | $190,000 | $0 | $633,191 | $633,191 |
| 2020 | $432,063 | $160,000 | $0 | $592,063 | $592,063 |
| 2019 | $326,254 | $230,000 | $0 | $556,254 | $556,254 |
| 2018 | $323,207 | $175,000 | $0 | $498,207 | $498,207 |
| 2017 | $325,073 | $150,000 | $0 | $475,073 | $475,073 |
| 2016 | $328,809 | $125,000 | $0 | $453,809 | $453,809 |
| 2015 | $340,274 | $114,250 | $0 | $454,524 | $454,524 |
| 2014 | $344,071 | $114,250 | $0 | $458,321 | $458,321 |
| 2013 | $347,867 | $102,368 | $0 | $450,235 | $450,235 |
| 2012 | $351,662 | $102,368 | $0 | $454,030 | $454,030 |
| 2011 | $355,458 | $127,960 | $0 | $483,418 | $483,418 |
| 2010 | $367,213 | $127,960 | $0 | $495,173 | $495,173 |
| 2009 | $382,665 | $146,240 | $0 | $528,905 | $528,905 |
| 2008 | $408,697 | $196,510 | $0 | $605,207 | $605,207 |
| 2007 | $409,435 | $134,815 | $0 | $544,250 | $544,250 |
Deed and Sales History
| 1 | 04/17/2019 | WD | Warranty Deed | HAWKINS, LORIN D | CLISE, RICHARD H | | | $580,000.00 | 37998 | 4461075 |
| 2 | 11/17/2008 | WD | Warranty Deed | BUCK, KAREN L | HAWKINS, LORIN D | | | $469,950.00 | 83051 | 4240717 |
| 3 | 05/21/2008 | PRD | Personal Representatives Deed | BUCK, KAREN L | BUCK, KAREN L | | | $0.00 | 81386 | 4229880 |
| 4 | 02/21/2008 | QCD | Quit Claim Deed | BUCK, GREGORY L | BUCK, KAREN L | | | $0.00 | 80433 | 4222520 |
| 5 | 10/10/2003 | WD | Warranty Deed | SUNDBERG HOMES INC, | BUCK, GREGORY L | | | $399,500.00 | 34712 | 4079630 |
| 6 | 10/21/2002 | WD | Warranty Deed | SUNDBERG, KEVIN | SUNDBERG HOMES INC, | | | $130,000.00 | 24235 | 4035035 |
| 7 | 01/01/1900 | OTHER | Other - Misc. Documents | Unknown | SUNDBERG, KEVIN | | | $0.00 | 0 | 0 |
Payout Agreement
| No payout information available.. |