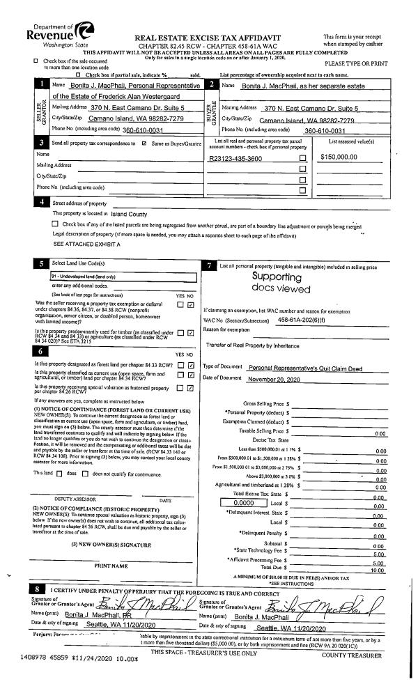
Property
Account |
| Property ID: | 803932 | Abbreviated Legal Description: | LOT 2 SP 269-97.13235.165-4000 & .231-4000 V3 SP P405-6 AF#4005274 |
| Geographic ID: | R13235-214-4000 | Agent Code: | |
| Type: | Real | | |
| Tax Area: | 312 - APPRAISER-Cpvl Schl Dist, outside Cpvl, improved, greater than 1 acre | Land Use Code | 11 |
| Open Space: | N | DFL | N |
| Historic Property: | N | Remodel Property: | N |
| Multi-Family Redevelopment: | N | | |
| Township: | 32 | Section: | 35 |
| Range: | R1 |
Location |
| Address: | 506 CORMICK CT COUPEVILLE, WA 98239 | Mapsco: | |
| Neighborhood: | Cycle 2 | Map ID: | 182 |
| Neighborhood CD: | 2 |
Owner |
| Name: | KEHOE, DUSTIN | Owner ID: | 294989 |
| Mailing Address: | JILL KEHOE 506 CORMICK CT COUPEVILLE, WA 98239 | % Ownership: | 100.0000000000% |
| | | Exemptions: | |
Taxes and Assessment Details
Values
| (+) Improvement Homesite Value: | + | $0 | |
| (+) Improvement Non-Homesite Value: | + | $221,151 | |
| (+) Land Homesite Value: | + | $0 | |
| (+) Land Non-Homesite Value: | + | $340,000 | |
| (+) Curr Use (HS): | + | $0 | $0 |
| (+) Curr Use (NHS): | + | $0 | $0 |
| | | -------------------------- | |
| (=) Market Value: | = | $561,151 | |
| (–) Productivity Loss: | – | $0 | |
| | | -------------------------- | |
| (=) Subtotal: | = | $561,151 | |
| (+) Senior Appraised Value: | + | $0 | |
| (+) Non-Senior Appraised Value: | + | $561,151 | |
| | | -------------------------- | |
| (=) Total Appraised Value: | = | $561,151 | |
| (–) Senior Exemption Loss: | – | $0 | |
| (–) Exemption Loss: | – | $0 | |
| | | -------------------------- | |
| (=) Taxable Value: | = | $561,151 | |
Taxing Jurisdiction
| Owner: | KEHOE, DUSTIN | | |
| % Ownership: | 100.0000000000% | | |
| Total Value: | $561,151 | | |
| Tax Area: | 312 - APPRAISER-Cpvl Schl Dist, outside Cpvl, improved, greater than 1 acre |
| CF | Conservation Futures | 0.0316035091 | $561,151 | $561,151 | $17.73 | | |
| CEM2 | Cemetery #2 | 0.0095056933 | $561,151 | $561,151 | $5.33 | | |
| FIRE5 | Fire & Rescue Dist #5 C Whidbey GEN | 1.2008080668 | $561,151 | $561,151 | $673.83 | | |
| FIRE5BOND | Fire & Rescue Dist #5 C Whidbey BOND | 0.1400090713 | $561,151 | $561,151 | $78.57 | | |
| HOBOND | Hospital BOND | 0.1910887512 | $561,151 | $561,151 | $107.23 | | |
| HOGEN | Hospital GEN | 0.3902502903 | $561,151 | $561,151 | $218.99 | | |
| CE | County Current Expense | 0.3708482477 | $561,151 | $561,151 | $208.10 | | |
| CR | County Roads | 0.4584763726 | $561,151 | $561,151 | $257.27 | | |
| ISLANDEMS | Hospital GEN (EMS) | 0.5000000000 | $561,151 | $561,151 | $280.58 | | |
| LIB | Library Sno-Isle GEN | 0.3153421757 | $561,151 | $561,151 | $176.95 | | |
| LIBCAP | Library Sno-Isle BOND (Cap Fac Imp Area) | 0.0543427938 | $561,151 | $561,151 | $30.49 | | |
| POCOUP | Port of Coupeville GEN | 0.1093371703 | $561,151 | $561,151 | $61.35 | | |
| POCOUPIDD | Port of Coupeville IDD | 0.3409740022 | $561,151 | $561,151 | $191.34 | | |
| COUPSDTECH | School 204 CP (TECH) | 0.7545480007 | $561,151 | $561,151 | $423.42 | | |
| SCH204MO | School 204 Enrichment | 0.6716186034 | $561,151 | $561,151 | $376.88 | | |
| ST | State School | 1.3035497053 | $561,151 | $561,151 | $731.49 | | |
| ST2 | State School Part 2 | 0.8169543533 | $561,151 | $561,151 | $458.43 | | |
| | Total Tax Rate: | 7.6592568070 | | | | | |
| | | | | Taxes w/Current Exemptions: | $4,297.98 | | |
| | | | | Taxes w/o Exemptions: | $4,297.98 | | |
Improvement / Building
| Improvement #1: | RESIDENTIAL | State Code: | Y | 896.0 sqft | Value: | $221,151 |
| Bathrooms: | 1 | Bedrooms: | 1 | | Ceiling: | DRYWALL PAINTED | Cooling: | HEAT PUMP/CONV/V | | Exterior Wall/Cover: | VINYL | Floor Covering: | VINYL 100% | | Floor Structure: | SLAB ON GRADE | Foundation: | SLAB | | Interior Finish: | DRYWALL PAINT | Plumbing Fixture Cnt: | 6 | | Roof Slope: | 3" IN 12" | Roof Structure/Cover: | BUILT-UP/OPEN WOOD |
|
| | Type | Description | Class CD | Sub Class CD | Year Built | Area |
| | BAS | BASE/MAIN FLOOR | 3 | 0 | 2008 | 624.0 |
| | UPS | UPPER STORY | 3 | 0 | 2008 | 272.0 |
| | AGR | ATTACHED GARAGE | 3 | 0 | 2008 | 1104.0 |
| | OP3 | OPEN PORCH W/ROOF | 3 | 0 | 2008 | 432.0 |
| | OWP | OPEN WOOD PORCH W/STEPS | 3 | 0 | 2008 | 288.0 |
Sketch
Property Image
Land
| 1 | 91 | UNDEVELOPED LAND-METES AND BOUNDS | 4.0000 | 174240.00 | 0.00 | 0.00 | 1.00 | $120,000 | $0 |
| 2 | HS | HOMESITE | 1.0000 | 43560.00 | 0.00 | 0.00 | 1.00 | $220,000 | $0 |
Roll Value History
| 2026 | N/A | N/A | N/A | N/A | N/A |
| 2025 | $221,151 | $340,000 | $0 | $561,151 | $561,151 |
| 2024 | $221,151 | $300,000 | $0 | $521,151 | $521,151 |
| 2023 | $223,117 | $280,000 | $0 | $503,117 | $503,117 |
| 2022 | $203,589 | $260,000 | $0 | $463,589 | $463,589 |
| 2021 | $178,490 | $180,000 | $0 | $358,490 | $358,490 |
| 2020 | $162,117 | $160,000 | $0 | $322,117 | $322,117 |
| 2019 | $113,977 | $230,000 | $0 | $343,977 | $343,977 |
| 2018 | $113,020 | $220,000 | $0 | $333,020 | $333,020 |
| 2017 | $39,321 | $200,000 | $0 | $239,321 | $239,321 |
| 2016 | $56,761 | $150,000 | $0 | $206,761 | $206,761 |
| 2015 | $56,761 | $121,500 | $0 | $178,261 | $178,261 |
| 2014 | $56,761 | $121,500 | $0 | $178,261 | $178,261 |
| 2013 | $56,761 | $121,500 | $0 | $178,261 | $178,261 |
| 2012 | $56,761 | $121,500 | $0 | $178,261 | $178,261 |
| 2011 | $56,761 | $135,000 | $0 | $191,761 | $191,761 |
| 2010 | $50,665 | $135,000 | $0 | $185,665 | $185,665 |
| 2009 | $51,144 | $150,000 | $0 | $201,144 | $201,144 |
| 2008 | $52,056 | $115,000 | $0 | $167,056 | $167,056 |
| 2007 | $3,570 | $115,430 | $0 | $119,000 | $119,000 |
Deed and Sales History
| 1 | 06/30/2020 | WD | Warranty Deed | SMITH, DAVID FRANKLIN | KEHOE, DUSTIN | | | $396,000.00 | 43615 | 4490279 |
| 2 | 11/08/2016 | WD | Warranty Deed | GERRITSEN TRUSTEE, HANS A | SMITH, DAVID FRANKLIN | | | $230,000.00 | 26961 | 4411648 |
| 3 | 07/25/2005 | WD | Warranty Deed | CRAIG, ROBERT L & DORIS A | GERRITSEN TRUSTEE, HANS A | | | $110,000.00 | 53772 | 4142833 |
Payout Agreement
| No payout information available.. |