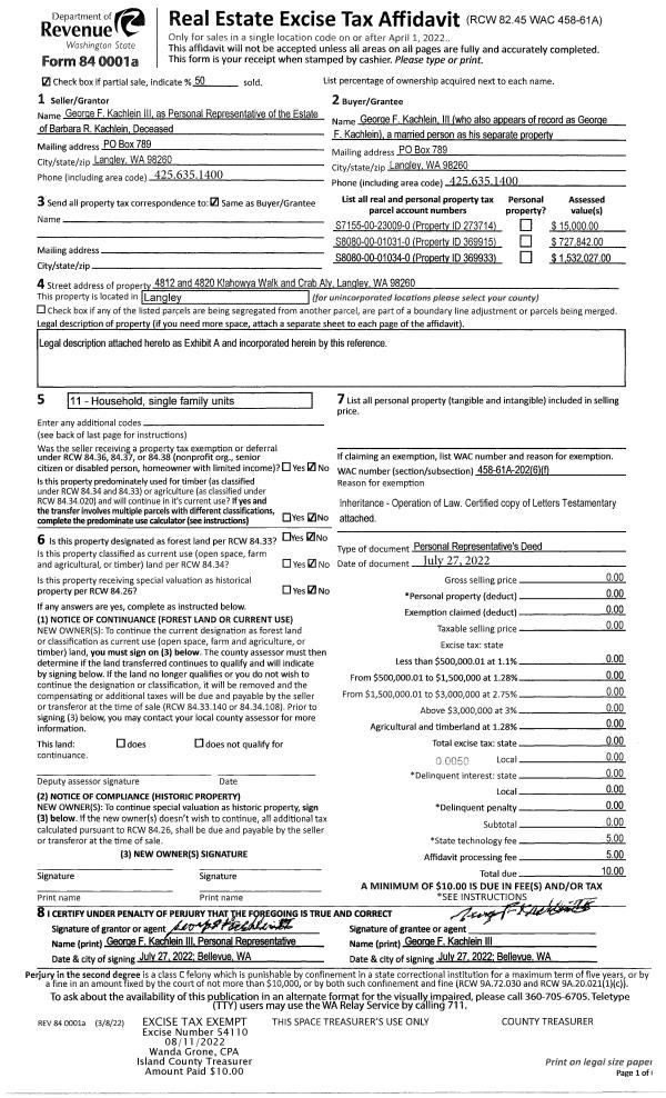
Property
Account |
| Property ID: | 803966 | Abbreviated Legal Description: | LOT 1 SP 409-01.23114.242-3000 V3 SP P445-7 AF#4023903 |
| Geographic ID: | R23114-220-2980 | Agent Code: | |
| Type: | Real | | |
| Tax Area: | 510 - APPRAISER-Stan/Cam Schl Dist, improved & 1 acre or less | Land Use Code | 11 |
| Open Space: | N | DFL | N |
| Historic Property: | N | Remodel Property: | N |
| Multi-Family Redevelopment: | N | | |
| Township: | 31 | Section: | 14 |
| Range: | R2 |
Location |
| Address: | 588 KODIAK AVE CAMANO ISLAND, WA 98282 | Mapsco: | |
| Neighborhood: | Cycle 5 | Map ID: | 482 |
| Neighborhood CD: | 5 |
Owner |
| Name: | PURDY, WADE E | Owner ID: | 188726 |
| Mailing Address: | 17721 108TH ST SE SNOHOMISH, WA 98290-6334 | % Ownership: | 100.0000000000% |
| | | Exemptions: | |
Taxes and Assessment Details
Values
| (+) Improvement Homesite Value: | + | $0 | |
| (+) Improvement Non-Homesite Value: | + | $275,562 | |
| (+) Land Homesite Value: | + | $0 | |
| (+) Land Non-Homesite Value: | + | $250,000 | |
| (+) Curr Use (HS): | + | $0 | $0 |
| (+) Curr Use (NHS): | + | $0 | $0 |
| | | -------------------------- | |
| (=) Market Value: | = | $525,562 | |
| (–) Productivity Loss: | – | $0 | |
| | | -------------------------- | |
| (=) Subtotal: | = | $525,562 | |
| (+) Senior Appraised Value: | + | $0 | |
| (+) Non-Senior Appraised Value: | + | $525,562 | |
| | | -------------------------- | |
| (=) Total Appraised Value: | = | $525,562 | |
| (–) Senior Exemption Loss: | – | $0 | |
| (–) Exemption Loss: | – | $0 | |
| | | -------------------------- | |
| (=) Taxable Value: | = | $525,562 | |
Taxing Jurisdiction
| Owner: | PURDY, WADE E | | |
| % Ownership: | 100.0000000000% | | |
| Total Value: | $525,562 | | |
| Tax Area: | 510 - APPRAISER-Stan/Cam Schl Dist, improved & 1 acre or less |
| CF | Conservation Futures | 0.0316035091 | $525,562 | $525,562 | $16.61 | | |
| EMS1 | Fire & Rescue Dist #1 Camano GEN (EMS) | 0.3677864386 | $525,562 | $525,562 | $193.29 | | |
| FIRE1 | Fire & Rescue Dist #1 Camano GEN | 1.2502910536 | $525,562 | $525,562 | $657.11 | | |
| FIRE1BOND | Fire & Rescue Dist #1 Camano BOND | 0.1570001679 | $525,562 | $525,562 | $82.51 | | |
| CE | County Current Expense | 0.3708482477 | $525,562 | $525,562 | $194.90 | | |
| CR | County Roads | 0.4584763726 | $525,562 | $525,562 | $240.96 | | |
| LCIB | Library Sno-Isle BOND (Camano Island) | 0.0396325772 | $525,562 | $525,562 | $20.83 | | |
| LIB | Library Sno-Isle GEN | 0.3153421757 | $525,562 | $525,562 | $165.73 | | |
| SCH205_401 | School 205-401 Enrichment | 1.2698420524 | $525,562 | $525,562 | $667.38 | | |
| SCH205BOND | School 205-401 BOND | 0.9396497583 | $525,562 | $525,562 | $493.84 | | |
| ST | State School | 1.3035497053 | $525,562 | $525,562 | $685.10 | | |
| ST2 | State School Part 2 | 0.8169543533 | $525,562 | $525,562 | $429.36 | | |
| | Total Tax Rate: | 7.3209764117 | | | | | |
| | | | | Taxes w/Current Exemptions: | $3,847.62 | | |
| | | | | Taxes w/o Exemptions: | $3,847.62 | | |
Improvement / Building
| Improvement #1: | RESIDENTIAL | State Code: | Y | 1461.8 sqft | Value: | $275,562 |
| Bathrooms: | 2 | Bedrooms: | 3 | | Ceiling: | DRYWALL PAINTED | Exterior Wall/Cover: | CEMENT FIBER | | Floor Covering: | CARPET/VINYL 80-20 | Floor Structure: | WOOD W/SUBFLOOR | | Foundation: | CONCRETE | Heating: | FHA GAS | | Interior Finish: | DRYWALL PAINT | Plumbing Fixture Cnt: | 10 | | Roof Slope: | 6" IN 12" | Roof Structure/Cover: | CJ ASPHALT |
|
| | Type | Description | Class CD | Sub Class CD | Year Built | Area |
| | BAS | BASE/MAIN FLOOR | 3 | 0 | 2002 | 1461.8 |
| | AGR | ATTACHED GARAGE | 3 | 0 | 2002 | 400.0 |
| | OWP | OPEN WOOD PORCH W/STEPS | 3 | 0 | 2002 | 99.6 |
| | OWC | OPEN WOOD PORCH W/STEPS/ROOF/C | 3 | 0 | 2002 | 19.3 |
Sketch
Property Image
Land
| 1 | 16 | AC (00.51-01.00) | 0.6100 | 26571.60 | 0.00 | 0.00 | 1.00 | $250,000 | $0 |
Roll Value History
| 2026 | N/A | N/A | N/A | N/A | N/A |
| 2025 | $275,562 | $250,000 | $0 | $525,562 | $525,562 |
| 2024 | $278,794 | $230,000 | $0 | $508,794 | $508,794 |
| 2023 | $282,028 | $230,000 | $0 | $512,028 | $512,028 |
| 2022 | $258,303 | $210,000 | $0 | $468,303 | $468,303 |
| 2021 | $201,537 | $150,000 | $0 | $351,537 | $351,537 |
| 2020 | $196,160 | $120,000 | $0 | $316,160 | $316,160 |
| 2019 | $141,229 | $160,000 | $0 | $301,229 | $301,229 |
| 2018 | $141,653 | $120,000 | $0 | $261,653 | $261,653 |
| 2017 | $142,487 | $100,000 | $0 | $242,487 | $242,487 |
| 2016 | $144,184 | $100,000 | $0 | $244,184 | $244,184 |
| 2015 | $138,826 | $65,000 | $0 | $203,826 | $203,826 |
| 2014 | $140,441 | $65,000 | $0 | $205,441 | $205,441 |
| 2013 | $142,055 | $41,600 | $0 | $183,655 | $183,655 |
| 2012 | $143,669 | $41,600 | $0 | $185,269 | $185,269 |
| 2011 | $145,283 | $52,000 | $0 | $197,283 | $197,283 |
| 2010 | $151,852 | $52,000 | $0 | $203,852 | $203,852 |
| 2009 | $161,975 | $90,000 | $0 | $251,975 | $251,975 |
| 2008 | $163,909 | $95,000 | $0 | $258,909 | $258,909 |
| 2007 | $149,628 | $112,878 | $0 | $262,506 | $262,506 |
Deed and Sales History
| 1 | 03/06/2007 | TRUSTEED | Trustee's Deed | WELLS FARGO BANK N.A. TTEE, | PURDY, WADE E | | | $226,900.00 | 70825 | 4196266 |
| 2 | 11/10/2006 | TRUSTEED | Trustee's Deed | MCCLEARY, ROB L | WELLS FARGO BANK N.A. TTEE, | | | $193,049.00 | 64927 | 4187391 |
| 3 | 09/29/2005 | WD | Warranty Deed | BUCKLEY, JOHN | MCCLEARY, ROB L | | | $223,700.00 | 54925 | 4149399 |
| 4 | 08/20/2002 | WD | Warranty Deed | SUN MOUNTAIN CONSTRUCTION INC, | BUCKLEY, JOHN | | | $159,000.00 | 23354 | 4029403 |
| 5 | 01/01/1900 | OTHER | Other - Misc. Documents | Unknown | SUN MOUNTAIN CONSTRUCTION INC, | | | $0.00 | 0 | 0 |
Payout Agreement
| No payout information available.. |