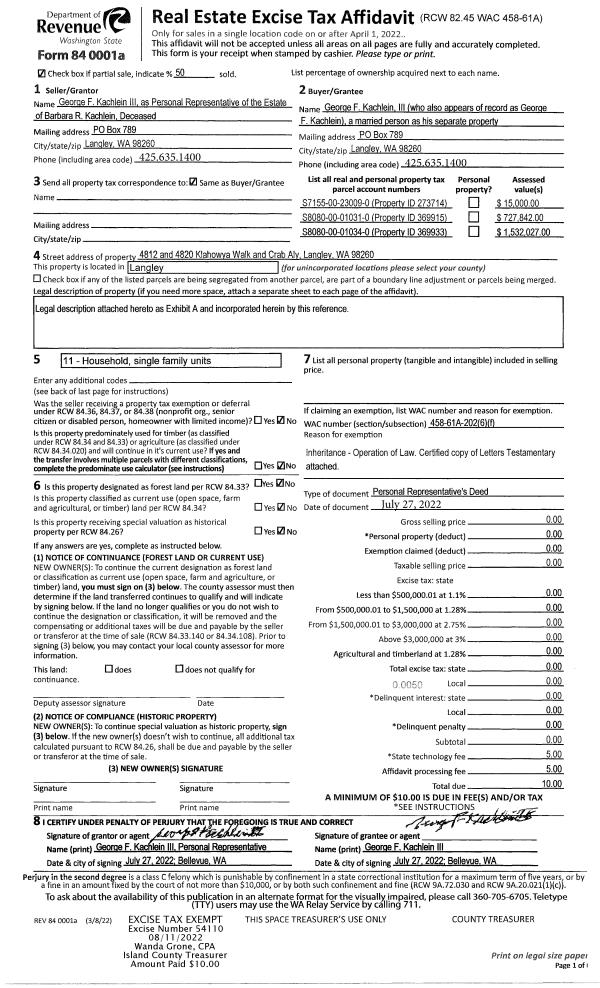
Property
Account |
| Property ID: | 803968 | Abbreviated Legal Description: | LOT 3 SP 409-01.23114.242-3000 V3 SP P445-7 AF#4023903 |
| Geographic ID: | R23114-256-2980 | Agent Code: | |
| Type: | Real | | |
| Tax Area: | 512 - APPRAISER-Stan/Cam Schl Dist, improved, greater than 1 acre | Land Use Code | 11 |
| Open Space: | N | DFL | N |
| Historic Property: | N | Remodel Property: | N |
| Multi-Family Redevelopment: | N | | |
| Township: | 31 | Section: | 14 |
| Range: | R2 |
Location |
| Address: | 596 KODIAK AVE CAMANO ISLAND, WA 98282 | Mapsco: | |
| Neighborhood: | Cycle 5 | Map ID: | 482 |
| Neighborhood CD: | 5 |
Owner |
| Name: | BENZEL, DAVID G | Owner ID: | 304680 |
| Mailing Address: | 596 KODIAK AVENUE CAMANO ISLAND, WA 98282 | % Ownership: | 100.0000000000% |
| | | Exemptions: | |
Taxes and Assessment Details
Values
| (+) Improvement Homesite Value: | + | $0 | |
| (+) Improvement Non-Homesite Value: | + | $231,953 | |
| (+) Land Homesite Value: | + | $0 | |
| (+) Land Non-Homesite Value: | + | $260,000 | |
| (+) Curr Use (HS): | + | $0 | $0 |
| (+) Curr Use (NHS): | + | $0 | $0 |
| | | -------------------------- | |
| (=) Market Value: | = | $491,953 | |
| (–) Productivity Loss: | – | $0 | |
| | | -------------------------- | |
| (=) Subtotal: | = | $491,953 | |
| (+) Senior Appraised Value: | + | $0 | |
| (+) Non-Senior Appraised Value: | + | $491,953 | |
| | | -------------------------- | |
| (=) Total Appraised Value: | = | $491,953 | |
| (–) Senior Exemption Loss: | – | $0 | |
| (–) Exemption Loss: | – | $0 | |
| | | -------------------------- | |
| (=) Taxable Value: | = | $491,953 | |
Taxing Jurisdiction
| Owner: | BENZEL, DAVID G | | |
| % Ownership: | 100.0000000000% | | |
| Total Value: | $491,953 | | |
| Tax Area: | 512 - APPRAISER-Stan/Cam Schl Dist, improved, greater than 1 acre |
| CF | Conservation Futures | 0.0316035091 | $491,953 | $491,953 | $15.55 | | |
| EMS1 | Fire & Rescue Dist #1 Camano GEN (EMS) | 0.3677864386 | $491,953 | $491,953 | $180.93 | | |
| FIRE1 | Fire & Rescue Dist #1 Camano GEN | 1.2502910536 | $491,953 | $491,953 | $615.08 | | |
| FIRE1BOND | Fire & Rescue Dist #1 Camano BOND | 0.1570001679 | $491,953 | $491,953 | $77.24 | | |
| CE | County Current Expense | 0.3708482477 | $491,953 | $491,953 | $182.44 | | |
| CR | County Roads | 0.4584763726 | $491,953 | $491,953 | $225.55 | | |
| LCIB | Library Sno-Isle BOND (Camano Island) | 0.0396325772 | $491,953 | $491,953 | $19.50 | | |
| LIB | Library Sno-Isle GEN | 0.3153421757 | $491,953 | $491,953 | $155.13 | | |
| SCH205_401 | School 205-401 Enrichment | 1.2698420524 | $491,953 | $491,953 | $624.70 | | |
| SCH205BOND | School 205-401 BOND | 0.9396497583 | $491,953 | $491,953 | $462.26 | | |
| ST | State School | 1.3035497053 | $491,953 | $491,953 | $641.29 | | |
| ST2 | State School Part 2 | 0.8169543533 | $491,953 | $491,953 | $401.90 | | |
| | Total Tax Rate: | 7.3209764117 | | | | | |
| | | | | Taxes w/Current Exemptions: | $3,601.57 | | |
| | | | | Taxes w/o Exemptions: | $3,601.57 | | |
Improvement / Building
| Improvement #1: | RESIDENTIAL | State Code: | Y | 1427.0 sqft | Value: | $231,953 |
| Bathrooms: | 2 | Bedrooms: | 3 | | Ceiling: | DRYWALL PAINTED | Exterior Wall/Cover: | CEMENT FIBER | | Floor Covering: | CARPET/VINYL 60-40 | Floor Structure: | SLAB ON GRADE | | Foundation: | SLAB | Heating: | WALL HEAT ELECTRIC | | Interior Finish: | DRYWALL PAINT | Plumbing Fixture Cnt: | 9 | | Roof Slope: | 6" IN 12" | Roof Structure/Cover: | CJ ASPHALT |
|
| | Type | Description | Class CD | Sub Class CD | Year Built | Area |
| | BAS | BASE/MAIN FLOOR | 3 | 0 | 2002 | 1427.0 |
| | OP1 | OPEN PORCH SLAB | 3 | 0 | 2002 | 7.0 |
| | OP1 | OPEN PORCH SLAB | 3 | 0 | 2002 | 160.0 |
| | OP4 | OPEN PORCH W/CEILING-ROOF | 3 | 0 | 2002 | 7.0 |
| | AGR | ATTACHED GARAGE | 3 | 0 | 2002 | 400.0 |
Sketch
Property Image
Land
| 1 | 17 | AC (01.01-02.00) | 1.2400 | 54014.40 | 0.00 | 0.00 | 1.00 | $260,000 | $0 |
Roll Value History
| 2026 | N/A | N/A | N/A | N/A | N/A |
| 2025 | $231,953 | $260,000 | $0 | $491,953 | $491,953 |
| 2024 | $234,673 | $240,000 | $0 | $474,673 | $474,673 |
| 2023 | $237,394 | $230,000 | $0 | $467,394 | $467,394 |
| 2022 | $217,426 | $240,000 | $0 | $457,426 | $457,426 |
| 2021 | $186,925 | $170,000 | $0 | $356,925 | $356,925 |
| 2020 | $181,732 | $150,000 | $0 | $331,732 | $331,732 |
| 2019 | $130,386 | $200,000 | $0 | $330,386 | $330,386 |
| 2018 | $130,753 | $150,000 | $0 | $280,753 | $280,753 |
| 2017 | $131,482 | $135,000 | $0 | $266,482 | $266,482 |
| 2016 | $132,943 | $130,000 | $0 | $262,943 | $262,943 |
| 2015 | $139,491 | $49,200 | $0 | $188,691 | $188,691 |
| 2014 | $141,084 | $49,200 | $0 | $190,284 | $190,284 |
| 2013 | $142,677 | $49,200 | $0 | $191,877 | $191,877 |
| 2012 | $144,271 | $49,200 | $0 | $193,471 | $193,471 |
| 2011 | $145,862 | $61,500 | $0 | $207,362 | $207,362 |
| 2010 | $153,221 | $61,500 | $0 | $214,721 | $214,721 |
| 2009 | $156,828 | $130,000 | $0 | $286,828 | $286,828 |
| 2008 | $158,668 | $87,423 | $0 | $246,091 | $246,091 |
| 2007 | $162,129 | $87,423 | $0 | $249,552 | $249,552 |
Deed and Sales History
| 1 | 06/04/2022 | QCD | Quit Claim Deed | BENZEL, DAVID G | BENZEL, DAVID G | | | $0.00 | 53412 | 4546492 |
| 2 | 10/18/2002 | WD | Warranty Deed | SUN MOUNTAIN CONSTRUCTION INC, | BENZEL, DAVID G | | | $174,500.00 | 24232 | 4035028 |
| 3 | 01/01/1900 | OTHER | Other - Misc. Documents | Unknown | SUN MOUNTAIN CONSTRUCTION INC, | | | $0.00 | 0 | 0 |
Payout Agreement
| No payout information available.. |