Property
Account |
| Property ID: | 80398 | Abbreviated Legal Description: | 120 - S75' OF N150' OF E/2 W/2 NE NW SE EX RD |
| Geographic ID: | R23114-262-3670 | Agent Code: | |
| Type: | Real | | |
| Tax Area: | 519 - APPRAISER-Stan/Cam Schl Dist, vacant & 50 acres or less | Land Use Code | 91 |
| Open Space: | N | DFL | N |
| Historic Property: | N | Remodel Property: | N |
| Multi-Family Redevelopment: | N | | |
| Township: | 31 | Section: | 14 |
| Range: | R2 |
Location |
| Address: | | Mapsco: | |
| Neighborhood: | Cycle 5 | Map ID: | 482 |
| Neighborhood CD: | 5 |
Owner |
| Name: | SCHALLERT, PATRICIA V M | Owner ID: | 290283 |
| Mailing Address: | 1005 CIRCLE DR CAMANO ISLAND, WA 98282 | % Ownership: | 100.0000000000% |
| | | Exemptions: | |
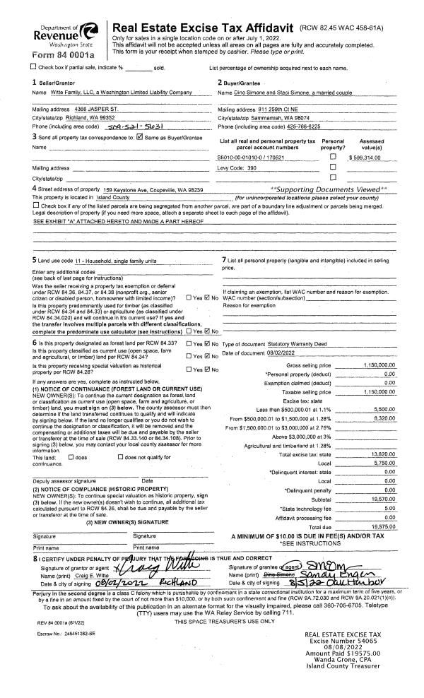
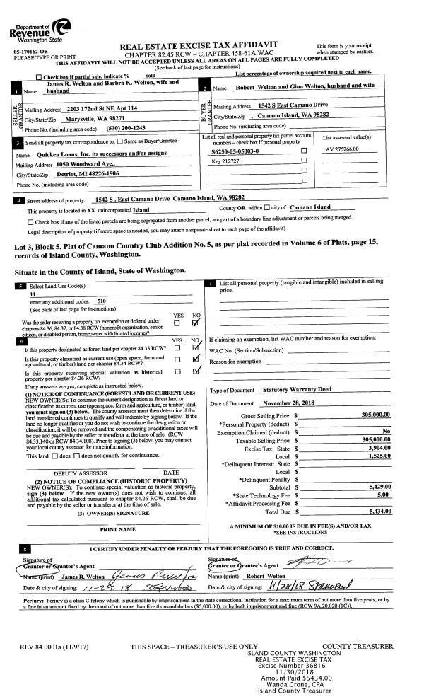
Taxes and Assessment Details
Values
| (+) Improvement Homesite Value: | + | $0 | |
| (+) Improvement Non-Homesite Value: | + | $0 | |
| (+) Land Homesite Value: | + | $0 | |
| (+) Land Non-Homesite Value: | + | $12,000 | |
| (+) Curr Use (HS): | + | $0 | $0 |
| (+) Curr Use (NHS): | + | $0 | $0 |
| | | -------------------------- | |
| (=) Market Value: | = | $12,000 | |
| (–) Productivity Loss: | – | $0 | |
| | | -------------------------- | |
| (=) Subtotal: | = | $12,000 | |
| (+) Senior Appraised Value: | + | $0 | |
| (+) Non-Senior Appraised Value: | + | $12,000 | |
| | | -------------------------- | |
| (=) Total Appraised Value: | = | $12,000 | |
| (–) Senior Exemption Loss: | – | $0 | |
| (–) Exemption Loss: | – | $0 | |
| | | -------------------------- | |
| (=) Taxable Value: | = | $12,000 | |
Taxing Jurisdiction
| Owner: | SCHALLERT, PATRICIA V M | | |
| % Ownership: | 100.0000000000% | | |
| Total Value: | $12,000 | | |
| Tax Area: | 519 - APPRAISER-Stan/Cam Schl Dist, vacant & 50 acres or less |
| CF | Conservation Futures | 0.0316035091 | $12,000 | $12,000 | $0.38 | | |
| EMS1 | Fire & Rescue Dist #1 Camano GEN (EMS) | 0.3677864386 | $12,000 | $12,000 | $4.41 | | |
| CE | County Current Expense | 0.3708482477 | $12,000 | $12,000 | $4.45 | | |
| CR | County Roads | 0.4584763726 | $12,000 | $12,000 | $5.50 | | |
| LCIB | Library Sno-Isle BOND (Camano Island) | 0.0396325772 | $12,000 | $12,000 | $0.48 | | |
| LIB | Library Sno-Isle GEN | 0.3153421757 | $12,000 | $12,000 | $3.78 | | |
| SCH205_401 | School 205-401 Enrichment | 1.2698420524 | $12,000 | $12,000 | $15.24 | | |
| SCH205BOND | School 205-401 BOND | 0.9396497583 | $12,000 | $12,000 | $11.28 | | |
| ST | State School | 1.3035497053 | $12,000 | $12,000 | $15.64 | | |
| ST2 | State School Part 2 | 0.8169543533 | $12,000 | $12,000 | $9.80 | | |
| | Total Tax Rate: | 5.9136851902 | | | | | |
| | | | | Taxes w/Current Exemptions: | $70.96 | | |
| | | | | Taxes w/o Exemptions: | $70.96 | | |
Improvement / Building
Sketch
| No sketches available for this property. |
Property Image
Land
| 1 | 14 | SQ (08001-12000) | 0.2400 | 10454.40 | 0.00 | 0.00 | 1.00 | $12,000 | $0 |
Roll Value History
| 2026 | N/A | N/A | N/A | N/A | N/A |
| 2025 | $0 | $12,000 | $0 | $12,000 | $12,000 |
| 2024 | $0 | $12,000 | $0 | $12,000 | $12,000 |
| 2023 | $0 | $9,000 | $0 | $9,000 | $9,000 |
| 2022 | $0 | $9,000 | $0 | $9,000 | $9,000 |
| 2021 | $0 | $7,000 | $0 | $7,000 | $7,000 |
| 2020 | $0 | $7,000 | $0 | $7,000 | $7,000 |
| 2019 | $0 | $7,000 | $0 | $7,000 | $7,000 |
| 2018 | $0 | $70,000 | $0 | $70,000 | $70,000 |
| 2017 | $0 | $50,000 | $0 | $50,000 | $50,000 |
| 2016 | $0 | $45,000 | $0 | $45,000 | $45,000 |
| 2015 | $0 | $47,000 | $0 | $47,000 | $47,000 |
| 2014 | $0 | $47,000 | $0 | $47,000 | $47,000 |
| 2013 | $0 | $47,000 | $0 | $47,000 | $47,000 |
| 2012 | $0 | $47,000 | $0 | $47,000 | $47,000 |
| 2011 | $0 | $47,000 | $0 | $47,000 | $47,000 |
| 2010 | $0 | $47,000 | $0 | $47,000 | $47,000 |
| 2009 | $0 | $55,000 | $0 | $55,000 | $55,000 |
| 2008 | $0 | $27,951 | $0 | $27,951 | $27,951 |
| 2007 | $0 | $27,720 | $0 | $27,720 | $27,720 |
Deed and Sales History
| 1 | 06/10/2019 | WD | Warranty Deed | RAEBURN HOMES, LLC | SCHALLERT, PATRICIA V M | | | $389,000.00 | 38992 | 4465495 |
|   | |
| 2 | 06/28/2018 | WD | Warranty Deed | RIVERS, CELESTE | RAEBURN HOMES, LLC | | | $100,000.00 | 34791 | 4447182 |
|   | |
| 3 | 02/04/2011 | DECREE | Divorce Decree/Legal Separation | RIVERS, CELESTE | RIVERS, CELESTE | | | $0.00 | 5496 | 4300958 |
| 4 | 10/22/2002 | WD | Warranty Deed | WITHERS, JOHN/MARLENE | RIVERS, CELESTE | | | $13,068.00 | 24260 | 4035311 |
| 5 | 12/01/1997 | WD | Warranty Deed | BEIDLEMAN, CATHERINE J | WITHERS, JOHN/MARLENE | | | $10,973.00 | 74416 | 97021191 |
| 6 | 07/01/1993 | OTHER | Other - Misc. Documents | BEIDLEMAN, WALTER C | BEIDLEMAN, CATHERINE J | | | $0.00 | 65457 | 0 |
| 7 | 01/01/1900 | OTHER | Other - Misc. Documents | Unknown | BEIDLEMAN, WALTER C | | | $0.00 | 0 | 0 |
Payout Agreement
| No payout information available.. |