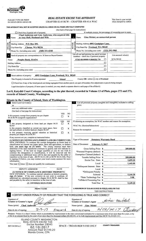
Property
Account |
| Property ID: | 804006 | Abbreviated Legal Description: | MADRONA TERRACE CONDO UNIT B-2 10.35% INT |
| Geographic ID: | S7447-00-000B2-0 | Agent Code: | |
| Type: | Real | | |
| Tax Area: | 100 - APPRAISER-OH Schl Dist, in OH | Land Use Code | 14 |
| Open Space: | N | DFL | N |
| Historic Property: | N | Remodel Property: | N |
| Multi-Family Redevelopment: | N | | |
| Township: | | Section: | |
| Range: | |
Location |
| Address: | 915 SW KIMBALL DR UNIT B2 OAK HARBOR, WA 98277 | Mapsco: | |
| Neighborhood: | 11*OH-madrona ter | Map ID: | 91 |
| Neighborhood CD: | 11*OHmdter |
Owner |
| Name: | MELTON, SHAUN R | Owner ID: | 278660 |
| Mailing Address: | 915 SW KIMBALL DR #B2 OAK HARBOR, WA 98277 | % Ownership: | 100.0000000000% |
| | | Exemptions: | |
Taxes and Assessment Details
Values
| (+) Improvement Homesite Value: | + | $0 | |
| (+) Improvement Non-Homesite Value: | + | $196,983 | |
| (+) Land Homesite Value: | + | $0 | |
| (+) Land Non-Homesite Value: | + | $100,000 | |
| (+) Curr Use (HS): | + | $0 | $0 |
| (+) Curr Use (NHS): | + | $0 | $0 |
| | | -------------------------- | |
| (=) Market Value: | = | $296,983 | |
| (–) Productivity Loss: | – | $0 | |
| | | -------------------------- | |
| (=) Subtotal: | = | $296,983 | |
| (+) Senior Appraised Value: | + | $0 | |
| (+) Non-Senior Appraised Value: | + | $296,983 | |
| | | -------------------------- | |
| (=) Total Appraised Value: | = | $296,983 | |
| (–) Senior Exemption Loss: | – | $0 | |
| (–) Exemption Loss: | – | $0 | |
| | | -------------------------- | |
| (=) Taxable Value: | = | $296,983 | |
Taxing Jurisdiction
| Owner: | MELTON, SHAUN R | | |
| % Ownership: | 100.0000000000% | | |
| Total Value: | $296,983 | | |
| Tax Area: | 100 - APPRAISER-OH Schl Dist, in OH |
| CF | Conservation Futures | 0.0316035091 | $296,983 | $296,983 | $9.39 | | |
| CEM1 | Cemetery #1 | 0.0040320932 | $296,983 | $296,983 | $1.20 | | |
| COH | City of Oak Harbor | 2.3001546061 | $296,983 | $296,983 | $683.11 | | |
| OAKBOND | City of Oak Harbor BOND | 0.1926904192 | $296,983 | $296,983 | $57.23 | | |
| HOBOND | Hospital BOND | 0.1910887512 | $296,983 | $296,983 | $56.75 | | |
| HOGEN | Hospital GEN | 0.3902502903 | $296,983 | $296,983 | $115.90 | | |
| CE | County Current Expense | 0.3708482477 | $296,983 | $296,983 | $110.14 | | |
| ISLANDEMS | Hospital GEN (EMS) | 0.5000000000 | $296,983 | $296,983 | $148.49 | | |
| LIB | Library Sno-Isle GEN | 0.3153421757 | $296,983 | $296,983 | $93.65 | | |
| NWHIDPRMT | P & R N Whidbey GEN | 0.2004466701 | $296,983 | $296,983 | $59.53 | | |
| SCH201MO | School 201 Enrichment | 1.8559231640 | $296,983 | $296,983 | $551.18 | | |
| ST | State School | 1.3035497053 | $296,983 | $296,983 | $387.13 | | |
| ST2 | State School Part 2 | 0.8169543533 | $296,983 | $296,983 | $242.62 | | |
| | Total Tax Rate: | 8.4728839852 | | | | | |
| | | | | Taxes w/Current Exemptions: | $2,516.32 | | |
| | | | | Taxes w/o Exemptions: | $2,516.32 | | |
Improvement / Building
| Improvement #1: | RESIDENTIAL | State Code: | Y | 1081.2 sqft | Value: | $196,983 |
| Bathrooms: | 2.5 | Bedrooms: | 2 | | Ceiling: | DRYWALL PAINTED | Exterior Wall/Cover: | CEMENT FIBER | | Floor Covering: | CARPET/VINYL 80-20 | Floor Structure: | WOOD W/SUBFLOOR | | Foundation: | CONCRETE | Heating: | FHA GAS | | Interior Finish: | DRYWALL PAINT | Plumbing Fixture Cnt: | 11 | | Roof Slope: | 6" IN 12" | Roof Structure/Cover: | CJ ASPHALT |
|
| | Type | Description | Class CD | Sub Class CD | Year Built | Area |
| | BAS | BASE/MAIN FLOOR | 3 | 0 | 2002 | 534.3 |
| | AGR | ATTACHED GARAGE | 3 | 0 | 2002 | 231.0 |
| | UPS | UPPER STORY | 3 | 0 | 2002 | 546.9 |
Sketch
Property Image
Land
| 1 | 61 | MULTIPLE RESIDENCES | 0.0000 | 6996.25 | 0.00 | 0.00 | 1.00 | $100,000 | $0 |
Roll Value History
| 2026 | N/A | N/A | N/A | N/A | N/A |
| 2025 | $196,983 | $100,000 | $0 | $296,983 | $296,983 |
| 2024 | $199,408 | $100,000 | $0 | $299,408 | $299,408 |
| 2023 | $192,675 | $100,000 | $0 | $292,675 | $292,675 |
| 2022 | $176,672 | $100,000 | $0 | $276,672 | $276,672 |
| 2021 | $155,546 | $70,000 | $0 | $225,546 | $225,546 |
| 2020 | $150,897 | $45,000 | $0 | $195,897 | $195,897 |
| 2019 | $104,029 | $90,000 | $0 | $194,029 | $194,029 |
| 2018 | $104,341 | $65,000 | $0 | $169,341 | $169,341 |
| 2017 | $106,580 | $54,708 | $0 | $161,288 | $161,288 |
| 2016 | $107,848 | $54,708 | $0 | $162,556 | $162,556 |
| 2015 | $109,117 | $54,708 | $0 | $163,825 | $163,825 |
| 2014 | $110,386 | $54,708 | $0 | $165,094 | $165,094 |
| 2013 | $111,654 | $54,708 | $0 | $166,362 | $166,362 |
| 2012 | $107,420 | $54,708 | $0 | $162,128 | $162,128 |
| 2011 | $107,420 | $54,708 | $0 | $162,128 | $162,128 |
| 2010 | $110,516 | $17,421 | $0 | $127,937 | $127,937 |
| 2009 | $113,935 | $41,978 | $0 | $155,913 | $155,913 |
| 2008 | $115,180 | $52,472 | $0 | $167,652 | $167,652 |
| 2007 | $117,622 | $52,472 | $0 | $170,094 | $170,094 |
Deed and Sales History
| 1 | 02/27/2017 | WD | Warranty Deed | JONES, ROBERT N | MELTON, SHAUN R | | | $178,100.00 | 28223 | 4417857 |
| 2 | 09/19/2007 | WD | Warranty Deed | RENNINGER, BARRY | JONES, ROBERT N | | | $175,000.00 | 73250 | 4212877 |
| 3 | 08/03/2005 | WD | Warranty Deed | RENNINGER, BARRY | RENNINGER, BARRY | | | $0.00 | 53887 | 4143627 |
| 4 | 07/14/2005 | WD | Warranty Deed | MYERS, DAVID T | RENNINGER, BARRY | | | $152,500.00 | 53377 | 4140664 |
| 5 | 07/13/2004 | WD | Warranty Deed | SJODIN, JASON S | MYERS, DAVID T | | | $125,000.00 | 43092 | 4106584 |
| 6 | 11/05/2002 | WD | Warranty Deed | LANDED GENTRY DEVELOPMENT, | SJODIN, JASON S | | | $110,000.00 | 24553 | 4037474 |
| 7 | 01/01/1900 | OTHER | Other - Misc. Documents | Unknown | LANDED GENTRY DEVELOPMENT, | | | $0.00 | 0 | 0 |
Payout Agreement
| No payout information available.. |