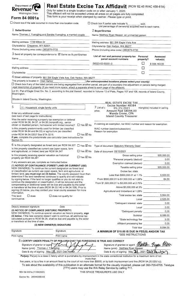
| 1 | 01/04/2021 | WD | Warranty Deed | STREHLAU, STEVEN B | ALMASSI, ARDESHIR | | | $2,000,002.00 | 46591 | 4508249 |
|   | |
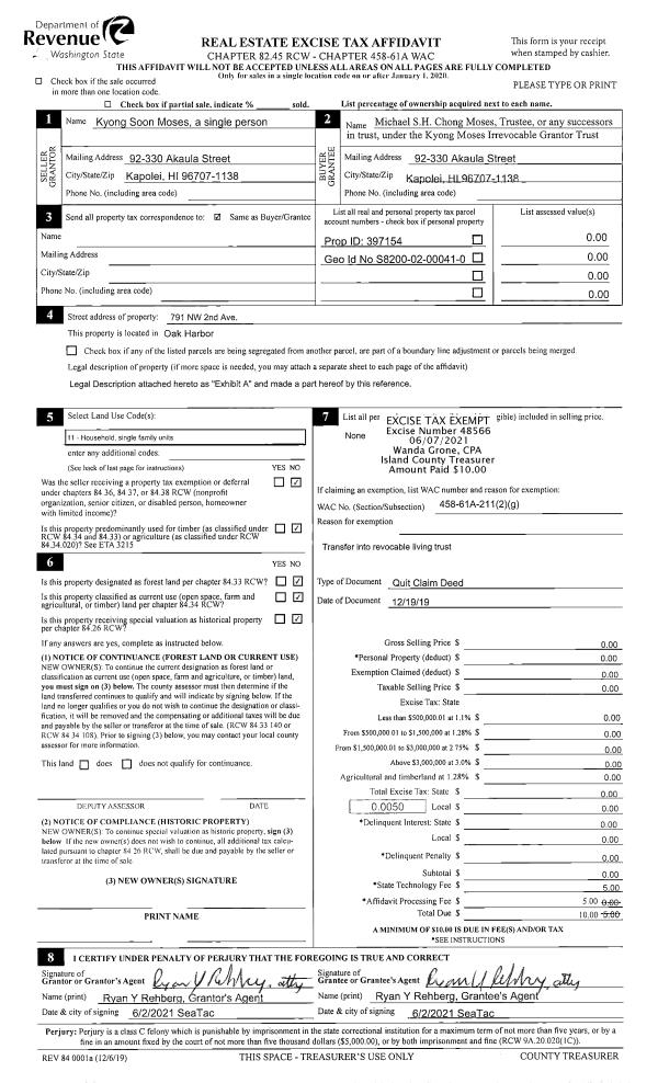
| 2 | 02/06/2015 | QCD | Quit Claim Deed | STREHLAU, STEVEN B | STREHLAU, STEVEN B | | | $0.00 | 46588 | 4508246 |
| 3 | 02/06/2015 | QCD | Quit Claim Deed | MCMASTER, DAVID C LONG/LORI L | STREHLAU, STEVEN B | | | $25,000.00 | 18551 | 4373647 |
| 4 | 01/03/2015 | QCD | Quit Claim Deed | MCMASTER, DAVID C LONG/LORI L | | | | | 18549 | 4373645 |
| 5 | 10/11/2004 | 5 | DNU - Marriage License/Name Change | LONG, DAVID C | MCMASTER, DAVID C LONG/LORI L | | | $0.00 | 70937 | 0 |
| 6 | 11/27/2002 | BLA | DNU - Boundary Line Adjustment | Unknown | LONG, DAVID C | | | $0.00 | 69618 | 4294372 |
| 7 | 07/01/2002 | ESTSEPPROP | Establish Separate Property | LONG, DAVID C | LONG, DAVID C | | | $0.00 | 22903 | 4026606 |