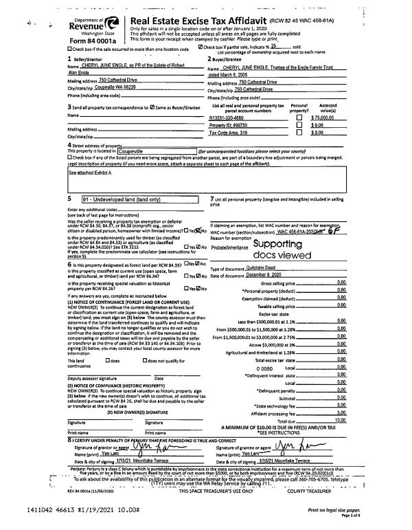
Property
Account |
| Property ID: | 804058 | Abbreviated Legal Description: | IN GL2: BG CLN CO RD & SLN GL2 NELY ALG CLN 385' TPB NELY 85' N89*W400' M/L TO ML SWLY ALG ML TP N89*W FR TPB S89*E TPB EX RD TGW & SUB EZ (AKA TR B SP 73-056 REV AF#309083) TGW: BG CLN CO RD & SLN GL2 NELY ALG CLN 470' TPB NELY 85' N89*W400' M/L TO ML S |
| Geographic ID: | R03213-307-4360 | Agent Code: | |
| Type: | Real | | |
| Tax Area: | 112 - APPRAISER-OH Schl Dist, outside OH, improved, greater than 1 acre | Land Use Code | 11 |
| Open Space: | N | DFL | N |
| Historic Property: | N | Remodel Property: | N |
| Multi-Family Redevelopment: | N | | |
| Township: | 32 | Section: | 13 |
| Range: | R0 |
Location |
| Address: | 1431 WEST BEACH RD OAK HARBOR, WA 98277 | Mapsco: | |
| Neighborhood: | Area 2 Waterfront Westside Residential | Map ID: | 2 |
| Neighborhood CD: | 2WFW01R |
Owner |
| Name: | HOEKMAN TTEE, ROBERT EUGENE | Owner ID: | 296235 |
| Mailing Address: | MARGRET ANN COOPER HOEKMAN, TTEE 1431 WEST BEACH RD OAK HARBOR, WA 98277 | % Ownership: | 100.0000000000% |
| | | Exemptions: | |
Taxes and Assessment Details
Values
| (+) Improvement Homesite Value: | + | $0 | |
| (+) Improvement Non-Homesite Value: | + | $568,578 | |
| (+) Land Homesite Value: | + | $0 | |
| (+) Land Non-Homesite Value: | + | $600,000 | |
| (+) Curr Use (HS): | + | $0 | $0 |
| (+) Curr Use (NHS): | + | $0 | $0 |
| | | -------------------------- | |
| (=) Market Value: | = | $1,168,578 | |
| (–) Productivity Loss: | – | $0 | |
| | | -------------------------- | |
| (=) Subtotal: | = | $1,168,578 | |
| (+) Senior Appraised Value: | + | $0 | |
| (+) Non-Senior Appraised Value: | + | $1,168,578 | |
| | | -------------------------- | |
| (=) Total Appraised Value: | = | $1,168,578 | |
| (–) Senior Exemption Loss: | – | $0 | |
| (–) Exemption Loss: | – | $0 | |
| | | -------------------------- | |
| (=) Taxable Value: | = | $1,168,578 | |
Taxing Jurisdiction
| Owner: | HOEKMAN TTEE, ROBERT EUGENE | | |
| % Ownership: | 100.0000000000% | | |
| Total Value: | $1,168,578 | | |
| Tax Area: | 112 - APPRAISER-OH Schl Dist, outside OH, improved, greater than 1 acre |
| CF | Conservation Futures | 0.0316035091 | $1,168,578 | $1,168,578 | $36.93 | | |
| CEM1 | Cemetery #1 | 0.0040320932 | $1,168,578 | $1,168,578 | $4.71 | | |
| FIRE2 | Fire & Rescue Dist #2 N Whidbey GEN | 0.5475949600 | $1,168,578 | $1,168,578 | $639.91 | | |
| HOBOND | Hospital BOND | 0.1910887512 | $1,168,578 | $1,168,578 | $223.30 | | |
| HOGEN | Hospital GEN | 0.3902502903 | $1,168,578 | $1,168,578 | $456.04 | | |
| CE | County Current Expense | 0.3708482477 | $1,168,578 | $1,168,578 | $433.37 | | |
| CR | County Roads | 0.4584763726 | $1,168,578 | $1,168,578 | $535.77 | | |
| ISLANDEMS | Hospital GEN (EMS) | 0.5000000000 | $1,168,578 | $1,168,578 | $584.29 | | |
| LIB | Library Sno-Isle GEN | 0.3153421757 | $1,168,578 | $1,168,578 | $368.50 | | |
| NWHIDPRMT | P & R N Whidbey GEN | 0.2004466701 | $1,168,578 | $1,168,578 | $234.24 | | |
| SCH201MO | School 201 Enrichment | 1.8559231640 | $1,168,578 | $1,168,578 | $2,168.79 | | |
| ST | State School | 1.3035497053 | $1,168,578 | $1,168,578 | $1,523.30 | | |
| ST2 | State School Part 2 | 0.8169543533 | $1,168,578 | $1,168,578 | $954.67 | | |
| | Total Tax Rate: | 6.9861102925 | | | | | |
| | | | | Taxes w/Current Exemptions: | $8,163.82 | | |
| | | | | Taxes w/o Exemptions: | $8,163.82 | | |
Improvement / Building
| Improvement #1: | RESIDENTIAL | State Code: | Y | 4190.2 sqft | Value: | $568,578 |
| Bathrooms: | 2.25 | Bedrooms: | 3 | | Ceiling: | TONGUE & GROOVE | Cooling: | HEAT PUMP/CONV/V | | Exterior Wall/Cover: | STUCCO | Floor Covering: | HARDWOOD/CARP 20-80 | | Floor Structure: | WOOD W/SUBFLOOR | Foundation: | CONCRETE | | Interior Finish: | DRYWALL PAINT | Plumbing Fixture Cnt: | 10 | | Roof Slope: | 8" IN 12" | Roof Structure/Cover: | BEAM ASPHALT |
|
| | Type | Description | Class CD | Sub Class CD | Year Built | Area |
| | BAS | BASE/MAIN FLOOR | 4 | 0 | 1977 | 2135.4 |
| | AGR | ATTACHED GARAGE | 4 | 0 | 1977 | 608.0 |
| | OWP | OPEN WOOD PORCH W/STEPS | 4 | 0 | 1977 | 715.1 |
| | DWN | DOWNSTAIRS LIVING AREA | 4 | 0 | 1977 | 2054.8 |
Sketch
Property Image
Land
| 1 | HB | HIGH BLUFF | 1.4500 | 63162.00 | 140.00 | 0.00 | 1.00 | $600,000 | $0 |
Roll Value History
| 2026 | N/A | N/A | N/A | N/A | N/A |
| 2025 | $568,578 | $600,000 | $0 | $1,168,578 | $1,168,578 |
| 2024 | $521,047 | $600,000 | $0 | $1,121,047 | $1,121,047 |
| 2023 | $528,259 | $500,000 | $0 | $1,028,259 | $1,028,259 |
| 2022 | $484,867 | $450,000 | $0 | $934,867 | $934,867 |
| 2021 | $427,307 | $375,000 | $0 | $802,307 | $802,307 |
| 2020 | $418,922 | $360,000 | $0 | $778,922 | $778,922 |
| 2019 | $351,883 | $375,000 | $0 | $726,883 | $726,883 |
| 2018 | $292,236 | $300,000 | $0 | $592,236 | $592,236 |
| 2017 | $294,357 | $300,000 | $0 | $594,357 | $594,357 |
| 2016 | $298,686 | $300,000 | $0 | $598,686 | $598,686 |
| 2015 | $303,015 | $300,000 | $0 | $603,015 | $603,015 |
| 2014 | $307,343 | $300,000 | $0 | $607,343 | $607,343 |
| 2013 | $311,673 | $313,110 | $0 | $624,783 | $624,783 |
| 2012 | $283,398 | $313,110 | $0 | $596,508 | $596,508 |
| 2011 | $287,505 | $313,110 | $0 | $600,615 | $600,615 |
| 2010 | $314,082 | $313,110 | $0 | $627,192 | $627,192 |
| 2009 | $327,715 | $443,792 | $0 | $771,507 | $771,507 |
| 2008 | $327,715 | $443,792 | $0 | $771,507 | $771,507 |
| 2007 | $331,913 | $443,792 | $0 | $775,705 | $775,705 |
Deed and Sales History
| 1 | 09/17/2020 | QCD | Quit Claim Deed | HOEKMAN TTEE, MARGRET ANN COOPER | HOEKMAN TTEE, ROBERT EUGENE | | | $0.00 | 44878 | 4497455 |
| 2 | 02/14/2020 | WD | Warranty Deed | REAY, DONALD T | HOEKMAN TTEE, MARGRET ANN COOPER | | | $0.00 | 42611 | 4484512 |
| 3 | 02/14/2020 | WD | Warranty Deed | REAY, DONALD T | HOEKMAN TTEE, MARGRET ANN COOPER | | | $825,000.00 | 42173 | 4481678 |
| 4 | 12/03/2002 | BLA | DNU - Boundary Line Adjustment | REAY, DONALD T | REAY, DONALD T | | | $0.00 | 69623 | 4009717 |
| 5 | 01/10/2000 | WD | Warranty Deed | Unknown | REAY, DONALD T | | | $422,000.00 | 152 | 20000907 |
Payout Agreement
| No payout information available.. |