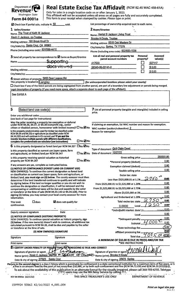
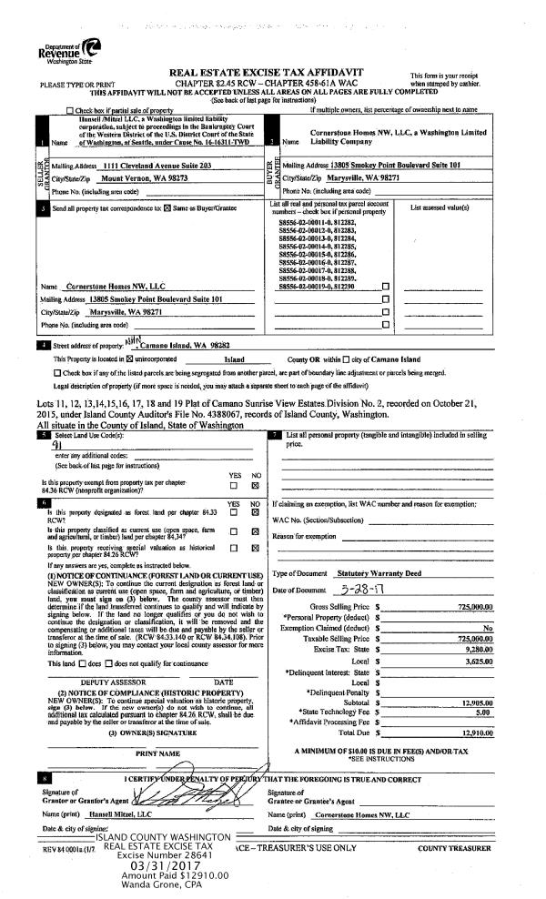
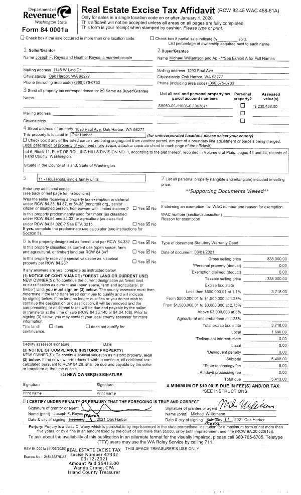
Property
Account |
| Property ID: | 804063 | Abbreviated Legal Description: | LOT 2 SP 154-01.33228.437-4490, .400-4180 & .378-4330 V3 SP P413-5 AF#4007295 |
| Geographic ID: | R33228-387-4320 | Agent Code: | |
| Type: | Real | | |
| Tax Area: | 512 - APPRAISER-Stan/Cam Schl Dist, improved, greater than 1 acre | Land Use Code | 11 |
| Open Space: | N | DFL | N |
| Historic Property: | N | Remodel Property: | N |
| Multi-Family Redevelopment: | N | | |
| Township: | 32 | Section: | 28 |
| Range: | R3 |
Location |
| Address: | 736 BAYVIEW CT CAMANO ISLAND, WA 98282 | Mapsco: | |
| Neighborhood: | Cycle 5 | Map ID: | 984 |
| Neighborhood CD: | 5 |
Owner |
| Name: | BEATTIE, EDWARD L | Owner ID: | 297051 |
| Mailing Address: | MARY T BEATTIE 2660 248TH PL SE SAMMAMISH, WA 98029 | % Ownership: | 100.0000000000% |
| | | Exemptions: | |
Taxes and Assessment Details
Values
| (+) Improvement Homesite Value: | + | $0 | |
| (+) Improvement Non-Homesite Value: | + | $742,173 | |
| (+) Land Homesite Value: | + | $0 | |
| (+) Land Non-Homesite Value: | + | $410,000 | |
| (+) Curr Use (HS): | + | $0 | $0 |
| (+) Curr Use (NHS): | + | $0 | $0 |
| | | -------------------------- | |
| (=) Market Value: | = | $1,152,173 | |
| (–) Productivity Loss: | – | $0 | |
| | | -------------------------- | |
| (=) Subtotal: | = | $1,152,173 | |
| (+) Senior Appraised Value: | + | $0 | |
| (+) Non-Senior Appraised Value: | + | $1,152,173 | |
| | | -------------------------- | |
| (=) Total Appraised Value: | = | $1,152,173 | |
| (–) Senior Exemption Loss: | – | $0 | |
| (–) Exemption Loss: | – | $0 | |
| | | -------------------------- | |
| (=) Taxable Value: | = | $1,152,173 | |
Taxing Jurisdiction
| Owner: | BEATTIE, EDWARD L | | |
| % Ownership: | 100.0000000000% | | |
| Total Value: | $1,152,173 | | |
| Tax Area: | 512 - APPRAISER-Stan/Cam Schl Dist, improved, greater than 1 acre |
| CF | Conservation Futures | 0.0316035091 | $1,152,173 | $1,152,173 | $36.41 | | |
| EMS1 | Fire & Rescue Dist #1 Camano GEN (EMS) | 0.3677864386 | $1,152,173 | $1,152,173 | $423.75 | | |
| FIRE1 | Fire & Rescue Dist #1 Camano GEN | 1.2502910536 | $1,152,173 | $1,152,173 | $1,440.55 | | |
| FIRE1BOND | Fire & Rescue Dist #1 Camano BOND | 0.1570001679 | $1,152,173 | $1,152,173 | $180.89 | | |
| CE | County Current Expense | 0.3708482477 | $1,152,173 | $1,152,173 | $427.28 | | |
| CR | County Roads | 0.4584763726 | $1,152,173 | $1,152,173 | $528.24 | | |
| LCIB | Library Sno-Isle BOND (Camano Island) | 0.0396325772 | $1,152,173 | $1,152,173 | $45.66 | | |
| LIB | Library Sno-Isle GEN | 0.3153421757 | $1,152,173 | $1,152,173 | $363.33 | | |
| SCH205_401 | School 205-401 Enrichment | 1.2698420524 | $1,152,173 | $1,152,173 | $1,463.08 | | |
| SCH205BOND | School 205-401 BOND | 0.9396497583 | $1,152,173 | $1,152,173 | $1,082.64 | | |
| ST | State School | 1.3035497053 | $1,152,173 | $1,152,173 | $1,501.91 | | |
| ST2 | State School Part 2 | 0.8169543533 | $1,152,173 | $1,152,173 | $941.27 | | |
| | Total Tax Rate: | 7.3209764117 | | | | | |
| | | | | Taxes w/Current Exemptions: | $8,435.01 | | |
| | | | | Taxes w/o Exemptions: | $8,435.01 | | |
Improvement / Building
| Improvement #1: | RESIDENTIAL | State Code: | Y | 2304.0 sqft | Value: | $742,173 |
| Bathrooms: | 2.75 | Bedrooms: | 3 | | Ceiling: | DRYWALL PAINTED | Cooling: | HEAT PUMP/CONV/V | | Exterior Wall/Cover: | WOOD SIDING | Floor Covering: | CERAMIC TILE/CPT 40-60 | | Floor Structure: | WOOD W/SUBFLOOR | Foundation: | CONCRETE | | Interior Finish: | DRYWALL PAINT | Plumbing Fixture Cnt: | 17 | | Roof Slope: | 6" IN 12" | Roof Structure/Cover: | CJ ASPHALT |
|
| | Type | Description | Class CD | Sub Class CD | Year Built | Area |
| | BAS | BASE/MAIN FLOOR | 5 | 0 | 2005 | 2304.0 |
| | UB8 | BASEMENT UNFINISHED 8" | 4 | 0 | 2005 | 1250.0 |
| | OP1 | OPEN PORCH SLAB | 4 | 0 | 2005 | 655.0 |
| | BGR | BASEMENT GARAGE | 4 | 0 | 2005 | 1054.0 |
| | OWP | OPEN WOOD PORCH W/STEPS | 4 | 0 | 2005 | 37.0 |
| | OWP | OPEN WOOD PORCH W/STEPS | 4 | 0 | 2005 | 61.0 |
| | OWC | OPEN WOOD PORCH W/STEPS/ROOF/C | 4 | 0 | 2005 | 289.0 |
| | OWC | OPEN WOOD PORCH W/STEPS/ROOF/C | 4 | 0 | 2005 | 715.0 |
Sketch
Property Image
Land
| 1 | 32 | AC (03.01-09.99) | 5.0000 | 0.00 | 0.00 | 0.00 | 1.00 | $410,000 | $0 |
Roll Value History
| 2026 | N/A | N/A | N/A | N/A | N/A |
| 2025 | $742,173 | $410,000 | $0 | $1,152,173 | $1,152,173 |
| 2024 | $750,678 | $390,000 | $0 | $1,140,678 | $1,140,678 |
| 2023 | $759,184 | $380,000 | $0 | $1,139,184 | $1,139,184 |
| 2022 | $693,215 | $350,000 | $0 | $1,043,215 | $1,043,215 |
| 2021 | $597,797 | $240,000 | $0 | $837,797 | $837,797 |
| 2020 | $494,526 | $200,000 | $0 | $694,526 | $694,526 |
| 2019 | $366,008 | $250,000 | $0 | $616,008 | $616,008 |
| 2018 | $367,057 | $220,000 | $0 | $587,057 | $587,057 |
| 2017 | $369,154 | $210,000 | $0 | $579,154 | $579,154 |
| 2016 | $373,349 | $200,000 | $0 | $573,349 | $573,349 |
| 2015 | $382,312 | $180,000 | $0 | $562,312 | $562,312 |
| 2014 | $386,505 | $180,000 | $0 | $566,505 | $566,505 |
| 2013 | $390,701 | $180,000 | $0 | $570,701 | $570,701 |
| 2012 | $394,896 | $180,000 | $0 | $574,896 | $574,896 |
| 2011 | $399,092 | $225,000 | $0 | $624,092 | $624,092 |
| 2010 | $412,938 | $225,000 | $0 | $637,938 | $637,938 |
| 2009 | $440,942 | $250,000 | $0 | $690,942 | $690,942 |
| 2008 | $458,451 | $250,000 | $0 | $708,451 | $708,451 |
| 2007 | $459,016 | $185,000 | $0 | $644,016 | $644,016 |
Deed and Sales History
| 1 | 12/02/2020 | WD | Warranty Deed | KINTNER, JASON E | BEATTIE, EDWARD L | | | $874,950.00 | 46002 | 4504297 |
| 2 | 04/07/2017 | WD | Warranty Deed | SMITH, PATRICIA A | KINTNER, JASON E | | | $580,000.00 | 28900 | 4420836 |
| 3 | 10/09/2013 | DECREE | Divorce Decree/Legal Separation | SMITH, DALE R | SMITH, PATRICIA A | | | $0.00 | 13254 | 4350509 |
| 4 | 09/22/2004 | WD | Warranty Deed | RENGEN, GLENN A | SMITH, DALE R | | | $159,900.00 | 44697 | 4114706 |
| 5 | 01/01/1900 | OTHER | Other - Misc. Documents | Unknown | RENGEN, GLENN A | | | $0.00 | 0 | 0 |
Payout Agreement
| No payout information available.. |