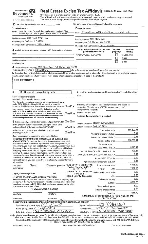
Property
Account |
| Property ID: | 804079 | Abbreviated Legal Description: | LOT 2 SP 205-00.13113.179-2800 V3 SP P421 AF#4011104 |
| Geographic ID: | R13113-188-2790 | Agent Code: | |
| Type: | Real | | |
| Tax Area: | 312 - APPRAISER-Cpvl Schl Dist, outside Cpvl, improved, greater than 1 acre | Land Use Code | 11 |
| Open Space: | N | DFL | N |
| Historic Property: | N | Remodel Property: | N |
| Multi-Family Redevelopment: | N | | |
| Township: | 31 | Section: | 13 |
| Range: | R1 |
Location |
| Address: | 15533 SR 2O COUPEVILLE, WA 98239 | Mapsco: | |
| Neighborhood: | Cycle 2 | Map ID: | 59 |
| Neighborhood CD: | 2 |
Owner |
| Name: | POTTER, TERRI | Owner ID: | 288507 |
| Mailing Address: | NANCY POTTER 15533 SR20 COUPEVILLE, WA 98239 | % Ownership: | 100.0000000000% |
| | | Exemptions: | |
Taxes and Assessment Details
Values
| (+) Improvement Homesite Value: | + | $0 | |
| (+) Improvement Non-Homesite Value: | + | $322,026 | |
| (+) Land Homesite Value: | + | $0 | |
| (+) Land Non-Homesite Value: | + | $279,000 | |
| (+) Curr Use (HS): | + | $0 | $0 |
| (+) Curr Use (NHS): | + | $0 | $0 |
| | | -------------------------- | |
| (=) Market Value: | = | $601,026 | |
| (–) Productivity Loss: | – | $0 | |
| | | -------------------------- | |
| (=) Subtotal: | = | $601,026 | |
| (+) Senior Appraised Value: | + | $0 | |
| (+) Non-Senior Appraised Value: | + | $601,026 | |
| | | -------------------------- | |
| (=) Total Appraised Value: | = | $601,026 | |
| (–) Senior Exemption Loss: | – | $0 | |
| (–) Exemption Loss: | – | $0 | |
| | | -------------------------- | |
| (=) Taxable Value: | = | $601,026 | |
Taxing Jurisdiction
| Owner: | POTTER, TERRI | | |
| % Ownership: | 100.0000000000% | | |
| Total Value: | $601,026 | | |
| Tax Area: | 312 - APPRAISER-Cpvl Schl Dist, outside Cpvl, improved, greater than 1 acre |
| CF | Conservation Futures | 0.0316035091 | $601,026 | $601,026 | $18.99 | | |
| CEM2 | Cemetery #2 | 0.0095056933 | $601,026 | $601,026 | $5.71 | | |
| FIRE5 | Fire & Rescue Dist #5 C Whidbey GEN | 1.2008080668 | $601,026 | $601,026 | $721.72 | | |
| FIRE5BOND | Fire & Rescue Dist #5 C Whidbey BOND | 0.1400090713 | $601,026 | $601,026 | $84.15 | | |
| HOBOND | Hospital BOND | 0.1910887512 | $601,026 | $601,026 | $114.85 | | |
| HOGEN | Hospital GEN | 0.3902502903 | $601,026 | $601,026 | $234.55 | | |
| CE | County Current Expense | 0.3708482477 | $601,026 | $601,026 | $222.89 | | |
| CR | County Roads | 0.4584763726 | $601,026 | $601,026 | $275.56 | | |
| ISLANDEMS | Hospital GEN (EMS) | 0.5000000000 | $601,026 | $601,026 | $300.51 | | |
| LIB | Library Sno-Isle GEN | 0.3153421757 | $601,026 | $601,026 | $189.53 | | |
| LIBCAP | Library Sno-Isle BOND (Cap Fac Imp Area) | 0.0543427938 | $601,026 | $601,026 | $32.66 | | |
| POCOUP | Port of Coupeville GEN | 0.1093371703 | $601,026 | $601,026 | $65.71 | | |
| POCOUPIDD | Port of Coupeville IDD | 0.3409740022 | $601,026 | $601,026 | $204.93 | | |
| COUPSDTECH | School 204 CP (TECH) | 0.7545480007 | $601,026 | $601,026 | $453.50 | | |
| SCH204MO | School 204 Enrichment | 0.6716186034 | $601,026 | $601,026 | $403.66 | | |
| ST | State School | 1.3035497053 | $601,026 | $601,026 | $783.47 | | |
| ST2 | State School Part 2 | 0.8169543533 | $601,026 | $601,026 | $491.01 | | |
| | Total Tax Rate: | 7.6592568070 | | | | | |
| | | | | Taxes w/Current Exemptions: | $4,603.40 | | |
| | | | | Taxes w/o Exemptions: | $4,603.40 | | |
Improvement / Building
| Improvement #1: | RESIDENTIAL | State Code: | Y | 1244.5 sqft | Value: | $322,026 |
| Bathrooms: | 2 | Bedrooms: | 2 | | Ceiling: | DRYWALL PAINTED | Exterior Wall/Cover: | WOOD SIDING | | Floor Covering: | CERAMIC TILE/HWD 40/60 | Floor Structure: | WOOD W/SUBFLOOR | | Foundation: | CONCRETE | Heating: | FHA GAS | | Interior Finish: | DRYWALL PAINT | Plumbing Fixture Cnt: | 9 | | Roof Slope: | 4" IN 12" | Roof Structure/Cover: | CJ ASPHALT |
|
| | Type | Description | Class CD | Sub Class CD | Year Built | Area |
| | BAS | BASE/MAIN FLOOR | 3 | 0 | 1980 | 1244.5 |
| | OWP | OPEN WOOD PORCH W/STEPS | 3 | 0 | 1980 | 28.0 |
| | OWC | OPEN WOOD PORCH W/STEPS/ROOF/C | 3 | 0 | 1980 | 232.0 |
| | UTY | STORAGE/UTILITY | 3 | 0 | 1980 | 1440.0 |
Sketch
Property Image
Land
| 1 | HS | HOMESITE | 1.0000 | 43560.00 | 0.00 | 0.00 | 1.00 | $270,000 | $0 |
| 2 | 91 | UNDEVELOPED LAND-METES AND BOUNDS | 0.4500 | 19602.00 | 0.00 | 0.00 | 1.00 | $9,000 | $0 |
Roll Value History
| 2026 | N/A | N/A | N/A | N/A | N/A |
| 2025 | $322,026 | $279,000 | $0 | $601,026 | $601,026 |
| 2024 | $322,317 | $280,000 | $0 | $602,317 | $602,317 |
| 2023 | $326,658 | $290,000 | $0 | $616,658 | $616,658 |
| 2022 | $299,722 | $280,000 | $0 | $579,722 | $579,722 |
| 2021 | $264,214 | $180,000 | $0 | $444,214 | $444,214 |
| 2020 | $257,471 | $170,000 | $0 | $427,471 | $427,471 |
| 2019 | $184,603 | $210,000 | $0 | $394,603 | $394,603 |
| 2018 | $155,076 | $190,000 | $0 | $345,076 | $345,076 |
| 2017 | $155,877 | $155,000 | $0 | $310,877 | $310,877 |
| 2016 | $157,574 | $140,000 | $0 | $297,574 | $297,574 |
| 2015 | $159,270 | $140,000 | $0 | $299,270 | $299,270 |
| 2014 | $160,966 | $127,500 | $0 | $288,466 | $288,466 |
| 2013 | $162,663 | $127,500 | $0 | $290,163 | $290,163 |
| 2012 | $164,360 | $127,500 | $0 | $291,860 | $291,860 |
| 2011 | $166,056 | $150,000 | $0 | $316,056 | $316,056 |
| 2010 | $170,250 | $150,000 | $0 | $320,250 | $320,250 |
| 2009 | $177,854 | $175,000 | $0 | $352,854 | $352,854 |
| 2008 | $181,250 | $135,000 | $0 | $316,250 | $316,250 |
| 2007 | $184,622 | $135,000 | $0 | $319,622 | $319,622 |
Deed and Sales History
| 1 | 12/24/2018 | WD | Warranty Deed | POTTER, JOAN E | POTTER, TERRI | | | $250,000.00 | 37301 | 4457842 |
| 2 | 12/28/2017 | PRD | Personal Representatives Deed | POTTER, FRED | POTTER, JOAN E | | | $0.00 | 32449 | 4436541 |
| 3 | 06/14/2002 | QCD | Quit Claim Deed | POTTER ET AL, JOAN E | POTTER, FRED | | | $0.00 | 22307 | 4023101 |
| 4 | 01/01/1900 | OTHER | Other - Misc. Documents | Unknown | POTTER ET AL, JOAN E | | | $0.00 | 0 | 0 |
Payout Agreement
| No payout information available.. |