Property
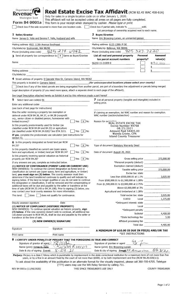
Account |
| Property ID: | 804082 | Abbreviated Legal Description: | LOT 1 SP 371-01.33033.096-4300 V3 SP P464 AF#4039137 |
| Geographic ID: | R33033-095-4330 | Agent Code: | |
| Type: | Real | | |
| Tax Area: | 712 - APPRAISER-S Whid Schl Dist, outside Langley, improved, greater than 1 acre | Land Use Code | 11 |
| Open Space: | N | DFL | N |
| Historic Property: | N | Remodel Property: | N |
| Multi-Family Redevelopment: | N | | |
| Township: | 30 | Section: | 33 |
| Range: | R3 |
Location |
| Address: | 5040 SARATOGA RD LANGLEY, WA 98260 | Mapsco: | |
| Neighborhood: | Cycle 4 | Map ID: | 909 |
| Neighborhood CD: | 4 |
Owner |
| Name: | LINCOLN, MARIE | Owner ID: | 285017 |
| Mailing Address: | RICHARD NEWTON 5040 SARATOGA RD LANGLEY, WA 98260 | % Ownership: | 100.0000000000% |
| | | Exemptions: | |
Taxes and Assessment Details
Values
| (+) Improvement Homesite Value: | + | $0 | |
| (+) Improvement Non-Homesite Value: | + | $166,315 | |
| (+) Land Homesite Value: | + | $0 | |
| (+) Land Non-Homesite Value: | + | $370,000 | |
| (+) Curr Use (HS): | + | $0 | $0 |
| (+) Curr Use (NHS): | + | $0 | $0 |
| | | -------------------------- | |
| (=) Market Value: | = | $536,315 | |
| (–) Productivity Loss: | – | $0 | |
| | | -------------------------- | |
| (=) Subtotal: | = | $536,315 | |
| (+) Senior Appraised Value: | + | $0 | |
| (+) Non-Senior Appraised Value: | + | $536,315 | |
| | | -------------------------- | |
| (=) Total Appraised Value: | = | $536,315 | |
| (–) Senior Exemption Loss: | – | $0 | |
| (–) Exemption Loss: | – | $0 | |
| | | -------------------------- | |
| (=) Taxable Value: | = | $536,315 | |
Taxing Jurisdiction
| Owner: | LINCOLN, MARIE | | |
| % Ownership: | 100.0000000000% | | |
| Total Value: | $536,315 | | |
| Tax Area: | 712 - APPRAISER-S Whid Schl Dist, outside Langley, improved, greater than 1 acre |
| CF | Conservation Futures | 0.0316035091 | $536,315 | $536,315 | $16.95 | | |
| FIRE3 | Fire & Rescue Dist #3 S Whidbey GEN | 1.2004855531 | $536,315 | $536,315 | $643.84 | | |
| HOBOND | Hospital BOND | 0.1910887512 | $536,315 | $536,315 | $102.48 | | |
| HOGEN | Hospital GEN | 0.3902502903 | $536,315 | $536,315 | $209.30 | | |
| CE | County Current Expense | 0.3708482477 | $536,315 | $536,315 | $198.89 | | |
| CR | County Roads | 0.4584763726 | $536,315 | $536,315 | $245.89 | | |
| ISLANDEMS | Hospital GEN (EMS) | 0.5000000000 | $536,315 | $536,315 | $268.16 | | |
| LIB | Library Sno-Isle GEN | 0.3153421757 | $536,315 | $536,315 | $169.12 | | |
| PORTWHID | Port of S Whidbey GEN | 0.1094540357 | $536,315 | $536,315 | $58.70 | | |
| SCH206BOND | School 206 BOND | 0.3161759235 | $536,315 | $536,315 | $169.57 | | |
| SCH206MO | School 206 Enrichment | 0.4547169547 | $536,315 | $536,315 | $243.87 | | |
| ST | State School | 1.3035497053 | $536,315 | $536,315 | $699.11 | | |
| ST2 | State School Part 2 | 0.8169543533 | $536,315 | $536,315 | $438.14 | | |
| SWHIDPRBD | P & R S Whidbey BOND | 0.0152817568 | $536,315 | $536,315 | $8.20 | | |
| SWHIDPRBD2 | P & R S Whidbey BOND2 | 0.0138911264 | $536,315 | $536,315 | $7.45 | | |
| SWHIDPRMT | P & R S Whidbey GEN | 0.2053334452 | $536,315 | $536,315 | $110.12 | | |
| | Total Tax Rate: | 6.6934522006 | | | | | |
| | | | | Taxes w/Current Exemptions: | $3,589.79 | | |
| | | | | Taxes w/o Exemptions: | $3,589.79 | | |
Improvement / Building
| Improvement #1: | RESIDENTIAL | State Code: | Y | 1542.0 sqft | Value: | $166,315 |
| Bathrooms: | 2 | Bedrooms: | 1 | | Ceiling: | PLASTER PAINTED | Exterior Wall/Cover: | WOOD SIDING | | Floor Covering: | (NONE) | Floor Structure: | WOOD W/SUBFLOOR | | Foundation: | CONCRETE | Heating: | FHA OIL | | Interior Finish: | DRYWALL PAINT | Plumbing Fixture Cnt: | 9 | | Roof Slope: | 6" IN 12" | Roof Structure/Cover: | CJ ASPHALT |
|
| | Type | Description | Class CD | Sub Class CD | Year Built | Area |
| | BAS | BASE/MAIN FLOOR | 3 | 0 | 1923 | 1182.0 |
| | UB6 | BASEMENT UNFINISHED 6" | 3 | 0 | 1923 | 1092.0 |
| | OWP | OPEN WOOD PORCH W/STEPS | 3 | 0 | 1923 | 36.0 |
| | UPH | HALF STORY | 3 | 0 | 1923 | 360.0 |
| | oBAR | BARN | 3 | 0 | 1923 | 0.0 |
| | OCP | OPEN CARPORT | 3 | 0 | 1923 | 572.0 |
| | UTY | STORAGE/UTILITY | 3 | 0 | 1923 | 328.0 |
Sketch
Property Image
Land
| 1 | 32 | AC (03.01-09.99) | 0.0000 | 0.00 | 0.00 | 0.00 | 1.00 | $370,000 | $0 |
Roll Value History
| 2026 | N/A | N/A | N/A | N/A | N/A |
| 2025 | $166,315 | $370,000 | $0 | $536,315 | $536,315 |
| 2024 | $169,532 | $350,000 | $0 | $519,532 | $519,532 |
| 2023 | $172,750 | $330,000 | $0 | $502,750 | $502,750 |
| 2022 | $159,770 | $290,000 | $0 | $449,770 | $449,770 |
| 2021 | $142,072 | $230,000 | $0 | $372,072 | $372,072 |
| 2020 | $128,038 | $190,000 | $0 | $318,038 | $318,038 |
| 2019 | $94,630 | $250,000 | $0 | $344,630 | $344,630 |
| 2018 | $95,087 | $210,000 | $0 | $305,087 | $305,087 |
| 2017 | $96,001 | $210,000 | $0 | $306,001 | $306,001 |
| 2016 | $97,828 | $175,000 | $0 | $272,828 | $272,828 |
| 2015 | $99,655 | $175,000 | $0 | $274,655 | $274,655 |
| 2014 | $69,815 | $155,000 | $0 | $224,815 | $224,815 |
| 2013 | $71,677 | $116,250 | $0 | $187,927 | $187,927 |
| 2012 | $73,539 | $116,250 | $0 | $189,789 | $189,789 |
| 2011 | $75,401 | $116,250 | $0 | $191,651 | $191,651 |
| 2010 | $93,579 | $116,250 | $0 | $209,829 | $209,829 |
| 2009 | $98,154 | $170,500 | $0 | $268,654 | $268,654 |
| 2008 | $101,818 | $368,125 | $0 | $469,943 | $469,943 |
| 2007 | $103,873 | $368,125 | $0 | $471,998 | $471,998 |
Deed and Sales History
| 1 | 05/15/2018 | QCD | Quit Claim Deed | LINCOLN, MARIE | LINCOLN, MARIE | | | $0.00 | 34084 | 4444321 |
| 2 | 01/20/2005 | WD | Warranty Deed | LINCOLN, MARIE | LINCOLN, MARIE | | | $0.00 | 60476 | 4161495 |
| 3 | 01/20/2005 | WD | Warranty Deed | ROREX TRUSTEE, RICHARD E | LINCOLN, MARIE | | | $410,000.00 | 51154 | 4129047 |
| 4 | 10/28/2004 | 5 | DNU - Marriage License/Name Change | ROREX, RICHARD | ROREX TRUSTEE, RICHARD E | | | $0.00 | 45244 | 4117358 |
| 5 | 01/07/2003 | QCD | Quit Claim Deed | ROREX, RICHARD | ROREX, RICHARD | | | $0.00 | 30154 | 4044095 |
| 6 | 12/18/2002 | QCD | Quit Claim Deed | ROREX, BENTON A | ROREX, RICHARD | | | $0.00 | 25184 | 4041995 |
| 7 | 01/01/1900 | OTHER | Other - Misc. Documents | Unknown | ROREX, BENTON A | | | $0.00 | 0 | 0 |
Payout Agreement
| No payout information available.. |