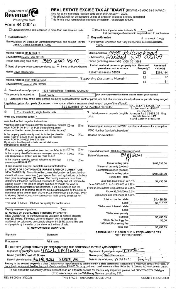
Property
Account |
| Property ID: | 804083 | Abbreviated Legal Description: | LOT 2 SP 371-01.33033.096-4300 V3 SP P464 AF#4039137 |
| Geographic ID: | R33033-095-4000 | Agent Code: | |
| Type: | Real | | |
| Tax Area: | 712 - APPRAISER-S Whid Schl Dist, outside Langley, improved, greater than 1 acre | Land Use Code | 11 |
| Open Space: | N | DFL | N |
| Historic Property: | N | Remodel Property: | N |
| Multi-Family Redevelopment: | N | | |
| Township: | 30 | Section: | 33 |
| Range: | R3 |
Location |
| Address: | 5024 SARATOGA RD LANGLEY, WA 98260 | Mapsco: | |
| Neighborhood: | Cycle 4 | Map ID: | 909 |
| Neighborhood CD: | 4 |
Owner |
| Name: | GIRARD, MAUREEN NICOLE | Owner ID: | 269453 |
| Mailing Address: | 5024 SARATOGA RD LANGLEY, WA 98260 | % Ownership: | 100.0000000000% |
| | | Exemptions: | SNR/DSBL |
Taxes and Assessment Details
Values
| (+) Improvement Homesite Value: | + | $169,741 | |
| (+) Improvement Non-Homesite Value: | + | $74,878 | |
| (+) Land Homesite Value: | + | $290,000 | |
| (+) Land Non-Homesite Value: | + | $0 | |
| (+) Curr Use (HS): | + | $0 | $0 |
| (+) Curr Use (NHS): | + | $0 | $0 |
| | | -------------------------- | |
| (=) Market Value: | = | $534,619 | |
| (–) Productivity Loss: | – | $0 | |
| | | -------------------------- | |
| (=) Subtotal: | = | $534,619 | |
| (+) Senior Appraised Value: | + | $276,540 | |
| (+) Non-Senior Appraised Value: | + | $74,878 | |
| | | -------------------------- | |
| (=) Total Appraised Value: | = | $351,418 | |
| (–) Senior Exemption Loss: | – | $165,924 | |
| (–) Exemption Loss: | – | $0 | |
| | | -------------------------- | |
| (=) Taxable Value: | = | $185,494 | |
Taxing Jurisdiction
| Owner: | GIRARD, MAUREEN NICOLE | | |
| % Ownership: | 100.0000000000% | | |
| Total Value: | $534,619 | | |
| Tax Area: | 712 - APPRAISER-S Whid Schl Dist, outside Langley, improved, greater than 1 acre |
| CF | Conservation Futures | 0.0316035091 | $534,619 | $185,494 | $5.86 | | |
| FIRE3 | Fire & Rescue Dist #3 S Whidbey GEN | 1.2004855531 | $534,619 | $185,494 | $222.68 | | |
| HOBOND | Hospital BOND | 0.0000000000 | $534,619 | $74,878 | $14.31 | | |
| HOGEN | Hospital GEN | 0.3902502903 | $534,619 | $185,494 | $72.39 | | |
| CE | County Current Expense | 0.3708482477 | $534,619 | $185,494 | $68.79 | | |
| CR | County Roads | 0.4584763726 | $534,619 | $185,494 | $85.04 | | |
| ISLANDEMS | Hospital GEN (EMS) | 0.5000000000 | $534,619 | $185,494 | $92.75 | | |
| LIB | Library Sno-Isle GEN | 0.3153421757 | $534,619 | $185,494 | $58.49 | | |
| PORTWHID | Port of S Whidbey GEN | 0.1094540357 | $534,619 | $185,494 | $20.30 | | |
| SCH206BOND | School 206 BOND | 0.3161759235 | $534,619 | $185,494 | $58.65 | | |
| SCH206MO | School 206 Enrichment | 0.0000000000 | $534,619 | $74,878 | $34.05 | | |
| ST | State School | 1.3035497053 | $534,619 | $185,494 | $241.80 | | |
| ST2 | State School Part 2 | 0.0000000000 | $534,619 | $74,878 | $61.17 | | |
| SWHIDPRBD | P & R S Whidbey BOND | 0.0000000000 | $534,619 | $74,878 | $1.14 | | |
| SWHIDPRBD2 | P & R S Whidbey BOND2 | 0.0000000000 | $534,619 | $74,878 | $1.04 | | |
| SWHIDPRMT | P & R S Whidbey GEN | 0.2053334452 | $534,619 | $185,494 | $38.09 | | |
| | Total Tax Rate: | 5.2015192582 | | | | | |
| | | | | Taxes w/Current Exemptions: | $1,076.55 | | |
| | | | | Taxes w/o Exemptions: | $3,578.46 | | |
Improvement / Building
| Improvement #1: | RESIDENTIAL | State Code: | Y | 1792.0 sqft | Value: | $244,619 |
| Bathrooms: | 2 | Bedrooms: | 1 | | Ceiling: | DRYWALL PAINTED | Cooling: | HEAT PUMP/CONV/V | | Exterior Wall/Cover: | SHINGLE | Floor Covering: | CARPET/VINYL 80-20 | | Floor Structure: | WOOD W/SUBFLOOR | Foundation: | CONCRETE | | Interior Finish: | DRYWALL PAINT | Plumbing Fixture Cnt: | 8 | | Roof Slope: | 12" IN 12" | Roof Structure/Cover: | CJ ASPHALT |
|
| | Type | Description | Class CD | Sub Class CD | Year Built | Area |
| | BAS | BASE/MAIN FLOOR | 3 | 0 | 1988 | 980.0 |
| | UPS | UPPER STORY | 3 | 0 | 1988 | 500.0 |
| | OWP | OPEN WOOD PORCH W/STEPS | 3 | 0 | 1988 | 374.0 |
| | UTY | STORAGE/UTILITY | 3 | 0 | 1988 | 128.0 |
| | LOF | LOFT | 3 | 0 | 1988 | 312.0 |
| | oCB2 | CABIN FIN | 3 | 0 | 1988 | 0.0 |
| | OCP | OPEN CARPORT | 3 | 0 | 1988 | 192.0 |
| | ENP | ENCLOSED PORCH | 3 | 0 | 1988 | 600.0 |
Sketch
Property Image
Land
| 1 | 17 | AC (01.01-02.00) | 0.0000 | 0.00 | 0.00 | 0.00 | 1.00 | $290,000 | $0 |
Roll Value History
| 2026 | N/A | N/A | N/A | N/A | N/A |
| 2025 | $244,619 | $290,000 | $0 | $534,619 | $185,494 |
| 2024 | $248,157 | $290,000 | $0 | $538,157 | $186,577 |
| 2023 | $251,698 | $250,000 | $0 | $501,698 | $187,661 |
| 2022 | $232,411 | $250,000 | $0 | $482,411 | $181,757 |
| 2021 | $206,663 | $190,000 | $0 | $396,663 | $173,876 |
| 2020 | $173,696 | $190,000 | $0 | $363,696 | $163,784 |
| 2019 | $132,932 | $240,000 | $0 | $372,932 | $151,306 |
| 2018 | $133,350 | $180,000 | $0 | $313,350 | $149,831 |
| 2017 | $137,915 | $180,000 | $0 | $317,915 | $152,496 |
| 2016 | $139,642 | $115,000 | $0 | $254,642 | $254,642 |
| 2015 | $141,368 | $100,000 | $0 | $241,368 | $241,368 |
| 2014 | $126,787 | $85,000 | $0 | $211,787 | $211,787 |
| 2013 | $128,303 | $85,000 | $0 | $213,303 | $213,303 |
| 2012 | $129,821 | $97,750 | $0 | $227,571 | $227,571 |
| 2011 | $131,336 | $115,000 | $0 | $246,336 | $246,336 |
| 2010 | $121,244 | $115,000 | $0 | $236,244 | $236,244 |
| 2009 | $126,697 | $100,000 | $0 | $226,697 | $226,697 |
| 2008 | $128,924 | $150,000 | $0 | $278,924 | $278,924 |
| 2007 | $131,151 | $89,109 | $0 | $220,260 | $220,260 |
Deed and Sales History
| 1 | 03/05/2015 | QCD | Quit Claim Deed | BLACKWOOD, JOHN B | GIRARD, MAUREEN NICOLE | | | $0.00 | 18740 | 4374669 |
| 2 | 01/18/2013 | CCOMPROP | Create Community Property | GIRARD, MAUREEN NICOLE | BLACKWOOD, JOHN B | | | $0.00 | 10179 | 4331730 |
| 3 | 10/05/2007 | 5 | DNU - Marriage License/Name Change | GIRARD, MAUREEN NICOLE | GIRARD, MAUREEN NICOLE | | | $0.00 | 73919 | 4217286 |
| 4 | 07/22/2005 | OTHER | Other - Misc. Documents | ROREX, MAUREEN | GIRARD, MAUREEN NICOLE | | | $0.00 | 70579 | 0 |
| 5 | 01/07/2003 | QCD | Quit Claim Deed | ROREX, MAUREEN | ROREX, MAUREEN | | | $0.00 | 30191 | 4044457 |
| 6 | 01/07/2003 | QCD | Quit Claim Deed | ROREX, MAUREEN | ROREX, MAUREEN | | | $0.00 | 30153 | 4044096 |
| 7 | 12/18/2002 | QCD | Quit Claim Deed | ROREX, BENTON A | ROREX, MAUREEN | | | $0.00 | 25183 | 4041994 |
| 8 | 01/01/1900 | OTHER | Other - Misc. Documents | Unknown | ROREX, BENTON A | | | $0.00 | 0 | 0 |
Payout Agreement
| No payout information available.. |