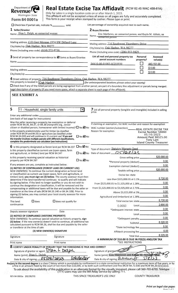
Property
Account |
| Property ID: | 804087 | Abbreviated Legal Description: | LOT 3 SP 23-92.33216.122-0240 V3 SP P427 AF#4015156 |
| Geographic ID: | R33216-174-0400 | Agent Code: | |
| Type: | Real | | |
| Tax Area: | 592 - APPRAISER-Stan/Cam Schl Dist, Special Dist, improved, greater than 1 acre | Land Use Code | 11 |
| Open Space: | N | DFL | N |
| Historic Property: | N | Remodel Property: | N |
| Multi-Family Redevelopment: | N | | |
| Township: | 32 | Section: | 16 |
| Range: | R3 |
Location |
| Address: | 815 EAGLES LANDING PLACE CAMANO ISLAND, WA 98282 | Mapsco: | |
| Neighborhood: | North Camano | Map ID: | 951 |
| Neighborhood CD: | 06-C |
Owner |
| Name: | SCHULZ, JOHN | Owner ID: | 254652 |
| Mailing Address: | 815 EAGLES LANDING PLACE CAMANO ISLAND, WA 98282 | % Ownership: | 100.0000000000% |
| | | Exemptions: | |
Taxes and Assessment Details
Values
| (+) Improvement Homesite Value: | + | $0 | |
| (+) Improvement Non-Homesite Value: | + | $458,221 | |
| (+) Land Homesite Value: | + | $0 | |
| (+) Land Non-Homesite Value: | + | $600,000 | |
| (+) Curr Use (HS): | + | $0 | $0 |
| (+) Curr Use (NHS): | + | $0 | $0 |
| | | -------------------------- | |
| (=) Market Value: | = | $1,058,221 | |
| (–) Productivity Loss: | – | $0 | |
| | | -------------------------- | |
| (=) Subtotal: | = | $1,058,221 | |
| (+) Senior Appraised Value: | + | $0 | |
| (+) Non-Senior Appraised Value: | + | $1,058,221 | |
| | | -------------------------- | |
| (=) Total Appraised Value: | = | $1,058,221 | |
| (–) Senior Exemption Loss: | – | $0 | |
| (–) Exemption Loss: | – | $0 | |
| | | -------------------------- | |
| (=) Taxable Value: | = | $1,058,221 | |
Taxing Jurisdiction
| Owner: | SCHULZ, JOHN | | |
| % Ownership: | 100.0000000000% | | |
| Total Value: | $1,058,221 | | |
| Tax Area: | 592 - APPRAISER-Stan/Cam Schl Dist, Special Dist, improved, greater than 1 acre |
| CF | Conservation Futures | 0.0316035091 | $1,058,221 | $1,058,221 | $33.44 | | |
| EMS1 | Fire & Rescue Dist #1 Camano GEN (EMS) | 0.3677864386 | $1,058,221 | $1,058,221 | $389.20 | | |
| FIRE1 | Fire & Rescue Dist #1 Camano GEN | 1.2502910536 | $1,058,221 | $1,058,221 | $1,323.08 | | |
| FIRE1BOND | Fire & Rescue Dist #1 Camano BOND | 0.1570001679 | $1,058,221 | $1,058,221 | $166.14 | | |
| CE | County Current Expense | 0.3708482477 | $1,058,221 | $1,058,221 | $392.44 | | |
| CR | County Roads | 0.4584763726 | $1,058,221 | $1,058,221 | $485.17 | | |
| LCIB | Library Sno-Isle BOND (Camano Island) | 0.0396325772 | $1,058,221 | $1,058,221 | $41.94 | | |
| LIB | Library Sno-Isle GEN | 0.3153421757 | $1,058,221 | $1,058,221 | $333.70 | | |
| SCH205_401 | School 205-401 Enrichment | 1.2698420524 | $1,058,221 | $1,058,221 | $1,343.77 | | |
| SCH205BOND | School 205-401 BOND | 0.9396497583 | $1,058,221 | $1,058,221 | $994.36 | | |
| ST | State School | 1.3035497053 | $1,058,221 | $1,058,221 | $1,379.44 | | |
| ST2 | State School Part 2 | 0.8169543533 | $1,058,221 | $1,058,221 | $864.52 | | |
| | Total Tax Rate: | 7.3209764117 | | | | | |
| | | | | Taxes w/Current Exemptions: | $7,747.20 | | |
| | | | | Taxes w/o Exemptions: | $7,747.20 | | |
Improvement / Building
| Improvement #1: | RESIDENTIAL | State Code: | Y | 1598.2 sqft | Value: | $458,221 |
| Bathrooms: | 3.25 | Bedrooms: | 3 | | Ceiling: | DRYWALL PAINTED | Exterior Wall/Cover: | CEMENT FIBER | | Floor Covering: | VINYL 100% | Floor Structure: | WOOD W/SUBFLOOR | | Foundation: | CONCRETE | Heating: | RADIANT FLOOR | | Interior Finish: | DRYWALL PAINT | Plumbing Fixture Cnt: | 13 | | Roof Slope: | 5" IN 12" | Roof Structure/Cover: | CJ ASPHALT |
|
| | Type | Description | Class CD | Sub Class CD | Year Built | Area |
| | BAS | BASE/MAIN FLOOR | 3 | 0 | 2017 | 1598.2 |
| | AGR | ATTACHED GARAGE | 3 | 0 | 2017 | 621.0 |
| | oOBD | Out Buildings | 3 | 0 | 2017 | 0.0 |
| | OP2 | OPEN PORCH W/STEPS | 3 | 0 | 2017 | 312.0 |
| | OP4 | OPEN PORCH W/CEILING-ROOF | 3 | 0 | 2017 | 110.0 |
Sketch
Property Image
Land
| 1 | HB | HIGH BLUFF | 3.2300 | 140698.80 | 160.00 | 0.00 | 1.00 | $600,000 | $0 |
Roll Value History
| 2026 | N/A | N/A | N/A | N/A | N/A |
| 2025 | $458,221 | $600,000 | $0 | $1,058,221 | $1,058,221 |
| 2024 | $461,311 | $600,000 | $0 | $1,061,311 | $1,061,311 |
| 2023 | $464,401 | $525,000 | $0 | $989,401 | $989,401 |
| 2022 | $427,603 | $500,000 | $0 | $927,603 | $927,603 |
| 2021 | $384,045 | $350,000 | $0 | $734,045 | $734,045 |
| 2020 | $374,997 | $300,000 | $0 | $674,997 | $674,997 |
| 2019 | $294,939 | $325,000 | $0 | $619,939 | $619,939 |
| 2018 | $296,601 | $300,000 | $0 | $596,601 | $596,601 |
| 2017 | $75,000 | $300,000 | $0 | $375,000 | $375,000 |
| 2016 | $75,000 | $300,000 | $0 | $375,000 | $375,000 |
| 2015 | $75,000 | $300,000 | $0 | $375,000 | $375,000 |
| 2014 | $75,000 | $300,000 | $0 | $375,000 | $375,000 |
| 2013 | $75,000 | $288,160 | $0 | $363,160 | $363,160 |
| 2012 | $75,000 | $288,160 | $0 | $363,160 | $363,160 |
| 2011 | $75,000 | $303,326 | $0 | $378,326 | $378,326 |
| 2010 | $152,010 | $303,326 | $0 | $455,336 | $455,336 |
| 2009 | $152,464 | $344,016 | $0 | $496,480 | $496,480 |
| 2008 | $153,991 | $344,016 | $0 | $498,007 | $498,007 |
| 2007 | $37,775 | $344,016 | $0 | $381,791 | $381,791 |
Deed and Sales History
| 1 | 06/20/2011 | QCD | Quit Claim Deed | SCHULZ, JOHN | SCHULZ, JOHN | | | $0.00 | 4728 | 4296906 |
| 2 | 08/11/2003 | WD | Warranty Deed | REINIG, MAX L | SCHULZ, JOHN | | | $219,000.00 | 33604 | 4071286 |
| 3 | 01/01/1900 | OTHER | Other - Misc. Documents | Unknown | REINIG, MAX L | | | $0.00 | 0 | 0 |
Payout Agreement
| No payout information available.. |