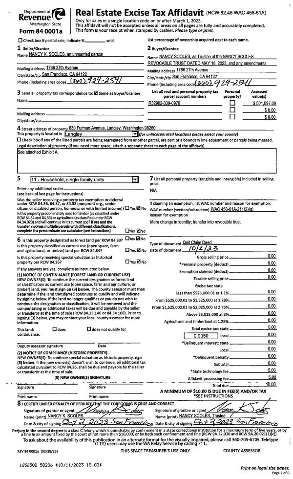
Property
Account |
| Property ID: | 804109 | Abbreviated Legal Description: | S/2 E/2 SE SE |
| Geographic ID: | R33218-032-4960 | Agent Code: | |
| Type: | Real | | |
| Tax Area: | 512 - APPRAISER-Stan/Cam Schl Dist, improved, greater than 1 acre | Land Use Code | 11 |
| Open Space: | N | DFL | N |
| Historic Property: | N | Remodel Property: | N |
| Multi-Family Redevelopment: | N | | |
| Township: | 32 | Section: | 18 |
| Range: | R3 |
Location |
| Address: | 365 UTSALADY RD CAMANO ISLAND, WA 98282 | Mapsco: | |
| Neighborhood: | North Camano | Map ID: | 958 |
| Neighborhood CD: | 06-C |
Owner |
| Name: | OLSEN, JON R | Owner ID: | 192277 |
| Mailing Address: | 365 UTSALADY RD CAMANO ISLAND, WA 98282-7260 | % Ownership: | 100.0000000000% |
| | | Exemptions: | |
Taxes and Assessment Details
Values
| (+) Improvement Homesite Value: | + | $0 | |
| (+) Improvement Non-Homesite Value: | + | $136,491 | |
| (+) Land Homesite Value: | + | $0 | |
| (+) Land Non-Homesite Value: | + | $380,000 | |
| (+) Curr Use (HS): | + | $0 | $0 |
| (+) Curr Use (NHS): | + | $0 | $0 |
| | | -------------------------- | |
| (=) Market Value: | = | $516,491 | |
| (–) Productivity Loss: | – | $0 | |
| | | -------------------------- | |
| (=) Subtotal: | = | $516,491 | |
| (+) Senior Appraised Value: | + | $0 | |
| (+) Non-Senior Appraised Value: | + | $516,491 | |
| | | -------------------------- | |
| (=) Total Appraised Value: | = | $516,491 | |
| (–) Senior Exemption Loss: | – | $0 | |
| (–) Exemption Loss: | – | $0 | |
| | | -------------------------- | |
| (=) Taxable Value: | = | $516,491 | |
Taxing Jurisdiction
| Owner: | OLSEN, JON R | | |
| % Ownership: | 100.0000000000% | | |
| Total Value: | $516,491 | | |
| Tax Area: | 512 - APPRAISER-Stan/Cam Schl Dist, improved, greater than 1 acre |
| CF | Conservation Futures | 0.0316035091 | $516,491 | $516,491 | $16.32 | | |
| EMS1 | Fire & Rescue Dist #1 Camano GEN (EMS) | 0.3677864386 | $516,491 | $516,491 | $189.96 | | |
| FIRE1 | Fire & Rescue Dist #1 Camano GEN | 1.2502910536 | $516,491 | $516,491 | $645.76 | | |
| FIRE1BOND | Fire & Rescue Dist #1 Camano BOND | 0.1570001679 | $516,491 | $516,491 | $81.09 | | |
| CE | County Current Expense | 0.3708482477 | $516,491 | $516,491 | $191.54 | | |
| CR | County Roads | 0.4584763726 | $516,491 | $516,491 | $236.80 | | |
| LCIB | Library Sno-Isle BOND (Camano Island) | 0.0396325772 | $516,491 | $516,491 | $20.47 | | |
| LIB | Library Sno-Isle GEN | 0.3153421757 | $516,491 | $516,491 | $162.87 | | |
| SCH205_401 | School 205-401 Enrichment | 1.2698420524 | $516,491 | $516,491 | $655.86 | | |
| SCH205BOND | School 205-401 BOND | 0.9396497583 | $516,491 | $516,491 | $485.32 | | |
| ST | State School | 1.3035497053 | $516,491 | $516,491 | $673.27 | | |
| ST2 | State School Part 2 | 0.8169543533 | $516,491 | $516,491 | $421.95 | | |
| | Total Tax Rate: | 7.3209764117 | | | | | |
| | | | | Taxes w/Current Exemptions: | $3,781.21 | | |
| | | | | Taxes w/o Exemptions: | $3,781.21 | | |
Improvement / Building
| Improvement #1: | MANUFACTURED HOME | State Code: | Y | 1992.0 sqft | Value: | $136,491 |
| Bathrooms: | 2.5 | Bedrooms: | 3 | | Ceiling: | PLASTER PAINTED | Cooling: | EVAP NO DUCT | | Exterior Wall/Cover: | VINYL | Floor Covering: | CARPET 100% | | Floor Structure: | SLAB ON GRADE | Foundation: | SLAB | | Heating: | FHA ELECTRIC | Interior Finish: | PLASTER | | Plumbing Fixture Cnt: | 1 | Roof Slope: | FLAT | | Roof Structure/Cover: | CJ ALUMINIUM HEAVY |   |   |
|
| | Type | Description | Class CD | Sub Class CD | Year Built | Area |
| | BAS | BASE/MAIN FLOOR | 4 | 0 | 1987 | 1992.0 |
| | OWP | OPEN WOOD PORCH W/STEPS | 4 | 0 | 1987 | 820.0 |
| | oPOL | POLE BARN | 4 | 0 | 1987 | 0.0 |
| | oGAR | GARAGE | 4 | 0 | 1987 | 0.0 |
Sketch
Property Image
Land
| 1 | 35 | AC (10.00-30.99) | 10.0000 | 435600.00 | 0.00 | 0.00 | 1.00 | $380,000 | $0 |
Roll Value History
| 2026 | N/A | N/A | N/A | N/A | N/A |
| 2025 | $136,491 | $380,000 | $0 | $516,491 | $516,491 |
| 2024 | $140,471 | $360,000 | $0 | $500,471 | $500,471 |
| 2023 | $130,184 | $340,000 | $0 | $470,184 | $470,184 |
| 2022 | $100,811 | $290,000 | $0 | $390,811 | $390,811 |
| 2021 | $95,809 | $210,000 | $0 | $305,809 | $305,809 |
| 2020 | $96,343 | $200,000 | $0 | $296,343 | $296,343 |
| 2019 | $85,149 | $250,000 | $0 | $335,149 | $335,149 |
| 2018 | $86,973 | $200,000 | $0 | $286,973 | $286,973 |
| 2017 | $89,708 | $160,000 | $0 | $249,708 | $249,708 |
| 2016 | $81,501 | $140,000 | $0 | $221,501 | $221,501 |
| 2015 | $83,325 | $160,000 | $0 | $243,325 | $243,325 |
| 2014 | $85,149 | $160,000 | $0 | $245,149 | $245,149 |
| 2013 | $86,973 | $160,000 | $0 | $246,973 | $246,973 |
| 2012 | $89,708 | $160,000 | $0 | $249,708 | $249,708 |
| 2011 | $91,531 | $200,000 | $0 | $291,531 | $291,531 |
| 2010 | $108,881 | $200,000 | $0 | $308,881 | $308,881 |
| 2009 | $113,546 | $250,000 | $0 | $363,546 | $363,546 |
| 2008 | $117,262 | $240,000 | $0 | $357,262 | $357,262 |
| 2007 | $122,195 | $240,000 | $0 | $362,195 | $362,195 |
Deed and Sales History
| 1 | 07/06/2004 | ESTSEPPROP | Establish Separate Property | OLSEN, JON R | OLSEN, JON R | | | $0.00 | 43898 | 4110799 |
| 2 | 07/06/2004 | ESTSEPPROP | Establish Separate Property | OLSEN, JON R | OLSEN, JON R | | | $0.00 | 43897 | 4110798 |
| 3 | 09/29/2003 | PRD | Personal Representatives Deed | OLSEN, JON R | OLSEN, JON R | | | $0.00 | 34551 | 4078465 |
| 4 | 05/22/2003 | WD | Warranty Deed | OLSEN, JOHN R | OLSEN, JON R | | | $180,928.00 | 32200 | 4060343 |
| 5 | 01/09/2003 | SEG | DNU - Segregation | Unknown | OLSEN, JOHN R | | | $0.00 | 69654 | 0 |
Payout Agreement
| No payout information available.. |