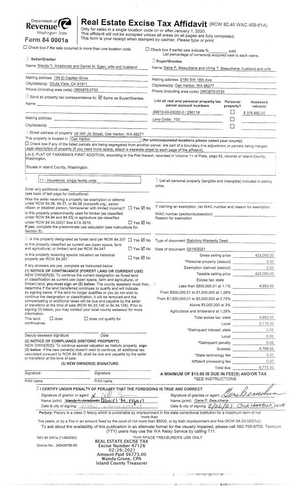
Property
Account |
| Property ID: | 804114 | Abbreviated Legal Description: | IN W/2 SW NE: BG CTR SEC 11 N1140' TPB E260' N TO NLN SW NE W260' S TPB |
| Geographic ID: | R32811-380-2710 | Agent Code: | |
| Type: | Real | | |
| Tax Area: | 712 - APPRAISER-S Whid Schl Dist, outside Langley, improved, greater than 1 acre | Land Use Code | 11 |
| Open Space: | N | DFL | N |
| Historic Property: | N | Remodel Property: | N |
| Multi-Family Redevelopment: | N | | |
| Township: | 28 | Section: | 11 |
| Range: | R3 |
Location |
| Address: | 7735 CULTUS BAY RD CLINTON, WA 98236 | Mapsco: | |
| Neighborhood: | Cycle 4 | Map ID: | 704 |
| Neighborhood CD: | 4 |
Owner |
| Name: | LOS, ROGER N | Owner ID: | 292371 |
| Mailing Address: | PO BOX 1184 LANGLEY, WA 98260 | % Ownership: | 100.0000000000% |
| | | Exemptions: | |
Taxes and Assessment Details
Values
| (+) Improvement Homesite Value: | + | $0 | |
| (+) Improvement Non-Homesite Value: | + | $431,933 | |
| (+) Land Homesite Value: | + | $0 | |
| (+) Land Non-Homesite Value: | + | $280,000 | |
| (+) Curr Use (HS): | + | $0 | $0 |
| (+) Curr Use (NHS): | + | $0 | $0 |
| | | -------------------------- | |
| (=) Market Value: | = | $711,933 | |
| (–) Productivity Loss: | – | $0 | |
| | | -------------------------- | |
| (=) Subtotal: | = | $711,933 | |
| (+) Senior Appraised Value: | + | $0 | |
| (+) Non-Senior Appraised Value: | + | $711,933 | |
| | | -------------------------- | |
| (=) Total Appraised Value: | = | $711,933 | |
| (–) Senior Exemption Loss: | – | $0 | |
| (–) Exemption Loss: | – | $0 | |
| | | -------------------------- | |
| (=) Taxable Value: | = | $711,933 | |
Taxing Jurisdiction
| Owner: | LOS, ROGER N | | |
| % Ownership: | 100.0000000000% | | |
| Total Value: | $711,933 | | |
| Tax Area: | 712 - APPRAISER-S Whid Schl Dist, outside Langley, improved, greater than 1 acre |
| CF | Conservation Futures | 0.0316035091 | $711,933 | $711,933 | $22.50 | | |
| FIRE3 | Fire & Rescue Dist #3 S Whidbey GEN | 1.2004855531 | $711,933 | $711,933 | $854.67 | | |
| HOBOND | Hospital BOND | 0.1910887512 | $711,933 | $711,933 | $136.04 | | |
| HOGEN | Hospital GEN | 0.3902502903 | $711,933 | $711,933 | $277.83 | | |
| CE | County Current Expense | 0.3708482477 | $711,933 | $711,933 | $264.02 | | |
| CR | County Roads | 0.4584763726 | $711,933 | $711,933 | $326.40 | | |
| ISLANDEMS | Hospital GEN (EMS) | 0.5000000000 | $711,933 | $711,933 | $355.97 | | |
| LIB | Library Sno-Isle GEN | 0.3153421757 | $711,933 | $711,933 | $224.50 | | |
| PORTWHID | Port of S Whidbey GEN | 0.1094540357 | $711,933 | $711,933 | $77.92 | | |
| SCH206BOND | School 206 BOND | 0.3161759235 | $711,933 | $711,933 | $225.10 | | |
| SCH206MO | School 206 Enrichment | 0.4547169547 | $711,933 | $711,933 | $323.73 | | |
| ST | State School | 1.3035497053 | $711,933 | $711,933 | $928.04 | | |
| ST2 | State School Part 2 | 0.8169543533 | $711,933 | $711,933 | $581.62 | | |
| SWHIDPRBD | P & R S Whidbey BOND | 0.0152817568 | $711,933 | $711,933 | $10.88 | | |
| SWHIDPRBD2 | P & R S Whidbey BOND2 | 0.0138911264 | $711,933 | $711,933 | $9.89 | | |
| SWHIDPRMT | P & R S Whidbey GEN | 0.2053334452 | $711,933 | $711,933 | $146.18 | | |
| | Total Tax Rate: | 6.6934522006 | | | | | |
| | | | | Taxes w/Current Exemptions: | $4,765.29 | | |
| | | | | Taxes w/o Exemptions: | $4,765.29 | | |
Improvement / Building
| Improvement #1: | RESIDENTIAL | State Code: | Y | 1709.6 sqft | Value: | $431,933 |
| Bathrooms: | 3 | Bedrooms: | 3 | | Ceiling: | DRY WALL SPRAYED | Exterior Wall/Cover: | WOOD SIDING | | Floor Covering: | VINYL TILE/HARWD 20-80 | Floor Structure: | WOOD W/SUBFLOOR | | Foundation: | CONCRETE | Heating: | FHA GAS | | Interior Finish: | DRYWALL PAINT | Plumbing Fixture Cnt: | 12 | | Roof Slope: | 6" IN 12" | Roof Structure/Cover: | CJ ALUMINIUM HEAVY |
|
| | Type | Description | Class CD | Sub Class CD | Year Built | Area |
| | BAS | BASE/MAIN FLOOR | 4 | 0 | 2002 | 1277.6 |
| | OP3 | OPEN PORCH W/ROOF | 4 | 0 | 2002 | 360.0 |
| | UPH | HALF STORY | 4 | 0 | 2002 | 432.0 |
| | OWP | OPEN WOOD PORCH W/STEPS | 4 | 0 | 2002 | 289.7 |
| | OWR | OPEN WOOD PORCH W/STEPS/ROOF | 4 | 0 | 2002 | 69.4 |
| | OWR | OPEN WOOD PORCH W/STEPS/ROOF | 4 | 0 | 2002 | 135.0 |
| | UTY | STORAGE/UTILITY | 4 | 0 | 2002 | 1728.0 |
Sketch
| No sketches available for this property. |
Property Image
Land
| 1 | 17 | AC (01.01-02.00) | 0.0000 | 0.00 | 0.00 | 0.00 | 1.00 | $280,000 | $0 |
Roll Value History
| 2026 | N/A | N/A | N/A | N/A | N/A |
| 2025 | $431,933 | $280,000 | $0 | $711,933 | $711,933 |
| 2024 | $437,122 | $270,000 | $0 | $707,122 | $707,122 |
| 2023 | $442,312 | $260,000 | $0 | $702,312 | $702,312 |
| 2022 | $405,209 | $250,000 | $0 | $655,209 | $655,209 |
| 2021 | $356,445 | $175,000 | $0 | $531,445 | $531,445 |
| 2020 | $306,937 | $165,000 | $0 | $471,937 | $471,937 |
| 2019 | $240,850 | $200,000 | $0 | $440,850 | $440,850 |
| 2018 | $241,443 | $170,000 | $0 | $411,443 | $411,443 |
| 2017 | $242,615 | $150,000 | $0 | $392,615 | $392,615 |
| 2016 | $244,987 | $130,000 | $0 | $374,987 | $374,987 |
| 2015 | $247,361 | $100,000 | $0 | $347,361 | $347,361 |
| 2014 | $244,987 | $100,000 | $0 | $344,987 | $344,987 |
| 2013 | $247,361 | $85,000 | $0 | $332,361 | $332,361 |
| 2012 | $249,735 | $69,700 | $0 | $319,435 | $319,435 |
| 2011 | $252,108 | $82,000 | $0 | $334,108 | $334,108 |
| 2010 | $239,790 | $82,000 | $0 | $321,790 | $321,790 |
| 2009 | $247,203 | $155,000 | $0 | $402,203 | $402,203 |
| 2008 | $247,363 | $200,000 | $0 | $447,363 | $447,363 |
| 2007 | $253,339 | $200,000 | $0 | $453,339 | $453,339 |
Deed and Sales History
| 1 | 10/17/2019 | QCD | Quit Claim Deed | LOS, ROGER N | LOS, ROGER N | | | $0.00 | 40858 | 4474234 |
| 2 | 09/24/2010 | WD | Warranty Deed | HELTON, WILLARD | LOS, ROGER N | | | $365,000.00 | 2403 | 4281743 |
| 3 | 01/27/2003 | BLA | DNU - Boundary Line Adjustment | Unknown | HELTON, WILLARD | | | $0.00 | 69672 | 4015906 |
Payout Agreement
| No payout information available.. |