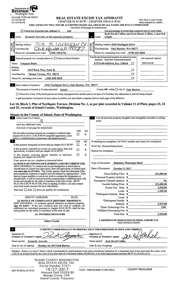
Property
Account |
| Property ID: | 804127 | Abbreviated Legal Description: | 5.6300 Acres ins Section 12s Township 31s Range R1s V3 SP P433 AF#4017447 LOT A BLA 087-20 AF#4487166;s |
| Geographic ID: | R13112-281-4870 | Agent Code: | |
| Type: | Real | | |
| Tax Area: | 312 - APPRAISER-Cpvl Schl Dist, outside Cpvl, improved, greater than 1 acre | Land Use Code | 11 |
| Open Space: | N | DFL | N |
| Historic Property: | N | Remodel Property: | N |
| Multi-Family Redevelopment: | N | | |
| Township: | 31 | Section: | 12 |
| Range: | R1 |
Location |
| Address: | 571 HILL HAVEN LN COUPEVILLE, WA 98239 | Mapsco: | |
| Neighborhood: | Cycle 2 | Map ID: | 57 |
| Neighborhood CD: | 2 |
Owner |
| Name: | SERPA, TERRY KAY | Owner ID: | 282780 |
| Mailing Address: | PO BOX 579 COUPEVILLE, WA 98239 | % Ownership: | 100.0000000000% |
| | | Exemptions: | |
Taxes and Assessment Details
Values
| (+) Improvement Homesite Value: | + | $0 | |
| (+) Improvement Non-Homesite Value: | + | $98,537 | |
| (+) Land Homesite Value: | + | $0 | |
| (+) Land Non-Homesite Value: | + | $341,499 | |
| (+) Curr Use (HS): | + | $0 | $0 |
| (+) Curr Use (NHS): | + | $0 | $0 |
| | | -------------------------- | |
| (=) Market Value: | = | $440,036 | |
| (–) Productivity Loss: | – | $0 | |
| | | -------------------------- | |
| (=) Subtotal: | = | $440,036 | |
| (+) Senior Appraised Value: | + | $0 | |
| (+) Non-Senior Appraised Value: | + | $440,036 | |
| | | -------------------------- | |
| (=) Total Appraised Value: | = | $440,036 | |
| (–) Senior Exemption Loss: | – | $0 | |
| (–) Exemption Loss: | – | $0 | |
| | | -------------------------- | |
| (=) Taxable Value: | = | $440,036 | |
Taxing Jurisdiction
| Owner: | SERPA, TERRY KAY | | |
| % Ownership: | 100.0000000000% | | |
| Total Value: | $440,036 | | |
| Tax Area: | 312 - APPRAISER-Cpvl Schl Dist, outside Cpvl, improved, greater than 1 acre |
| CF | Conservation Futures | 0.0316035091 | $440,036 | $440,036 | $13.91 | | |
| CEM2 | Cemetery #2 | 0.0095056933 | $440,036 | $440,036 | $4.18 | | |
| FIRE5 | Fire & Rescue Dist #5 C Whidbey GEN | 1.2008080668 | $440,036 | $440,036 | $528.40 | | |
| FIRE5BOND | Fire & Rescue Dist #5 C Whidbey BOND | 0.1400090713 | $440,036 | $440,036 | $61.61 | | |
| HOBOND | Hospital BOND | 0.1910887512 | $440,036 | $440,036 | $84.09 | | |
| HOGEN | Hospital GEN | 0.3902502903 | $440,036 | $440,036 | $171.72 | | |
| CE | County Current Expense | 0.3708482477 | $440,036 | $440,036 | $163.19 | | |
| CR | County Roads | 0.4584763726 | $440,036 | $440,036 | $201.75 | | |
| ISLANDEMS | Hospital GEN (EMS) | 0.5000000000 | $440,036 | $440,036 | $220.02 | | |
| LIB | Library Sno-Isle GEN | 0.3153421757 | $440,036 | $440,036 | $138.76 | | |
| LIBCAP | Library Sno-Isle BOND (Cap Fac Imp Area) | 0.0543427938 | $440,036 | $440,036 | $23.91 | | |
| POCOUP | Port of Coupeville GEN | 0.1093371703 | $440,036 | $440,036 | $48.11 | | |
| POCOUPIDD | Port of Coupeville IDD | 0.3409740022 | $440,036 | $440,036 | $150.04 | | |
| COUPSDTECH | School 204 CP (TECH) | 0.7545480007 | $440,036 | $440,036 | $332.03 | | |
| SCH204MO | School 204 Enrichment | 0.6716186034 | $440,036 | $440,036 | $295.54 | | |
| ST | State School | 1.3035497053 | $440,036 | $440,036 | $573.61 | | |
| ST2 | State School Part 2 | 0.8169543533 | $440,036 | $440,036 | $359.49 | | |
| | Total Tax Rate: | 7.6592568070 | | | | | |
| | | | | Taxes w/Current Exemptions: | $3,370.36 | | |
| | | | | Taxes w/o Exemptions: | $3,370.36 | | |
Improvement / Building
| Improvement #1: | MANUFACTURED HOME | State Code: | Y | 1296.0 sqft | Value: | $98,537 |
| Bathrooms: | 2 | Bedrooms: | 3 | | Ceiling: | PLASTER PAINTED | Cooling: | EVAP NO DUCT | | Exterior Wall/Cover: | VINYL | Floor Covering: | CARPET 100% | | Floor Structure: | SLAB ON GRADE | Foundation: | SLAB | | Heating: | FHA ELECTRIC | Interior Finish: | PLASTER | | Plumbing Fixture Cnt: | 1 | Roof Slope: | FLAT | | Roof Structure/Cover: | CJ ALUMINIUM HEAVY |   |   |
|
| | Type | Description | Class CD | Sub Class CD | Year Built | Area |
| | BAS | BASE/MAIN FLOOR | 3 | 0 | 2005 | 1296.0 |
| | OWR | OPEN WOOD PORCH W/STEPS/ROOF | 3 | 0 | 2005 | 32.0 |
| | OWP | OPEN WOOD PORCH W/STEPS | 3 | 0 | 2005 | 435.5 |
Sketch
Property Image
Land
| 1 | HS | HOMESITE | 1.0000 | 43560.00 | 0.00 | 0.00 | 1.00 | $220,000 | $0 |
| 2 | 91 | UNDEVELOPED LAND-METES AND BOUNDS | 4.6300 | 201682.80 | 0.00 | 0.00 | 1.00 | $121,499 | $0 |
Roll Value History
| 2026 | N/A | N/A | N/A | N/A | N/A |
| 2025 | $98,537 | $341,499 | $0 | $440,036 | $440,036 |
| 2024 | $93,419 | $300,000 | $0 | $393,419 | $393,419 |
| 2023 | $95,979 | $280,000 | $0 | $375,979 | $375,979 |
| 2022 | $89,226 | $260,000 | $0 | $349,226 | $349,226 |
| 2021 | $79,603 | $170,000 | $0 | $249,603 | $249,603 |
| 2020 | $79,235 | $160,000 | $0 | $239,235 | $239,235 |
| 2019 | $63,954 | $230,000 | $0 | $293,954 | $293,954 |
| 2018 | $63,087 | $200,000 | $0 | $263,087 | $263,087 |
| 2017 | $64,460 | $200,000 | $0 | $264,460 | $264,460 |
| 2016 | $65,147 | $140,000 | $0 | $205,147 | $205,147 |
| 2015 | $65,833 | $136,809 | $0 | $202,642 | $202,642 |
| 2014 | $67,206 | $136,809 | $0 | $204,015 | $204,015 |
| 2013 | $67,893 | $136,809 | $0 | $204,702 | $204,702 |
| 2012 | $70,621 | $136,809 | $0 | $207,430 | $207,430 |
| 2011 | $71,279 | $152,010 | $0 | $223,289 | $223,289 |
| 2010 | $72,665 | $152,010 | $0 | $224,675 | $224,675 |
| 2009 | $74,651 | $168,900 | $0 | $243,551 | $243,551 |
| 2008 | $76,152 | $188,605 | $0 | $264,757 | $264,757 |
| 2007 | $77,647 | $168,900 | $0 | $246,547 | $246,547 |
Deed and Sales History
| 1 | 09/22/2020 | QCD | Quit Claim Deed | SERPA, TERRY KAY | SERPA, TERRY KAY | | | $0.00 | 45042 | 4498308 |
| 2 | 10/31/2017 | QCD | Quit Claim Deed | SERPA, ARTHUR J | SERPA, TERRY KAY | | | $0.00 | 31784 | 4433412 |
| 3 | 08/11/2005 | WD | Warranty Deed | WESTGATE MOBILE HOMES INC, | SERPA JTWROS, ARTHUR J & TERRY | | | $167,764.00 | 53929 | 4143831 |
| 4 | 10/20/2004 | WD | Warranty Deed | CRAVEN, KENT | WESTGATE MOBILE HOMES INC, | | | $60,000.00 | 44983 | 4116264 |
| 5 | 01/01/1900 | OTHER | Other - Misc. Documents | Unknown | CRAVEN, KENT | | | $0.00 | 0 | 0 |
Payout Agreement
| No payout information available.. |