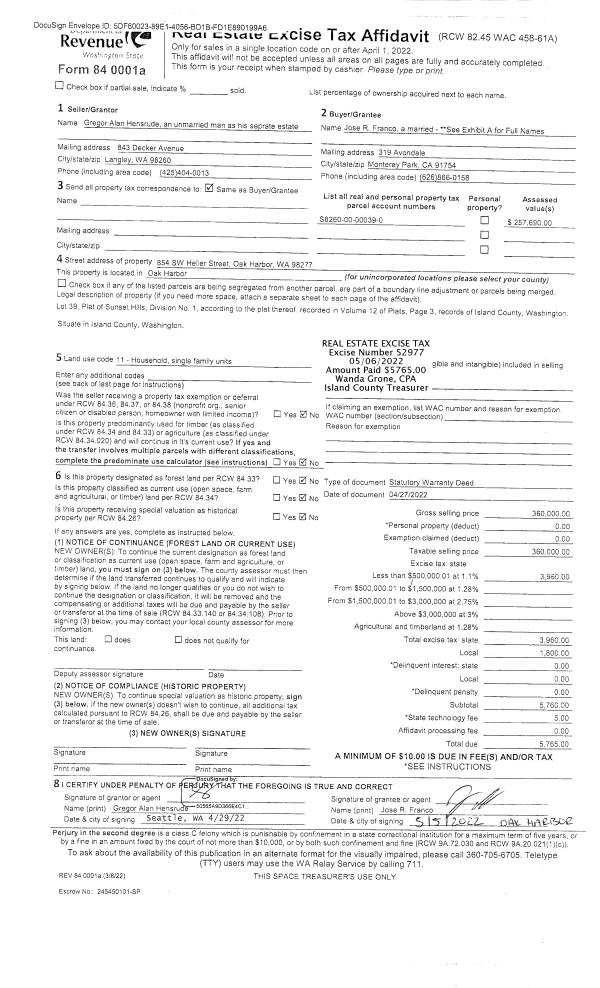
Property
Account |
| Property ID: | 804147 | Abbreviated Legal Description: | LOT 1 SP 291-01.13312.345-0330 V3 SP P442 AF#4020839 |
| Geographic ID: | R13312-379-0340 | Agent Code: | |
| Type: | Real | | |
| Tax Area: | 112 - APPRAISER-OH Schl Dist, outside OH, improved, greater than 1 acre | Land Use Code | 11 |
| Open Space: | N | DFL | N |
| Historic Property: | N | Remodel Property: | N |
| Multi-Family Redevelopment: | N | | |
| Township: | 33 | Section: | 12 |
| Range: | R1 |
Location |
| Address: | 4260 MONKEY HILL RD OAK HARBOR, WA 98277 | Mapsco: | |
| Neighborhood: | Cycle 6 | Map ID: | 206 |
| Neighborhood CD: | 6 |
Owner |
| Name: | CHIABAI, VALENTINO NIKOLA | Owner ID: | 302790 |
| Mailing Address: | DANA L ANDRICH PO BOX 3039 ANACORTES, WA 98221 | % Ownership: | 100.0000000000% |
| | | Exemptions: | |
Taxes and Assessment Details
Values
| (+) Improvement Homesite Value: | + | $0 | |
| (+) Improvement Non-Homesite Value: | + | $161,399 | |
| (+) Land Homesite Value: | + | $0 | |
| (+) Land Non-Homesite Value: | + | $300,000 | |
| (+) Curr Use (HS): | + | $0 | $0 |
| (+) Curr Use (NHS): | + | $0 | $0 |
| | | -------------------------- | |
| (=) Market Value: | = | $461,399 | |
| (–) Productivity Loss: | – | $0 | |
| | | -------------------------- | |
| (=) Subtotal: | = | $461,399 | |
| (+) Senior Appraised Value: | + | $0 | |
| (+) Non-Senior Appraised Value: | + | $461,399 | |
| | | -------------------------- | |
| (=) Total Appraised Value: | = | $461,399 | |
| (–) Senior Exemption Loss: | – | $0 | |
| (–) Exemption Loss: | – | $0 | |
| | | -------------------------- | |
| (=) Taxable Value: | = | $461,399 | |
Taxing Jurisdiction
| Owner: | CHIABAI, VALENTINO NIKOLA | | |
| % Ownership: | 100.0000000000% | | |
| Total Value: | $461,399 | | |
| Tax Area: | 112 - APPRAISER-OH Schl Dist, outside OH, improved, greater than 1 acre |
| CF | Conservation Futures | 0.0316035091 | $461,399 | $461,399 | $14.58 | | |
| CEM1 | Cemetery #1 | 0.0040320932 | $461,399 | $461,399 | $1.86 | | |
| FIRE2 | Fire & Rescue Dist #2 N Whidbey GEN | 0.5475949600 | $461,399 | $461,399 | $252.66 | | |
| HOBOND | Hospital BOND | 0.1910887512 | $461,399 | $461,399 | $88.17 | | |
| HOGEN | Hospital GEN | 0.3902502903 | $461,399 | $461,399 | $180.06 | | |
| CE | County Current Expense | 0.3708482477 | $461,399 | $461,399 | $171.11 | | |
| CR | County Roads | 0.4584763726 | $461,399 | $461,399 | $211.54 | | |
| ISLANDEMS | Hospital GEN (EMS) | 0.5000000000 | $461,399 | $461,399 | $230.70 | | |
| LIB | Library Sno-Isle GEN | 0.3153421757 | $461,399 | $461,399 | $145.50 | | |
| NWHIDPRMT | P & R N Whidbey GEN | 0.2004466701 | $461,399 | $461,399 | $92.49 | | |
| SCH201MO | School 201 Enrichment | 1.8559231640 | $461,399 | $461,399 | $856.32 | | |
| ST | State School | 1.3035497053 | $461,399 | $461,399 | $601.46 | | |
| ST2 | State School Part 2 | 0.8169543533 | $461,399 | $461,399 | $376.94 | | |
| | Total Tax Rate: | 6.9861102925 | | | | | |
| | | | | Taxes w/Current Exemptions: | $3,223.39 | | |
| | | | | Taxes w/o Exemptions: | $3,223.39 | | |
Improvement / Building
| Improvement #1: | MANUFACTURED HOME | State Code: | Y | 1960.8 sqft | Value: | $161,399 |
| Bathrooms: | 0 | Bedrooms: | 0 | | Ceiling: | PLASTER PAINTED | Cooling: | EVAP NO DUCT | | Exterior Wall/Cover: | VINYL | Floor Covering: | CARPET 100% | | Floor Structure: | SLAB ON GRADE | Foundation: | SLAB | | Heating: | FHA ELECTRIC | Interior Finish: | PLASTER | | Plumbing Fixture Cnt: | 1 | Roof Slope: | FLAT | | Roof Structure/Cover: | CJ ALUMINIUM HEAVY |   |   |
|
| | Type | Description | Class CD | Sub Class CD | Year Built | Area |
| | BAS | BASE/MAIN FLOOR | 4 | 0 | 2003 | 1960.8 |
| | oPOL | POLE BARN | 4 | 0 | 2003 | 1116.0 |
| | OP4 | OPEN PORCH W/CEILING-ROOF | 4 | 0 | 2003 | 16.0 |
Sketch
Property Image
Land
| 1 | 32 | AC (03.01-09.99) | 4.7500 | 206910.00 | 0.00 | 0.00 | 1.00 | $300,000 | $0 |
Roll Value History
| 2026 | N/A | N/A | N/A | N/A | N/A |
| 2025 | $161,399 | $300,000 | $0 | $461,399 | $461,399 |
| 2024 | $165,163 | $280,000 | $0 | $445,163 | $445,163 |
| 2023 | $150,034 | $270,000 | $0 | $420,034 | $420,034 |
| 2022 | $135,166 | $240,000 | $0 | $375,166 | $375,166 |
| 2021 | $117,686 | $175,000 | $0 | $292,686 | $292,686 |
| 2020 | $117,322 | $140,000 | $0 | $257,322 | $257,322 |
| 2019 | $99,378 | $200,000 | $0 | $299,378 | $299,378 |
| 2018 | $101,238 | $175,000 | $0 | $276,238 | $276,238 |
| 2017 | $103,084 | $140,000 | $0 | $243,084 | $243,084 |
| 2016 | $107,260 | $140,000 | $0 | $247,260 | $247,260 |
| 2015 | $109,266 | $120,000 | $0 | $229,266 | $229,266 |
| 2014 | $110,269 | $106,875 | $0 | $217,144 | $217,144 |
| 2013 | $111,272 | $106,875 | $0 | $218,147 | $218,147 |
| 2012 | $113,277 | $79,029 | $0 | $192,306 | $192,306 |
| 2011 | $114,281 | $87,754 | $0 | $202,035 | $202,035 |
| 2010 | $125,588 | $87,754 | $0 | $213,342 | $213,342 |
| 2009 | $130,095 | $87,754 | $0 | $217,849 | $217,849 |
| 2008 | $131,776 | $99,969 | $0 | $231,745 | $231,745 |
| 2007 | $133,475 | $99,969 | $0 | $233,444 | $233,444 |
Deed and Sales History
| 1 | 01/20/2022 | QCD | Quit Claim Deed | TILAND, BRIAN S | CHIABAI, VALENTINO NIKOLA | | | $0.00 | 51729 | 4538334 |
| 2 | 01/20/2022 | WD | Warranty Deed | ESTEP, LARRY | CHIABAI, VALENTINO NIKOLA | | | $535,000.00 | 51728 | 4538333 |
| 3 | 10/26/2021 | WD | Warranty Deed | HUNT, HEATHER | ESTEP, LARRY | | | $309,000.00 | 50655 | 4532519 |
| 4 | 03/19/2003 | WD | Warranty Deed | RICHMOND JPJ ENTERPRISES INC, | HUNT, HEATHER | | | $57,000.00 | 31440 | 4054268 |
| 5 | 01/01/1900 | OTHER | Other - Misc. Documents | Unknown | RICHMOND JPJ ENTERPRISES INC, | | | $0.00 | 0 | 0 |
Payout Agreement
| No payout information available.. |