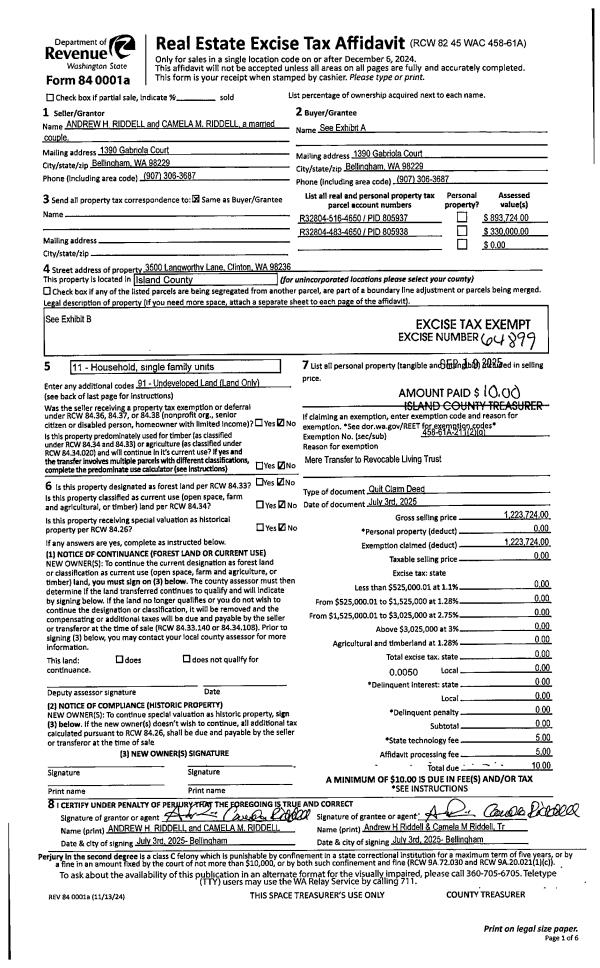
Property
Account |
| Property ID: | 804202 | Abbreviated Legal Description: | SE SE NW EX HEGGENES RD |
| Geographic ID: | R32936-299-2320 | Agent Code: | |
| Type: | Real | | |
| Tax Area: | 712 - APPRAISER-S Whid Schl Dist, outside Langley, improved, greater than 1 acre | Land Use Code | 11 |
| Open Space: | N | DFL | N |
| Historic Property: | N | Remodel Property: | N |
| Multi-Family Redevelopment: | N | | |
| Township: | 29 | Section: | 36 |
| Range: | R3 |
Location |
| Address: | 6903 HEGGENES RD CLINTON, WA 98236 | Mapsco: | |
| Neighborhood: | Cycle 4 | Map ID: | 848 |
| Neighborhood CD: | 4 |
Owner |
| Name: | HANZELKA, DALE | Owner ID: | 310563 |
| Mailing Address: | SUSAN HANZELKA 6459 LAKE SHORE DR CLINTON, WA 98236 | % Ownership: | 100.0000000000% |
| | | Exemptions: | |
Taxes and Assessment Details
Values
| (+) Improvement Homesite Value: | + | $0 | |
| (+) Improvement Non-Homesite Value: | + | $50,166 | |
| (+) Land Homesite Value: | + | $0 | |
| (+) Land Non-Homesite Value: | + | $240,000 | |
| (+) Curr Use (HS): | + | $0 | $0 |
| (+) Curr Use (NHS): | + | $0 | $0 |
| | | -------------------------- | |
| (=) Market Value: | = | $290,166 | |
| (–) Productivity Loss: | – | $0 | |
| | | -------------------------- | |
| (=) Subtotal: | = | $290,166 | |
| (+) Senior Appraised Value: | + | $0 | |
| (+) Non-Senior Appraised Value: | + | $290,166 | |
| | | -------------------------- | |
| (=) Total Appraised Value: | = | $290,166 | |
| (–) Senior Exemption Loss: | – | $0 | |
| (–) Exemption Loss: | – | $0 | |
| | | -------------------------- | |
| (=) Taxable Value: | = | $290,166 | |
Taxing Jurisdiction
| Owner: | HANZELKA, DALE | | |
| % Ownership: | 100.0000000000% | | |
| Total Value: | $290,166 | | |
| Tax Area: | 712 - APPRAISER-S Whid Schl Dist, outside Langley, improved, greater than 1 acre |
| CF | Conservation Futures | 0.0316035091 | $290,166 | $290,166 | $9.17 | | |
| FIRE3 | Fire & Rescue Dist #3 S Whidbey GEN | 1.2004855531 | $290,166 | $290,166 | $348.34 | | |
| HOBOND | Hospital BOND | 0.1910887512 | $290,166 | $290,166 | $55.45 | | |
| HOGEN | Hospital GEN | 0.3902502903 | $290,166 | $290,166 | $113.24 | | |
| CE | County Current Expense | 0.3708482477 | $290,166 | $290,166 | $107.61 | | |
| CR | County Roads | 0.4584763726 | $290,166 | $290,166 | $133.03 | | |
| ISLANDEMS | Hospital GEN (EMS) | 0.5000000000 | $290,166 | $290,166 | $145.08 | | |
| LIB | Library Sno-Isle GEN | 0.3153421757 | $290,166 | $290,166 | $91.50 | | |
| PORTWHID | Port of S Whidbey GEN | 0.1094540357 | $290,166 | $290,166 | $31.76 | | |
| SCH206BOND | School 206 BOND | 0.3161759235 | $290,166 | $290,166 | $91.74 | | |
| SCH206MO | School 206 Enrichment | 0.4547169547 | $290,166 | $290,166 | $131.94 | | |
| ST | State School | 1.3035497053 | $290,166 | $290,166 | $378.25 | | |
| ST2 | State School Part 2 | 0.8169543533 | $290,166 | $290,166 | $237.05 | | |
| SWHIDPRBD | P & R S Whidbey BOND | 0.0152817568 | $290,166 | $290,166 | $4.43 | | |
| SWHIDPRBD2 | P & R S Whidbey BOND2 | 0.0138911264 | $290,166 | $290,166 | $4.03 | | |
| SWHIDPRMT | P & R S Whidbey GEN | 0.2053334452 | $290,166 | $290,166 | $59.58 | | |
| | Total Tax Rate: | 6.6934522006 | | | | | |
| | | | | Taxes w/Current Exemptions: | $1,942.20 | | |
| | | | | Taxes w/o Exemptions: | $1,942.20 | | |
Improvement / Building
| Improvement #1: | RESIDENTIAL | State Code: | Y | 0.0 sqft | Value: | $50,166 |
Sketch
Property Image
Land
| 1 | 32 | AC (03.01-09.99) | 9.2600 | 403365.60 | 0.00 | 0.00 | 1.00 | $240,000 | $0 |
Roll Value History
| 2026 | N/A | N/A | N/A | N/A | N/A |
| 2025 | $50,166 | $240,000 | $0 | $290,166 | $290,166 |
| 2024 | $0 | $220,000 | $0 | $220,000 | $220,000 |
| 2023 | $0 | $200,000 | $0 | $200,000 | $200,000 |
| 2022 | $0 | $170,000 | $0 | $170,000 | $170,000 |
| 2021 | $0 | $150,000 | $0 | $150,000 | $150,000 |
| 2020 | $0 | $150,000 | $0 | $150,000 | $150,000 |
| 2019 | $0 | $135,000 | $0 | $135,000 | $135,000 |
| 2018 | $0 | $120,000 | $0 | $120,000 | $120,000 |
| 2017 | $0 | $120,000 | $0 | $120,000 | $120,000 |
| 2016 | $0 | $130,000 | $0 | $130,000 | $130,000 |
| 2015 | $0 | $130,000 | $0 | $130,000 | $130,000 |
| 2014 | $0 | $120,380 | $0 | $120,380 | $120,380 |
| 2013 | $0 | $120,380 | $0 | $120,380 | $120,380 |
| 2012 | $0 | $120,380 | $0 | $120,380 | $120,380 |
| 2011 | $0 | $120,380 | $0 | $120,380 | $120,380 |
| 2010 | $0 | $120,380 | $0 | $120,380 | $120,380 |
| 2009 | $0 | $148,160 | $0 | $148,160 | $148,160 |
| 2008 | $0 | $138,900 | $0 | $138,900 | $138,900 |
| 2007 | $0 | $92,600 | $0 | $92,600 | $92,600 |
Deed and Sales History
| 1 | 11/02/2023 | WD | Warranty Deed | C & K PROPERTIES INC | HANZELKA, DALE | | | $280,000.00 | 58413 | 4566370 |
| 2 | 03/25/2003 | BLA | DNU - Boundary Line Adjustment | Unknown | JBP INC, C&K PROPERTIES INC & | | | $0.00 | 69776 | 4026043 |
| 3 | 10/16/2002 | QCD | Quit Claim Deed | JBP INC, C&K PROPERTIES INC & | C&K PROPERTIES INC, | | | $4,420.00 | 24188 | 4034758 |
Payout Agreement
| No payout information available.. |