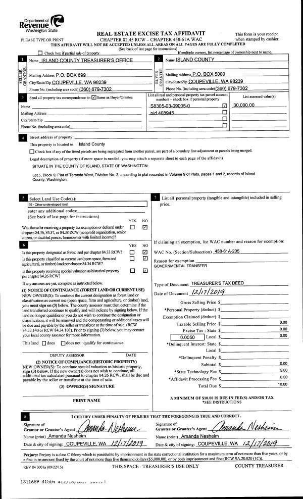
Property
Account |
| Property ID: | 804282 | Abbreviated Legal Description: | LOT 1 SP 258-00.33118.153-1390 V3 SP P461 AF#4038047 |
| Geographic ID: | R33118-155-1070 | Agent Code: | |
| Type: | Real | | |
| Tax Area: | 512 - APPRAISER-Stan/Cam Schl Dist, improved, greater than 1 acre | Land Use Code | 11 |
| Open Space: | N | DFL | N |
| Historic Property: | N | Remodel Property: | N |
| Multi-Family Redevelopment: | N | | |
| Township: | 31 | Section: | 18 |
| Range: | R3 |
Location |
| Address: | 1096 CAVALERO RD CAMANO ISLAND, WA 98282 | Mapsco: | |
| Neighborhood: | Cycle 5 | Map ID: | 927 |
| Neighborhood CD: | 5 |
Owner |
| Name: | MENZIE, SIMON | Owner ID: | 298073 |
| Mailing Address: | KEALANI R MENZIE 1096 CAVALERO RD CAMANO ISLAND, WA 98282 | % Ownership: | 100.0000000000% |
| | | Exemptions: | |
Taxes and Assessment Details
Values
| (+) Improvement Homesite Value: | + | $0 | |
| (+) Improvement Non-Homesite Value: | + | $209,993 | |
| (+) Land Homesite Value: | + | $0 | |
| (+) Land Non-Homesite Value: | + | $260,000 | |
| (+) Curr Use (HS): | + | $0 | $0 |
| (+) Curr Use (NHS): | + | $0 | $0 |
| | | -------------------------- | |
| (=) Market Value: | = | $469,993 | |
| (–) Productivity Loss: | – | $0 | |
| | | -------------------------- | |
| (=) Subtotal: | = | $469,993 | |
| (+) Senior Appraised Value: | + | $0 | |
| (+) Non-Senior Appraised Value: | + | $469,993 | |
| | | -------------------------- | |
| (=) Total Appraised Value: | = | $469,993 | |
| (–) Senior Exemption Loss: | – | $0 | |
| (–) Exemption Loss: | – | $0 | |
| | | -------------------------- | |
| (=) Taxable Value: | = | $469,993 | |
Taxing Jurisdiction
| Owner: | MENZIE, SIMON | | |
| % Ownership: | 100.0000000000% | | |
| Total Value: | $469,993 | | |
| Tax Area: | 512 - APPRAISER-Stan/Cam Schl Dist, improved, greater than 1 acre |
| CF | Conservation Futures | 0.0316035091 | $469,993 | $469,993 | $14.85 | | |
| EMS1 | Fire & Rescue Dist #1 Camano GEN (EMS) | 0.3677864386 | $469,993 | $469,993 | $172.86 | | |
| FIRE1 | Fire & Rescue Dist #1 Camano GEN | 1.2502910536 | $469,993 | $469,993 | $587.63 | | |
| FIRE1BOND | Fire & Rescue Dist #1 Camano BOND | 0.1570001679 | $469,993 | $469,993 | $73.79 | | |
| CE | County Current Expense | 0.3708482477 | $469,993 | $469,993 | $174.30 | | |
| CR | County Roads | 0.4584763726 | $469,993 | $469,993 | $215.48 | | |
| LCIB | Library Sno-Isle BOND (Camano Island) | 0.0396325772 | $469,993 | $469,993 | $18.63 | | |
| LIB | Library Sno-Isle GEN | 0.3153421757 | $469,993 | $469,993 | $148.21 | | |
| SCH205_401 | School 205-401 Enrichment | 1.2698420524 | $469,993 | $469,993 | $596.82 | | |
| SCH205BOND | School 205-401 BOND | 0.9396497583 | $469,993 | $469,993 | $441.63 | | |
| ST | State School | 1.3035497053 | $469,993 | $469,993 | $612.66 | | |
| ST2 | State School Part 2 | 0.8169543533 | $469,993 | $469,993 | $383.96 | | |
| | Total Tax Rate: | 7.3209764117 | | | | | |
| | | | | Taxes w/Current Exemptions: | $3,440.82 | | |
| | | | | Taxes w/o Exemptions: | $3,440.82 | | |
Improvement / Building
| Improvement #1: | MANUFACTURED HOME | State Code: | Y | 1400.2 sqft | Value: | $209,993 |
| Bathrooms: | 0 | Bedrooms: | 0 | | Ceiling: | PLASTER PAINTED | Cooling: | EVAP NO DUCT | | Exterior Wall/Cover: | VINYL | Floor Covering: | CARPET 100% | | Floor Structure: | SLAB ON GRADE | Foundation: | SLAB | | Heating: | FHA ELECTRIC | Interior Finish: | PLASTER | | Plumbing Fixture Cnt: | 1 | Roof Slope: | FLAT | | Roof Structure/Cover: | CJ ALUMINIUM HEAVY |   |   |
|
| | Type | Description | Class CD | Sub Class CD | Year Built | Area |
| | BAS | BASE/MAIN FLOOR | 4 | 0 | 2000 | 1400.2 |
| | oPOL | POLE BARN | 4 | 0 | 2000 | 672.0 |
| | OWP | OPEN WOOD PORCH W/STEPS | 4 | 0 | 2000 | 324.0 |
| | oPOL | POLE BARN | 2 | 0 | 2025 | 2400.0 |
Sketch
Property Image
Land
| 1 | 17 | AC (01.01-02.00) | 1.8200 | 79279.20 | 0.00 | 0.00 | 1.00 | $260,000 | $0 |
Roll Value History
| 2026 | N/A | N/A | N/A | N/A | N/A |
| 2025 | $209,993 | $260,000 | $0 | $469,993 | $469,993 |
| 2024 | $140,291 | $240,000 | $0 | $380,291 | $380,291 |
| 2023 | $126,768 | $230,000 | $0 | $356,768 | $356,768 |
| 2022 | $118,798 | $240,000 | $0 | $358,798 | $358,798 |
| 2021 | $102,678 | $170,000 | $0 | $272,678 | $272,678 |
| 2020 | $102,385 | $150,000 | $0 | $252,385 | $252,385 |
| 2019 | $85,326 | $200,000 | $0 | $285,326 | $285,326 |
| 2018 | $87,145 | $150,000 | $0 | $237,145 | $237,145 |
| 2017 | $88,954 | $135,000 | $0 | $223,954 | $223,954 |
| 2016 | $90,774 | $80,000 | $0 | $170,774 | $170,774 |
| 2015 | $62,589 | $65,000 | $0 | $127,589 | $127,589 |
| 2014 | $63,973 | $65,000 | $0 | $128,973 | $128,973 |
| 2013 | $65,356 | $69,200 | $0 | $134,556 | $134,556 |
| 2012 | $66,739 | $69,200 | $0 | $135,939 | $135,939 |
| 2011 | $67,431 | $86,500 | $0 | $153,931 | $153,931 |
| 2010 | $65,286 | $86,500 | $0 | $151,786 | $151,786 |
| 2009 | $70,222 | $130,000 | $0 | $200,222 | $200,222 |
| 2008 | $71,801 | $130,000 | $0 | $201,801 | $201,801 |
| 2007 | $73,404 | $130,000 | $0 | $203,404 | $203,404 |
Deed and Sales History
| 1 | 02/08/2021 | WD | Warranty Deed | COSTELLO TTEE, ROLAND VINCENT | MENZIE, SIMON | | | $330,000.00 | 46910 | 4510620 |
| 2 | 08/01/2019 | QCD | Quit Claim Deed | COSTELLO, ROLAND V | COSTELLO TTEE, ROLAND VINCENT | | | $0.00 | 40379 | 4471870 |
| 3 | 04/01/2003 | WD | Warranty Deed | PETERSEN ET AL, SIGMUND R | COSTELLO, ROLAND V | | | $65,000.00 | 31425 | 4054102 |
| 4 | 01/01/1900 | OTHER | Other - Misc. Documents | Unknown | PETERSEN ET AL, SIGMUND R | | | $0.00 | 0 | 0 |
Payout Agreement
| No payout information available.. |