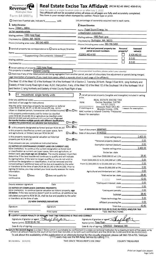
Property
Account |
| Property ID: | 804313 | Abbreviated Legal Description: | PT OF W/2 W/2 SW NW & PT OF W/2 W/2 NW SW DESC: BG SWCR OF SD W/2 W/2 SW NW N ALG WLN 250' S89*E PERP/TO SD WLN 60' TPB S89*E270.67' TO WLN OF LEISURE ACRES SD WLN ALSO ELN OF SD W/2 W/2 SW NW S ALG SD WLN 252.31' CONT ALG SD WLN S78.13' TO N R/W LN SILVE |
| Geographic ID: | R23327-272-0250 | Agent Code: | |
| Type: | Real | | |
| Tax Area: | 112 - APPRAISER-OH Schl Dist, outside OH, improved, greater than 1 acre | Land Use Code | 11 |
| Open Space: | N | DFL | N |
| Historic Property: | N | Remodel Property: | N |
| Multi-Family Redevelopment: | N | | |
| Township: | 33 | Section: | 27 |
| Range: | R2 |
Location |
| Address: | 1215 SILVER LAKE RD OAK HARBOR, WA 98277 | Mapsco: | |
| Neighborhood: | Cycle 6 | Map ID: | 629 |
| Neighborhood CD: | 6 |
Owner |
| Name: | COUNTS TTEE, KEVIN S | Owner ID: | 304283 |
| Mailing Address: | BARBARA J COUNTS TTEE 1215 SILVER LAKE RD OAK HARBOR, WA 98277 | % Ownership: | 100.0000000000% |
| | | Exemptions: | |
Taxes and Assessment Details
Values
| (+) Improvement Homesite Value: | + | $0 | |
| (+) Improvement Non-Homesite Value: | + | $326,942 | |
| (+) Land Homesite Value: | + | $0 | |
| (+) Land Non-Homesite Value: | + | $250,000 | |
| (+) Curr Use (HS): | + | $0 | $0 |
| (+) Curr Use (NHS): | + | $0 | $0 |
| | | -------------------------- | |
| (=) Market Value: | = | $576,942 | |
| (–) Productivity Loss: | – | $0 | |
| | | -------------------------- | |
| (=) Subtotal: | = | $576,942 | |
| (+) Senior Appraised Value: | + | $0 | |
| (+) Non-Senior Appraised Value: | + | $576,942 | |
| | | -------------------------- | |
| (=) Total Appraised Value: | = | $576,942 | |
| (–) Senior Exemption Loss: | – | $0 | |
| (–) Exemption Loss: | – | $0 | |
| | | -------------------------- | |
| (=) Taxable Value: | = | $576,942 | |
Taxing Jurisdiction
| Owner: | COUNTS TTEE, KEVIN S | | |
| % Ownership: | 100.0000000000% | | |
| Total Value: | $576,942 | | |
| Tax Area: | 112 - APPRAISER-OH Schl Dist, outside OH, improved, greater than 1 acre |
| CF | Conservation Futures | 0.0316035091 | $576,942 | $576,942 | $18.23 | | |
| CEM1 | Cemetery #1 | 0.0040320932 | $576,942 | $576,942 | $2.33 | | |
| FIRE2 | Fire & Rescue Dist #2 N Whidbey GEN | 0.5475949600 | $576,942 | $576,942 | $315.93 | | |
| HOBOND | Hospital BOND | 0.1910887512 | $576,942 | $576,942 | $110.25 | | |
| HOGEN | Hospital GEN | 0.3902502903 | $576,942 | $576,942 | $225.15 | | |
| CE | County Current Expense | 0.3708482477 | $576,942 | $576,942 | $213.96 | | |
| CR | County Roads | 0.4584763726 | $576,942 | $576,942 | $264.51 | | |
| ISLANDEMS | Hospital GEN (EMS) | 0.5000000000 | $576,942 | $576,942 | $288.47 | | |
| LIB | Library Sno-Isle GEN | 0.3153421757 | $576,942 | $576,942 | $181.93 | | |
| NWHIDPRMT | P & R N Whidbey GEN | 0.2004466701 | $576,942 | $576,942 | $115.65 | | |
| SCH201MO | School 201 Enrichment | 1.8559231640 | $576,942 | $576,942 | $1,070.76 | | |
| ST | State School | 1.3035497053 | $576,942 | $576,942 | $752.07 | | |
| ST2 | State School Part 2 | 0.8169543533 | $576,942 | $576,942 | $471.34 | | |
| | Total Tax Rate: | 6.9861102925 | | | | | |
| | | | | Taxes w/Current Exemptions: | $4,030.58 | | |
| | | | | Taxes w/o Exemptions: | $4,030.58 | | |
Improvement / Building
| Improvement #1: | RESIDENTIAL | State Code: | Y | 2478.0 sqft | Value: | $326,942 |
| Bathrooms: | 3 | Bedrooms: | 2 | | Ceiling: | DRY WALL SPRAYED | Exterior Wall/Cover: | PLY/HARDBOARD T-111 | | Floor Covering: | CARPET/VINYL 60-40 | Floor Structure: | WOOD W/SUBFLOOR | | Foundation: | CONCRETE BLOCKS | Heating: | BASEBOARD ELECTRIC | | Interior Finish: | DRYWALL PAINT | Plumbing Fixture Cnt: | 11 | | Roof Slope: | 3" IN 12" | Roof Structure/Cover: | CJ ALUMINIUM HEAVY |
|
| | Type | Description | Class CD | Sub Class CD | Year Built | Area |
| | BAS | BASE/MAIN FLOOR | 3 | 0 | 1964 | 1272.0 |
| | AGR | ATTACHED GARAGE | 3 | 0 | 1964 | 576.0 |
| | OWP | OPEN WOOD PORCH W/STEPS | 3 | 0 | 1964 | 237.0 |
| | DWN | DOWNSTAIRS LIVING AREA | 3 | 0 | 1964 | 1206.0 |
| | UTY | STORAGE/UTILITY | 3 | 0 | 1964 | 1200.0 |
| | OP4 | OPEN PORCH W/CEILING-ROOF | 3 | 0 | 1964 | 144.0 |
| | ENP | ENCLOSED PORCH | 3 | 0 | 1964 | 360.0 |
| | OP3 | OPEN PORCH W/ROOF | 3 | 0 | 1964 | 96.0 |
Sketch
Property Image
Land
| 1 | 18 | AC (02.01-03.00) | 2.1100 | 91911.60 | 0.00 | 0.00 | 1.00 | $250,000 | $0 |
Roll Value History
| 2026 | N/A | N/A | N/A | N/A | N/A |
| 2025 | $326,942 | $250,000 | $0 | $576,942 | $576,942 |
| 2024 | $339,086 | $230,000 | $0 | $569,086 | $569,086 |
| 2023 | $344,202 | $220,000 | $0 | $564,202 | $564,202 |
| 2022 | $258,919 | $210,000 | $0 | $468,919 | $468,919 |
| 2021 | $228,707 | $160,000 | $0 | $388,707 | $388,707 |
| 2020 | $224,033 | $140,000 | $0 | $364,033 | $364,033 |
| 2019 | $145,711 | $200,000 | $0 | $345,711 | $345,711 |
| 2018 | $146,261 | $170,000 | $0 | $316,261 | $316,261 |
| 2017 | $146,822 | $150,000 | $0 | $296,822 | $296,822 |
| 2016 | $116,920 | $120,000 | $0 | $236,920 | $236,920 |
| 2015 | $119,257 | $90,000 | $0 | $209,257 | $209,257 |
| 2014 | $121,595 | $80,000 | $0 | $201,595 | $201,595 |
| 2013 | $123,934 | $108,000 | $0 | $231,934 | $231,934 |
| 2012 | $126,272 | $108,000 | $0 | $234,272 | $234,272 |
| 2011 | $128,611 | $120,000 | $0 | $248,611 | $248,611 |
| 2010 | $138,562 | $120,000 | $0 | $258,562 | $258,562 |
| 2009 | $142,594 | $155,000 | $0 | $297,594 | $297,594 |
| 2008 | $154,432 | $145,000 | $0 | $299,432 | $299,432 |
| 2007 | $132,883 | $169,123 | $0 | $302,006 | $302,006 |
Deed and Sales History
| 1 | 04/14/2022 | WD | Warranty Deed | HORNBAKER, BARBARA J | COUNTS TTEE, KEVIN S | | | $0.00 | 53123 | 804313 |
| 2 | 04/25/2003 | BLA | DNU - Boundary Line Adjustment | Unknown | SELIGMILLER, HAROLD L | | | $0.00 | 69839 | 4036953 |
| 3 | 01/13/2003 | WD | Warranty Deed | SELIGMILLER, HAROLD L | HORNBAKER, BARBARA J | | | $200,000.00 | 30220 | 4044655 |
Payout Agreement
| No payout information available.. |