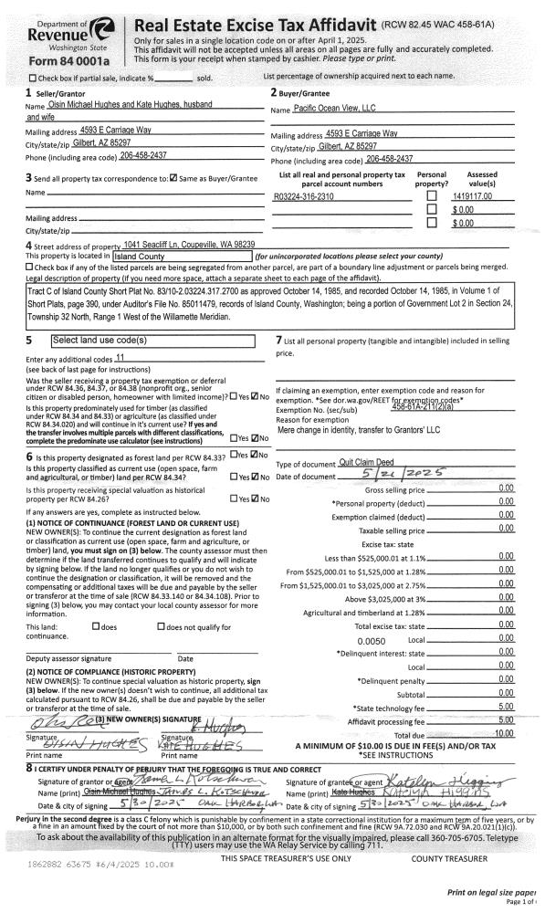
Property
Account |
| Property ID: | 804355 | Abbreviated Legal Description: | 1.0300 Acres ins Section 09s Township 31s Range R1s LOT A BLA 340-16 IN RC HILL DC - LOTS 19 & 20 SHERHILL VISTA (UNREC);s |
| Geographic ID: | R13109-162-0730 | Agent Code: | |
| Type: | Real | | |
| Tax Area: | 312 - APPRAISER-Cpvl Schl Dist, outside Cpvl, improved, greater than 1 acre | Land Use Code | 11 |
| Open Space: | N | DFL | N |
| Historic Property: | N | Remodel Property: | N |
| Multi-Family Redevelopment: | N | | |
| Township: | 31 | Section: | 09 |
| Range: | R1 |
Location |
| Address: | 676 CATHEDRAL DR COUPEVILLE, WA 98239 | Mapsco: | |
| Neighborhood: | Cycle 2 | Map ID: | 42 |
| Neighborhood CD: | 2 |
Owner |
| Name: | MOORE, LOYD | Owner ID: | 278537 |
| Mailing Address: | PO BOX 1165 COUPEVILLE, WA 98239 | % Ownership: | 100.0000000000% |
| | | Exemptions: | |
Taxes and Assessment Details
Values
| (+) Improvement Homesite Value: | + | $0 | |
| (+) Improvement Non-Homesite Value: | + | $321,357 | |
| (+) Land Homesite Value: | + | $0 | |
| (+) Land Non-Homesite Value: | + | $727,500 | |
| (+) Curr Use (HS): | + | $0 | $0 |
| (+) Curr Use (NHS): | + | $0 | $0 |
| | | -------------------------- | |
| (=) Market Value: | = | $1,048,857 | |
| (–) Productivity Loss: | – | $0 | |
| | | -------------------------- | |
| (=) Subtotal: | = | $1,048,857 | |
| (+) Senior Appraised Value: | + | $0 | |
| (+) Non-Senior Appraised Value: | + | $1,048,857 | |
| | | -------------------------- | |
| (=) Total Appraised Value: | = | $1,048,857 | |
| (–) Senior Exemption Loss: | – | $0 | |
| (–) Exemption Loss: | – | $0 | |
| | | -------------------------- | |
| (=) Taxable Value: | = | $1,048,857 | |
Taxing Jurisdiction
| Owner: | MOORE, LOYD | | |
| % Ownership: | 100.0000000000% | | |
| Total Value: | $1,048,857 | | |
| Tax Area: | 312 - APPRAISER-Cpvl Schl Dist, outside Cpvl, improved, greater than 1 acre |
| CF | Conservation Futures | 0.0316035091 | $1,048,857 | $1,048,857 | $33.15 | | |
| CEM2 | Cemetery #2 | 0.0095056933 | $1,048,857 | $1,048,857 | $9.97 | | |
| FIRE5 | Fire & Rescue Dist #5 C Whidbey GEN | 1.2008080668 | $1,048,857 | $1,048,857 | $1,259.48 | | |
| FIRE5BOND | Fire & Rescue Dist #5 C Whidbey BOND | 0.1400090713 | $1,048,857 | $1,048,857 | $146.85 | | |
| HOBOND | Hospital BOND | 0.1910887512 | $1,048,857 | $1,048,857 | $200.42 | | |
| HOGEN | Hospital GEN | 0.3902502903 | $1,048,857 | $1,048,857 | $409.32 | | |
| CE | County Current Expense | 0.3708482477 | $1,048,857 | $1,048,857 | $388.97 | | |
| CR | County Roads | 0.4584763726 | $1,048,857 | $1,048,857 | $480.88 | | |
| ISLANDEMS | Hospital GEN (EMS) | 0.5000000000 | $1,048,857 | $1,048,857 | $524.43 | | |
| LIB | Library Sno-Isle GEN | 0.3153421757 | $1,048,857 | $1,048,857 | $330.75 | | |
| LIBCAP | Library Sno-Isle BOND (Cap Fac Imp Area) | 0.0543427938 | $1,048,857 | $1,048,857 | $57.00 | | |
| POCOUP | Port of Coupeville GEN | 0.1093371703 | $1,048,857 | $1,048,857 | $114.68 | | |
| POCOUPIDD | Port of Coupeville IDD | 0.3409740022 | $1,048,857 | $1,048,857 | $357.63 | | |
| COUPSDTECH | School 204 CP (TECH) | 0.7545480007 | $1,048,857 | $1,048,857 | $791.41 | | |
| SCH204MO | School 204 Enrichment | 0.6716186034 | $1,048,857 | $1,048,857 | $704.43 | | |
| ST | State School | 1.3035497053 | $1,048,857 | $1,048,857 | $1,367.24 | | |
| ST2 | State School Part 2 | 0.8169543533 | $1,048,857 | $1,048,857 | $856.87 | | |
| | Total Tax Rate: | 7.6592568070 | | | | | |
| | | | | Taxes w/Current Exemptions: | $8,033.48 | | |
| | | | | Taxes w/o Exemptions: | $8,033.48 | | |
Improvement / Building
| Improvement #1: | RESIDENTIAL | State Code: | Y | 2110.4 sqft | Value: | $321,357 |
| Bathrooms: | 2.75 | Bedrooms: | 2 | | Ceiling: | TONGUE & GROOVE | Cooling: | HEAT PUMP/CONV/V | | Exterior Wall/Cover: | WOOD SIDING | Floor Covering: | TILE CERAMIC | | Floor Structure: | WOOD W/SUBFLOOR | Foundation: | CONCRETE BLOCKS | | Interior Finish: | DRYWALL PAINT | Plumbing Fixture Cnt: | 13 | | Roof Slope: | 6" IN 12" | Roof Structure/Cover: | BEAM ALUMINUM HEAVY |
|
| | Type | Description | Class CD | Sub Class CD | Year Built | Area |
| | BAS | BASE/MAIN FLOOR | 3 | 0 | 1968 | 1670.4 |
| | BIG | BUILT IN GARAGE | 3 | 0 | 1968 | 459.4 |
| | UPS | UPPER STORY | 3 | 0 | 1968 | 440.0 |
| | OWP | OPEN WOOD PORCH W/STEPS | 3 | 0 | 1968 | 701.5 |
| | OWR | OPEN WOOD PORCH W/STEPS/ROOF | 3 | 0 | 1968 | 20.5 |
| | OWR | OPEN WOOD PORCH W/STEPS/ROOF | 3 | 0 | 1968 | 18.6 |
Sketch
Property Image
Land
| 1 | HB | HIGH BLUFF | 1.0300 | 44866.80 | 150.00 | 0.00 | 1.00 | $727,500 | $0 |
Roll Value History
| 2026 | N/A | N/A | N/A | N/A | N/A |
| 2025 | $321,357 | $727,500 | $0 | $1,048,857 | $1,048,857 |
| 2024 | $286,908 | $727,500 | $0 | $1,014,408 | $1,014,408 |
| 2023 | $291,670 | $693,000 | $0 | $984,670 | $984,670 |
| 2022 | $268,419 | $650,000 | $0 | $918,419 | $918,419 |
| 2021 | $238,231 | $450,000 | $0 | $688,231 | $688,231 |
| 2020 | $233,167 | $450,000 | $0 | $683,167 | $683,167 |
| 2019 | $178,812 | $500,000 | $0 | $678,812 | $678,812 |
| 2018 | $156,634 | $500,000 | $0 | $656,634 | $656,634 |
| 2017 | $157,958 | $500,000 | $0 | $657,958 | $657,958 |
| 2016 | $155,256 | $500,000 | $0 | $655,256 | $655,256 |
| 2015 | $158,157 | $500,000 | $0 | $658,157 | $658,157 |
| 2014 | $161,058 | $500,000 | $0 | $661,058 | $661,058 |
| 2013 | $163,959 | $436,400 | $0 | $600,359 | $600,359 |
| 2012 | $170,912 | $436,400 | $0 | $607,312 | $607,312 |
| 2011 | $173,814 | $508,037 | $0 | $681,851 | $681,851 |
| 2010 | $189,539 | $508,037 | $0 | $697,576 | $697,576 |
| 2009 | $198,368 | $546,401 | $0 | $744,769 | $744,769 |
| 2008 | $201,598 | $528,963 | $0 | $730,561 | $730,561 |
| 2007 | $204,837 | $401,082 | $0 | $605,919 | $605,919 |
Deed and Sales History
| 1 | 01/25/2017 | WD | Warranty Deed | PURDUE, SARA J & ROGER H | MOORE, LOYD | | | $659,250.00 | 28039 | 4416863 |
| 2 | 05/16/2003 | BLA | DNU - Boundary Line Adjustment | Unknown | PURDUE, SARA J & ROGER H | | | $0.00 | 69872 | 4054738 |
Payout Agreement
| No payout information available.. |