Property
Account |
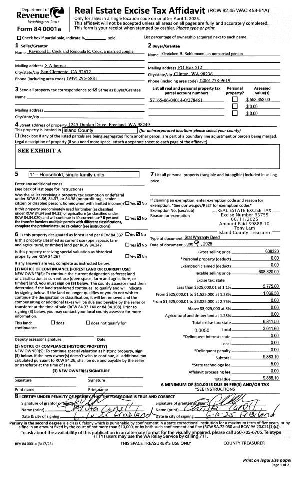
| Property ID: | 804356 | Abbreviated Legal Description: | R C HILL DC - TR A SHERHILL VISTA (UNREC) TR A: BG SWCR ENGLE DC N89*E437.54' S9*E182.36' S89*W353.34' S50*W55.59' N39*W192.42' TO NW LN HILL DC N37*E84.22' TPB EX CO RD TGW & SUB EZ |
| Geographic ID: | R13109-197-0810 | Agent Code: | |
| Type: | Real | | |
| Tax Area: | 319 - APPRAISER-Cpvl Schl Dist, outside Cpvl, vacant & 50 acres or less | Land Use Code | 91 |
| Open Space: | N | DFL | N |
| Historic Property: | N | Remodel Property: | N |
| Multi-Family Redevelopment: | N | | |
| Township: | 31 | Section: | 09 |
| Range: | R1 |
Location |
| Address: | | Mapsco: | |
| Neighborhood: | Cycle 2 | Map ID: | 42 |
| Neighborhood CD: | 2 |
Owner |
| Name: | PURDUE, SARA J | Owner ID: | 279544 |
| Mailing Address: | 668 CATHEDRAL COUPEVILLE, WA 98239 | % Ownership: | 100.0000000000% |
| | | Exemptions: | |
Taxes and Assessment Details
Values
| (+) Improvement Homesite Value: | + | $0 | |
| (+) Improvement Non-Homesite Value: | + | $0 | |
| (+) Land Homesite Value: | + | $0 | |
| (+) Land Non-Homesite Value: | + | $114,495 | |
| (+) Curr Use (HS): | + | $0 | $0 |
| (+) Curr Use (NHS): | + | $0 | $0 |
| | | -------------------------- | |
| (=) Market Value: | = | $114,495 | |
| (–) Productivity Loss: | – | $0 | |
| | | -------------------------- | |
| (=) Subtotal: | = | $114,495 | |
| (+) Senior Appraised Value: | + | $0 | |
| (+) Non-Senior Appraised Value: | + | $114,495 | |
| | | -------------------------- | |
| (=) Total Appraised Value: | = | $114,495 | |
| (–) Senior Exemption Loss: | – | $0 | |
| (–) Exemption Loss: | – | $0 | |
| | | -------------------------- | |
| (=) Taxable Value: | = | $114,495 | |
Taxing Jurisdiction
| Owner: | PURDUE, SARA J | | |
| % Ownership: | 100.0000000000% | | |
| Total Value: | $114,495 | | |
| Tax Area: | 319 - APPRAISER-Cpvl Schl Dist, outside Cpvl, vacant & 50 acres or less |
| CF | Conservation Futures | 0.0316035091 | $114,495 | $114,495 | $3.62 | | |
| CEM2 | Cemetery #2 | 0.0095056933 | $114,495 | $114,495 | $1.09 | | |
| HOBOND | Hospital BOND | 0.1910887512 | $114,495 | $114,495 | $21.88 | | |
| HOGEN | Hospital GEN | 0.3902502903 | $114,495 | $114,495 | $44.68 | | |
| CE | County Current Expense | 0.3708482477 | $114,495 | $114,495 | $42.46 | | |
| CR | County Roads | 0.4584763726 | $114,495 | $114,495 | $52.49 | | |
| ISLANDEMS | Hospital GEN (EMS) | 0.5000000000 | $114,495 | $114,495 | $57.25 | | |
| LIB | Library Sno-Isle GEN | 0.3153421757 | $114,495 | $114,495 | $36.11 | | |
| LIBCAP | Library Sno-Isle BOND (Cap Fac Imp Area) | 0.0543427938 | $114,495 | $114,495 | $6.22 | | |
| POCOUP | Port of Coupeville GEN | 0.1093371703 | $114,495 | $114,495 | $12.52 | | |
| POCOUPIDD | Port of Coupeville IDD | 0.3409740022 | $114,495 | $114,495 | $39.04 | | |
| COUPSDTECH | School 204 CP (TECH) | 0.7545480007 | $114,495 | $114,495 | $86.39 | | |
| SCH204MO | School 204 Enrichment | 0.6716186034 | $114,495 | $114,495 | $76.90 | | |
| ST | State School | 1.3035497053 | $114,495 | $114,495 | $149.25 | | |
| ST2 | State School Part 2 | 0.8169543533 | $114,495 | $114,495 | $93.54 | | |
| | Total Tax Rate: | 6.3184396689 | | | | | |
| | | | | Taxes w/Current Exemptions: | $723.44 | | |
| | | | | Taxes w/o Exemptions: | $723.44 | | |
Improvement / Building
Sketch
| No sketches available for this property. |
Property Image
Land
| 1 | 91 | UNDEVELOPED LAND-METES AND BOUNDS | 1.6700 | 72745.20 | 0.00 | 0.00 | 1.00 | $114,495 | $0 |
Roll Value History
| 2026 | N/A | N/A | N/A | N/A | N/A |
| 2025 | $0 | $114,495 | $0 | $114,495 | $114,495 |
| 2024 | $0 | $120,000 | $0 | $120,000 | $120,000 |
| 2023 | $0 | $110,000 | $0 | $110,000 | $110,000 |
| 2022 | $0 | $110,000 | $0 | $110,000 | $110,000 |
| 2021 | $0 | $100,000 | $0 | $100,000 | $100,000 |
| 2020 | $0 | $100,000 | $0 | $100,000 | $100,000 |
| 2019 | $0 | $100,000 | $0 | $100,000 | $100,000 |
| 2018 | $0 | $100,000 | $0 | $100,000 | $100,000 |
| 2017 | $0 | $100,000 | $0 | $100,000 | $100,000 |
| 2016 | $0 | $100,000 | $0 | $100,000 | $100,000 |
| 2015 | $0 | $95,000 | $0 | $95,000 | $95,000 |
| 2014 | $0 | $95,000 | $0 | $95,000 | $95,000 |
| 2013 | $0 | $95,000 | $0 | $95,000 | $95,000 |
| 2012 | $0 | $95,000 | $0 | $95,000 | $95,000 |
| 2011 | $0 | $95,000 | $0 | $95,000 | $95,000 |
| 2010 | $0 | $95,000 | $0 | $95,000 | $95,000 |
| 2009 | $0 | $125,000 | $0 | $125,000 | $125,000 |
| 2008 | $0 | $124,000 | $0 | $124,000 | $124,000 |
| 2007 | $0 | $69,000 | $0 | $69,000 | $69,000 |
Deed and Sales History
| 1 | 04/17/2017 | PRD | Personal Representatives Deed | PURDUE, SARA J & ROGER H | PURDUE, SARA J | | | $0.00 | 28965 | 4421134 |
| 2 | 05/16/2003 | BLA | DNU - Boundary Line Adjustment | Unknown | PURDUE, SARA J & ROGER H | | | $0.00 | 69872 | 4054738 |
Payout Agreement
| No payout information available.. |