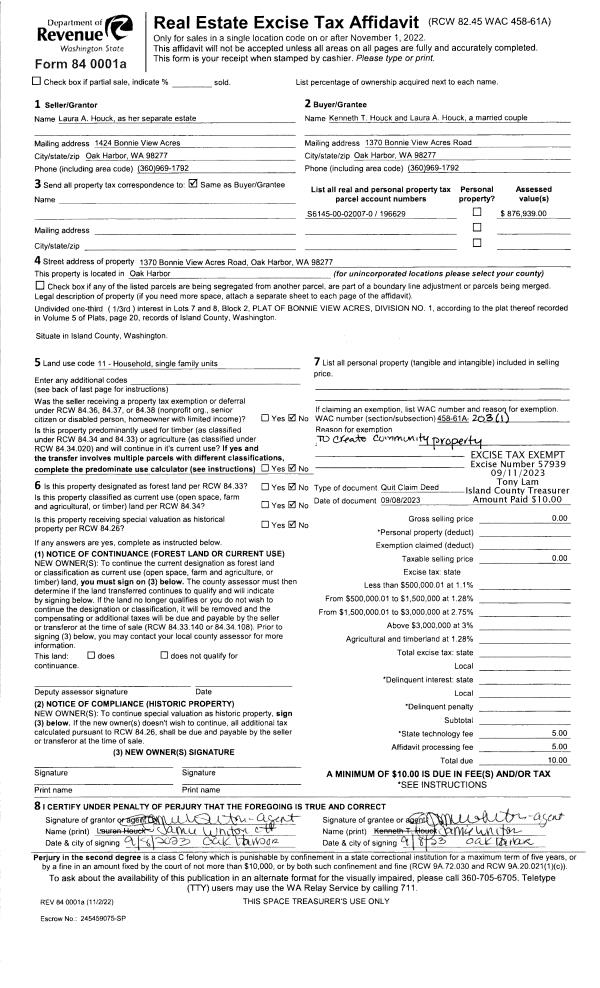
Property
Account |
| Property ID: | 804429 | Abbreviated Legal Description: | FIRESIDE #5 LOT 56 |
| Geographic ID: | S6632-05-00056-0 | Agent Code: | |
| Type: | Real | | |
| Tax Area: | 100 - APPRAISER-OH Schl Dist, in OH | Land Use Code | 11 |
| Open Space: | N | DFL | N |
| Historic Property: | N | Remodel Property: | N |
| Multi-Family Redevelopment: | N | | |
| Township: | | Section: | |
| Range: | |
Location |
| Address: | 1629 SW ULYSSES ST OAK HARBOR, WA 98277 | Mapsco: | |
| Neighborhood: | Cycle 1 | Map ID: | 95 |
| Neighborhood CD: | 1 |
Owner |
| Name: | WICKS, MARIAREGINA L | Owner ID: | 307442 |
| Mailing Address: | ROBERT J WICKS 1629 SW ULYSSES ST OAK HARBOR, WA 98277 | % Ownership: | 100.0000000000% |
| | | Exemptions: | |
Taxes and Assessment Details
Values
| (+) Improvement Homesite Value: | + | $0 | |
| (+) Improvement Non-Homesite Value: | + | $341,970 | |
| (+) Land Homesite Value: | + | $0 | |
| (+) Land Non-Homesite Value: | + | $200,000 | |
| (+) Curr Use (HS): | + | $0 | $0 |
| (+) Curr Use (NHS): | + | $0 | $0 |
| | | -------------------------- | |
| (=) Market Value: | = | $541,970 | |
| (–) Productivity Loss: | – | $0 | |
| | | -------------------------- | |
| (=) Subtotal: | = | $541,970 | |
| (+) Senior Appraised Value: | + | $0 | |
| (+) Non-Senior Appraised Value: | + | $541,970 | |
| | | -------------------------- | |
| (=) Total Appraised Value: | = | $541,970 | |
| (–) Senior Exemption Loss: | – | $0 | |
| (–) Exemption Loss: | – | $0 | |
| | | -------------------------- | |
| (=) Taxable Value: | = | $541,970 | |
Taxing Jurisdiction
| Owner: | WICKS, MARIAREGINA L | | |
| % Ownership: | 100.0000000000% | | |
| Total Value: | $541,970 | | |
| Tax Area: | 100 - APPRAISER-OH Schl Dist, in OH |
| CF | Conservation Futures | 0.0316035091 | $541,970 | $541,970 | $17.13 | | |
| CEM1 | Cemetery #1 | 0.0040320932 | $541,970 | $541,970 | $2.19 | | |
| COH | City of Oak Harbor | 2.3001546061 | $541,970 | $541,970 | $1,246.61 | | |
| OAKBOND | City of Oak Harbor BOND | 0.1926904192 | $541,970 | $541,970 | $104.43 | | |
| HOBOND | Hospital BOND | 0.1910887512 | $541,970 | $541,970 | $103.56 | | |
| HOGEN | Hospital GEN | 0.3902502903 | $541,970 | $541,970 | $211.50 | | |
| CE | County Current Expense | 0.3708482477 | $541,970 | $541,970 | $200.99 | | |
| ISLANDEMS | Hospital GEN (EMS) | 0.5000000000 | $541,970 | $541,970 | $270.99 | | |
| LIB | Library Sno-Isle GEN | 0.3153421757 | $541,970 | $541,970 | $170.91 | | |
| NWHIDPRMT | P & R N Whidbey GEN | 0.2004466701 | $541,970 | $541,970 | $108.64 | | |
| SCH201MO | School 201 Enrichment | 1.8559231640 | $541,970 | $541,970 | $1,005.85 | | |
| ST | State School | 1.3035497053 | $541,970 | $541,970 | $706.48 | | |
| ST2 | State School Part 2 | 0.8169543533 | $541,970 | $541,970 | $442.76 | | |
| | Total Tax Rate: | 8.4728839852 | | | | | |
| | | | | Taxes w/Current Exemptions: | $4,592.04 | | |
| | | | | Taxes w/o Exemptions: | $4,592.04 | | |
Improvement / Building
| Improvement #1: | RESIDENTIAL | State Code: | Y | 1858.0 sqft | Value: | $341,970 |
| Bathrooms: | 2.5 | Bedrooms: | 3 | | Ceiling: | DRYWALL PAINTED | Exterior Wall/Cover: | CEMENT FIBER | | Floor Covering: | CARPET/VINYL 80-20 | Floor Structure: | WOOD W/SUBFLOOR | | Foundation: | CONCRETE | Heating: | FHA GAS | | Interior Finish: | DRYWALL PAINT | Plumbing Fixture Cnt: | 12 | | Roof Slope: | 6" IN 12" | Roof Structure/Cover: | CJ ASPHALT |
|
| | Type | Description | Class CD | Sub Class CD | Year Built | Area |
| | BAS | BASE/MAIN FLOOR | 3 | 0 | 2003 | 962.0 |
| | AGR | ATTACHED GARAGE | 3 | 0 | 2003 | 528.0 |
| | UPS | UPPER STORY | 3 | 0 | 2003 | 896.0 |
| | OWP | OPEN WOOD PORCH W/STEPS | 3 | 0 | 2003 | 235.0 |
| | OWC | OPEN WOOD PORCH W/STEPS/ROOF/C | 3 | 0 | 2003 | 128.0 |
Sketch
Property Image
Land
| 1 | 14 | SQ (08001-12000) | 0.0000 | 0.00 | 0.00 | 0.00 | 1.00 | $200,000 | $0 |
Roll Value History
| 2026 | N/A | N/A | N/A | N/A | N/A |
| 2025 | $341,970 | $200,000 | $0 | $541,970 | $541,970 |
| 2024 | $345,845 | $190,000 | $0 | $535,845 | $535,845 |
| 2023 | $348,751 | $180,000 | $0 | $528,751 | $528,751 |
| 2022 | $302,656 | $160,000 | $0 | $462,656 | $462,656 |
| 2021 | $266,224 | $130,000 | $0 | $396,224 | $396,224 |
| 2020 | $259,065 | $100,000 | $0 | $359,065 | $359,065 |
| 2019 | $192,257 | $150,000 | $0 | $342,257 | $342,257 |
| 2018 | $192,796 | $130,000 | $0 | $322,796 | $322,796 |
| 2017 | $188,480 | $120,000 | $0 | $308,480 | $308,480 |
| 2016 | $190,621 | $90,000 | $0 | $280,621 | $280,621 |
| 2015 | $192,763 | $70,000 | $0 | $262,763 | $262,763 |
| 2014 | $194,904 | $65,000 | $0 | $259,904 | $259,904 |
| 2013 | $197,047 | $65,000 | $0 | $262,047 | $262,047 |
| 2012 | $199,189 | $65,000 | $0 | $264,189 | $264,189 |
| 2011 | $226,074 | $45,000 | $0 | $271,074 | $271,074 |
| 2010 | $232,605 | $45,000 | $0 | $277,605 | $277,605 |
| 2009 | $246,496 | $75,000 | $0 | $321,496 | $321,496 |
| 2008 | $251,947 | $95,000 | $0 | $346,947 | $346,947 |
| 2007 | $252,337 | $95,000 | $0 | $347,337 | $347,337 |
Deed and Sales History
| 1 | 01/23/2023 | WD | Warranty Deed | MOBLEY, SCOTT R | WICKS, MARIAREGINA L | | | $542,000.00 | 55695 | 4556085 |
| 2 | 06/25/2007 | WD | Warranty Deed | CORRY, JACQUELINE | MOBLEY, SCOTT R | | | $335,000.00 | 72186 | 4205820 |
| 3 | 03/30/2005 | WD | Warranty Deed | SANTOS, LOUIE R | CORRY, JACQUELINE | | | $280,000.00 | 51587 | 4131382 |
| 4 | 06/13/2003 | WD | Warranty Deed | ENCINAS CONSTRUCTION INC, | SANTOS, LOUIE R | | | $222,900.00 | 32496 | 4062819 |
| 5 | 11/21/2002 | WD | Warranty Deed | MKM ASSOCIATES, | ENCINAS CONSTRUCTION INC, | | | $55,000.00 | 24729 | 4038672 |
| 6 | 01/01/1900 | OTHER | Other - Misc. Documents | Unknown | MKM ASSOCIATES, | | | $0.00 | 0 | 0 |
Payout Agreement
| No payout information available.. |