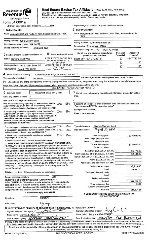
Property
Account |
| Property ID: | 804435 | Abbreviated Legal Description: | FIRESIDE #5 LOT 62 |
| Geographic ID: | S6632-05-00062-0 | Agent Code: | |
| Type: | Real | | |
| Tax Area: | 100 - APPRAISER-OH Schl Dist, in OH | Land Use Code | 11 |
| Open Space: | N | DFL | N |
| Historic Property: | N | Remodel Property: | N |
| Multi-Family Redevelopment: | N | | |
| Township: | | Section: | |
| Range: | |
Location |
| Address: | 1607 SW TAHOE ST OAK HARBOR, WA 98277 | Mapsco: | |
| Neighborhood: | Cycle 1 | Map ID: | 95 |
| Neighborhood CD: | 1 |
Owner |
| Name: | MANN, CLYDE E | Owner ID: | 275671 |
| Mailing Address: | PATRICIA A MANN 1607 SW TAHOE ST OAK HARBOR, WA 98277 | % Ownership: | 100.0000000000% |
| | | Exemptions: | |
Taxes and Assessment Details
Values
| (+) Improvement Homesite Value: | + | $0 | |
| (+) Improvement Non-Homesite Value: | + | $416,806 | |
| (+) Land Homesite Value: | + | $0 | |
| (+) Land Non-Homesite Value: | + | $200,000 | |
| (+) Curr Use (HS): | + | $0 | $0 |
| (+) Curr Use (NHS): | + | $0 | $0 |
| | | -------------------------- | |
| (=) Market Value: | = | $616,806 | |
| (–) Productivity Loss: | – | $0 | |
| | | -------------------------- | |
| (=) Subtotal: | = | $616,806 | |
| (+) Senior Appraised Value: | + | $0 | |
| (+) Non-Senior Appraised Value: | + | $616,806 | |
| | | -------------------------- | |
| (=) Total Appraised Value: | = | $616,806 | |
| (–) Senior Exemption Loss: | – | $0 | |
| (–) Exemption Loss: | – | $0 | |
| | | -------------------------- | |
| (=) Taxable Value: | = | $616,806 | |
Taxing Jurisdiction
| Owner: | MANN, CLYDE E | | |
| % Ownership: | 100.0000000000% | | |
| Total Value: | $616,806 | | |
| Tax Area: | 100 - APPRAISER-OH Schl Dist, in OH |
| CF | Conservation Futures | 0.0316035091 | $616,806 | $616,806 | $19.49 | | |
| CEM1 | Cemetery #1 | 0.0040320932 | $616,806 | $616,806 | $2.49 | | |
| COH | City of Oak Harbor | 2.3001546061 | $616,806 | $616,806 | $1,418.75 | | |
| OAKBOND | City of Oak Harbor BOND | 0.1926904192 | $616,806 | $616,806 | $118.85 | | |
| HOBOND | Hospital BOND | 0.1910887512 | $616,806 | $616,806 | $117.86 | | |
| HOGEN | Hospital GEN | 0.3902502903 | $616,806 | $616,806 | $240.71 | | |
| CE | County Current Expense | 0.3708482477 | $616,806 | $616,806 | $228.74 | | |
| ISLANDEMS | Hospital GEN (EMS) | 0.5000000000 | $616,806 | $616,806 | $308.40 | | |
| LIB | Library Sno-Isle GEN | 0.3153421757 | $616,806 | $616,806 | $194.50 | | |
| NWHIDPRMT | P & R N Whidbey GEN | 0.2004466701 | $616,806 | $616,806 | $123.64 | | |
| SCH201MO | School 201 Enrichment | 1.8559231640 | $616,806 | $616,806 | $1,144.74 | | |
| ST | State School | 1.3035497053 | $616,806 | $616,806 | $804.04 | | |
| ST2 | State School Part 2 | 0.8169543533 | $616,806 | $616,806 | $503.90 | | |
| | Total Tax Rate: | 8.4728839852 | | | | | |
| | | | | Taxes w/Current Exemptions: | $5,226.11 | | |
| | | | | Taxes w/o Exemptions: | $5,226.11 | | |
Improvement / Building
| Improvement #1: | RESIDENTIAL | State Code: | Y | 2231.5 sqft | Value: | $416,806 |
| Bathrooms: | 2 | Bedrooms: | 3 | | Ceiling: | DRYWALL PAINTED | Exterior Wall/Cover: | CEMENT FIBER | | Floor Covering: | HARDWOOD/CARP 60-40 | Floor Structure: | WOOD W/SUBFLOOR | | Foundation: | CONCRETE | Heating: | FHA GAS | | Interior Finish: | DRYWALL PAINT | Plumbing Fixture Cnt: | 12 | | Roof Slope: | 6" IN 12" | Roof Structure/Cover: | CJ ASPHALT |
|
| | Type | Description | Class CD | Sub Class CD | Year Built | Area |
| | BAS | BASE/MAIN FLOOR | 3 | 0 | 2003 | 2231.5 |
| | AGR | ATTACHED GARAGE | 3 | 0 | 2003 | 687.5 |
| | OP4 | OPEN PORCH W/CEILING-ROOF | 3 | 0 | 2003 | 110.0 |
| | OP4 | OPEN PORCH W/CEILING-ROOF | 3 | 0 | 2003 | 37.0 |
Sketch
Property Image
Land
| 1 | 14 | SQ (08001-12000) | 0.0000 | 0.00 | 0.00 | 0.00 | 1.00 | $200,000 | $0 |
Roll Value History
| 2026 | N/A | N/A | N/A | N/A | N/A |
| 2025 | $416,806 | $200,000 | $0 | $616,806 | $616,806 |
| 2024 | $421,583 | $190,000 | $0 | $611,583 | $611,583 |
| 2023 | $407,252 | $180,000 | $0 | $587,252 | $587,252 |
| 2022 | $373,085 | $160,000 | $0 | $533,085 | $533,085 |
| 2021 | $328,188 | $130,000 | $0 | $458,188 | $458,188 |
| 2020 | $319,925 | $100,000 | $0 | $419,925 | $419,925 |
| 2019 | $245,563 | $150,000 | $0 | $395,563 | $395,563 |
| 2018 | $246,252 | $130,000 | $0 | $376,252 | $376,252 |
| 2017 | $246,314 | $120,000 | $0 | $366,314 | $366,314 |
| 2016 | $249,081 | $90,000 | $0 | $339,081 | $339,081 |
| 2015 | $251,850 | $70,000 | $0 | $321,850 | $321,850 |
| 2014 | $254,617 | $65,000 | $0 | $319,617 | $319,617 |
| 2013 | $257,384 | $65,000 | $0 | $322,384 | $322,384 |
| 2012 | $260,152 | $65,000 | $0 | $325,152 | $325,152 |
| 2011 | $247,063 | $45,000 | $0 | $292,063 | $292,063 |
| 2010 | $250,974 | $45,000 | $0 | $295,974 | $295,974 |
| 2009 | $261,551 | $75,000 | $0 | $336,551 | $336,551 |
| 2008 | $308,804 | $95,000 | $0 | $403,804 | $403,804 |
| 2007 | $309,038 | $95,000 | $0 | $404,038 | $404,038 |
Deed and Sales History
| 1 | 06/14/2016 | WD | Warranty Deed | MCMANIGLE JR CO-TRUSTEE, ROBERT W | MANN, CLYDE E | | | $364,000.00 | 24805 | 4401371 |
| 2 | 04/22/2014 | TRUSTEED | Trustee's Deed | MCMANIGLE, ROBERT W | MCMANIGLE JR CO-TRUSTEE, ROBERT W | | | $0.00 | 15197 | 4358990 |
| 3 | 07/24/2003 | 5 | DNU - Marriage License/Name Change | MCMANIGLE, ROBERT W | MCMANIGLE, ROBERT W | | | $0.00 | 33157 | 4067952 |
| 4 | 03/06/2003 | WD | Warranty Deed | KRIEG, KARL C | MCMANIGLE, ROBERT W | | | $55,000.00 | 31000 | 4050734 |
| 5 | 01/01/1900 | OTHER | Other - Misc. Documents | Unknown | KRIEG, KARL C | | | $0.00 | 0 | 0 |
Payout Agreement
| No payout information available.. |