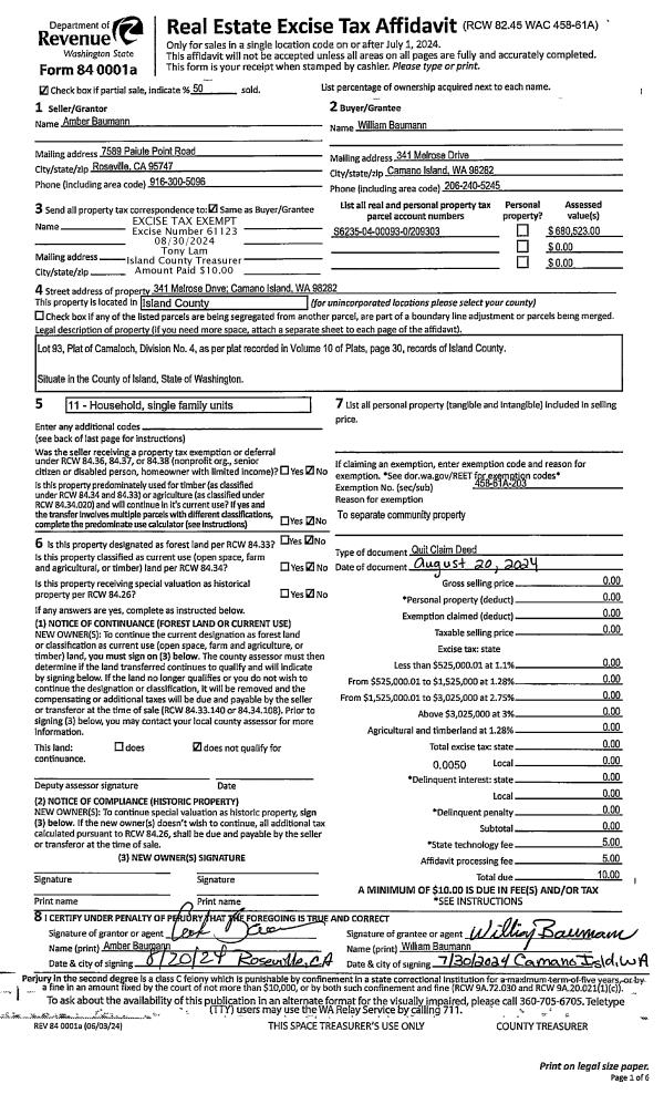
Property
Account |
| Property ID: | 804436 | Abbreviated Legal Description: | FIRESIDE #5 LOT 63 |
| Geographic ID: | S6632-05-00063-0 | Agent Code: | |
| Type: | Real | | |
| Tax Area: | 100 - APPRAISER-OH Schl Dist, in OH | Land Use Code | 11 |
| Open Space: | N | DFL | N |
| Historic Property: | N | Remodel Property: | N |
| Multi-Family Redevelopment: | N | | |
| Township: | | Section: | |
| Range: | |
Location |
| Address: | 1641 SW TAHOE ST OAK HARBOR, WA 98277 | Mapsco: | |
| Neighborhood: | Cycle 1 | Map ID: | 95 |
| Neighborhood CD: | 1 |
Owner |
| Name: | BALLARD, CHARLES CLIFFORD | Owner ID: | 303191 |
| Mailing Address: | AMANDA JANETTE BORMAN-BALLARD 1641 SW TAHOE ST OAK HARBOR, WA 98277 | % Ownership: | 100.0000000000% |
| | | Exemptions: | |
Taxes and Assessment Details
Values
| (+) Improvement Homesite Value: | + | $0 | |
| (+) Improvement Non-Homesite Value: | + | $359,765 | |
| (+) Land Homesite Value: | + | $0 | |
| (+) Land Non-Homesite Value: | + | $200,000 | |
| (+) Curr Use (HS): | + | $0 | $0 |
| (+) Curr Use (NHS): | + | $0 | $0 |
| | | -------------------------- | |
| (=) Market Value: | = | $559,765 | |
| (–) Productivity Loss: | – | $0 | |
| | | -------------------------- | |
| (=) Subtotal: | = | $559,765 | |
| (+) Senior Appraised Value: | + | $0 | |
| (+) Non-Senior Appraised Value: | + | $559,765 | |
| | | -------------------------- | |
| (=) Total Appraised Value: | = | $559,765 | |
| (–) Senior Exemption Loss: | – | $0 | |
| (–) Exemption Loss: | – | $0 | |
| | | -------------------------- | |
| (=) Taxable Value: | = | $559,765 | |
Taxing Jurisdiction
| Owner: | BALLARD, CHARLES CLIFFORD | | |
| % Ownership: | 100.0000000000% | | |
| Total Value: | $559,765 | | |
| Tax Area: | 100 - APPRAISER-OH Schl Dist, in OH |
| CF | Conservation Futures | 0.0316035091 | $559,765 | $559,765 | $17.69 | | |
| CEM1 | Cemetery #1 | 0.0040320932 | $559,765 | $559,765 | $2.26 | | |
| COH | City of Oak Harbor | 2.3001546061 | $559,765 | $559,765 | $1,287.55 | | |
| OAKBOND | City of Oak Harbor BOND | 0.1926904192 | $559,765 | $559,765 | $107.86 | | |
| HOBOND | Hospital BOND | 0.1910887512 | $559,765 | $559,765 | $106.96 | | |
| HOGEN | Hospital GEN | 0.3902502903 | $559,765 | $559,765 | $218.45 | | |
| CE | County Current Expense | 0.3708482477 | $559,765 | $559,765 | $207.59 | | |
| ISLANDEMS | Hospital GEN (EMS) | 0.5000000000 | $559,765 | $559,765 | $279.88 | | |
| LIB | Library Sno-Isle GEN | 0.3153421757 | $559,765 | $559,765 | $176.52 | | |
| NWHIDPRMT | P & R N Whidbey GEN | 0.2004466701 | $559,765 | $559,765 | $112.20 | | |
| SCH201MO | School 201 Enrichment | 1.8559231640 | $559,765 | $559,765 | $1,038.88 | | |
| ST | State School | 1.3035497053 | $559,765 | $559,765 | $729.68 | | |
| ST2 | State School Part 2 | 0.8169543533 | $559,765 | $559,765 | $457.30 | | |
| | Total Tax Rate: | 8.4728839852 | | | | | |
| | | | | Taxes w/Current Exemptions: | $4,742.82 | | |
| | | | | Taxes w/o Exemptions: | $4,742.82 | | |
Improvement / Building
| Improvement #1: | RESIDENTIAL | State Code: | Y | 1867.5 sqft | Value: | $359,765 |
| Bathrooms: | 2.5 | Bedrooms: | 4 | | Ceiling: | DRYWALL PAINTED | Exterior Wall/Cover: | CEMENT FIBER | | Floor Covering: | CARPET/VINYL 80-20 | Floor Structure: | WOOD W/SUBFLOOR | | Foundation: | CONCRETE | Heating: | FHA GAS | | Interior Finish: | DRYWALL PAINT | Plumbing Fixture Cnt: | 14 | | Roof Slope: | 6" IN 12" | Roof Structure/Cover: | CJ ASPHALT |
|
| | Type | Description | Class CD | Sub Class CD | Year Built | Area |
| | BAS | BASE/MAIN FLOOR | 3 | 0 | 2003 | 898.0 |
| | UPS | UPPER STORY | 3 | 0 | 2003 | 969.5 |
| | OWC | OPEN WOOD PORCH W/STEPS/ROOF/C | 3 | 0 | 2003 | 136.0 |
| | AGR | ATTACHED GARAGE | 3 | 0 | 2003 | 704.0 |
Sketch
Property Image
Land
| 1 | 14 | SQ (08001-12000) | 0.0000 | 0.00 | 0.00 | 0.00 | 1.00 | $200,000 | $0 |
Roll Value History
| 2026 | N/A | N/A | N/A | N/A | N/A |
| 2025 | $359,765 | $200,000 | $0 | $559,765 | $559,765 |
| 2024 | $363,936 | $190,000 | $0 | $553,936 | $553,936 |
| 2023 | $355,594 | $180,000 | $0 | $535,594 | $535,594 |
| 2022 | $325,786 | $160,000 | $0 | $485,786 | $485,786 |
| 2021 | $286,566 | $130,000 | $0 | $416,566 | $416,566 |
| 2020 | $278,539 | $100,000 | $0 | $378,539 | $378,539 |
| 2019 | $205,268 | $150,000 | $0 | $355,268 | $355,268 |
| 2018 | $205,844 | $130,000 | $0 | $335,844 | $335,844 |
| 2017 | $205,209 | $120,000 | $0 | $325,209 | $325,209 |
| 2016 | $207,515 | $90,000 | $0 | $297,515 | $297,515 |
| 2015 | $209,821 | $70,000 | $0 | $279,821 | $279,821 |
| 2014 | $212,127 | $65,000 | $0 | $277,127 | $277,127 |
| 2013 | $214,432 | $65,000 | $0 | $279,432 | $279,432 |
| 2012 | $216,738 | $65,000 | $0 | $281,738 | $281,738 |
| 2011 | $231,839 | $45,000 | $0 | $276,839 | $276,839 |
| 2010 | $236,318 | $45,000 | $0 | $281,318 | $281,318 |
| 2009 | $250,245 | $75,000 | $0 | $325,245 | $325,245 |
| 2008 | $255,681 | $95,000 | $0 | $350,681 | $350,681 |
| 2007 | $255,953 | $95,000 | $0 | $350,953 | $350,953 |
Deed and Sales History
| 1 | 02/28/2022 | WD | Warranty Deed | KEOUGH TTEE, JANET | BALLARD, CHARLES CLIFFORD | | | $575,000.00 | 52138 | 4540722 |
| 2 | 08/24/2021 | QCD | Quit Claim Deed | KEOUGH, JANET | KEOUGH TTEE, JANET | | | $0.00 | 50722 | 4532849 |
| 3 | 07/18/2014 | WD | Warranty Deed | LA CANFORA, JO ANN T | KEOUGH, JANET | | | $289,000.00 | 16174 | 4362984 |
| 4 | 08/01/2003 | WD | Warranty Deed | VANDERVOET, LESLIE R | LA CANFORA, JO ANN T | | | $241,700.00 | 33381 | 4069545 |
| 5 | 04/28/2003 | WD | Warranty Deed | KRIEG, KARL C | VANDERVOET, LESLIE R | | | $55,000.00 | 31884 | 4057762 |
| 6 | 01/01/1900 | OTHER | Other - Misc. Documents | Unknown | KRIEG, KARL C | | | $0.00 | 0 | 0 |
Payout Agreement
| No payout information available.. |