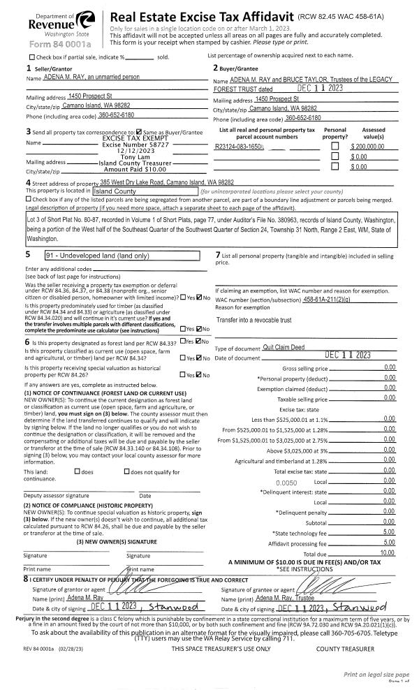
Property
Account |
| Property ID: | 804447 | Abbreviated Legal Description: | FIRESIDE #5 LOT 74 |
| Geographic ID: | S6632-05-00074-0 | Agent Code: | |
| Type: | Real | | |
| Tax Area: | 100 - APPRAISER-OH Schl Dist, in OH | Land Use Code | 11 |
| Open Space: | N | DFL | N |
| Historic Property: | N | Remodel Property: | N |
| Multi-Family Redevelopment: | N | | |
| Township: | | Section: | |
| Range: | |
Location |
| Address: | 1705 SW SPRINGFIELD CT OAK HARBOR, WA 98277 | Mapsco: | |
| Neighborhood: | Cycle 1 | Map ID: | 95 |
| Neighborhood CD: | 1 |
Owner |
| Name: | BAILY, PATRICK H | Owner ID: | 190283 |
| Mailing Address: | LYNNETTE R BAILY 1705 SW SPRINGFIELD CT OAK HARBOR, WA 98277-8807 | % Ownership: | 100.0000000000% |
| | | Exemptions: | |
Taxes and Assessment Details
Values
| (+) Improvement Homesite Value: | + | $0 | |
| (+) Improvement Non-Homesite Value: | + | $429,529 | |
| (+) Land Homesite Value: | + | $0 | |
| (+) Land Non-Homesite Value: | + | $200,000 | |
| (+) Curr Use (HS): | + | $0 | $0 |
| (+) Curr Use (NHS): | + | $0 | $0 |
| | | -------------------------- | |
| (=) Market Value: | = | $629,529 | |
| (–) Productivity Loss: | – | $0 | |
| | | -------------------------- | |
| (=) Subtotal: | = | $629,529 | |
| (+) Senior Appraised Value: | + | $0 | |
| (+) Non-Senior Appraised Value: | + | $629,529 | |
| | | -------------------------- | |
| (=) Total Appraised Value: | = | $629,529 | |
| (–) Senior Exemption Loss: | – | $0 | |
| (–) Exemption Loss: | – | $0 | |
| | | -------------------------- | |
| (=) Taxable Value: | = | $629,529 | |
Taxing Jurisdiction
| Owner: | BAILY, PATRICK H | | |
| % Ownership: | 100.0000000000% | | |
| Total Value: | $629,529 | | |
| Tax Area: | 100 - APPRAISER-OH Schl Dist, in OH |
| CF | Conservation Futures | 0.0316035091 | $629,529 | $629,529 | $19.90 | | |
| CEM1 | Cemetery #1 | 0.0040320932 | $629,529 | $629,529 | $2.54 | | |
| COH | City of Oak Harbor | 2.3001546061 | $629,529 | $629,529 | $1,448.01 | | |
| OAKBOND | City of Oak Harbor BOND | 0.1926904192 | $629,529 | $629,529 | $121.30 | | |
| HOBOND | Hospital BOND | 0.1910887512 | $629,529 | $629,529 | $120.30 | | |
| HOGEN | Hospital GEN | 0.3902502903 | $629,529 | $629,529 | $245.67 | | |
| CE | County Current Expense | 0.3708482477 | $629,529 | $629,529 | $233.46 | | |
| ISLANDEMS | Hospital GEN (EMS) | 0.5000000000 | $629,529 | $629,529 | $314.76 | | |
| LIB | Library Sno-Isle GEN | 0.3153421757 | $629,529 | $629,529 | $198.52 | | |
| NWHIDPRMT | P & R N Whidbey GEN | 0.2004466701 | $629,529 | $629,529 | $126.19 | | |
| SCH201MO | School 201 Enrichment | 1.8559231640 | $629,529 | $629,529 | $1,168.36 | | |
| ST | State School | 1.3035497053 | $629,529 | $629,529 | $820.62 | | |
| ST2 | State School Part 2 | 0.8169543533 | $629,529 | $629,529 | $514.30 | | |
| | Total Tax Rate: | 8.4728839852 | | | | | |
| | | | | Taxes w/Current Exemptions: | $5,333.93 | | |
| | | | | Taxes w/o Exemptions: | $5,333.93 | | |
Improvement / Building
| Improvement #1: | RESIDENTIAL | State Code: | Y | 2549.2 sqft | Value: | $429,529 |
| Bathrooms: | 2.5 | Bedrooms: | 3 | | Ceiling: | DRYWALL PAINTED | Exterior Wall/Cover: | CEMENT FIBER | | Floor Covering: | CARPET/VINYL 80-20 | Floor Structure: | WOOD W/SUBFLOOR | | Foundation: | CONCRETE | Heating: | FHA GAS | | Interior Finish: | DRYWALL PAINT | Plumbing Fixture Cnt: | 12 | | Roof Slope: | 6" IN 12" | Roof Structure/Cover: | CJ ASPHALT |
|
| | Type | Description | Class CD | Sub Class CD | Year Built | Area |
| | BAS | BASE/MAIN FLOOR | 3 | 0 | 2003 | 1170.0 |
| | UPS | UPPER STORY | 3 | 0 | 2003 | 319.2 |
| | DGR | DETACHED GARAGE | 3 | 0 | 2003 | 320.0 |
| | AGR | ATTACHED GARAGE | 3 | 0 | 2003 | 720.0 |
| | UPS | UPPER STORY | 3 | 0 | 2003 | 1060.0 |
| | OWC | OPEN WOOD PORCH W/STEPS/ROOF/C | 3 | 0 | 2003 | 200.0 |
Sketch
Property Image
Land
| 1 | 14 | SQ (08001-12000) | 0.0000 | 0.00 | 0.00 | 0.00 | 1.00 | $200,000 | $0 |
Roll Value History
| 2026 | N/A | N/A | N/A | N/A | N/A |
| 2025 | $429,529 | $200,000 | $0 | $629,529 | $629,529 |
| 2024 | $434,453 | $190,000 | $0 | $624,453 | $624,453 |
| 2023 | $419,683 | $180,000 | $0 | $599,683 | $599,683 |
| 2022 | $384,467 | $160,000 | $0 | $544,467 | $544,467 |
| 2021 | $338,322 | $130,000 | $0 | $468,322 | $468,322 |
| 2020 | $329,986 | $100,000 | $0 | $429,986 | $429,986 |
| 2019 | $256,638 | $150,000 | $0 | $406,638 | $406,638 |
| 2018 | $257,357 | $130,000 | $0 | $387,357 | $387,357 |
| 2017 | $245,423 | $120,000 | $0 | $365,423 | $365,423 |
| 2016 | $248,098 | $90,000 | $0 | $338,098 | $338,098 |
| 2015 | $250,775 | $70,000 | $0 | $320,775 | $320,775 |
| 2014 | $253,451 | $65,000 | $0 | $318,451 | $318,451 |
| 2013 | $256,125 | $65,000 | $0 | $321,125 | $321,125 |
| 2012 | $258,799 | $65,000 | $0 | $323,799 | $323,799 |
| 2011 | $282,150 | $45,000 | $0 | $327,150 | $327,150 |
| 2010 | $287,355 | $45,000 | $0 | $332,355 | $332,355 |
| 2009 | $298,910 | $75,000 | $0 | $373,910 | $373,910 |
| 2008 | $305,115 | $95,000 | $0 | $400,115 | $400,115 |
| 2007 | $332,531 | $95,000 | $0 | $427,531 | $427,531 |
Deed and Sales History
| 1 | 12/31/2002 | WD | Warranty Deed | KRIEG, KARL C | BAILY, PATRICK H | | | $50,000.00 | 30075 | 4043401 |
| 2 | 01/01/1900 | OTHER | Other - Misc. Documents | Unknown | KRIEG, KARL C | | | $0.00 | 0 | 0 |
Payout Agreement
| No payout information available.. |