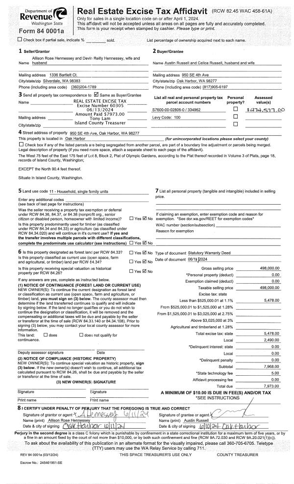
Property
Account |
| Property ID: | 804560 | Abbreviated Legal Description: | WHIDBEY GREEN PRD LOT 52 PHASE 1 & 2 |
| Geographic ID: | S8412-00-00052-0 | Agent Code: | |
| Type: | Real | | |
| Tax Area: | 100 - APPRAISER-OH Schl Dist, in OH | Land Use Code | 11 |
| Open Space: | N | DFL | N |
| Historic Property: | N | Remodel Property: | N |
| Multi-Family Redevelopment: | N | | |
| Township: | | Section: | |
| Range: | |
Location |
| Address: | 1506 SW VANGUARD ST OAK HARBOR, WA 98277 | Mapsco: | |
| Neighborhood: | Cycle 1 | Map ID: | 95 |
| Neighborhood CD: | 1 |
Owner |
| Name: | MIHOK, TED F | Owner ID: | 266210 |
| Mailing Address: | PAULA L MIHOK 1506 SW VANGUARD ST OAK HARBOR, WA 98277-7136 | % Ownership: | 100.0000000000% |
| | | Exemptions: | |
Taxes and Assessment Details
Values
| (+) Improvement Homesite Value: | + | $0 | |
| (+) Improvement Non-Homesite Value: | + | $327,841 | |
| (+) Land Homesite Value: | + | $0 | |
| (+) Land Non-Homesite Value: | + | $170,000 | |
| (+) Curr Use (HS): | + | $0 | $0 |
| (+) Curr Use (NHS): | + | $0 | $0 |
| | | -------------------------- | |
| (=) Market Value: | = | $497,841 | |
| (–) Productivity Loss: | – | $0 | |
| | | -------------------------- | |
| (=) Subtotal: | = | $497,841 | |
| (+) Senior Appraised Value: | + | $0 | |
| (+) Non-Senior Appraised Value: | + | $497,841 | |
| | | -------------------------- | |
| (=) Total Appraised Value: | = | $497,841 | |
| (–) Senior Exemption Loss: | – | $0 | |
| (–) Exemption Loss: | – | $0 | |
| | | -------------------------- | |
| (=) Taxable Value: | = | $497,841 | |
Taxing Jurisdiction
| Owner: | MIHOK, TED F | | |
| % Ownership: | 100.0000000000% | | |
| Total Value: | $497,841 | | |
| Tax Area: | 100 - APPRAISER-OH Schl Dist, in OH |
| CF | Conservation Futures | 0.0316035091 | $497,841 | $497,841 | $15.73 | | |
| CEM1 | Cemetery #1 | 0.0040320932 | $497,841 | $497,841 | $2.01 | | |
| COH | City of Oak Harbor | 2.3001546061 | $497,841 | $497,841 | $1,145.11 | | |
| OAKBOND | City of Oak Harbor BOND | 0.1926904192 | $497,841 | $497,841 | $95.93 | | |
| HOBOND | Hospital BOND | 0.1910887512 | $497,841 | $497,841 | $95.13 | | |
| HOGEN | Hospital GEN | 0.3902502903 | $497,841 | $497,841 | $194.28 | | |
| CE | County Current Expense | 0.3708482477 | $497,841 | $497,841 | $184.62 | | |
| ISLANDEMS | Hospital GEN (EMS) | 0.5000000000 | $497,841 | $497,841 | $248.92 | | |
| LIB | Library Sno-Isle GEN | 0.3153421757 | $497,841 | $497,841 | $156.99 | | |
| NWHIDPRMT | P & R N Whidbey GEN | 0.2004466701 | $497,841 | $497,841 | $99.79 | | |
| SCH201MO | School 201 Enrichment | 1.8559231640 | $497,841 | $497,841 | $923.95 | | |
| ST | State School | 1.3035497053 | $497,841 | $497,841 | $648.96 | | |
| ST2 | State School Part 2 | 0.8169543533 | $497,841 | $497,841 | $406.71 | | |
| | Total Tax Rate: | 8.4728839852 | | | | | |
| | | | | Taxes w/Current Exemptions: | $4,218.13 | | |
| | | | | Taxes w/o Exemptions: | $4,218.13 | | |
Improvement / Building
| Improvement #1: | RESIDENTIAL | State Code: | Y | 1504.5 sqft | Value: | $327,841 |
| Bathrooms: | 2 | Bedrooms: | 2 | | Ceiling: | DRYWALL PAINTED | Cooling: | HEAT PUMP/CONV/V | | Exterior Wall/Cover: | PLY/HARDBOARD T-111 | Floor Covering: | CARPET/VINYL 80-20 | | Floor Structure: | WOOD W/SUBFLOOR | Foundation: | CONCRETE | | Interior Finish: | DRYWALL PAINT | Plumbing Fixture Cnt: | 12 | | Roof Slope: | 8" IN 12" | Roof Structure/Cover: | CJ ASPHALT |
|
| | Type | Description | Class CD | Sub Class CD | Year Built | Area |
| | BAS | BASE/MAIN FLOOR | 3 | 0 | 2005 | 1504.5 |
| | OP4 | OPEN PORCH W/CEILING-ROOF | 3 | 0 | 2005 | 43.9 |
| | OP4 | OPEN PORCH W/CEILING-ROOF | 3 | 0 | 2005 | 49.0 |
| | AGR | ATTACHED GARAGE | 3 | 0 | 2005 | 528.0 |
Sketch
Property Image
Land
| 1 | 12 | SQ (00000-06000) | 0.0000 | 0.00 | 0.00 | 0.00 | 1.00 | $170,000 | $0 |
Roll Value History
| 2026 | N/A | N/A | N/A | N/A | N/A |
| 2025 | $327,841 | $170,000 | $0 | $497,841 | $497,841 |
| 2024 | $331,556 | $140,000 | $0 | $471,556 | $471,556 |
| 2023 | $328,885 | $130,000 | $0 | $458,885 | $458,885 |
| 2022 | $301,237 | $120,000 | $0 | $421,237 | $421,237 |
| 2021 | $264,905 | $70,000 | $0 | $334,905 | $334,905 |
| 2020 | $256,678 | $60,000 | $0 | $316,678 | $110,495 |
| 2019 | $184,564 | $120,000 | $0 | $304,564 | $110,495 |
| 2018 | $185,070 | $100,000 | $0 | $285,070 | $110,495 |
| 2017 | $186,237 | $90,000 | $0 | $276,237 | $110,495 |
| 2016 | $188,379 | $35,000 | $0 | $223,379 | $223,379 |
| 2015 | $190,520 | $35,000 | $0 | $225,520 | $225,520 |
| 2014 | $192,660 | $35,000 | $0 | $227,660 | $227,660 |
| 2013 | $194,801 | $35,000 | $0 | $229,801 | $229,801 |
| 2012 | $196,941 | $47,000 | $0 | $243,941 | $243,941 |
| 2011 | $200,320 | $47,000 | $0 | $247,320 | $247,320 |
| 2010 | $208,168 | $50,000 | $0 | $258,168 | $258,168 |
| 2009 | $214,577 | $75,000 | $0 | $289,577 | $289,577 |
| 2008 | $229,508 | $75,000 | $0 | $304,508 | $304,508 |
| 2007 | $231,978 | $50,000 | $0 | $281,978 | $281,978 |
Deed and Sales History
| 1 | 05/16/2014 | WD | Warranty Deed | DORAN, ELAINE M | MIHOK, TED F | | | $227,500.00 | 15473 | 4360227 |
| 2 | 08/16/2010 | WD | Warranty Deed | DOLES, LARRY D | DORAN, ELAINE M | | | $235,000.00 | 2115 | 4279612 |
| 3 | 07/24/2006 | WD | Warranty Deed | WHIDBEY GREEN I & II LLC, | DOLES, LARRY D | | | $289,000.00 | 63258 | 4177423 |
| 4 | 10/08/2003 | QCD | Quit Claim Deed | LANDED GENTRY DEVELOPMENT, INC | WHIDBEY GREEN I & II LLC, | | | $0.00 | 34563 | 4078514 |
| 5 | 01/01/1900 | OTHER | Other - Misc. Documents | Unknown | LANDED GENTRY DEVELOPMENT, INC | | | $0.00 | 0 | 0 |
Payout Agreement
| No payout information available.. |