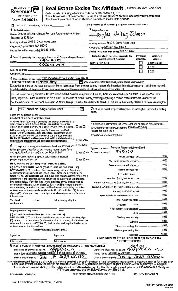
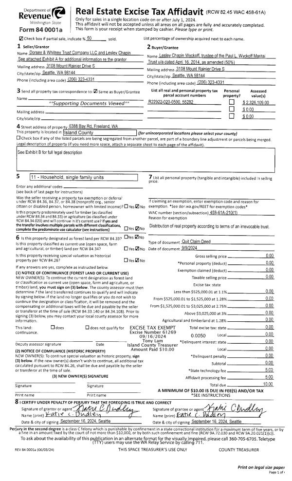
Property
Account |
| Property ID: | 804569 | Abbreviated Legal Description: | WHIDBEY GREEN PRD LOT 59 PHASE 1 & 2 |
| Geographic ID: | S8412-00-00059-0 | Agent Code: | |
| Type: | Real | | |
| Tax Area: | 100 - APPRAISER-OH Schl Dist, in OH | Land Use Code | 11 |
| Open Space: | N | DFL | N |
| Historic Property: | N | Remodel Property: | N |
| Multi-Family Redevelopment: | N | | |
| Township: | | Section: | |
| Range: | |
Location |
| Address: | 1576 SW VANGUARD ST OAK HARBOR, WA 98277 | Mapsco: | |
| Neighborhood: | Cycle 1 | Map ID: | 95 |
| Neighborhood CD: | 1 |
Owner |
| Name: | STARNES TTEE, ROBERT JAMES | Owner ID: | 310671 |
| Mailing Address: | PAULINE LOUISE STARNES TTEE 1218 N MAYFLOWER CIR RIDGECREST, CA 93555 | % Ownership: | 100.0000000000% |
| | | Exemptions: | |
Taxes and Assessment Details
Values
| (+) Improvement Homesite Value: | + | $0 | |
| (+) Improvement Non-Homesite Value: | + | $326,518 | |
| (+) Land Homesite Value: | + | $0 | |
| (+) Land Non-Homesite Value: | + | $170,000 | |
| (+) Curr Use (HS): | + | $0 | $0 |
| (+) Curr Use (NHS): | + | $0 | $0 |
| | | -------------------------- | |
| (=) Market Value: | = | $496,518 | |
| (–) Productivity Loss: | – | $0 | |
| | | -------------------------- | |
| (=) Subtotal: | = | $496,518 | |
| (+) Senior Appraised Value: | + | $0 | |
| (+) Non-Senior Appraised Value: | + | $496,518 | |
| | | -------------------------- | |
| (=) Total Appraised Value: | = | $496,518 | |
| (–) Senior Exemption Loss: | – | $0 | |
| (–) Exemption Loss: | – | $0 | |
| | | -------------------------- | |
| (=) Taxable Value: | = | $496,518 | |
Taxing Jurisdiction
| Owner: | STARNES TTEE, ROBERT JAMES | | |
| % Ownership: | 100.0000000000% | | |
| Total Value: | $496,518 | | |
| Tax Area: | 100 - APPRAISER-OH Schl Dist, in OH |
| CF | Conservation Futures | 0.0316035091 | $496,518 | $496,518 | $15.69 | | |
| CEM1 | Cemetery #1 | 0.0040320932 | $496,518 | $496,518 | $2.00 | | |
| COH | City of Oak Harbor | 2.3001546061 | $496,518 | $496,518 | $1,142.07 | | |
| OAKBOND | City of Oak Harbor BOND | 0.1926904192 | $496,518 | $496,518 | $95.67 | | |
| HOBOND | Hospital BOND | 0.1910887512 | $496,518 | $496,518 | $94.88 | | |
| HOGEN | Hospital GEN | 0.3902502903 | $496,518 | $496,518 | $193.77 | | |
| CE | County Current Expense | 0.3708482477 | $496,518 | $496,518 | $184.13 | | |
| ISLANDEMS | Hospital GEN (EMS) | 0.5000000000 | $496,518 | $496,518 | $248.26 | | |
| LIB | Library Sno-Isle GEN | 0.3153421757 | $496,518 | $496,518 | $156.57 | | |
| NWHIDPRMT | P & R N Whidbey GEN | 0.2004466701 | $496,518 | $496,518 | $99.53 | | |
| SCH201MO | School 201 Enrichment | 1.8559231640 | $496,518 | $496,518 | $921.50 | | |
| ST | State School | 1.3035497053 | $496,518 | $496,518 | $647.24 | | |
| ST2 | State School Part 2 | 0.8169543533 | $496,518 | $496,518 | $405.63 | | |
| | Total Tax Rate: | 8.4728839852 | | | | | |
| | | | | Taxes w/Current Exemptions: | $4,206.94 | | |
| | | | | Taxes w/o Exemptions: | $4,206.94 | | |
Improvement / Building
| Improvement #1: | RESIDENTIAL | State Code: | Y | 1521.0 sqft | Value: | $326,518 |
| Bathrooms: | 2 | Bedrooms: | 2 | | Ceiling: | DRYWALL PAINTED | Cooling: | HEAT PUMP/CONV/V | | Exterior Wall/Cover: | PLY/HARDBOARD T-111 | Floor Covering: | CARPET/VINYL 80-20 | | Floor Structure: | WOOD W/SUBFLOOR | Foundation: | CONCRETE | | Interior Finish: | DRYWALL PAINT | Plumbing Fixture Cnt: | 12 | | Roof Slope: | 8" IN 12" | Roof Structure/Cover: | CJ ASPHALT |
|
| | Type | Description | Class CD | Sub Class CD | Year Built | Area |
| | BAS | BASE/MAIN FLOOR | 3 | 0 | 2006 | 1521.0 |
| | AGR | ATTACHED GARAGE | 3 | 0 | 2006 | 541.5 |
| | OWC | OPEN WOOD PORCH W/STEPS/ROOF/C | 3 | 0 | 2006 | 70.0 |
| | OWC | OPEN WOOD PORCH W/STEPS/ROOF/C | 3 | 0 | 2006 | 62.5 |
Sketch
Property Image
Land
| 1 | 12 | SQ (00000-06000) | 0.0000 | 0.00 | 0.00 | 0.00 | 1.00 | $170,000 | $0 |
Roll Value History
| 2026 | N/A | N/A | N/A | N/A | N/A |
| 2025 | $326,518 | $170,000 | $0 | $496,518 | $496,518 |
| 2024 | $330,218 | $140,000 | $0 | $470,218 | $470,218 |
| 2023 | $327,567 | $130,000 | $0 | $457,567 | $457,567 |
| 2022 | $300,012 | $120,000 | $0 | $420,012 | $420,012 |
| 2021 | $263,831 | $70,000 | $0 | $333,831 | $333,831 |
| 2020 | $255,652 | $60,000 | $0 | $315,652 | $315,652 |
| 2019 | $184,046 | $120,000 | $0 | $304,046 | $304,046 |
| 2018 | $184,551 | $100,000 | $0 | $284,551 | $284,551 |
| 2017 | $166,482 | $90,000 | $0 | $256,482 | $256,482 |
| 2016 | $168,374 | $35,000 | $0 | $203,374 | $203,374 |
| 2015 | $170,266 | $35,000 | $0 | $205,266 | $205,266 |
| 2014 | $172,158 | $35,000 | $0 | $207,158 | $207,158 |
| 2013 | $181,581 | $35,000 | $0 | $216,581 | $216,581 |
| 2012 | $214,157 | $47,000 | $0 | $261,157 | $261,157 |
| 2011 | $218,408 | $47,000 | $0 | $265,408 | $265,408 |
| 2010 | $224,737 | $50,000 | $0 | $274,737 | $274,737 |
| 2009 | $233,960 | $75,000 | $0 | $308,960 | $308,960 |
| 2008 | $236,465 | $75,000 | $0 | $311,465 | $311,465 |
| 2007 | $236,720 | $50,000 | $0 | $286,720 | $286,720 |
Deed and Sales History
| 1 | 10/14/2023 | QCD | Quit Claim Deed | STARNES, ROBERT JAMES | STARNES TTEE, ROBERT JAMES | | | $0.00 | 58514 | 4566755 |
| 2 | 01/31/2022 | WD | Warranty Deed | DOLES, LARRY D | STARNES, ROBERT JAMES | | | $434,000.00 | 51880 | 4539247 |
| 3 | 11/19/2012 | WD | Warranty Deed | WHIDBEY GREEN I & II LLC | DOLES, LARRY D | | | $170,000.00 | 9560 | 4327915 |
| 4 | 10/08/2003 | QCD | Quit Claim Deed | LANDED GENTRY DEVELOPMENT, INC | WHIDBEY GREEN I & II LLC, | | | $0.00 | 34563 | 4078514 |
| 5 | 01/01/1900 | OTHER | Other - Misc. Documents | Unknown | LANDED GENTRY DEVELOPMENT, INC | | | $0.00 | 0 | 0 |
Payout Agreement
| No payout information available.. |