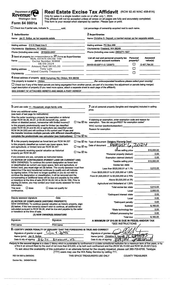
Property
Account |
| Property ID: | 804618 | Abbreviated Legal Description: | CHERRY HILL #4 LOT 77 |
| Geographic ID: | S6368-04-00077-0 | Agent Code: | |
| Type: | Real | | |
| Tax Area: | 100 - APPRAISER-OH Schl Dist, in OH | Land Use Code | 11 |
| Open Space: | N | DFL | N |
| Historic Property: | N | Remodel Property: | N |
| Multi-Family Redevelopment: | N | | |
| Township: | | Section: | |
| Range: | |
Location |
| Address: | 1709 NW ALMOND LOOP OAK HARBOR, WA 98277 | Mapsco: | |
| Neighborhood: | Cycle 1 | Map ID: | 255 |
| Neighborhood CD: | 1 |
Owner |
| Name: | GRAGG, LANDON C | Owner ID: | 308549 |
| Mailing Address: | CAITLIN E GRAGG 1709 NW ALMOND LOOP OAK HARBOR, WA 98277 | % Ownership: | 100.0000000000% |
| | | Exemptions: | |
Taxes and Assessment Details
Values
| (+) Improvement Homesite Value: | + | $0 | |
| (+) Improvement Non-Homesite Value: | + | $270,189 | |
| (+) Land Homesite Value: | + | $0 | |
| (+) Land Non-Homesite Value: | + | $195,000 | |
| (+) Curr Use (HS): | + | $0 | $0 |
| (+) Curr Use (NHS): | + | $0 | $0 |
| | | -------------------------- | |
| (=) Market Value: | = | $465,189 | |
| (–) Productivity Loss: | – | $0 | |
| | | -------------------------- | |
| (=) Subtotal: | = | $465,189 | |
| (+) Senior Appraised Value: | + | $0 | |
| (+) Non-Senior Appraised Value: | + | $465,189 | |
| | | -------------------------- | |
| (=) Total Appraised Value: | = | $465,189 | |
| (–) Senior Exemption Loss: | – | $0 | |
| (–) Exemption Loss: | – | $0 | |
| | | -------------------------- | |
| (=) Taxable Value: | = | $465,189 | |
Taxing Jurisdiction
| Owner: | GRAGG, LANDON C | | |
| % Ownership: | 100.0000000000% | | |
| Total Value: | $465,189 | | |
| Tax Area: | 100 - APPRAISER-OH Schl Dist, in OH |
| CF | Conservation Futures | 0.0316035091 | $465,189 | $465,189 | $14.70 | | |
| CEM1 | Cemetery #1 | 0.0040320932 | $465,189 | $465,189 | $1.88 | | |
| COH | City of Oak Harbor | 2.3001546061 | $465,189 | $465,189 | $1,070.01 | | |
| OAKBOND | City of Oak Harbor BOND | 0.1926904192 | $465,189 | $465,189 | $89.64 | | |
| HOBOND | Hospital BOND | 0.1910887512 | $465,189 | $465,189 | $88.89 | | |
| HOGEN | Hospital GEN | 0.3902502903 | $465,189 | $465,189 | $181.54 | | |
| CE | County Current Expense | 0.3708482477 | $465,189 | $465,189 | $172.51 | | |
| ISLANDEMS | Hospital GEN (EMS) | 0.5000000000 | $465,189 | $465,189 | $232.59 | | |
| LIB | Library Sno-Isle GEN | 0.3153421757 | $465,189 | $465,189 | $146.69 | | |
| NWHIDPRMT | P & R N Whidbey GEN | 0.2004466701 | $465,189 | $465,189 | $93.25 | | |
| SCH201MO | School 201 Enrichment | 1.8559231640 | $465,189 | $465,189 | $863.36 | | |
| ST | State School | 1.3035497053 | $465,189 | $465,189 | $606.40 | | |
| ST2 | State School Part 2 | 0.8169543533 | $465,189 | $465,189 | $380.04 | | |
| | Total Tax Rate: | 8.4728839852 | | | | | |
| | | | | Taxes w/Current Exemptions: | $3,941.50 | | |
| | | | | Taxes w/o Exemptions: | $3,941.50 | | |
Improvement / Building
| Improvement #1: | RESIDENTIAL | State Code: | Y | 1420.1 sqft | Value: | $270,189 |
| Bathrooms: | 2 | Bedrooms: | 3 | | Ceiling: | DRYWALL PAINTED | Exterior Wall/Cover: | CEMENT FIBER | | Floor Covering: | CARPET/VINYL 80-20 | Floor Structure: | WOOD W/SUBFLOOR | | Foundation: | CONCRETE | Heating: | FHA GAS | | Interior Finish: | DRYWALL PAINT | Plumbing Fixture Cnt: | 9 | | Roof Slope: | 6" IN 12" | Roof Structure/Cover: | CJ ASPHALT |
|
| | Type | Description | Class CD | Sub Class CD | Year Built | Area |
| | BAS | BASE/MAIN FLOOR | 3 | 0 | 2003 | 1420.1 |
| | OP4 | OPEN PORCH W/CEILING-ROOF | 3 | 0 | 2003 | 98.3 |
| | AGR | ATTACHED GARAGE | 3 | 0 | 2003 | 508.4 |
| | OWP | OPEN WOOD PORCH W/STEPS | 3 | 0 | 2003 | 134.4 |
Sketch
Property Image
Land
| 1 | 13 | SQ (06001-08000) | 0.0000 | 0.00 | 0.00 | 0.00 | 1.00 | $195,000 | $0 |
Roll Value History
| 2026 | N/A | N/A | N/A | N/A | N/A |
| 2025 | $270,189 | $195,000 | $0 | $465,189 | $465,189 |
| 2024 | $273,358 | $190,000 | $0 | $463,358 | $463,358 |
| 2023 | $270,189 | $175,000 | $0 | $445,189 | $445,189 |
| 2022 | $247,535 | $170,000 | $0 | $417,535 | $417,535 |
| 2021 | $217,732 | $120,000 | $0 | $337,732 | $337,732 |
| 2020 | $211,947 | $100,000 | $0 | $311,947 | $311,947 |
| 2019 | $153,109 | $150,000 | $0 | $303,109 | $303,109 |
| 2018 | $153,538 | $130,000 | $0 | $283,538 | $283,538 |
| 2017 | $146,413 | $110,000 | $0 | $256,413 | $256,413 |
| 2016 | $148,096 | $90,000 | $0 | $238,096 | $238,096 |
| 2015 | $149,780 | $55,000 | $0 | $204,780 | $204,780 |
| 2014 | $151,463 | $55,000 | $0 | $206,463 | $206,463 |
| 2013 | $153,145 | $55,000 | $0 | $208,145 | $208,145 |
| 2012 | $154,829 | $65,000 | $0 | $219,829 | $219,829 |
| 2011 | $154,435 | $50,000 | $0 | $204,435 | $204,435 |
| 2010 | $159,241 | $50,000 | $0 | $209,241 | $209,241 |
| 2009 | $166,000 | $60,000 | $0 | $226,000 | $226,000 |
| 2008 | $169,645 | $85,000 | $0 | $254,645 | $254,645 |
| 2007 | $169,910 | $85,000 | $0 | $254,910 | $254,910 |
Deed and Sales History
| 1 | 04/26/2023 | WD | Warranty Deed | SCHRAUD, DUSTIN A | GRAGG, LANDON C | | | $477,000.00 | 56613 | 4559590 |
| 2 | 03/18/2008 | WD | Warranty Deed | PENDLETON, FORREST S | SCHRAUD, DUSTIN A | | | $261,800.00 | 80652 | 4224373 |
| 3 | 05/24/2005 | WD | Warranty Deed | CAPISTRANO III, PABLO-BENITO G | PENDLETON, FORREST S | | | $212,000.00 | 52348 | 4135456 |
| 4 | 04/17/2003 | WD | Warranty Deed | THOMPSON HOMEBUILDERS INC, | CAPISTRANO III, PABLO-BENITO G | | | $176,761.00 | 31774 | 4056897 |
| 5 | 12/19/2002 | WD | Warranty Deed | FAKKEMA HOMES INC, | THOMPSON HOMEBUILDERS INC, | | | $40,500.00 | 25163 | 4041874 |
| 6 | 01/01/1900 | OTHER | Other - Misc. Documents | Unknown | FAKKEMA HOMES INC, | | | $0.00 | 0 | 0 |
Payout Agreement
| No payout information available.. |