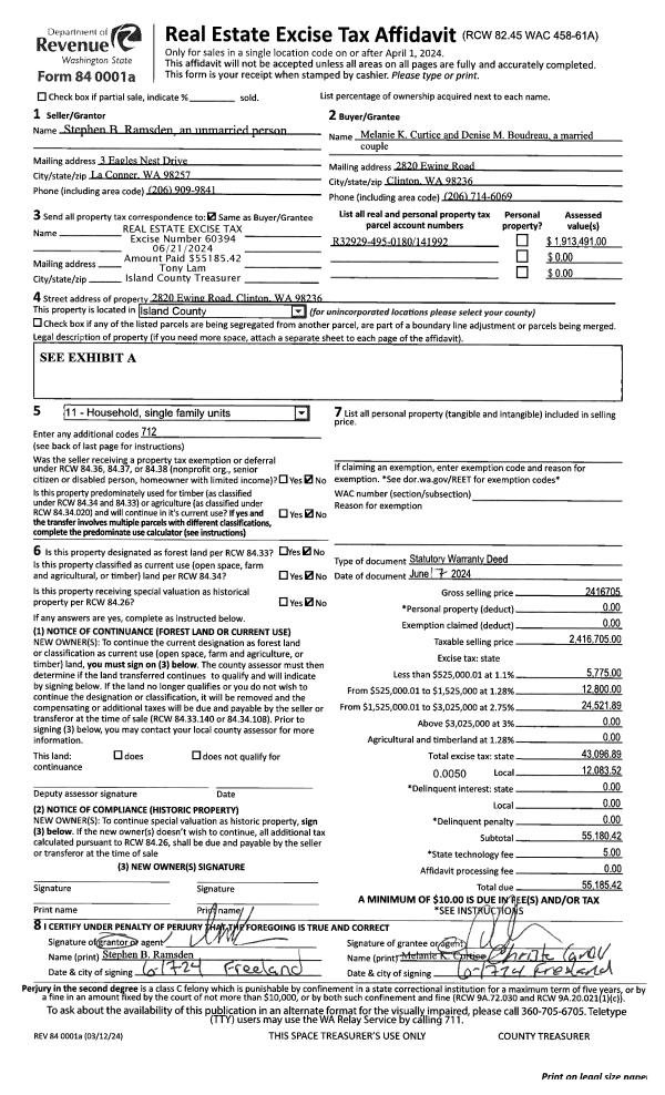
Property
Account |
| Property ID: | 805007 | Abbreviated Legal Description: | FIRESIDE #4 TRACT A |
| Geographic ID: | S6440-04-00016-1 | Agent Code: | |
| Type: | Real | | |
| Tax Area: | 100 - APPRAISER-OH Schl Dist, in OH | Land Use Code | 11 |
| Open Space: | N | DFL | N |
| Historic Property: | N | Remodel Property: | N |
| Multi-Family Redevelopment: | N | | |
| Township: | | Section: | |
| Range: | |
Location |
| Address: | PATRIOT WAY OAK HARBOR, WA 98277 | Mapsco: | |
| Neighborhood: | Cycle 1 | Map ID: | 95 |
| Neighborhood CD: | 1 |
Owner |
| Name: | DAMM, JOHN A. | Owner ID: | 310894 |
| Mailing Address: | KELSIE S. DAMM 1213 PATRIOT WAY OAK HARBOR, WA 98277 | % Ownership: | 100.0000000000% |
| | | Exemptions: | |
Taxes and Assessment Details
Values
| (+) Improvement Homesite Value: | + | $0 | |
| (+) Improvement Non-Homesite Value: | + | $7,680 | |
| (+) Land Homesite Value: | + | $0 | |
| (+) Land Non-Homesite Value: | + | $110,000 | |
| (+) Curr Use (HS): | + | $0 | $0 |
| (+) Curr Use (NHS): | + | $0 | $0 |
| | | -------------------------- | |
| (=) Market Value: | = | $117,680 | |
| (–) Productivity Loss: | – | $0 | |
| | | -------------------------- | |
| (=) Subtotal: | = | $117,680 | |
| (+) Senior Appraised Value: | + | $0 | |
| (+) Non-Senior Appraised Value: | + | $117,680 | |
| | | -------------------------- | |
| (=) Total Appraised Value: | = | $117,680 | |
| (–) Senior Exemption Loss: | – | $0 | |
| (–) Exemption Loss: | – | $0 | |
| | | -------------------------- | |
| (=) Taxable Value: | = | $117,680 | |
Taxing Jurisdiction
| Owner: | DAMM, JOHN A. | | |
| % Ownership: | 100.0000000000% | | |
| Total Value: | $117,680 | | |
| Tax Area: | 100 - APPRAISER-OH Schl Dist, in OH |
| CF | Conservation Futures | 0.0316035091 | $117,680 | $117,680 | $3.72 | | |
| CEM1 | Cemetery #1 | 0.0040320932 | $117,680 | $117,680 | $0.47 | | |
| COH | City of Oak Harbor | 2.3001546061 | $117,680 | $117,680 | $270.68 | | |
| OAKBOND | City of Oak Harbor BOND | 0.1926904192 | $117,680 | $117,680 | $22.68 | | |
| HOBOND | Hospital BOND | 0.1910887512 | $117,680 | $117,680 | $22.49 | | |
| HOGEN | Hospital GEN | 0.3902502903 | $117,680 | $117,680 | $45.92 | | |
| CE | County Current Expense | 0.3708482477 | $117,680 | $117,680 | $43.64 | | |
| ISLANDEMS | Hospital GEN (EMS) | 0.5000000000 | $117,680 | $117,680 | $58.84 | | |
| LIB | Library Sno-Isle GEN | 0.3153421757 | $117,680 | $117,680 | $37.11 | | |
| NWHIDPRMT | P & R N Whidbey GEN | 0.2004466701 | $117,680 | $117,680 | $23.59 | | |
| SCH201MO | School 201 Enrichment | 1.8559231640 | $117,680 | $117,680 | $218.41 | | |
| ST | State School | 1.3035497053 | $117,680 | $117,680 | $153.40 | | |
| ST2 | State School Part 2 | 0.8169543533 | $117,680 | $117,680 | $96.14 | | |
| | Total Tax Rate: | 8.4728839852 | | | | | |
| | | | | Taxes w/Current Exemptions: | $997.09 | | |
| | | | | Taxes w/o Exemptions: | $997.09 | | |
Improvement / Building
| Improvement #1: | RESIDENTIAL | State Code: | Y | 0.0 sqft | Value: | $7,680 |
Sketch
Property Image
Land
| 1 | 14 | SQ (08001-12000) | 0.0000 | 0.00 | 0.00 | 0.00 | 1.00 | $110,000 | $0 |
Roll Value History
| 2026 | N/A | N/A | N/A | N/A | N/A |
| 2025 | $7,680 | $110,000 | $0 | $117,680 | $117,680 |
| 2024 | $7,680 | $95,000 | $0 | $102,680 | $102,680 |
| 2023 | $7,680 | $100,000 | $0 | $107,680 | $107,680 |
| 2022 | $7,680 | $90,000 | $0 | $97,680 | $0 |
| 2021 | $7,680 | $50,000 | $0 | $57,680 | $0 |
| 2020 | $7,680 | $50,000 | $0 | $57,680 | $0 |
| 2019 | $7,680 | $75,000 | $0 | $82,680 | $0 |
| 2018 | $7,680 | $65,000 | $0 | $72,680 | $0 |
| 2017 | $9,654 | $60,000 | $0 | $69,654 | $0 |
| 2016 | $9,654 | $45,000 | $0 | $54,654 | $0 |
| 2015 | $9,654 | $35,000 | $0 | $44,654 | $44,654 |
| 2014 | $9,654 | $27,500 | $0 | $37,154 | $37,154 |
| 2013 | $9,654 | $27,500 | $0 | $37,154 | $37,154 |
| 2012 | $9,654 | $32,500 | $0 | $42,154 | $42,154 |
| 2011 | $9,654 | $31,500 | $0 | $41,154 | $41,154 |
| 2010 | $9,654 | $31,500 | $0 | $41,154 | $41,154 |
| 2009 | $9,923 | $37,500 | $0 | $47,423 | $47,423 |
| 2008 | $10,191 | $50,000 | $0 | $60,191 | $60,191 |
| 2007 | $10,460 | $50,000 | $0 | $60,460 | $60,460 |
Deed and Sales History
| 1 | 12/12/2023 | WD | Warranty Deed | CHRISTIE TRUSTEE, CHRISTINE ARNEL | DAMM, JOHN A. | | | $380,000.00 | 58743 | 4567574 |
|   | |
| 2 | 01/14/2010 | QCD | Quit Claim Deed | CHRISTIE, CHRISTINE W | CHRISTIE TRUSTEE, CHRISTINE AR | | | $0.00 | 119 | 4267097 |
| 3 | 11/04/2003 | BLA | DNU - Boundary Line Adjustment | Unknown | CHRISTIE, CHRISTINE W | | | $0.00 | 70048 | 4081040 |
Payout Agreement
| No payout information available.. |