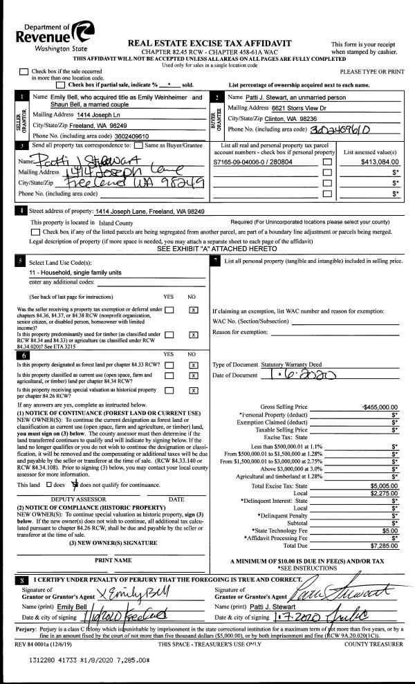
Property
Account |
| Property ID: | 805011 | Abbreviated Legal Description: | PT GL4 & SE SE LY W OF E HARBOR RD DESC: BG WLN E HARBOR RD 244'S OF NLN OF SD SE SE S48*W ALG WLN E HARBOR RD 145.96' TPB N75*W32.27' S84*W445.18' ALG CUR/L 294.53' S522.68' S88*E36.38' M/L TO WLN E HARBOR RD N48*E ALG SD WLN 965.25' TPB |
| Geographic ID: | R22902-076-3810 | Agent Code: | |
| Type: | Real | | |
| Tax Area: | 712 - APPRAISER-S Whid Schl Dist, outside Langley, improved, greater than 1 acre | Land Use Code | 11 |
| Open Space: | N | DFL | N |
| Historic Property: | N | Remodel Property: | N |
| Multi-Family Redevelopment: | N | | |
| Township: | 29 | Section: | 02 |
| Range: | R2 |
Location |
| Address: | | Mapsco: | |
| Neighborhood: | Cycle 3 | Map ID: | 285 |
| Neighborhood CD: | 3 |
Owner |
| Name: | COVE CLUB CRESTWOOD, LLC | Owner ID: | 272477 |
| Mailing Address: | PO BOX 766 MUKILTEO, WA 98275 | % Ownership: | 100.0000000000% |
| | | Exemptions: | |
Taxes and Assessment Details
Values
| (+) Improvement Homesite Value: | + | $0 | |
| (+) Improvement Non-Homesite Value: | + | $46,000 | |
| (+) Land Homesite Value: | + | $0 | |
| (+) Land Non-Homesite Value: | + | $330,000 | |
| (+) Curr Use (HS): | + | $0 | $0 |
| (+) Curr Use (NHS): | + | $0 | $0 |
| | | -------------------------- | |
| (=) Market Value: | = | $376,000 | |
| (–) Productivity Loss: | – | $0 | |
| | | -------------------------- | |
| (=) Subtotal: | = | $376,000 | |
| (+) Senior Appraised Value: | + | $0 | |
| (+) Non-Senior Appraised Value: | + | $376,000 | |
| | | -------------------------- | |
| (=) Total Appraised Value: | = | $376,000 | |
| (–) Senior Exemption Loss: | – | $0 | |
| (–) Exemption Loss: | – | $0 | |
| | | -------------------------- | |
| (=) Taxable Value: | = | $376,000 | |
Taxing Jurisdiction
| Owner: | COVE CLUB CRESTWOOD, LLC | | |
| % Ownership: | 100.0000000000% | | |
| Total Value: | $376,000 | | |
| Tax Area: | 712 - APPRAISER-S Whid Schl Dist, outside Langley, improved, greater than 1 acre |
| CF | Conservation Futures | 0.0316035091 | $376,000 | $376,000 | $11.88 | | |
| FIRE3 | Fire & Rescue Dist #3 S Whidbey GEN | 1.2004855531 | $376,000 | $376,000 | $451.38 | | |
| HOBOND | Hospital BOND | 0.1910887512 | $376,000 | $376,000 | $71.85 | | |
| HOGEN | Hospital GEN | 0.3902502903 | $376,000 | $376,000 | $146.73 | | |
| CE | County Current Expense | 0.3708482477 | $376,000 | $376,000 | $139.44 | | |
| CR | County Roads | 0.4584763726 | $376,000 | $376,000 | $172.39 | | |
| ISLANDEMS | Hospital GEN (EMS) | 0.5000000000 | $376,000 | $376,000 | $188.00 | | |
| LIB | Library Sno-Isle GEN | 0.3153421757 | $376,000 | $376,000 | $118.57 | | |
| PORTWHID | Port of S Whidbey GEN | 0.1094540357 | $376,000 | $376,000 | $41.15 | | |
| SCH206BOND | School 206 BOND | 0.3161759235 | $376,000 | $376,000 | $118.88 | | |
| SCH206MO | School 206 Enrichment | 0.4547169547 | $376,000 | $376,000 | $170.97 | | |
| ST | State School | 1.3035497053 | $376,000 | $376,000 | $490.13 | | |
| ST2 | State School Part 2 | 0.8169543533 | $376,000 | $376,000 | $307.17 | | |
| SWHIDPRBD | P & R S Whidbey BOND | 0.0152817568 | $376,000 | $376,000 | $5.75 | | |
| SWHIDPRBD2 | P & R S Whidbey BOND2 | 0.0138911264 | $376,000 | $376,000 | $5.22 | | |
| SWHIDPRMT | P & R S Whidbey GEN | 0.2053334452 | $376,000 | $376,000 | $77.21 | | |
| | Total Tax Rate: | 6.6934522006 | | | | | |
| | | | | Taxes w/Current Exemptions: | $2,516.72 | | |
| | | | | Taxes w/o Exemptions: | $2,516.72 | | |
Improvement / Building
| Improvement #1: | RESIDENTIAL | State Code: | Y | 0.0 sqft | Value: | $46,000 |
Sketch
| No sketches available for this property. |
Property Image
Land
| 1 | 32 | AC (03.01-09.99) | 5.2700 | 0.00 | 0.00 | 0.00 | 1.00 | $330,000 | $0 |
Roll Value History
| 2026 | N/A | N/A | N/A | N/A | N/A |
| 2025 | $46,000 | $330,000 | $0 | $376,000 | $376,000 |
| 2024 | $46,000 | $330,000 | $0 | $376,000 | $376,000 |
| 2023 | $46,000 | $330,000 | $0 | $376,000 | $376,000 |
| 2022 | $46,000 | $230,000 | $0 | $276,000 | $276,000 |
| 2021 | $46,000 | $230,000 | $0 | $276,000 | $276,000 |
| 2020 | $46,000 | $190,000 | $0 | $236,000 | $236,000 |
| 2019 | $46,000 | $230,000 | $0 | $276,000 | $276,000 |
| 2018 | $46,000 | $210,000 | $0 | $256,000 | $256,000 |
| 2017 | $46,000 | $165,000 | $0 | $211,000 | $211,000 |
| 2016 | $46,000 | $165,000 | $0 | $211,000 | $211,000 |
| 2015 | $46,000 | $131,750 | $0 | $177,750 | $177,750 |
| 2014 | $46,000 | $131,750 | $0 | $177,750 | $177,750 |
| 2013 | $0 | $131,750 | $0 | $131,750 | $131,750 |
| 2012 | $0 | $131,750 | $0 | $131,750 | $131,750 |
| 2011 | $0 | $131,750 | $0 | $131,750 | $131,750 |
| 2010 | $0 | $131,750 | $0 | $131,750 | $131,750 |
| 2009 | $0 | $179,180 | $0 | $179,180 | $179,180 |
| 2008 | $0 | $158,100 | $0 | $158,100 | $158,100 |
| 2007 | $0 | $160,208 | $0 | $160,208 | $160,208 |
Deed and Sales History
| 1 | 10/15/2015 | WD | Warranty Deed | SHIH, DAVID | COVE CLUB CRESTWOOD, LLC | | | $2,988,888.00 | 21780 | 4387864 |
|   | |
| 2 | 11/13/2003 | BLA | DNU - Boundary Line Adjustment | Unknown | SHIH, DAVID | | | $0.00 | 70075 | 4087101 |
Payout Agreement
| No payout information available.. |